Сігарт
- Кількість поверхів
- 1
- Площа
- 55.1
- Ширина
- 9
- Довжина
- 7
- Будинки і житлові будови
- Будиночки
Дачі
Котеджі - Кількість кімнат
- Двокімнатні будинки
- Особливості будинків
- Будинки з терасою
- Кількість поверхів споруди
- Одноповерхові будинки
- Будинки з брусу
- Будинки з оциліндрованого брусу
- Комерційні будівлі
- Бази відпочинку
(Що входить в ціну)
- комплект стін;
- комплект крокв;
- комплект балок перекриття;
- утеплювач міжвінцевий;
- антисептик (антисептування всього матеріалу);
- дубові нагеля;
- кріпильні материали (саморізи, усадкові болти, анкера, кріпильні пластини);
- гідроізоляція;
- вогнебіозахист (обробка деревини засобом І групи вогнезахисної ефективності)
Проект будиночка з альтанкою «Сігарт»
Дерев’яний будиночок «Сігарт» відрізняється незвичайною формою даху і наявністю альтанки, прибудованої у вигляді просторої тераси до будиночка. Сама площа тераси не дуже велика, але масивний дах над нею створює враження, що проект «Сігарт» складається з двох будиночків. Завдяки наявності закритого і відкритого приміщень будиночок «Сігарт» можна позиціонувати як чудове місце для пікніків і відпочинку на природі плюс він надає можливість залишатися в котеджі і проживати стільки, скільки знадобиться. Адже всередині будиночка сплановані дуже комфортні умови.
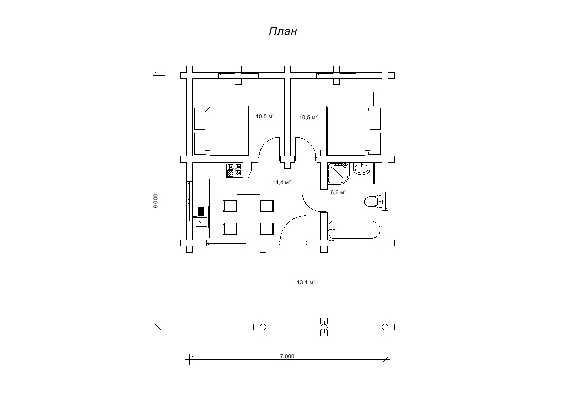
Планування проекту будиночка з альтанкою, площа 55,1 м2
Загальна площа будівлі за проектом «Сігарт» становить 55,1 м2. Це маленький, одноповерховий будиночок, в якому спроектовані дві спальні по 10,5 м2, кухня розміром 14,4 м2 і ванна кімната площею 6,6 м2 . На окрему увагу заслуговує тераса-альтанка площею 13,1 м2, де добре влаштувати літню їдальню, поставити мангал, наприклад, і насолоджуватися вечірками на свіжому повітрі. Як бачите в такому будиночку, як «Сігарт» можна проводити відпустку або вихідні і залишатися в котеджі скільки душа забажає. Будиночок з альтанкою «Сігарт» настільки багатогранний, що його можна будувати не тільки в особистих цілях, але й для бізнесу. Використання на базі відпочинку або в готельному комплексі будиночка з терасою залучить більше гостей і стане джерелом додаткового доходу.
Будівництво зрубу будиночка з альтанкою за проектом «Сігарт»
Споруда зрубу будиночка з альтанкою стане оптимальним вибором для дачної ділянки, тому що дерев’яний котедж за проектом «Сігарт» економічний, екологічний, естетично привабливий і швидко зводиться на фундамент, що надається замовником. При оформленні замовлення на будівництво проекту «Сігарт», архітектор компанії «Домінант» надає креслення горизонтального зрізу фундаменту, щоб господар зміг підготувати підставу під дерев’яну конструкцію будиночка до приїзду майстрів «Домінант». Придбання будиночка з альтанкою «Сігарт» - вибір мудрого господаря!
- Кількість поверхів
- 1
- Площа
- 55.1
- Ширина
- 9
- Довжина
- 7
- Будинки і житлові будови
- Будиночки
Дачі
Котеджі - Кількість кімнат
- Двокімнатні будинки
- Особливості будинків
- Будинки з терасою
- Кількість поверхів споруди
- Одноповерхові будинки
- Будинки з брусу
- Будинки з оциліндрованого брусу
- Комерційні будівлі
- Бази відпочинку
Базова комплектація:
(Що входить в ціну)
- комплект стін;
- комплект крокв;
- комплект балок перекриття;
- утеплювач міжвінцевий;
- антисептик (антисептування всього матеріалу);
- дубові нагеля;
- кріпильні материали (саморізи, усадкові болти, анкера, кріпильні пластини);
- гідроізоляція;
- вогнебіозахист (обробка деревини засобом І групи вогнезахисної ефективності)
218700 грн.
Дах (комплектність):
- Рейка 100*25мм (cосна)
- Контрейка 50*25мм (сосна)
- Металочерепиця МОНТЕРРЕЙ (Польща) 0,45мм
- Коник прямий
- Планка примикання
- Лобова (декоративна) планка
- Вітровая планка
- Яндола
- Капельник (Карнизна планка)
- Ущільнювач універсальный
- Саморізи ОС 4.8х35
- Фарба-спрей
- Гідробар'єр
- Монтаж
140320 грн.
Вікна (комплектність):
- Вікно VEKA 58, колір білий 10
- Імпости вертикальні: 1 x 102103
- Скління: СПО, 24мм, (Rсп=0.36)*
- Тип фурнітури: Activpilot поворотно-відкидна, колір білий
- Підбір спеціальний: Activ микровентиляція; Activ 2-функц. механ.
- Моск.сітка: МС 3
- Підвіконня: ВМ 110мм, колір білий
- Підвіконня: ПВ ПВХ 150, заглушки: 600мм, колір білий
- Монтаж
41800 грн.
Двері (комплектність):
- Полотно
- Коробка
- Лиштва
- Карниз
- Фарбування
- Скло
- Фурнітура
- Врізка фурнітуры
- Монтаж
96348 грн.
Фарбування (комплектність):
- Шліфування торців
- Тришарове покриття ефективним деревозахисним засобом на базі низькомолекулярної алкідної смоли методом розпилення.
Оциліндрований брус
Оциліндрований брус є найбільш оптимальним і поширеним матеріалом для будівництва дерев`яних будинків і бань, бесідок, альтанок, різноманітних садових меблів, дерев`яних конструкцій будь-яких видів. Дерев`яні будинки з оциліндрованого брусу відрізняються красою, всередині такого будинку завжди відчувається особлива затишна атмосфера.
Профільований брус
Найсучаснішим і високотехнологічним будівельним матеріалом в дерев`яному будівництві на сьогоднішній день є профільований брус. Для виробництва профільованого брусу, звичайному дерев`яному брусу на спеціальному деревообробному обладнанні надається певний профіль.
Подвійний брус з утепленням
Головна ідея застосування подвійного бруса полягала в досягненні енергоефективності житла. Над проектуванням енергозберігаючих будинків працюють провідні інженери та архітектори в різних країнах світу, запропонована фінами технологія подвійного бруса дає можливість звести до мінімуму тепловтрати будинку, а також об`єднує переваги будівництва дерев`яного будинку з економічністю споруди.
Клеєний брус
Клеєний брус принципово відрізняється від інших типів колод багатошаровістю. Така структура робить цей дерев’яний матеріал надміцним і витривалим.
Каркасні конструкції
Каркасні конструкції виготовляються на власних виробничих потужностях компанії «Домінант», з використанням сучасних деревообробних станків. Імпортне, високоточне обладнання дозволяє нам високоякісно виконувати свою роботу. Каркаси складаються зі струганих, ретельно висушених балок 150х50 мм (сосна першого сорту). Ці балки застосовуються для зовнішніх каркасів.















