Зателефонуйте мені
Батлер №1
Батлер №2
Батлер №3
Батлер №4
Батлер №5
Батлер №6
Батлер №7
Батлер №1
Батлер №2
Батлер №3
Батлер №4
Батлер №5
Батлер №6
Батлер №7
Батлер №1
Батлер №1 Батлер №2 Батлер №3 Батлер №4 Батлер №5 Батлер №6 Батлер №7

Батлер

1 351 614,00 ₴
Дерев`яний будинок 11,4х12м - «Батлер»
Розмір брусу
  • Оциліндрований 160
  • Оциліндрований 180
  • Оциліндрований 200
  • Оциліндрований 220
  • Профільований 60
  • Профільований 150
  • Профільований 200
  • Подвійний 300
  • Клеєний 120
  • Клеєний 180
Кількість поверхів
2
Площа
215.17
Ширина
12.3
Довжина
11.4
Будинки і житлові будови
Маєтки
Садиби
Кількість кімнат
Чотирикімнатні будинки
Особливості будинків
Будинки з котельнею
Будинки з терасою
Будинки зі сходами
Кількість поверхів споруди
Двоповерхові будинки
Будинки з брусу
Будинки з оциліндрованого брусу
 

(Що входить в ціну)

Що входить в базову комплектацію

  • комплект стін;
  • комплект крокв;
  • комплект балок перекриття;
  • утеплювач міжвінцевий;
  • антисептик (антисептування всього матеріалу);
  • дубові нагеля;
  • кріпильні материали (саморізи, усадкові болти, анкера, кріпильні пластини);
  • гідроізоляція;
  • вогнебіозахист (обробка деревини засобом І групи вогнезахисної ефективності)

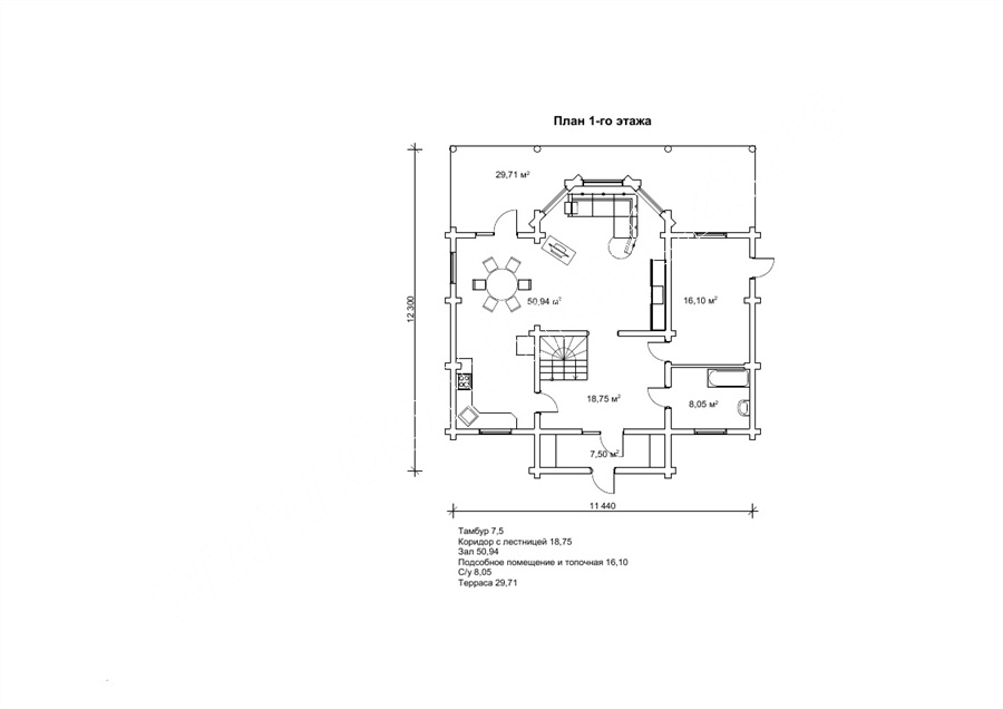
Нашою будівельною компанією пропонується продаж будинку без посередників за ціною виробника. Якщо вас цікавить такий продаж будинку, зверніть увагу на житловий особняк Батлер dominant-wood.com.ua/ru/proekty/386-batler , який ідеально підходить для постійного проживання і заміського відпочинку. Перший поверх за пропонованим плануванням містить терасу, зал і кухню, а також санвузол. За архітектурним рішенням першого поверху кухня об’єднується з вітальні в єдиний простір, що візуально розширює площу. Кімната, дві спальні, санвузол, хол з сходами спроектовані на другому поверсі.

Проект заміського будинку Батлер - оптимальний варіант облаштування заміського ділянки, тим більше в разі, коли можливий продаж будинку без посередників. Комфорт, затишок, простір, прості форми екстер’єру - ось основні переваги проекту Батлер.

Зовнішній вигляд особняка в поєднанні з назвою викликають асоціацію з найпопулярнішим романом Маргарет Мітчелл «Віднесені вітром». Дійсно даний проект порадує любителів класики і надихне до прочитання ще не однієї книги в кімнатах цього будинку. А найприємніше, що планування дозволяє вам не просто виділити місце для читання улюблених книг, але навіть виділити окреме приміщення для бібліотеки. Чарівний і запаморочливий зовнішній вигляд прямо пропорційно відображає своїх власників.

Купуючи такий проект, ви стаєте власником надзвичайної краси і зручності будови. Компанія «Домінант» dominant-wood.com.ua/ готова внести корективи і виконати будь-яку вашу примху щодо проекту, для цього зв’яжіться з нашим менеджером.

Кількість поверхів
2
Площа
215.17
Ширина
12.3
Довжина
11.4
Будинки і житлові будови
Маєтки
Садиби
Кількість кімнат
Чотирикімнатні будинки
Особливості будинків
Будинки з котельнею
Будинки з терасою
Будинки зі сходами
Кількість поверхів споруди
Двоповерхові будинки
Будинки з брусу
Будинки з оциліндрованого брусу

Базова комплектація:
(Що входить в ціну)

Що входить в базову комплектацію

  • комплект стін;
  • комплект крокв;
  • комплект балок перекриття;
  • утеплювач міжвінцевий;
  • антисептик (антисептування всього матеріалу);
  • дубові нагеля;
  • кріпильні материали (саморізи, усадкові болти, анкера, кріпильні пластини);
  • гідроізоляція;
  • вогнебіозахист (обробка деревини засобом І групи вогнезахисної ефективності)

486000 грн.

Дах (комплектність):

  • Рейка 100*25мм (cосна)
  • Контрейка 50*25мм (сосна)
  • Металочерепиця МОНТЕРРЕЙ (Польща) 0,45мм
  • Коник прямий
  • Планка примикання
  • Лобова (декоративна) планка
  • Вітровая планка
  • Яндола
  • Капельник (Карнизна планка)
  • Ущільнювач універсальный
  • Саморізи ОС 4.8х35
  • Фарба-спрей
  • Гідробар'єр
  • Монтаж

420960 грн.

Вікна (комплектність):

  • Вікно VEKA 58, колір білий 10
  • Імпости вертикальні: 1 x 102103
  • Скління: СПО, 24мм, (Rсп=0.36)*
  • Тип фурнітури: Activpilot поворотно-відкидна, колір білий
  • Підбір спеціальний: Activ микровентиляція; Activ 2-функц. механ.
  • Моск.сітка: МС 3
  • Підвіконня: ВМ 110мм, колір білий
  • Підвіконня: ПВ ПВХ 150, заглушки: 600мм, колір білий
  • Монтаж

0 грн.

Двері (комплектність):

  • Полотно
  • Коробка
  • Лиштва
  • Карниз
  • Фарбування
  • Скло
  • Фурнітура
  • Врізка фурнітуры
  • Монтаж

138880 грн.

Фарбування (комплектність):

  • Шліфування торців
  • Тришарове покриття ефективним деревозахисним засобом на базі низькомолекулярної алкідної смоли методом розпилення.

Параметри забудови

  • Кількість поверхів: 2
  • Площа: 215.17

Розмір забудови

  • Ширина: 12.3
  • Довжина: 11.4

Перший поверх

зал (м²)50,94
сходова зона (м²)18,7
с/в (м²)8
тамбур (м²)7,5
тераса (м²)29,7
топкова (м²)16,1

Другий поверх

кімната (м²)24,15
кімната (м²)26,7
кімната (м²)16,1
сходова зона (м²)18,75
с/в (м²)8

Оциліндрований брус

Оциліндрований брус є найбільш оптимальним і поширеним матеріалом для будівництва дерев`яних будинків і бань, бесідок, альтанок, різноманітних садових меблів, дерев`яних конструкцій будь-яких видів. Дерев`яні будинки з оциліндрованого брусу відрізняються красою, всередині такого будинку завжди відчувається особлива затишна атмосфера.

Читати далі...

Профільований брус

Найсучаснішим і високотехнологічним будівельним матеріалом в дерев`яному будівництві на сьогоднішній день є профільований брус. Для виробництва профільованого брусу, звичайному дерев`яному брусу на спеціальному деревообробному обладнанні надається певний профіль.

Читати далі...

Подвійний брус з утепленням

Головна ідея застосування подвійного бруса полягала в досягненні енергоефективності житла. Над проектуванням енергозберігаючих будинків працюють провідні інженери та архітектори в різних країнах світу, запропонована фінами технологія подвійного бруса дає можливість звести до мінімуму тепловтрати будинку, а також об`єднує переваги будівництва дерев`яного будинку з економічністю споруди.

Читати далі...

Клеєний брус

Клеєний брус принципово відрізняється від інших типів колод багатошаровістю. Така структура робить цей дерев’яний матеріал надміцним і витривалим.

Читати далі...

Каркасні конструкції

Каркасні конструкції виготовляються на власних виробничих потужностях компанії «Домінант», з використанням сучасних деревообробних станків. Імпортне, високоточне обладнання дозволяє нам високоякісно виконувати свою роботу. Каркаси складаються зі струганих, ретельно висушених балок 150х50 мм (сосна першого сорту). Ці балки застосовуються для зовнішніх каркасів.

Читати далі...

Немає відгуків

Переглянуті товари

16 інших товарів в цій категорії:

Товар додано для порівняння.