Ратвіс
- Кількість поверхів
- 1
- Площа
- 57.8
- Ширина
- 9
- Довжина
- 8.2
- Будинки і житлові будови
- Будиночки
Дачі
Котеджі - Кількість кімнат
- Однокімнатні будинки
- Особливості будинків
- Будинки з каміном
- Кількість поверхів споруди
- Одноповерхові будинки
- Будинки з брусу
- Будинки з оциліндрованого брусу
(Що входить в ціну)
- комплект стін;
- комплект крокв;
- комплект балок перекриття;
- утеплювач міжвінцевий;
- антисептик (антисептування всього матеріалу);
- дубові нагеля;
- кріпильні материали (саморізи, усадкові болти, анкера, кріпильні пластини);
- гідроізоляція;
- вогнебіозахист (обробка деревини засобом І групи вогнезахисної ефективності)
Будівництво гостьового котеджу з каміном за готовим проектом «Ратвіс»
При замовленні будівництва гостьового котеджу з каміном за готовим проектом «Ратвіс», ви отримуєте чудове місце заміського дозвілля, створене зі смаком до життя та любов'ю до комфорту. Розглядаючи будиночок з усіх боків, можна побачити, що з кожного фасаду він виглядає зовсім по-різному. Мабуть, такий цікавий дизайн екстер'єру можна назвати родзинкою проекту «Ратвіс». Дерев'яний котедж оснащений усім, щоб провести в ньому чудовий час. А якщо ви оберете велику товщину колод для будівництва, наприклад, 200-220 мм, то вийде теплий будинок з дерева, в якому можна проживати цілий рік. Щодо планування можна сказати, що площа котеджу 57,8 м2 в основному складає студійне приміщення, в якому можна виділити бажані функціональні зони. Або можна скористатися плануванням, запропонованим архітектором «Домінант» на візуалізації проекту.
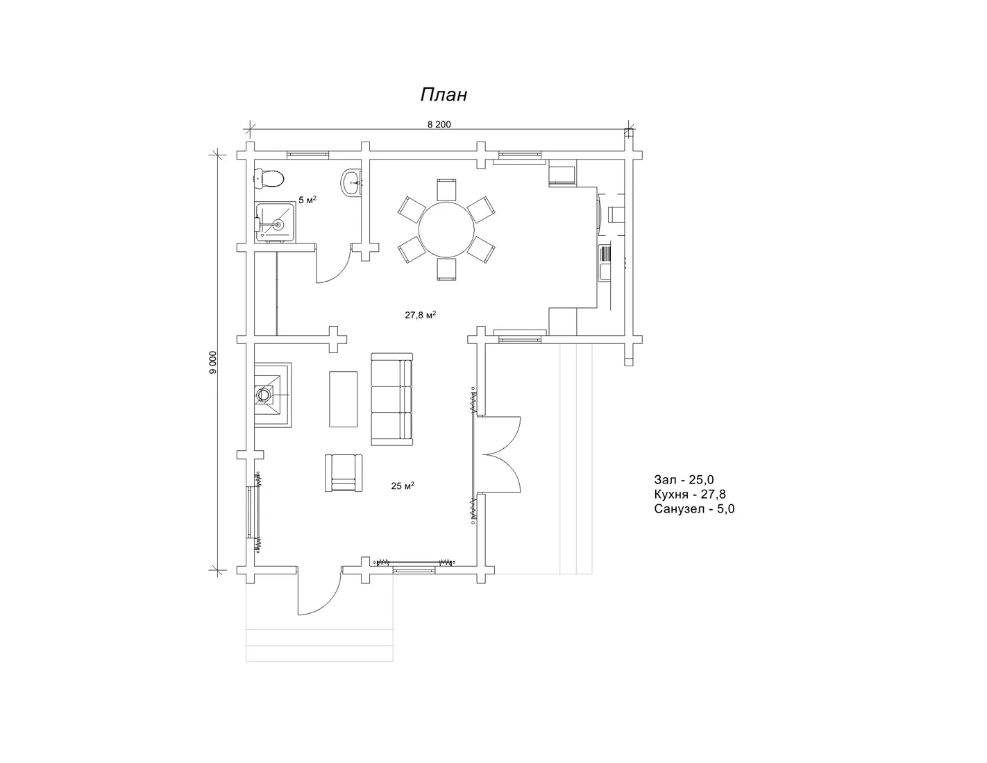
Планування гостьового котеджу з каміном, площа 57,8 м2
Планування гостьового котеджу розташоване на одному поверсі та вміщує зал з кухнею та санвузол. Усередині будиночка передбачено місце для каміна і біля нього можна передбачити величезний обідній стіл, великий м'який диван або розкішне, двоспальне ліжко - все залежить від уподобань господарів. Можна сказати, що планування котеджу «Ратвіс» абсолютно вільне і надає великий простір для фантазії при створенні інтер'єру будиночка з дерева. Габарити будови 9 на 8,2 м, що зручно для розташування котеджу на стандартній земельній ділянці. Придбання котеджу «Ратвіс» подарує вам місце затишку, спокою та наповнення силами самої природи!
- Кількість поверхів
- 1
- Площа
- 57.8
- Ширина
- 9
- Довжина
- 8.2
- Будинки і житлові будови
- Будиночки
Дачі
Котеджі - Кількість кімнат
- Однокімнатні будинки
- Особливості будинків
- Будинки з каміном
- Кількість поверхів споруди
- Одноповерхові будинки
- Будинки з брусу
- Будинки з оциліндрованого брусу
Базова комплектація:
(Що входить в ціну)
- комплект стін;
- комплект крокв;
- комплект балок перекриття;
- утеплювач міжвінцевий;
- антисептик (антисептування всього матеріалу);
- дубові нагеля;
- кріпильні материали (саморізи, усадкові болти, анкера, кріпильні пластини);
- гідроізоляція;
- вогнебіозахист (обробка деревини засобом І групи вогнезахисної ефективності)
208980 грн.
Дах (комплектність):
- Рейка 100*25мм (cосна)
- Контрейка 50*25мм (сосна)
- Металочерепиця МОНТЕРРЕЙ (Польща) 0,45мм
- Коник прямий
- Планка примикання
- Лобова (декоративна) планка
- Вітровая планка
- Яндола
- Капельник (Карнизна планка)
- Ущільнювач універсальный
- Саморізи ОС 4.8х35
- Фарба-спрей
- Гідробар'єр
- Монтаж
105240 грн.
Вікна (комплектність):
- Вікно VEKA 58, колір білий 10
- Імпости вертикальні: 1 x 102103
- Скління: СПО, 24мм, (Rсп=0.36)*
- Тип фурнітури: Activpilot поворотно-відкидна, колір білий
- Підбір спеціальний: Activ микровентиляція; Activ 2-функц. механ.
- Моск.сітка: МС 3
- Підвіконня: ВМ 110мм, колір білий
- Підвіконня: ПВ ПВХ 150, заглушки: 600мм, колір білий
- Монтаж
125400 грн.
Двері (комплектність):
- Полотно
- Коробка
- Лиштва
- Карниз
- Фарбування
- Скло
- Фурнітура
- Врізка фурнітуры
- Монтаж
95480 грн.
Фарбування (комплектність):
- Шліфування торців
- Тришарове покриття ефективним деревозахисним засобом на базі низькомолекулярної алкідної смоли методом розпилення.
Оциліндрований брус
Оциліндрований брус є найбільш оптимальним і поширеним матеріалом для будівництва дерев`яних будинків і бань, бесідок, альтанок, різноманітних садових меблів, дерев`яних конструкцій будь-яких видів. Дерев`яні будинки з оциліндрованого брусу відрізняються красою, всередині такого будинку завжди відчувається особлива затишна атмосфера.
Профільований брус
Найсучаснішим і високотехнологічним будівельним матеріалом в дерев`яному будівництві на сьогоднішній день є профільований брус. Для виробництва профільованого брусу, звичайному дерев`яному брусу на спеціальному деревообробному обладнанні надається певний профіль.
Подвійний брус з утепленням
Головна ідея застосування подвійного бруса полягала в досягненні енергоефективності житла. Над проектуванням енергозберігаючих будинків працюють провідні інженери та архітектори в різних країнах світу, запропонована фінами технологія подвійного бруса дає можливість звести до мінімуму тепловтрати будинку, а також об`єднує переваги будівництва дерев`яного будинку з економічністю споруди.
Клеєний брус
Клеєний брус принципово відрізняється від інших типів колод багатошаровістю. Така структура робить цей дерев’яний матеріал надміцним і витривалим.
Каркасні конструкції
Каркасні конструкції виготовляються на власних виробничих потужностях компанії «Домінант», з використанням сучасних деревообробних станків. Імпортне, високоточне обладнання дозволяє нам високоякісно виконувати свою роботу. Каркаси складаються зі струганих, ретельно висушених балок 150х50 мм (сосна першого сорту). Ці балки застосовуються для зовнішніх каркасів.


















