Зателефонуйте мені
Мольван №1
Мольван №2
Мольван №3
Мольван №4
Мольван №5
Мольван №6
Мольван №1
Мольван №2
Мольван №3
Мольван №4
Мольван №5
Мольван №6
Мольван №1
Мольван №1 Мольван №2 Мольван №3 Мольван №4 Мольван №5 Мольван №6

Мольван

693 647,00 ₴
Будинок з лазнею і гаражем з сухого бруса - «Мольван»
Розмір брусу
  • Оциліндрований 160
  • Оциліндрований 180
  • Оциліндрований 200
  • Оциліндрований 220
  • Профільований 60
  • Профільований 150
  • Профільований 200
  • Подвійний 300
  • Клеєний 120
  • Клеєний 180
Кількість поверхів
1
Площа
120.1
Ширина
8
Довжина
14.9
Будинки і житлові будови
Дачі
Котеджі
Кількість кімнат
Двокімнатні будинки
Особливості будинків
Будинки з банею
Будинки з гаражем
Будинки з терасою
Будинки з ґанком
Будинки з брусу
Будинки з клеєного брусу
Будинки з профільованого брусу
Комерційні будівлі
Бази відпочинку
 

(Що входить в ціну)

Що входить в базову комплектацію

  • комплект стін;
  • комплект крокв;
  • комплект балок перекриття;
  • утеплювач міжвінцевий;
  • антисептик (антисептування всього матеріалу);
  • дубові нагеля;
  • кріпильні материали (саморізи, усадкові болти, анкера, кріпильні пластини);
  • гідроізоляція;
  • вогнебіозахист (обробка деревини засобом І групи вогнезахисної ефективності)

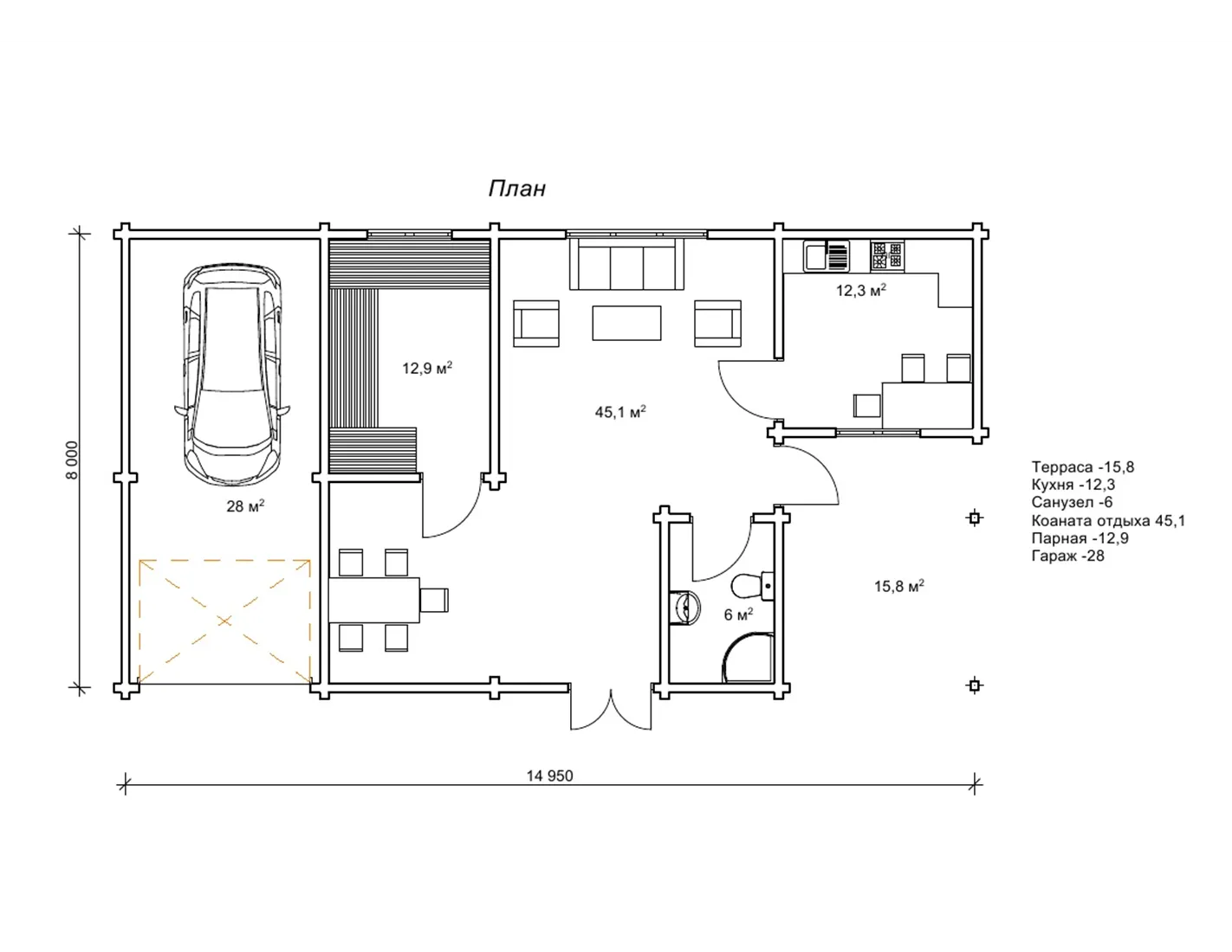
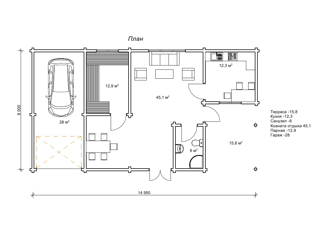
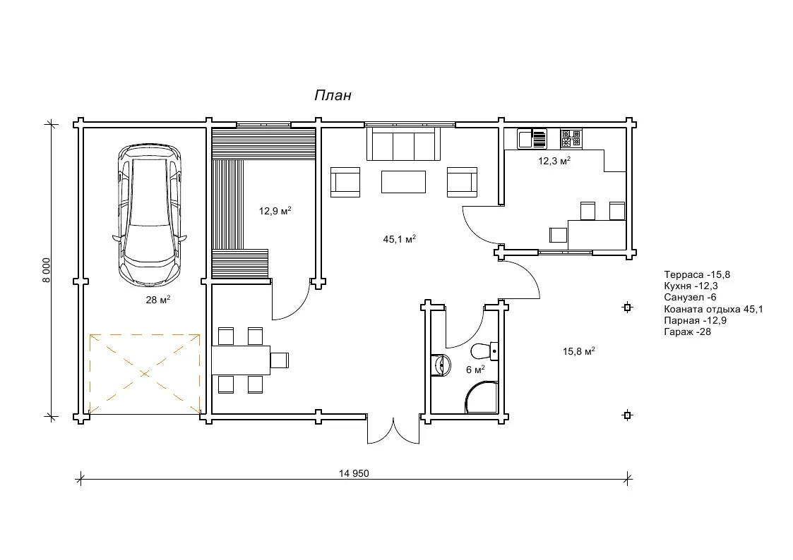
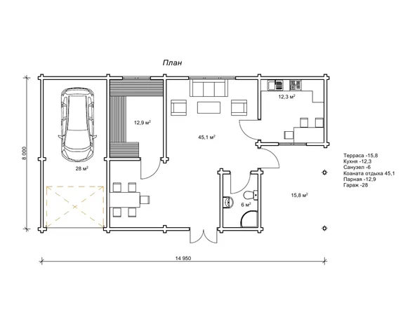
Проект будинку з лазнею і гаражем 8 на 14,9 м

Будинок, в якому є парилка і передбачений гараж, обов’язково сподобається всім, хто хоче максимально зручно організувати своє заміське дозвілля або зробити капіталовкладення в бізнес. Справа в тому, що проект будинку з лазнею «Мольван» вміщує всі зручності для приємного проведення часу і відрізняється лаконічним, акуратним зовнішнім виглядом. Цей будинок можна розглядати в якості заміського будиночка відпочинку або курортного котеджу, який можна здавати в оренду, отримуючи чималий прибуток.

План будинку з лазнею на 12,9 м2 і гаражем

Одноповерховий брусових будиночок «Мольван» вміщує просторе приміщення кімнати відпочинку площею 45,1 м2, окрему кухню, санвузол і велику парилку на 12,9 м2. Також в будиночку спроектований санвузол і є відкрита тераса площею 15,8 м2. Дуже важливою деталлю проекту виступає гараж, тому «Мольван» буде особливо зручним для власників авто. Таке планування особливо підходить для відпочинку великої компанії, адже в парильні можна розмістити більше десяти чоловік. Це прекрасне місце для свят і дозвілля на природі, яке ще більше скрашує наявність баньки. При бажанні можна обладнати кухонну робочу поверхню прямо в кімнаті відпочинку, а в приміщенні кухні розташувати спальню. Тоді будиночок «Мольван» можна розглядати як повноцінний заміський будинок, де можна залишатися на тривалий час і взимку, і влітку, особливо якщо вибрати для побудови сухої профільований брус великих розмірів - 150*150 мм або 200* 150 мм.

Будівництво хмарочоса-лазні з гаражем «Мольван»

Якщо у вас велике коло спілкування, багато родичів і ви просто обожнюєте відпочинок у великій і веселій компанії - будівництво будинку-лазні з гаражем по проекту «Мольван» допоможе вам чудово організувати таке дозвілля. Крім того, якщо побудувати такий будиночок з сухого профільованого бруса в комерційних цілях, він буде успішно орендуватися і справно приносити прибуток своєму господареві. Будиночок «Мольван» - це найкраще місце для втілення в життя радощів спілкування, банного відпочинку і єднання з природою!

Кількість поверхів
1
Площа
120.1
Ширина
8
Довжина
14.9
Будинки і житлові будови
Дачі
Котеджі
Кількість кімнат
Двокімнатні будинки
Особливості будинків
Будинки з банею
Будинки з гаражем
Будинки з терасою
Будинки з ґанком
Будинки з брусу
Будинки з клеєного брусу
Будинки з профільованого брусу
Комерційні будівлі
Бази відпочинку

Базова комплектація:
(Що входить в ціну)

Що входить в базову комплектацію

  • комплект стін;
  • комплект крокв;
  • комплект балок перекриття;
  • утеплювач міжвінцевий;
  • антисептик (антисептування всього матеріалу);
  • дубові нагеля;
  • кріпильні материали (саморізи, усадкові болти, анкера, кріпильні пластини);
  • гідроізоляція;
  • вогнебіозахист (обробка деревини засобом І групи вогнезахисної ефективності)

396090 грн.

Дах (комплектність):

  • Рейка 100*25мм (cосна)
  • Контрейка 50*25мм (сосна)
  • Металочерепиця МОНТЕРРЕЙ (Польща) 0,45мм
  • Коник прямий
  • Планка примикання
  • Лобова (декоративна) планка
  • Вітровая планка
  • Яндола
  • Капельник (Карнизна планка)
  • Ущільнювач універсальный
  • Саморізи ОС 4.8х35
  • Фарба-спрей
  • Гідробар'єр
  • Монтаж

122780 грн.

Вікна (комплектність):

  • Вікно VEKA 58, колір білий 10
  • Імпости вертикальні: 1 x 102103
  • Скління: СПО, 24мм, (Rсп=0.36)*
  • Тип фурнітури: Activpilot поворотно-відкидна, колір білий
  • Підбір спеціальний: Activ микровентиляція; Activ 2-функц. механ.
  • Моск.сітка: МС 3
  • Підвіконня: ВМ 110мм, колір білий
  • Підвіконня: ПВ ПВХ 150, заглушки: 600мм, колір білий
  • Монтаж

125400 грн.

Двері (комплектність):

  • Полотно
  • Коробка
  • Лиштва
  • Карниз
  • Фарбування
  • Скло
  • Фурнітура
  • Врізка фурнітуры
  • Монтаж

98084 грн.

Фарбування (комплектність):

  • Шліфування торців
  • Тришарове покриття ефективним деревозахисним засобом на базі низькомолекулярної алкідної смоли методом розпилення.

Параметри забудови

  • Кількість поверхів: 1
  • Площа: 120.1

Розмір забудови

  • Ширина: 8
  • Довжина: 14.9

Перший поверх

тераса (м²)15,8
кухня (м²)12,3
санвузел(м²)6
кімната відпочинку (м²)45,1
парна (м²)12,9
гараж (м²)28

Оциліндрований брус

Оциліндрований брус є найбільш оптимальним і поширеним матеріалом для будівництва дерев`яних будинків і бань, бесідок, альтанок, різноманітних садових меблів, дерев`яних конструкцій будь-яких видів. Дерев`яні будинки з оциліндрованого брусу відрізняються красою, всередині такого будинку завжди відчувається особлива затишна атмосфера.

Читати далі...

Профільований брус

Найсучаснішим і високотехнологічним будівельним матеріалом в дерев`яному будівництві на сьогоднішній день є профільований брус. Для виробництва профільованого брусу, звичайному дерев`яному брусу на спеціальному деревообробному обладнанні надається певний профіль.

Читати далі...

Подвійний брус з утепленням

Головна ідея застосування подвійного бруса полягала в досягненні енергоефективності житла. Над проектуванням енергозберігаючих будинків працюють провідні інженери та архітектори в різних країнах світу, запропонована фінами технологія подвійного бруса дає можливість звести до мінімуму тепловтрати будинку, а також об`єднує переваги будівництва дерев`яного будинку з економічністю споруди.

Читати далі...

Клеєний брус

Клеєний брус принципово відрізняється від інших типів колод багатошаровістю. Така структура робить цей дерев’яний матеріал надміцним і витривалим.

Читати далі...

Каркасні конструкції

Каркасні конструкції виготовляються на власних виробничих потужностях компанії «Домінант», з використанням сучасних деревообробних станків. Імпортне, високоточне обладнання дозволяє нам високоякісно виконувати свою роботу. Каркаси складаються зі струганих, ретельно висушених балок 150х50 мм (сосна першого сорту). Ці балки застосовуються для зовнішніх каркасів.

Читати далі...

Немає відгуків

Переглянуті товари

16 інших товарів в цій категорії:

Товар додано для порівняння.