Зателефонуйте мені
Гора №1
Гора №2
Гора №3
Гора №4
Гора №5
Гора №6
Гора №7
Гора №8
Гора №1
Гора №2
Гора №3
Гора №4
Гора №5
Гора №6
Гора №7
Гора №8
Гора №1
Гора №1 Гора №2 Гора №3 Гора №4 Гора №5 Гора №6 Гора №7 Гора №8

Гора

1 389 491,00 ₴
Будинок з бруса під ключ 12 на 12,4 м - «Гора»
Розмір брусу
  • Оциліндрований 160
  • Оциліндрований 180
  • Оциліндрований 200
  • Оциліндрований 220
  • Профільований 60
  • Профільований 150
  • Профільований 200
  • Подвійний 300
  • Клеєний 120
  • Клеєний 180
Кількість поверхів
2
Площа
190.8
Ширина
12.1
Довжина
12.4
Будинки і житлові будови
Котеджі
Кількість кімнат
Шестикімнатні будинки
Особливості будинків
Будинки з балконом
Будинки з котельнею
Будинки з мансардою
Будинки зі сходами
Кількість поверхів споруди
Двоповерхові будинки
Будинки з брусу
Будинки з оциліндрованого брусу
 

(Що входить в ціну)

Що входить в базову комплектацію

  • комплект стін;
  • комплект крокв;
  • комплект балок перекриття;
  • утеплювач міжвінцевий;
  • антисептик (антисептування всього матеріалу);
  • дубові нагеля;
  • кріпильні материали (саморізи, усадкові болти, анкера, кріпильні пластини);
  • гідроізоляція;
  • вогнебіозахист (обробка деревини засобом І групи вогнезахисної ефективності)

Гора dominant-wood.com.ua/uk/proekty/347-gora - це цікавий проект особняка з чотирма спальнями. Він дійсно виділяється своєю формою і зовнішнім виглядом. Форма будови асиметрична і багатокутна. Дах комбінований - з одного боку двосхилий, з іншого боку перетворюється в шале. Сходові прольоти в екстер’єрі підкреслені витягнутими вікнами, що також створює окрему своєрідну форму будинку. Зона залу і однієї зі спалень видаються у вигляді напівбашточки і надають внутрішній обстановці особливого виду. Дзеркальні боки фасадів з напівзакритими балконами роблять будинок об’ємним для сприйняття зовні. Ті ж балкони мають окремі виходи з кожної спальні і є загальною зоною відпочинку. Так, передбачається, що одну половину із загальним балконом займуть батьки, а іншу - їхні діти. Такий хід з розподілом кімнат створює окремий привід для об’єднання сім’ї та їх згуртованості.

У внутрішньому плануванні першого поверху простежується продуманість автора так, як всі кімнати мають 2 виходи і є прохідними. Це дуже зручно при переміщенні по дому. Дві кімнати, що об’єдналися в одну зону, грають роль загальної зони для прийому гостей. Будинок всередині дуже світлий і гостинний. Він створений для щасливої родини, щоб радувати її своїм затишком і теплом. У будинку два виходи, що ділить його на зони: загальну для фасаду та внутрішнього дворика. Тому краще розмістити його головним фасадом з балконом, де немає окремого виходу на сторону вулиці, тоді внутрішній дворик дійсно буде зоною вашого особистого комфорту і буде закритий від чужих поглядів.

Проект Гора стане справжнім вашим притулком. Будь-які нюанси компанія «Домінант» dominant-wood.com.ua/ відкоригує і вдосконалює для вас згідно з вашими побажаннями.

Кількість поверхів
2
Площа
190.8
Ширина
12.1
Довжина
12.4
Будинки і житлові будови
Котеджі
Кількість кімнат
Шестикімнатні будинки
Особливості будинків
Будинки з балконом
Будинки з котельнею
Будинки з мансардою
Будинки зі сходами
Кількість поверхів споруди
Двоповерхові будинки
Будинки з брусу
Будинки з оциліндрованого брусу

Базова комплектація:
(Що входить в ціну)

Що входить в базову комплектацію

  • комплект стін;
  • комплект крокв;
  • комплект балок перекриття;
  • утеплювач міжвінцевий;
  • антисептик (антисептування всього матеріалу);
  • дубові нагеля;
  • кріпильні материали (саморізи, усадкові болти, анкера, кріпильні пластини);
  • гідроізоляція;
  • вогнебіозахист (обробка деревини засобом І групи вогнезахисної ефективності)

442260 грн.

Дах (комплектність):

  • Рейка 100*25мм (cосна)
  • Контрейка 50*25мм (сосна)
  • Металочерепиця МОНТЕРРЕЙ (Польща) 0,45мм
  • Коник прямий
  • Планка примикання
  • Лобова (декоративна) планка
  • Вітровая планка
  • Яндола
  • Капельник (Карнизна планка)
  • Ущільнювач універсальный
  • Саморізи ОС 4.8х35
  • Фарба-спрей
  • Гідробар'єр
  • Монтаж

315720 грн.

Вікна (комплектність):

  • Вікно VEKA 58, колір білий 10
  • Імпости вертикальні: 1 x 102103
  • Скління: СПО, 24мм, (Rсп=0.36)*
  • Тип фурнітури: Activpilot поворотно-відкидна, колір білий
  • Підбір спеціальний: Activ микровентиляція; Activ 2-функц. механ.
  • Моск.сітка: МС 3
  • Підвіконня: ВМ 110мм, колір білий
  • Підвіконня: ПВ ПВХ 150, заглушки: 600мм, колір білий
  • Монтаж

0 грн.

Двері (комплектність):

  • Полотно
  • Коробка
  • Лиштва
  • Карниз
  • Фарбування
  • Скло
  • Фурнітура
  • Врізка фурнітуры
  • Монтаж

173600 грн.

Фарбування (комплектність):

  • Шліфування торців
  • Тришарове покриття ефективним деревозахисним засобом на базі низькомолекулярної алкідної смоли методом розпилення.

Параметри забудови

  • Кількість поверхів: 2
  • Площа: 190.8

Розмір забудови

  • Ширина: 12.1
  • Довжина: 12.4

Перший поверх

кімната (м²)14,7
кімната (м²)24,7
кухня (м²)16
с/в (м²)4,5
топкова (м²)10,2
хол (м²)17,9

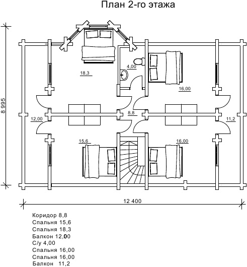
Другий поверх

балкон (м²)12
балкон (м²)11,2
коридор (м²)8,8
с/в (м²)4
спальня (м²)15,6
спальня (м²)16
спальня (м²)16
спальня (м²)18,3

Оциліндрований брус

Оциліндрований брус є найбільш оптимальним і поширеним матеріалом для будівництва дерев`яних будинків і бань, бесідок, альтанок, різноманітних садових меблів, дерев`яних конструкцій будь-яких видів. Дерев`яні будинки з оциліндрованого брусу відрізняються красою, всередині такого будинку завжди відчувається особлива затишна атмосфера.

Читати далі...

Профільований брус

Найсучаснішим і високотехнологічним будівельним матеріалом в дерев`яному будівництві на сьогоднішній день є профільований брус. Для виробництва профільованого брусу, звичайному дерев`яному брусу на спеціальному деревообробному обладнанні надається певний профіль.

Читати далі...

Подвійний брус з утепленням

Головна ідея застосування подвійного бруса полягала в досягненні енергоефективності житла. Над проектуванням енергозберігаючих будинків працюють провідні інженери та архітектори в різних країнах світу, запропонована фінами технологія подвійного бруса дає можливість звести до мінімуму тепловтрати будинку, а також об`єднує переваги будівництва дерев`яного будинку з економічністю споруди.

Читати далі...

Клеєний брус

Клеєний брус принципово відрізняється від інших типів колод багатошаровістю. Така структура робить цей дерев’яний матеріал надміцним і витривалим.

Читати далі...

Каркасні конструкції

Каркасні конструкції виготовляються на власних виробничих потужностях компанії «Домінант», з використанням сучасних деревообробних станків. Імпортне, високоточне обладнання дозволяє нам високоякісно виконувати свою роботу. Каркаси складаються зі струганих, ретельно висушених балок 150х50 мм (сосна першого сорту). Ці балки застосовуються для зовнішніх каркасів.

Читати далі...

Немає відгуків

Переглянуті товари

16 інших товарів в цій категорії:

Товар додано для порівняння.