Жартіна
- Кількість поверхів
- 2
- Площа
- 220.08
- Ширина
- 10.6
- Довжина
- 10.8
- Будинки і житлові будови
- Котеджі
Маєтки
Садиби - Кількість кімнат
- Чотирикімнатні будинки
- Особливості будинків
- Будинки з балконом
Будинки з мансардою
Будинки з терасою
Будинки зі сходами - Кількість поверхів споруди
- Двоповерхові будинки
(Що входить в ціну)
- комплект стін;
- комплект крокв;
- комплект балок перекриття;
- утеплювач міжвінцевий;
- антисептик (антисептування всього матеріалу);
- дубові нагеля;
- кріпильні материали (саморізи, усадкові болти, анкера, кріпильні пластини);
- гідроізоляція;
- вогнебіозахист (обробка деревини засобом І групи вогнезахисної ефективності)
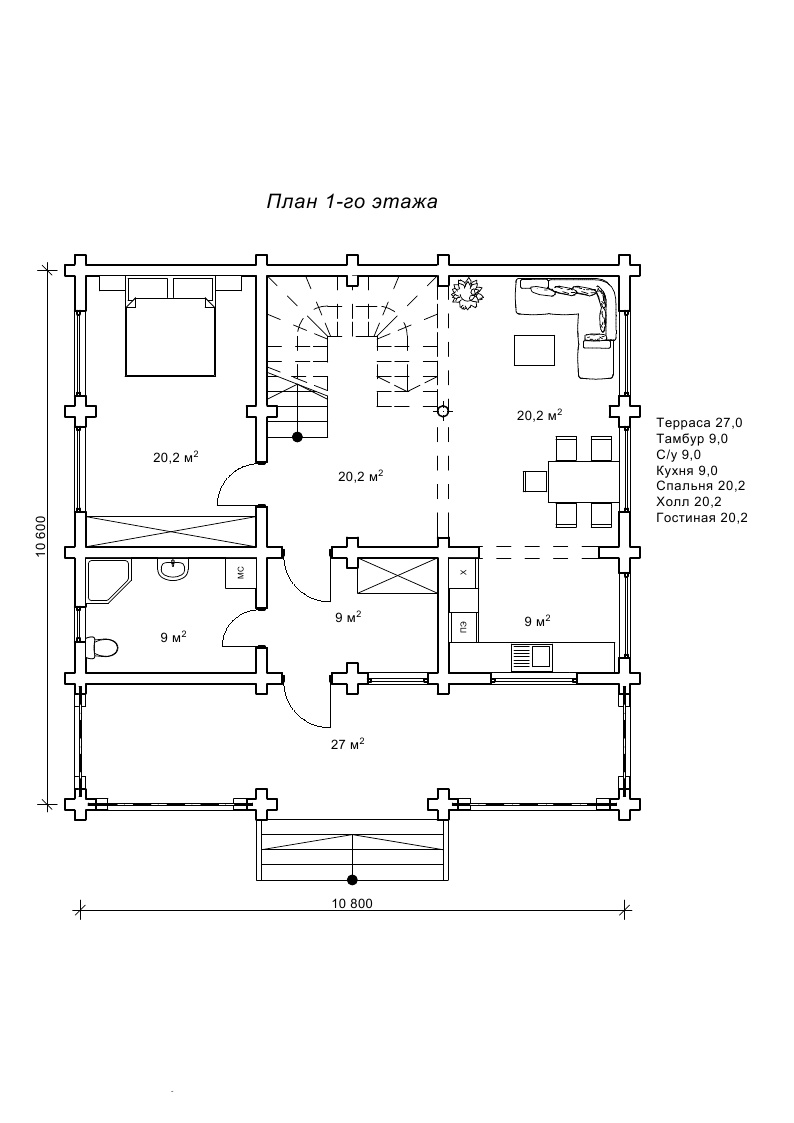
Для всіх, хто бажає переїхати з галасливого мегаполісу в спокійну атмосферу заміського маєтку, проект Жартіна dominant-wood.com.ua/uk/proekty/344-zhartina представляє відмінний шанс для втілення цієї ідеї. Якщо ви бажаєте насолоджуватися великою кількістю свіжого повітря, снідати на веранді, ходити влітку по двору в купальнику - це все можна здійснити в особняку Жартіна. Мальовничий, дерев’яний будинок являє собою втілення всіх побажань, які тільки можуть стосуватися проживання за містом у власному будинку.
Проект Жартіна виконаний в оциліндрованому брусі на два поверхи, які включають просторі, світлі приміщення спалень, вітальні, кухні, тераси. Увійшовши до будинку, з тамбура відразу потрапляєш в студійний простір, який утворюється холом, вітальнею і кухнею. Таке планування особливо відкриває широту простору і можливості для реалізації цікавого дизайнерського оформлення інтер’єру. Дуже зручним рішенням планування виступає наявність спальні на першому поверсі. Такий варіант підходить для сімей, де підростають маленькі діти або є літні родичі, яким важко весь час підніматися і спускатися по сходах. Дуже зручною кімната буде для гостей, які приїдуть погостювати довше. Сучасний замовник, без сумніву, оцінить наявність в будинку балкончика і великої літньої тераси, де можна проводити багато часу в теплі, літні місяці.
Проект Жартіна радує не тільки красою і зручним плануванням, а й привабливою вартістю споруди. Все, що входить у вартість, зазначено прямо на сторінці з проектом у базовій комплектації. Красива, світла садиба Жартіна від компанії «Домінант» dominant-wood.com.ua/uk/ стане довговічним родинним гніздом для багатьох поколінь!
- Кількість поверхів
- 2
- Площа
- 220.08
- Ширина
- 10.6
- Довжина
- 10.8
- Будинки і житлові будови
- Котеджі
Маєтки
Садиби - Кількість кімнат
- Чотирикімнатні будинки
- Особливості будинків
- Будинки з балконом
Будинки з мансардою
Будинки з терасою
Будинки зі сходами - Кількість поверхів споруди
- Двоповерхові будинки
Базова комплектація:
(Що входить в ціну)
- комплект стін;
- комплект крокв;
- комплект балок перекриття;
- утеплювач міжвінцевий;
- антисептик (антисептування всього матеріалу);
- дубові нагеля;
- кріпильні материали (саморізи, усадкові болти, анкера, кріпильні пластини);
- гідроізоляція;
- вогнебіозахист (обробка деревини засобом І групи вогнезахисної ефективності)
884520 грн.
Дах (комплектність):
- Рейка 100*25мм (cосна)
- Контрейка 50*25мм (сосна)
- Металочерепиця МОНТЕРРЕЙ (Польща) 0,45мм
- Коник прямий
- Планка примикання
- Лобова (декоративна) планка
- Вітровая планка
- Яндола
- Капельник (Карнизна планка)
- Ущільнювач універсальный
- Саморізи ОС 4.8х35
- Фарба-спрей
- Гідробар'єр
- Монтаж
631440 грн.
Вікна (комплектність):
- Вікно VEKA 58, колір білий 10
- Імпости вертикальні: 1 x 102103
- Скління: СПО, 24мм, (Rсп=0.36)*
- Тип фурнітури: Activpilot поворотно-відкидна, колір білий
- Підбір спеціальний: Activ микровентиляція; Activ 2-функц. механ.
- Моск.сітка: МС 3
- Підвіконня: ВМ 110мм, колір білий
- Підвіконня: ПВ ПВХ 150, заглушки: 600мм, колір білий
- Монтаж
0 грн.
Двері (комплектність):
- Полотно
- Коробка
- Лиштва
- Карниз
- Фарбування
- Скло
- Фурнітура
- Врізка фурнітуры
- Монтаж
197904 грн.
Фарбування (комплектність):
- Шліфування торців
- Тришарове покриття ефективним деревозахисним засобом на базі низькомолекулярної алкідної смоли методом розпилення.
Оциліндрований брус
Оциліндрований брус є найбільш оптимальним і поширеним матеріалом для будівництва дерев`яних будинків і бань, бесідок, альтанок, різноманітних садових меблів, дерев`яних конструкцій будь-яких видів. Дерев`яні будинки з оциліндрованого брусу відрізняються красою, всередині такого будинку завжди відчувається особлива затишна атмосфера.
Профільований брус
Найсучаснішим і високотехнологічним будівельним матеріалом в дерев`яному будівництві на сьогоднішній день є профільований брус. Для виробництва профільованого брусу, звичайному дерев`яному брусу на спеціальному деревообробному обладнанні надається певний профіль.
Подвійний брус з утепленням
Головна ідея застосування подвійного бруса полягала в досягненні енергоефективності житла. Над проектуванням енергозберігаючих будинків працюють провідні інженери та архітектори в різних країнах світу, запропонована фінами технологія подвійного бруса дає можливість звести до мінімуму тепловтрати будинку, а також об`єднує переваги будівництва дерев`яного будинку з економічністю споруди.
Клеєний брус
Клеєний брус принципово відрізняється від інших типів колод багатошаровістю. Така структура робить цей дерев’яний матеріал надміцним і витривалим.
Каркасні конструкції
Каркасні конструкції виготовляються на власних виробничих потужностях компанії «Домінант», з використанням сучасних деревообробних станків. Імпортне, високоточне обладнання дозволяє нам високоякісно виконувати свою роботу. Каркаси складаються зі струганих, ретельно висушених балок 150х50 мм (сосна першого сорту). Ці балки застосовуються для зовнішніх каркасів.












