Свобода2
- Кількість поверхів
- 2
- Площа
- 184
- Ширина
- 8
- Довжина
- 15
- Будинки і житлові будови
- Котеджі
Маєтки
Садиби - Кількість кімнат
- П’ятикімнатні будинки
- Особливості будинків
- Будинки з мансардою
Будинки з терасою
Будинки зі сходами - Кількість поверхів споруди
- Двоповерхові будинки
- Будинки з брусу
- Будинки з оциліндрованого брусу
(Що входить в ціну)
- комплект стін;
- комплект крокв;
- комплект балок перекриття;
- утеплювач міжвінцевий;
- антисептик (антисептування всього матеріалу);
- дубові нагеля;
- кріпильні материали (саморізи, усадкові болти, анкера, кріпильні пластини);
- гідроізоляція;
- вогнебіозахист (обробка деревини засобом І групи вогнезахисної ефективності)
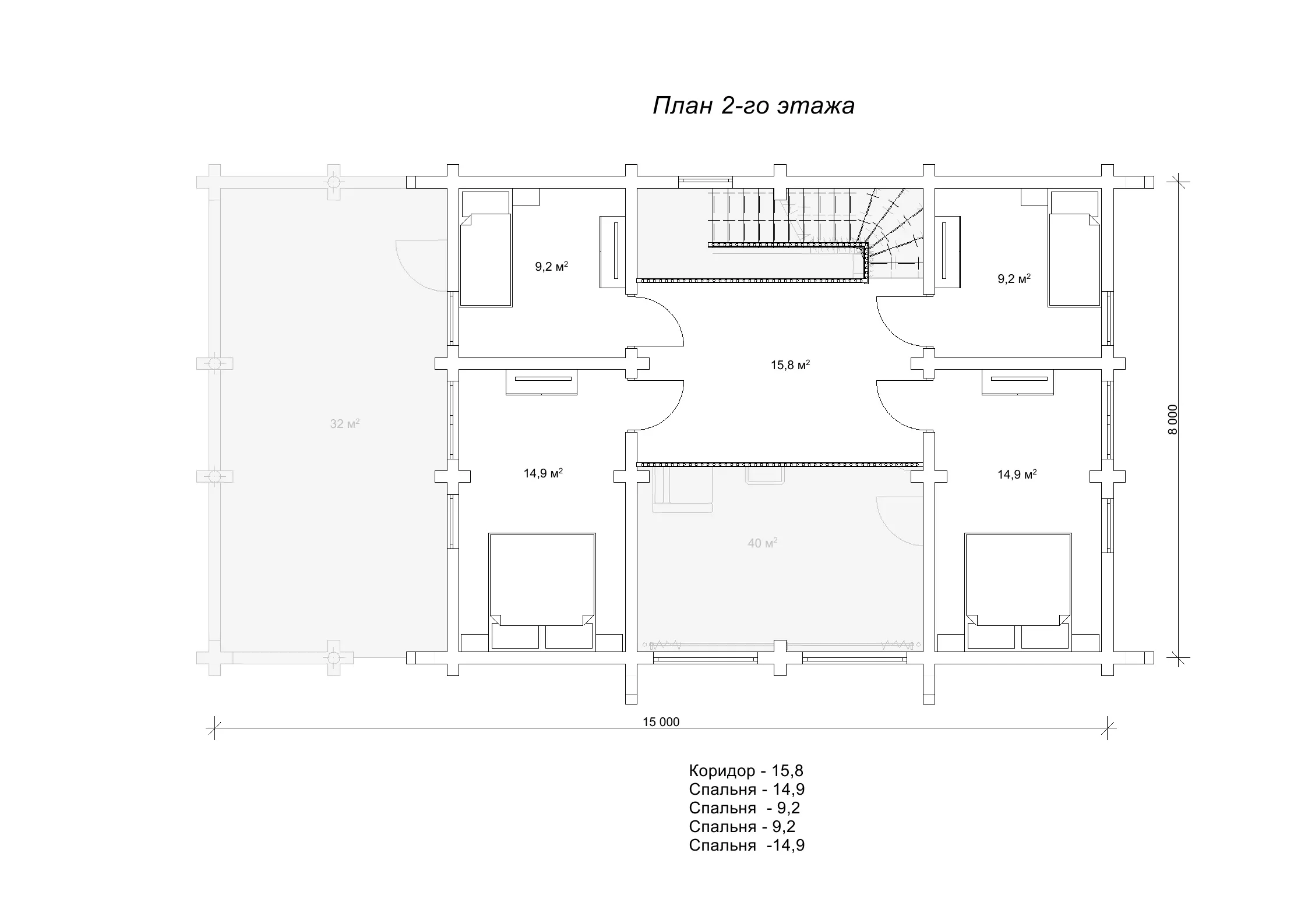
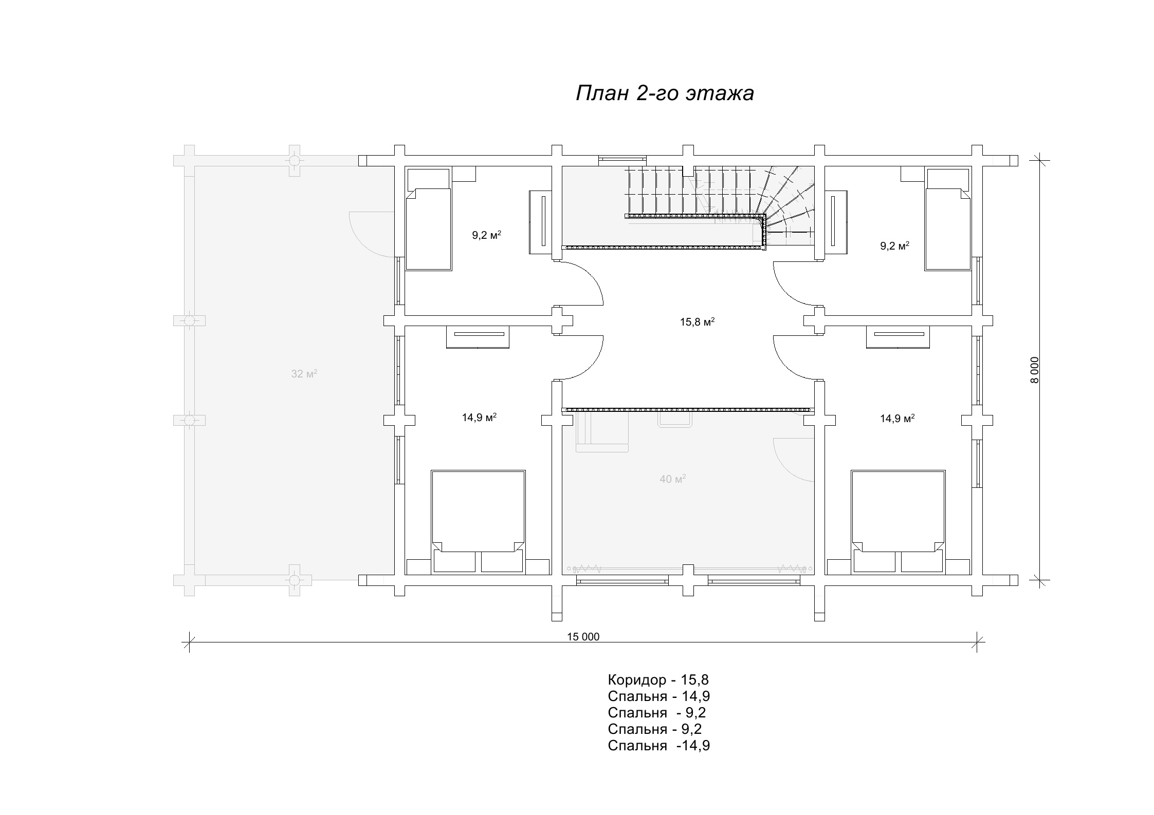
Проект маєтка «Свобода2» на чотири спальні з другим світлом
Проект «Свобода2» уособлює стабільність, благополуччя та служить вибором для тих, хто хоче побудувати сімейне гніздо на віки. Цей розкішний маєток з колод створений на основі проекту «Свобода» з деякими змінами дизайну та планування без змін площі будівлі. Головні відмінності нової версії в порівнянні з колишньою – це додавання спальні, панорамних вікон та створення другого світла. Завдяки такому стильному оновленню будинок заграв яскравими фарбами, наповнився світлом, а внутрішній простір ще більше розширився. Стильний, добротний маєток стане найкращим довгостроковим вкладенням у високу якість життя. А велика кількість житлових кімнат зробить життя в маєтку «Свобода2» ще комфортнішим.
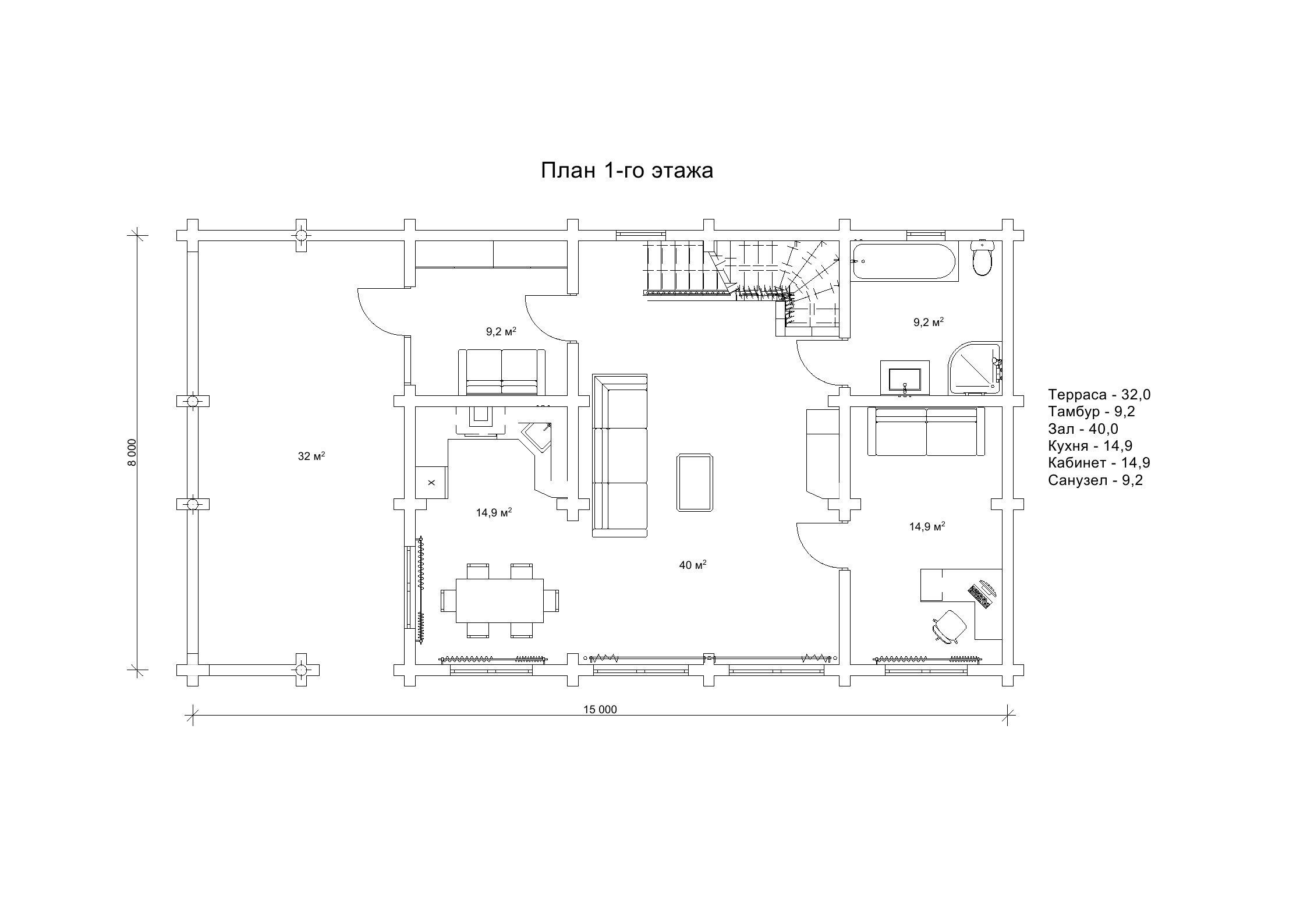
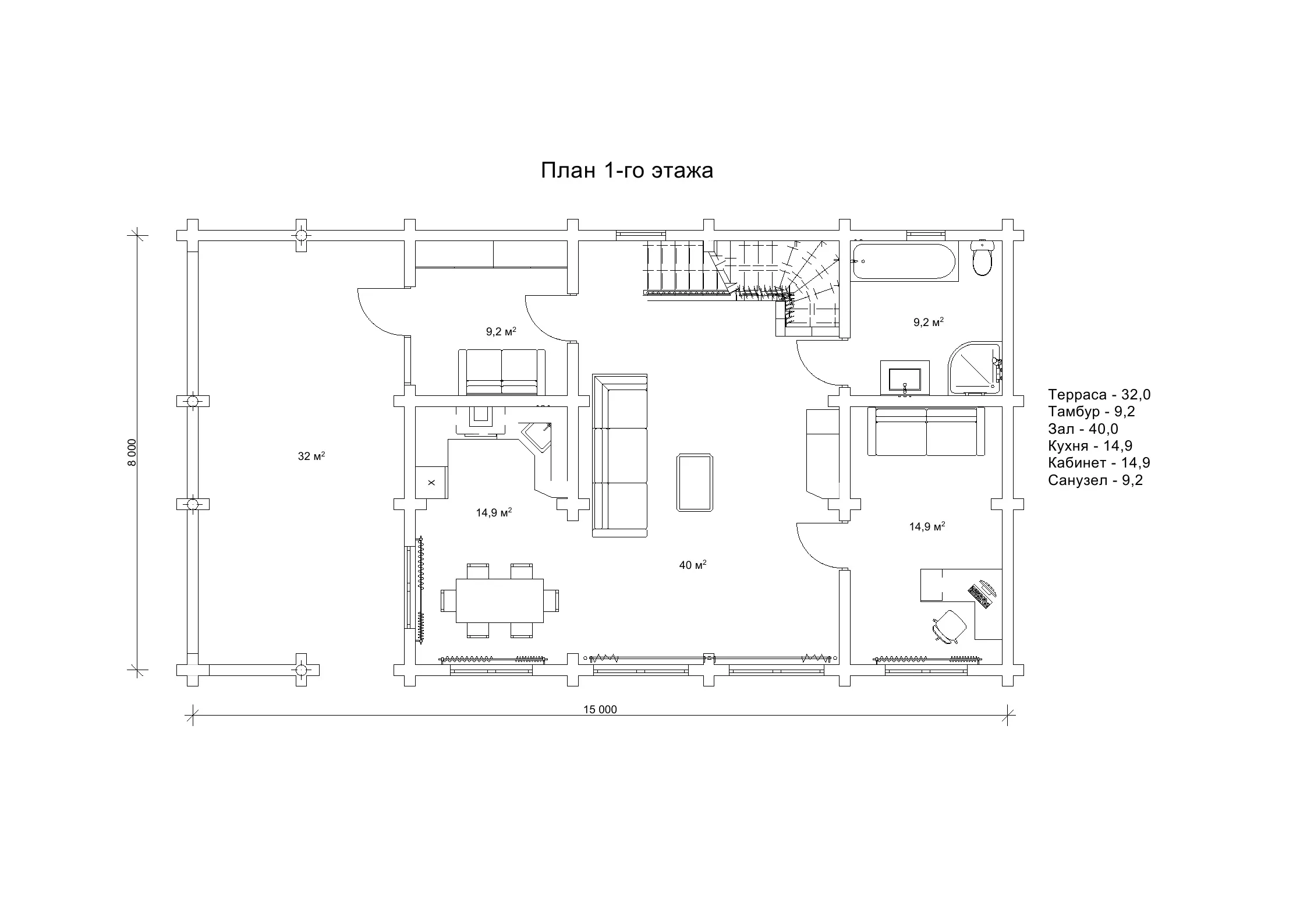
Будівництво маєтка на чотири спальні з другим світлом, площа 184 м ²
В параметрах споруди 8 на 15 м велика сім'я почуватиметься вільно та комфортно. Кожен знайде тут свій улюблений куточок. Наприклад, улюбленим місцем у будинку може стати велика тераса розміром 32 м2 або вітальня з високими стелями та балкончиком другого світла. Зверніть увагу, що крім суто функціонального набору приміщень у будинку ще сплановано кабінет. Маючи свій домашній офіс можна зручно налаштувати віддалену роботу або навчання, що так актуально в епоху пандемій та воєн. «Які бувають кімнати в дерев'яному будинку?» можна прочитати в розділі нашого сайту «Статті». Дуже важливо в будинку спланувати кімнату для занять хобі, кабінет або творчу майстерню, щоб лихоліття переносилося легше, щоб була своя віддушина. Тим більше це легко можна влаштувати в маєтку «Свобода2», де достатньо свободи для оригінальних планувальних рішень!
- Кількість поверхів
- 2
- Площа
- 184
- Ширина
- 8
- Довжина
- 15
- Будинки і житлові будови
- Котеджі
Маєтки
Садиби - Кількість кімнат
- П’ятикімнатні будинки
- Особливості будинків
- Будинки з мансардою
Будинки з терасою
Будинки зі сходами - Кількість поверхів споруди
- Двоповерхові будинки
- Будинки з брусу
- Будинки з оциліндрованого брусу
Базова комплектація:
(Що входить в ціну)
- комплект стін;
- комплект крокв;
- комплект балок перекриття;
- утеплювач міжвінцевий;
- антисептик (антисептування всього матеріалу);
- дубові нагеля;
- кріпильні материали (саморізи, усадкові болти, анкера, кріпильні пластини);
- гідроізоляція;
- вогнебіозахист (обробка деревини засобом І групи вогнезахисної ефективності)
449550 грн.
Дах (комплектність):
- Рейка 100*25мм (cосна)
- Контрейка 50*25мм (сосна)
- Металочерепиця МОНТЕРРЕЙ (Польща) 0,45мм
- Коник прямий
- Планка примикання
- Лобова (декоративна) планка
- Вітровая планка
- Яндола
- Капельник (Карнизна планка)
- Ущільнювач універсальный
- Саморізи ОС 4.8х35
- Фарба-спрей
- Гідробар'єр
- Монтаж
526200 грн.
Вікна (комплектність):
- Вікно VEKA 58, колір білий 10
- Імпости вертикальні: 1 x 102103
- Скління: СПО, 24мм, (Rсп=0.36)*
- Тип фурнітури: Activpilot поворотно-відкидна, колір білий
- Підбір спеціальний: Activ микровентиляція; Activ 2-функц. механ.
- Моск.сітка: МС 3
- Підвіконня: ВМ 110мм, колір білий
- Підвіконня: ПВ ПВХ 150, заглушки: 600мм, колір білий
- Монтаж
376200 грн.
Двері (комплектність):
- Полотно
- Коробка
- Лиштва
- Карниз
- Фарбування
- Скло
- Фурнітура
- Врізка фурнітуры
- Монтаж
263004 грн.
Фарбування (комплектність):
- Шліфування торців
- Тришарове покриття ефективним деревозахисним засобом на базі низькомолекулярної алкідної смоли методом розпилення.
Оциліндрований брус
Оциліндрований брус є найбільш оптимальним і поширеним матеріалом для будівництва дерев`яних будинків і бань, бесідок, альтанок, різноманітних садових меблів, дерев`яних конструкцій будь-яких видів. Дерев`яні будинки з оциліндрованого брусу відрізняються красою, всередині такого будинку завжди відчувається особлива затишна атмосфера.
Профільований брус
Найсучаснішим і високотехнологічним будівельним матеріалом в дерев`яному будівництві на сьогоднішній день є профільований брус. Для виробництва профільованого брусу, звичайному дерев`яному брусу на спеціальному деревообробному обладнанні надається певний профіль.
Подвійний брус з утепленням
Головна ідея застосування подвійного бруса полягала в досягненні енергоефективності житла. Над проектуванням енергозберігаючих будинків працюють провідні інженери та архітектори в різних країнах світу, запропонована фінами технологія подвійного бруса дає можливість звести до мінімуму тепловтрати будинку, а також об`єднує переваги будівництва дерев`яного будинку з економічністю споруди.
Клеєний брус
Клеєний брус принципово відрізняється від інших типів колод багатошаровістю. Така структура робить цей дерев’яний матеріал надміцним і витривалим.
Каркасні конструкції
Каркасні конструкції виготовляються на власних виробничих потужностях компанії «Домінант», з використанням сучасних деревообробних станків. Імпортне, високоточне обладнання дозволяє нам високоякісно виконувати свою роботу. Каркаси складаються зі струганих, ретельно висушених балок 150х50 мм (сосна першого сорту). Ці балки застосовуються для зовнішніх каркасів.




















