Зателефонуйте мені
Свобода №1
Свобода №2
Свобода №3
Свобода №4
Свобода №5
Свобода №6
Свобода №7
Свобода №1
Свобода №2
Свобода №3
Свобода №4
Свобода №5
Свобода №6
Свобода №7
Свобода №1
Свобода №1 Свобода №2 Свобода №3 Свобода №4 Свобода №5 Свобода №6 Свобода №7

Свобода

1 388 895,00 ₴
Сучасне будівництво котеджу 8 на 15 м - «Свобода»
Розмір брусу
  • Оциліндрований 160
  • Оциліндрований 180
  • Оциліндрований 200
  • Оциліндрований 220
  • Профільований 60
  • Профільований 150
  • Профільований 200
  • Подвійний 300
  • Клеєний 120
  • Клеєний 180
Кількість поверхів
3
Площа
183.2
Ширина
8
Довжина
15
Будинки і житлові будови
Котеджі
Кількість кімнат
Чотирикімнатні будинки
Особливості будинків
Будинки з балконом
Будинки з мансардою
Будинки з терасою
Будинки зі сходами
Кількість поверхів споруди
Триповерхові будинки
Будинки з брусу
Будинки з оциліндрованого брусу
 

(Що входить в ціну)

Що входить в базову комплектацію

  • комплект стін;
  • комплект крокв;
  • комплект балок перекриття;
  • утеплювач міжвінцевий;
  • антисептик (антисептування всього матеріалу);
  • дубові нагеля;
  • кріпильні материали (саморізи, усадкові болти, анкера, кріпильні пластини);
  • гідроізоляція;
  • вогнебіозахист (обробка деревини засобом І групи вогнезахисної ефективності)

Котедж «Свобода» - це розкішний триповерховий будинок з брусу в стилі шалє. Перший поверх даного котеджу виконаний з каменя, дерев’яна частина включає три спальні, три санвузли, зал, кухню, терасу зі сходами, балкон. Такий стильний, добротний будинок з каменю і дерева відмінно підійде для постійного проживання за містом.

Дивлячись на цей будинок, у вашій душі виникне відчуття спокою і стабільності. Його гордовитий профіль і масивна конструкція, кажуть про його господаря тільки одне, що він не терпить обмежень і завжди має свою думку. Це уособлення достатку і благополуччя сім’ї. Дерево, як натуральний матеріал, вселяє довіру і говорить про консервативність, а камінь в основі фундаменту про тверді принципи і сильну основу роду.

Сама назва «Свобода» не завжди пов’язана з хаосом і нерозбірливістю. В даному випадку, це скоріше свобода від інших думок, вже досягнута стабільність, яка дозволяє главі вдома приймати рішення, не звертаючи уваги ні на кого більше. Так, це безперечно ваш будинок, якщо ви саме така людина. Самі обсяги будівлі, його місткість радують око. Велика родина буде відчувати себе вільно і комфортно. Кожен знайде тут свій куточок для себе. Про це свідчать велика кількість балкончиків за кількістю спалень і велика тераса. Саме велика сім’я оцінить розмір тераси і зможе з розумом його використовувати для спільних вечорів у колі сім’ї, а в теплу пору це буде місцем сонячних сніданків.

Що може бути краще, ніж зустріти ранок всім разом на лоні природи, спостерігаючи як промені ранкового сонця грають на обличчях ваших близьких і відображаються в їх посмішках. А запах гарячої кави, що переплітається з ароматом літніх квітів і свіжої трави. Цей будинок створений для щасливих моментів компанією «Домінант» dominant-wood.com.ua/uk/ тому, що ми знаємо, що таке щастя!

Кількість поверхів
3
Площа
183.2
Ширина
8
Довжина
15
Будинки і житлові будови
Котеджі
Кількість кімнат
Чотирикімнатні будинки
Особливості будинків
Будинки з балконом
Будинки з мансардою
Будинки з терасою
Будинки зі сходами
Кількість поверхів споруди
Триповерхові будинки
Будинки з брусу
Будинки з оциліндрованого брусу

Базова комплектація:
(Що входить в ціну)

Що входить в базову комплектацію

  • комплект стін;
  • комплект крокв;
  • комплект балок перекриття;
  • утеплювач міжвінцевий;
  • антисептик (антисептування всього матеріалу);
  • дубові нагеля;
  • кріпильні материали (саморізи, усадкові болти, анкера, кріпильні пластини);
  • гідроізоляція;
  • вогнебіозахист (обробка деревини засобом І групи вогнезахисної ефективності)

468990 грн.

Дах (комплектність):

  • Рейка 100*25мм (cосна)
  • Контрейка 50*25мм (сосна)
  • Металочерепиця МОНТЕРРЕЙ (Польща) 0,45мм
  • Коник прямий
  • Планка примикання
  • Лобова (декоративна) планка
  • Вітровая планка
  • Яндола
  • Капельник (Карнизна планка)
  • Ущільнювач універсальный
  • Саморізи ОС 4.8х35
  • Фарба-спрей
  • Гідробар'єр
  • Монтаж

350800 грн.

Вікна (комплектність):

  • Вікно VEKA 58, колір білий 10
  • Імпости вертикальні: 1 x 102103
  • Скління: СПО, 24мм, (Rсп=0.36)*
  • Тип фурнітури: Activpilot поворотно-відкидна, колір білий
  • Підбір спеціальний: Activ микровентиляція; Activ 2-функц. механ.
  • Моск.сітка: МС 3
  • Підвіконня: ВМ 110мм, колір білий
  • Підвіконня: ПВ ПВХ 150, заглушки: 600мм, колір білий
  • Монтаж

0 грн.

Двері (комплектність):

  • Полотно
  • Коробка
  • Лиштва
  • Карниз
  • Фарбування
  • Скло
  • Фурнітура
  • Врізка фурнітуры
  • Монтаж

304668 грн.

Фарбування (комплектність):

  • Шліфування торців
  • Тришарове покриття ефективним деревозахисним засобом на базі низькомолекулярної алкідної смоли методом розпилення.

Параметри забудови

  • Кількість поверхів: 3
  • Площа: 183.2

Розмір забудови

  • Ширина: 8
  • Довжина: 15

Перший поверх

балкон (м²) 5,4
зал (м²) 30
кухня (м²) 14,9
с/в (м²) 9,2
спальня (м²) 14,9
тамбур (м²) 9,2
тераса (м²) 32

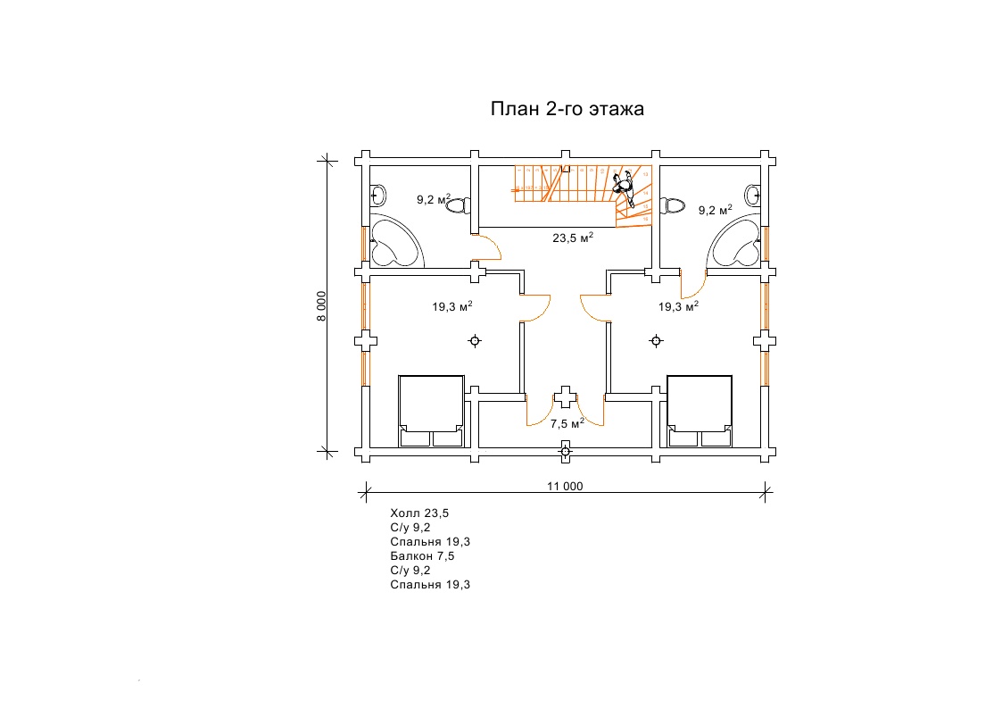
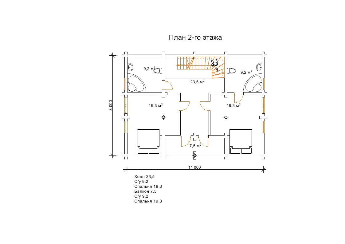
Другий поверх

балкон (м²) 7,5
с/в (м²) 9,2
с/в (м²) 9,2
спальня (м²) 19,3
спальня (м²) 19,3
хол (м²) 23,5

Оциліндрований брус

Оциліндрований брус є найбільш оптимальним і поширеним матеріалом для будівництва дерев`яних будинків і бань, бесідок, альтанок, різноманітних садових меблів, дерев`яних конструкцій будь-яких видів. Дерев`яні будинки з оциліндрованого брусу відрізняються красою, всередині такого будинку завжди відчувається особлива затишна атмосфера.

Читати далі...

Профільований брус

Найсучаснішим і високотехнологічним будівельним матеріалом в дерев`яному будівництві на сьогоднішній день є профільований брус. Для виробництва профільованого брусу, звичайному дерев`яному брусу на спеціальному деревообробному обладнанні надається певний профіль.

Читати далі...

Подвійний брус з утепленням

Головна ідея застосування подвійного бруса полягала в досягненні енергоефективності житла. Над проектуванням енергозберігаючих будинків працюють провідні інженери та архітектори в різних країнах світу, запропонована фінами технологія подвійного бруса дає можливість звести до мінімуму тепловтрати будинку, а також об`єднує переваги будівництва дерев`яного будинку з економічністю споруди.

Читати далі...

Клеєний брус

Клеєний брус принципово відрізняється від інших типів колод багатошаровістю. Така структура робить цей дерев’яний матеріал надміцним і витривалим.

Читати далі...

Каркасні конструкції

Каркасні конструкції виготовляються на власних виробничих потужностях компанії «Домінант», з використанням сучасних деревообробних станків. Імпортне, високоточне обладнання дозволяє нам високоякісно виконувати свою роботу. Каркаси складаються зі струганих, ретельно висушених балок 150х50 мм (сосна першого сорту). Ці балки застосовуються для зовнішніх каркасів.

Читати далі...

Немає відгуків

16 інших товарів в цій категорії:

Товар додано для порівняння.