Южана
- Кількість поверхів
- 1
- Площа
- 55.1
- Ширина
- 6.9
- Довжина
- 7.9
- Будинки і житлові будови
- Дуплекси
Котеджі - Кількість кімнат
- Однокімнатні будинки
- Особливості будинків
- Будинки з ґанком
- Кількість поверхів споруди
- Одноповерхові будинки
- Будинки з брусу
- Будинки з клеєного брусу
Будинки з профільованого брусу - Комерційні будівлі
- Бази відпочинку
Готелі
(Що входить в ціну)
- комплект стін;
- комплект крокв;
- комплект балок перекриття;
- утеплювач міжвінцевий;
- антисептик (антисептування всього матеріалу);
- дубові нагеля;
- кріпильні материали (саморізи, усадкові болти, анкера, кріпильні пластини);
- гідроізоляція;
- вогнебіозахист (обробка деревини засобом І групи вогнезахисної ефективності)
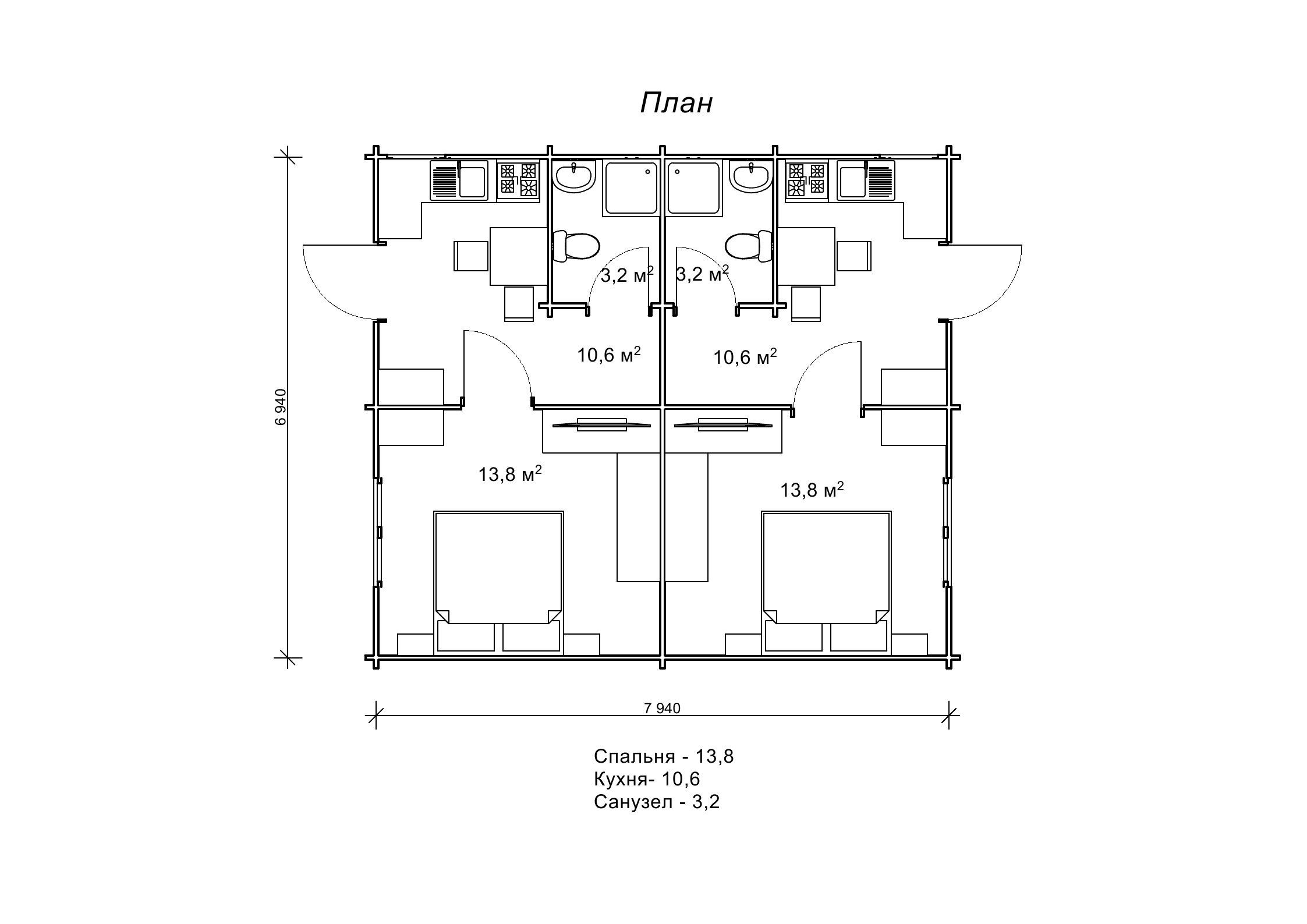
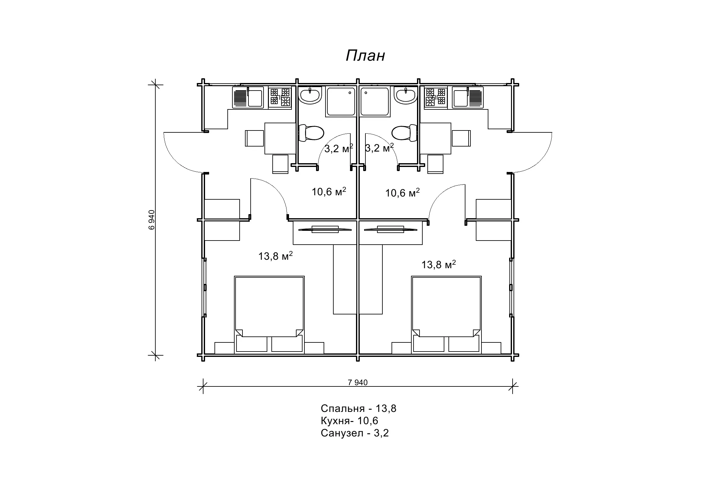
Проект котеджу 6,9 на 7,9 м «Южана» для бази відпочинку
Курортний котедж «Южана» з сухого профільованого бруса сосни - це гостинне місце для відпочинку, яке буде користуватися попитом в кожному готельному комплексі. Це мініатюрний, простий будиночок з дерева під звичайним двосхилим дахом. На головному фасаді - ґанок і віконце. Ви не побачите нічого зайвого в даній споруді, ніяких вигадливих декорів, різнорівневих скатів дахів, мінімалізм і економія притаманні кожній деталі проекту «Южана». Тут нічого не відволікає від відпочинку і єднання з природою. Немає нічого кращого, ніж відпочинок в дерев’яному будинку «Южана». Дерев’яний готель або житловий будинок з дерева по-справжньому дихає, регулюючи насичення приміщень киснем, забезпечуючи найкращий мікроклімат для самопочуття. Тут піднімається настрій, відчувається прилив сил і бадьорості, в таку затишну обстановку дерев’яного котеджу завжди хочеться повернутися.
Планування курортного котеджу на 2 номери
Будова сплановано в габаритах 6,9 на 7,9 м. Площа готового проекту курортного котеджу «Южана» становить 55,1 м2, він розрахований на два номери з санвузлами і окремим входом. У цьому гостьовому будиночку номера для гостей можна порівняти з повноцінними однокімнатними квартирами. Адже в кожному номері є спальня, кухня і санвузол. Уявіть тільки, як затишно буде тут відпочивати, маючи під боком все необхідне. Планування двох квартир котеджу «Южана» дзеркально відображається в номерах, вони повністю ідентичні. Гостьовий котедж з бруса прекрасно доповнить будь-який комплекс відпочинку, а його функціональність, проста симетрія архітектурних ліній і економічність споруди припаде до вподоби власникам готельного бізнесу.
Будівництво курортного котеджу за проектом «Южана»
Курортний котедж «Южана» подарує своїм постояльцям справжній, оздоровчий відпочинок, а господареві принесе гарний прибуток. Адже будова з натурального, теплого дерева набагато привабливіше для туристів, ніж з холодних, штучних матеріалів. До того ж дерев’яний готель не вимагає масштабних капіталовкладень і дорогого оздоблення, швидко вводиться в експлуатацію і так само швидко окупає вкладення на будівництво. Тому на проект «Южана» обов’язково варто звернути увагу тим, хто хоче поліпшити базу відпочинку і зробити її привабливішою для туристів. Гарний, класичний будиночок з дерева підвищить популярність готельного комплексу і привабить багато нових гостей!
- Кількість поверхів
- 1
- Площа
- 55.1
- Ширина
- 6.9
- Довжина
- 7.9
- Будинки і житлові будови
- Дуплекси
Котеджі - Кількість кімнат
- Однокімнатні будинки
- Особливості будинків
- Будинки з ґанком
- Кількість поверхів споруди
- Одноповерхові будинки
- Будинки з брусу
- Будинки з клеєного брусу
Будинки з профільованого брусу - Комерційні будівлі
- Бази відпочинку
Готелі
Базова комплектація:
(Що входить в ціну)
- комплект стін;
- комплект крокв;
- комплект балок перекриття;
- утеплювач міжвінцевий;
- антисептик (антисептування всього матеріалу);
- дубові нагеля;
- кріпильні материали (саморізи, усадкові болти, анкера, кріпильні пластини);
- гідроізоляція;
- вогнебіозахист (обробка деревини засобом І групи вогнезахисної ефективності)
204120 грн.
Дах (комплектність):
- Рейка 100*25мм (cосна)
- Контрейка 50*25мм (сосна)
- Металочерепиця МОНТЕРРЕЙ (Польща) 0,45мм
- Коник прямий
- Планка примикання
- Лобова (декоративна) планка
- Вітровая планка
- Яндола
- Капельник (Карнизна планка)
- Ущільнювач універсальный
- Саморізи ОС 4.8х35
- Фарба-спрей
- Гідробар'єр
- Монтаж
87700 грн.
Вікна (комплектність):
- Вікно VEKA 58, колір білий 10
- Імпости вертикальні: 1 x 102103
- Скління: СПО, 24мм, (Rсп=0.36)*
- Тип фурнітури: Activpilot поворотно-відкидна, колір білий
- Підбір спеціальний: Activ микровентиляція; Activ 2-функц. механ.
- Моск.сітка: МС 3
- Підвіконня: ВМ 110мм, колір білий
- Підвіконня: ПВ ПВХ 150, заглушки: 600мм, колір білий
- Монтаж
83600 грн.
Двері (комплектність):
- Полотно
- Коробка
- Лиштва
- Карниз
- Фарбування
- Скло
- Фурнітура
- Врізка фурнітуры
- Монтаж
91140 грн.
Фарбування (комплектність):
- Шліфування торців
- Тришарове покриття ефективним деревозахисним засобом на базі низькомолекулярної алкідної смоли методом розпилення.
Оциліндрований брус
Оциліндрований брус є найбільш оптимальним і поширеним матеріалом для будівництва дерев`яних будинків і бань, бесідок, альтанок, різноманітних садових меблів, дерев`яних конструкцій будь-яких видів. Дерев`яні будинки з оциліндрованого брусу відрізняються красою, всередині такого будинку завжди відчувається особлива затишна атмосфера.
Профільований брус
Найсучаснішим і високотехнологічним будівельним матеріалом в дерев`яному будівництві на сьогоднішній день є профільований брус. Для виробництва профільованого брусу, звичайному дерев`яному брусу на спеціальному деревообробному обладнанні надається певний профіль.
Подвійний брус з утепленням
Головна ідея застосування подвійного бруса полягала в досягненні енергоефективності житла. Над проектуванням енергозберігаючих будинків працюють провідні інженери та архітектори в різних країнах світу, запропонована фінами технологія подвійного бруса дає можливість звести до мінімуму тепловтрати будинку, а також об`єднує переваги будівництва дерев`яного будинку з економічністю споруди.
Клеєний брус
Клеєний брус принципово відрізняється від інших типів колод багатошаровістю. Така структура робить цей дерев’яний матеріал надміцним і витривалим.
Каркасні конструкції
Каркасні конструкції виготовляються на власних виробничих потужностях компанії «Домінант», з використанням сучасних деревообробних станків. Імпортне, високоточне обладнання дозволяє нам високоякісно виконувати свою роботу. Каркаси складаються зі струганих, ретельно висушених балок 150х50 мм (сосна першого сорту). Ці балки застосовуються для зовнішніх каркасів.











