Зателефонуйте мені
Гудвін №1
Гудвін №2
Гудвін №3
Гудвін №4
Гудвін №5
Гудвін №6
Гудвін №7
Гудвін №8
Гудвін №9
Гудвін №10
Гудвін №11
Гудвін №12
Гудвін №13
Гудвін №14
Гудвін №1
Гудвін №2
Гудвін №3
Гудвін №4
Гудвін №5
Гудвін №6
Гудвін №7
Гудвін №8
Гудвін №9
Гудвін №10
Гудвін №11
Гудвін №12
Гудвін №13
Гудвін №14
Гудвін №1
Гудвін №1 Гудвін №2 Гудвін №3 Гудвін №4 Гудвін №5 Гудвін №6 Гудвін №7 Гудвін №8 Гудвін №9 Гудвін №10 Гудвін №11 Гудвін №12 Гудвін №13 Гудвін №14

Гудвін

671 250,00 ₴
Двокімнатний гостьовий котедж, 42 м2 - «Гудвін»
Розмір брусу
  • Оциліндрований 160
  • Оциліндрований 180
  • Оциліндрований 200
  • Оциліндрований 220
  • Профільований 60
  • Профільований 150
  • Профільований 200
  • Подвійний 300
  • Клеєний 120
  • Клеєний 180
Кількість поверхів
1
Площа
42
Ширина
7
Довжина
6
Будинки і житлові будови
Будиночки
Дачі
Котеджі
Кількість кімнат
Двокімнатні будинки
Кількість поверхів споруди
Одноповерхові будинки
Будинки з брусу
Будинки з клеєного брусу
Будинки з профільованого брусу
Комерційні будівлі
Бази відпочинку
Готелі
 

(Що входить в ціну)

Що входить в базову комплектацію

  • комплект стін;
  • комплект крокв;
  • комплект балок перекриття;
  • утеплювач міжвінцевий;
  • антисептик (антисептування всього матеріалу);
  • дубові нагеля;
  • кріпильні материали (саморізи, усадкові болти, анкера, кріпильні пластини);
  • гідроізоляція;
  • вогнебіозахист (обробка деревини засобом І групи вогнезахисної ефективності)

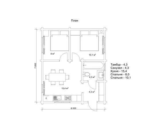
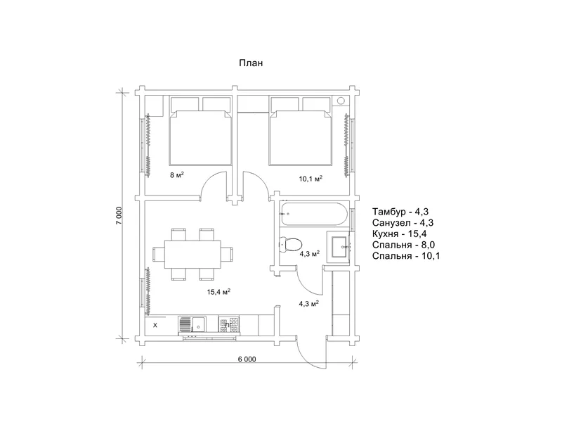
Проект двокімнатного гостьового котеджу «Гудвін»

Котедж із сухого профільованого бруса 150*150 мм «Гудвін» являє собою оптимальний вибір для будівництва у якості гостьового або дачного будиночку. Проста і акуратна будівля зі шліфованого і добре просушеного соснового бруса стане комфортабельними апартаментами для гостей бази відпочинку. Добротні стіни з ретельно з’єднаних шипами та пазами брусів виглядають монолітно і відмінно утримують оптимальний мікроклімат усередині споруди у будь-яку погоду. Невисокі стіни, простий дах, невеликі віконця – це деталі, які роблять бюджет будинку дешевшим і доступнішим. На компактній площі будиночка 42 м2 передбачене зручне планування, яке включає всі необхідні умови для комфортного проведення часу.

Будівництво двокімнатного гостьового котеджу, площа 42 м2

Параметри котеджу «Гудвін» становлять 7 на 6 м, усередині є дві спальні по 8 та 10 м2. Також у будиночку передбачена кухня, тамбур та санвузол. Це гарний приклад функціонального планування будівлі без надмірностей, яке, тим не менш, містить все необхідне для проживання навіть на компактній площі. Оптимальний набір приміщень, компактний розмір будиночка, проста форма споруди та матеріал стін, який не потребує масштабного оздоблення або утеплення – все це забезпечує економічність базової комплектації двокімнатного гостьового котеджу «Гудвін». Цей будиночок гідний найвищої похвали навіть найвибагливішого клієнта! Обговорити деталі будівництва проекту «Гудвін» у базовій комплектації можна, звернувшись за контактними даними нашого сайту.

Кількість поверхів
1
Площа
42
Ширина
7
Довжина
6
Будинки і житлові будови
Будиночки
Дачі
Котеджі
Кількість кімнат
Двокімнатні будинки
Кількість поверхів споруди
Одноповерхові будинки
Будинки з брусу
Будинки з клеєного брусу
Будинки з профільованого брусу
Комерційні будівлі
Бази відпочинку
Готелі

Базова комплектація:
(Що входить в ціну)

Що входить в базову комплектацію

  • комплект стін;
  • комплект крокв;
  • комплект балок перекриття;
  • утеплювач міжвінцевий;
  • антисептик (антисептування всього матеріалу);
  • дубові нагеля;
  • кріпильні материали (саморізи, усадкові болти, анкера, кріпильні пластини);
  • гідроізоляція;
  • вогнебіозахист (обробка деревини засобом І групи вогнезахисної ефективності)

160380 грн.

Дах (комплектність):

  • Рейка 100*25мм (cосна)
  • Контрейка 50*25мм (сосна)
  • Металочерепиця МОНТЕРРЕЙ (Польща) 0,45мм
  • Коник прямий
  • Планка примикання
  • Лобова (декоративна) планка
  • Вітровая планка
  • Яндола
  • Капельник (Карнизна планка)
  • Ущільнювач універсальный
  • Саморізи ОС 4.8х35
  • Фарба-спрей
  • Гідробар'єр
  • Монтаж

140320 грн.

Вікна (комплектність):

  • Вікно VEKA 58, колір білий 10
  • Імпости вертикальні: 1 x 102103
  • Скління: СПО, 24мм, (Rсп=0.36)*
  • Тип фурнітури: Activpilot поворотно-відкидна, колір білий
  • Підбір спеціальний: Activ микровентиляція; Activ 2-функц. механ.
  • Моск.сітка: МС 3
  • Підвіконня: ВМ 110мм, колір білий
  • Підвіконня: ПВ ПВХ 150, заглушки: 600мм, колір білий
  • Монтаж

41800 грн.

Двері (комплектність):

  • Полотно
  • Коробка
  • Лиштва
  • Карниз
  • Фарбування
  • Скло
  • Фурнітура
  • Врізка фурнітуры
  • Монтаж

76384 грн.

Фарбування (комплектність):

  • Шліфування торців
  • Тришарове покриття ефективним деревозахисним засобом на базі низькомолекулярної алкідної смоли методом розпилення.

Параметри забудови

  • Кількість поверхів: 1
  • Площа: 42

Розмір забудови

  • Ширина: 7
  • Довжина: 6

Перший поверх

тамбур (м²)4,3
санвузол (м²)4,3
кухня (м²)15,4
спальня (м²)8,0
спальня (м²)10,1

Оциліндрований брус

Оциліндрований брус є найбільш оптимальним і поширеним матеріалом для будівництва дерев`яних будинків і бань, бесідок, альтанок, різноманітних садових меблів, дерев`яних конструкцій будь-яких видів. Дерев`яні будинки з оциліндрованого брусу відрізняються красою, всередині такого будинку завжди відчувається особлива затишна атмосфера.

Читати далі...

Профільований брус

Найсучаснішим і високотехнологічним будівельним матеріалом в дерев`яному будівництві на сьогоднішній день є профільований брус. Для виробництва профільованого брусу, звичайному дерев`яному брусу на спеціальному деревообробному обладнанні надається певний профіль.

Читати далі...

Подвійний брус з утепленням

Головна ідея застосування подвійного бруса полягала в досягненні енергоефективності житла. Над проектуванням енергозберігаючих будинків працюють провідні інженери та архітектори в різних країнах світу, запропонована фінами технологія подвійного бруса дає можливість звести до мінімуму тепловтрати будинку, а також об`єднує переваги будівництва дерев`яного будинку з економічністю споруди.

Читати далі...

Клеєний брус

Клеєний брус принципово відрізняється від інших типів колод багатошаровістю. Така структура робить цей дерев’яний матеріал надміцним і витривалим.

Читати далі...

Каркасні конструкції

Каркасні конструкції виготовляються на власних виробничих потужностях компанії «Домінант», з використанням сучасних деревообробних станків. Імпортне, високоточне обладнання дозволяє нам високоякісно виконувати свою роботу. Каркаси складаються зі струганих, ретельно висушених балок 150х50 мм (сосна першого сорту). Ці балки застосовуються для зовнішніх каркасів.

Читати далі...

Немає відгуків

Переглянуті товари

16 інших товарів в цій категорії:

Товар додано для порівняння.