Часей
- Кількість поверхів
- 1
- Площа
- 80.8
- Ширина
- 8.1
- Довжина
- 7.5
- Будинки і житлові будови
- Будиночки
Дачі
Котеджі - Кількість кімнат
- Двокімнатні будинки
- Кількість поверхів споруди
- Одноповерхові будинки
- Будинки з брусу
- Будинки з оциліндрованого брусу
- Комерційні будівлі
- Бази відпочинку
Готелі
(Що входить в ціну)
- комплект стін;
- комплект крокв;
- комплект балок перекриття;
- утеплювач міжвінцевий;
- антисептик (антисептування всього матеріалу);
- дубові нагеля;
- кріпильні материали (саморізи, усадкові болти, анкера, кріпильні пластини);
- гідроізоляція;
- вогнебіозахист (обробка деревини засобом І групи вогнезахисної ефективності)
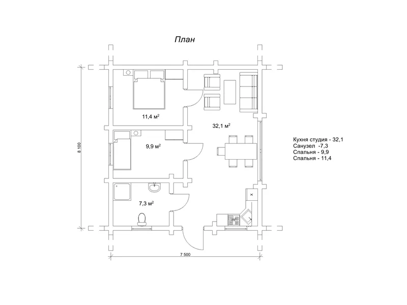
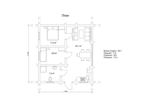
Двокімнатний будиночок із зрубу «Часей», площа 80,8 м2
Дуже колоритний будиночок зі зрубу «Часей» виглядає немов ошатна, дерев’яна скринька. Фігурні вигини зроблених з колод торців на фасадах будівлі в тандемі з великим вікном від підлоги до стелі надають будиночку чарівної вишуканості. Такий ефектний дизайн вигідно відрізняє проект «Часей» від інших будівель. Це неймовірно казкове місце подарує захоплююче дозвілля на природі та стане просто знахідкою для тих, хто мріє жити на дачі. Дерев’яний будиночок виглядає дуже компактно, але має гарну місткість. Площа будівлі складає 80,8 м2, параметри будівлі 8,1 м на 7,5 м. Усередині котеджу розташовуються дві спальні розмірами 9,9 м2 та 11,4 м2, кухня-студія та санвузол. Так що не тільки ви можете самі тут проживати в літню пору або використовувати котедж зі зрубу як гостьовий будинок, можна ще розглянути застосування проекту «Часей» у комерційному плані.
Будівництво двокімнатного будиночка із зрубу за проектом «Часей»
Так як двокімнатний будиночок зі зрубу «Часей» вміщує все, що необхідно для комфортного розміщення та проведення часу, то його комерційне використання принесе гарний і постійний прибуток господарям. Чому ще повною мірою сприятиме креативний дизайн запропонованого проекту, який відображає нестандартне мислення його власника. Дійсно, екстравагантний зовнішній вигляд будівлі так і манить заглянути всередину, де все може бути ще барвистішим і вишуканіше оформлено. Зовнішня краса екстер’єру залишає нескінченний простір фантазії для оформлення внутрішнього простору будиночка. Один із варіантів затишного та максимально наближеного до природи інтер’єру можна подивитися на цій сторінці у візуалізаціях нашого архітектора. Будівництво двокімнатного будиночка із зрубу за проектом «Часей» - один з найкрасивіших і функціональних варіантів облаштування заміської ділянки!
- Кількість поверхів
- 1
- Площа
- 80.8
- Ширина
- 8.1
- Довжина
- 7.5
- Будинки і житлові будови
- Будиночки
Дачі
Котеджі - Кількість кімнат
- Двокімнатні будинки
- Кількість поверхів споруди
- Одноповерхові будинки
- Будинки з брусу
- Будинки з оциліндрованого брусу
- Комерційні будівлі
- Бази відпочинку
Готелі
Базова комплектація:
(Що входить в ціну)
- комплект стін;
- комплект крокв;
- комплект балок перекриття;
- утеплювач міжвінцевий;
- антисептик (антисептування всього матеріалу);
- дубові нагеля;
- кріпильні материали (саморізи, усадкові болти, анкера, кріпильні пластини);
- гідроізоляція;
- вогнебіозахист (обробка деревини засобом І групи вогнезахисної ефективності)
235710 грн.
Дах (комплектність):
- Рейка 100*25мм (cосна)
- Контрейка 50*25мм (сосна)
- Металочерепиця МОНТЕРРЕЙ (Польща) 0,45мм
- Коник прямий
- Планка примикання
- Лобова (декоративна) планка
- Вітровая планка
- Яндола
- Капельник (Карнизна планка)
- Ущільнювач універсальный
- Саморізи ОС 4.8х35
- Фарба-спрей
- Гідробар'єр
- Монтаж
192940 грн.
Вікна (комплектність):
- Вікно VEKA 58, колір білий 10
- Імпости вертикальні: 1 x 102103
- Скління: СПО, 24мм, (Rсп=0.36)*
- Тип фурнітури: Activpilot поворотно-відкидна, колір білий
- Підбір спеціальний: Activ микровентиляція; Activ 2-функц. механ.
- Моск.сітка: МС 3
- Підвіконня: ВМ 110мм, колір білий
- Підвіконня: ПВ ПВХ 150, заглушки: 600мм, колір білий
- Монтаж
41800 грн.
Двері (комплектність):
- Полотно
- Коробка
- Лиштва
- Карниз
- Фарбування
- Скло
- Фурнітура
- Врізка фурнітуры
- Монтаж
199640 грн.
Фарбування (комплектність):
- Шліфування торців
- Тришарове покриття ефективним деревозахисним засобом на базі низькомолекулярної алкідної смоли методом розпилення.
Оциліндрований брус
Оциліндрований брус є найбільш оптимальним і поширеним матеріалом для будівництва дерев`яних будинків і бань, бесідок, альтанок, різноманітних садових меблів, дерев`яних конструкцій будь-яких видів. Дерев`яні будинки з оциліндрованого брусу відрізняються красою, всередині такого будинку завжди відчувається особлива затишна атмосфера.
Профільований брус
Найсучаснішим і високотехнологічним будівельним матеріалом в дерев`яному будівництві на сьогоднішній день є профільований брус. Для виробництва профільованого брусу, звичайному дерев`яному брусу на спеціальному деревообробному обладнанні надається певний профіль.
Подвійний брус з утепленням
Головна ідея застосування подвійного бруса полягала в досягненні енергоефективності житла. Над проектуванням енергозберігаючих будинків працюють провідні інженери та архітектори в різних країнах світу, запропонована фінами технологія подвійного бруса дає можливість звести до мінімуму тепловтрати будинку, а також об`єднує переваги будівництва дерев`яного будинку з економічністю споруди.
Клеєний брус
Клеєний брус принципово відрізняється від інших типів колод багатошаровістю. Така структура робить цей дерев’яний матеріал надміцним і витривалим.
Каркасні конструкції
Каркасні конструкції виготовляються на власних виробничих потужностях компанії «Домінант», з використанням сучасних деревообробних станків. Імпортне, високоточне обладнання дозволяє нам високоякісно виконувати свою роботу. Каркаси складаються зі струганих, ретельно висушених балок 150х50 мм (сосна першого сорту). Ці балки застосовуються для зовнішніх каркасів.















