Зателефонуйте мені
Гонер №1
Гонер №2
Гонер №3
Гонер №4
Гонер №5
Гонер №6
Гонер №7
Гонер №8
Гонер №9
Гонер №10
Гонер №1
Гонер №2
Гонер №3
Гонер №4
Гонер №5
Гонер №6
Гонер №7
Гонер №8
Гонер №9
Гонер №10
Гонер №1
Гонер №1 Гонер №2 Гонер №3 Гонер №4 Гонер №5 Гонер №6 Гонер №7 Гонер №8 Гонер №9 Гонер №10

Гонер

584 158,00 ₴
Будинок-зруб з однією кімнатою, площа 56,8 м2 - «Гонер»
Розмір брусу
  • Оциліндрований 160
  • Оциліндрований 180
  • Оциліндрований 200
  • Оциліндрований 220
  • Профільований 60
  • Профільований 150
  • Профільований 200
  • Подвійний 300
  • Клеєний 120
  • Клеєний 180
Кількість поверхів
1
Площа
56.8
Ширина
8.8
Довжина
6.7
Будинки і житлові будови
Будиночки
Дачі
Котеджі
Кількість кімнат
Однокімнатні будинки
Кількість поверхів споруди
Одноповерхові будинки
Будинки з брусу
Будинки з оциліндрованого брусу
Комерційні будівлі
Бази відпочинку
Готелі
 

(Що входить в ціну)

Що входить в базову комплектацію

  • комплект стін;
  • комплект крокв;
  • комплект балок перекриття;
  • утеплювач міжвінцевий;
  • антисептик (антисептування всього матеріалу);
  • дубові нагеля;
  • кріпильні материали (саморізи, усадкові болти, анкера, кріпильні пластини);
  • гідроізоляція;
  • вогнебіозахист (обробка деревини засобом І групи вогнезахисної ефективності)

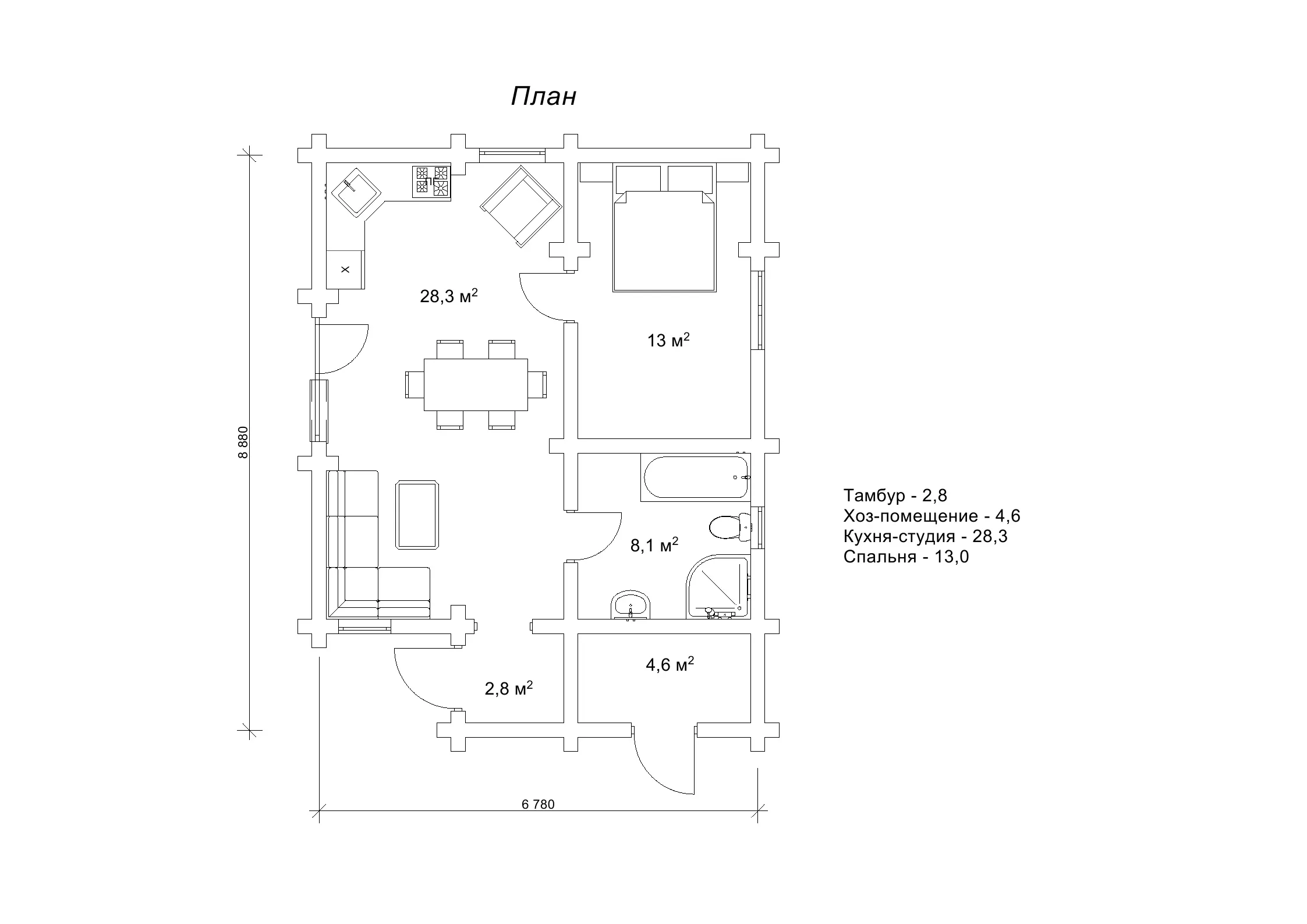
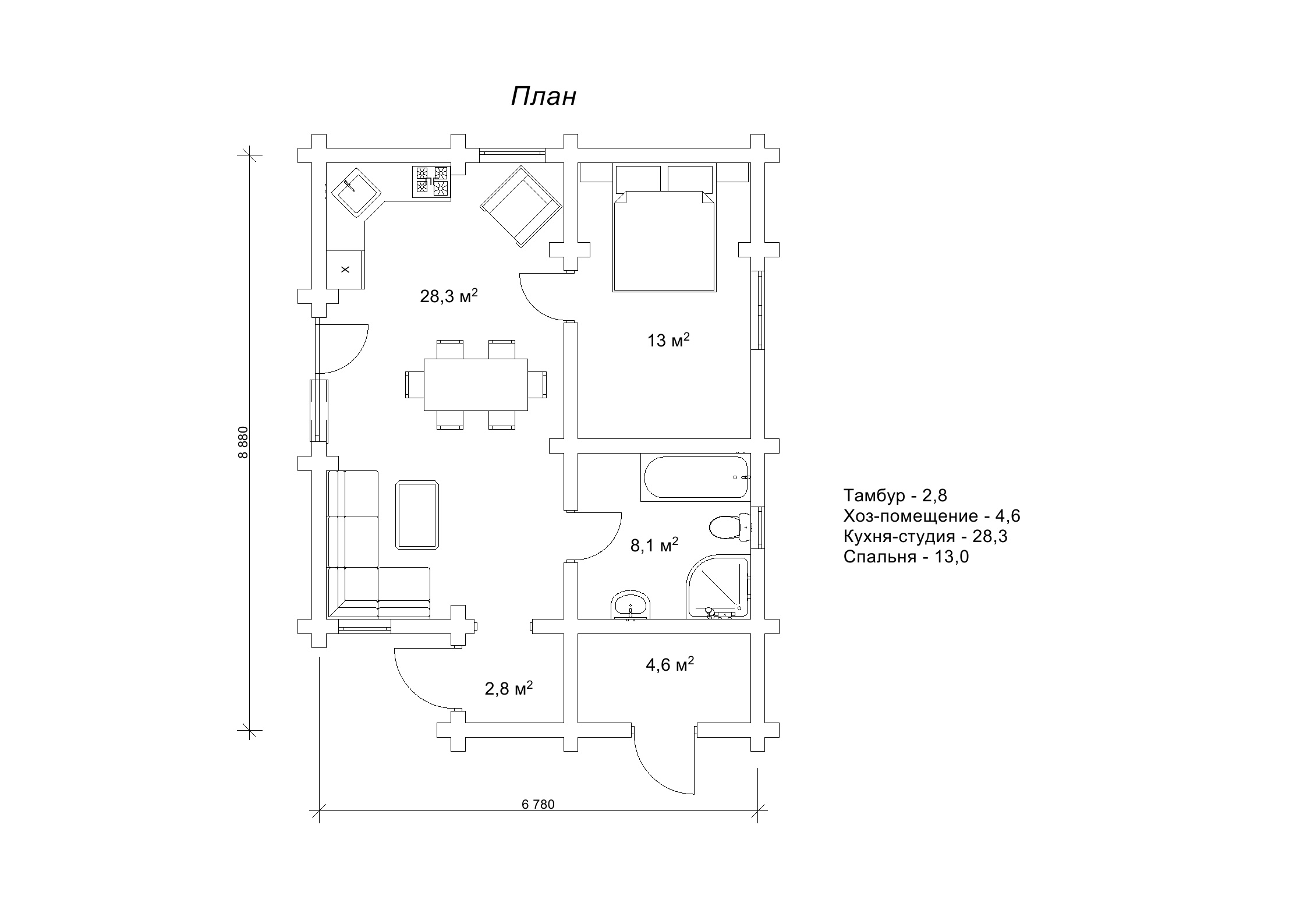
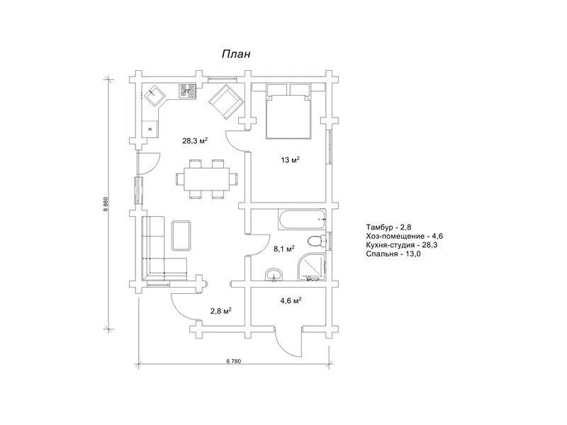
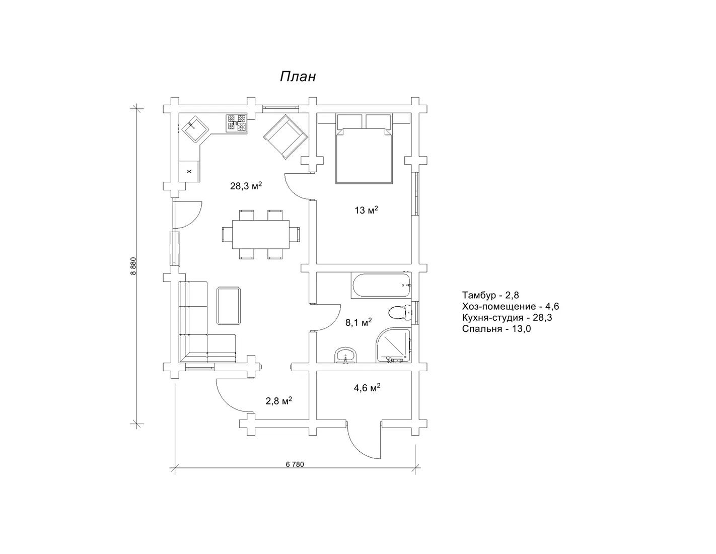
Будівництво будинку-зрубу 8,8 на 6,7 м з однією кімнатою

Проект «Гонер» відрізняється простим зовнішнім виглядом без складних архітектурних елементів. Завдяки такій економічності котедж можна замовити за доступну вартість і створити затишок на дачній ділянці або функціонально доповнити основну житлову споруду в якості гостьового будинку. Будівництво маленького дерев’яного будиночка займає мінімум площі, але дозволяє з максимальною користю облаштувати заміську ділянку. Такий компактний, дерев’яний будиночок виглядає стильно і будується швидко. «Гонер» спроектований в габаритах 8,8 на 6,7 м. Можна відзначити, що кожне приміщення в котеджі просторе, наприклад, санвузол площею 8,1 м2. Не в кожній великій будові є така велика ванна кімната, де зручно поміститься і ванна, і душова кабінка. Окремим перевагою будиночка можна назвати хозприміщення для облаштування топкової або зберігання садового інвентарю.

Будинок-зруб з однією кімнатою «Гонер» площа 56,8 м²

Гарний, економічний, наповнений природним колоритом будинок-зруб «Гонер» буде затребуваний для побудови навіть на невеликій території. Площа будиночка становить 56,8 м2, і в ньому втілюється все необхідне для кожного, хто хоче бути ближче до природи і цінує затишок та домашнє тепло. Однокімнатний будинок-зруб стане універсальною, всесезонною будівлею, якщо вибрати для зведення стін великий діаметр соснової колоди. Тоді з придбанням навіть мінімуму площі, ви отримуєте комфортабельні умови для цілорічного проживання і відпочинку. Створюючи такі проекти, як «Гонер», ми продумуємо буквально кожну деталь планування, яка може сповнити ваше життя радістю і затишком!

Кількість поверхів
1
Площа
56.8
Ширина
8.8
Довжина
6.7
Будинки і житлові будови
Будиночки
Дачі
Котеджі
Кількість кімнат
Однокімнатні будинки
Кількість поверхів споруди
Одноповерхові будинки
Будинки з брусу
Будинки з оциліндрованого брусу
Комерційні будівлі
Бази відпочинку
Готелі

Базова комплектація:
(Що входить в ціну)

Що входить в базову комплектацію

  • комплект стін;
  • комплект крокв;
  • комплект балок перекриття;
  • утеплювач міжвінцевий;
  • антисептик (антисептування всього матеріалу);
  • дубові нагеля;
  • кріпильні материали (саморізи, усадкові болти, анкера, кріпильні пластини);
  • гідроізоляція;
  • вогнебіозахист (обробка деревини засобом І групи вогнезахисної ефективності)

235710 грн.

Дах (комплектність):

  • Рейка 100*25мм (cосна)
  • Контрейка 50*25мм (сосна)
  • Металочерепиця МОНТЕРРЕЙ (Польща) 0,45мм
  • Коник прямий
  • Планка примикання
  • Лобова (декоративна) планка
  • Вітровая планка
  • Яндола
  • Капельник (Карнизна планка)
  • Ущільнювач універсальный
  • Саморізи ОС 4.8х35
  • Фарба-спрей
  • Гідробар'єр
  • Монтаж

140320 грн.

Вікна (комплектність):

  • Вікно VEKA 58, колір білий 10
  • Імпости вертикальні: 1 x 102103
  • Скління: СПО, 24мм, (Rсп=0.36)*
  • Тип фурнітури: Activpilot поворотно-відкидна, колір білий
  • Підбір спеціальний: Activ микровентиляція; Activ 2-функц. механ.
  • Моск.сітка: МС 3
  • Підвіконня: ВМ 110мм, колір білий
  • Підвіконня: ПВ ПВХ 150, заглушки: 600мм, колір білий
  • Монтаж

83600 грн.

Двері (комплектність):

  • Полотно
  • Коробка
  • Лиштва
  • Карниз
  • Фарбування
  • Скло
  • Фурнітура
  • Врізка фурнітуры
  • Монтаж

118048 грн.

Фарбування (комплектність):

  • Шліфування торців
  • Тришарове покриття ефективним деревозахисним засобом на базі низькомолекулярної алкідної смоли методом розпилення.

Параметри забудови

  • Кількість поверхів: 1
  • Площа: 56.8

Розмір забудови

  • Ширина: 8.8
  • Довжина: 6.7

Перший поверх

тамбур (м²)2,8
госп.приміщення (м²)4,6
кухня-студія (м²)28,3
спальня (м²)13,0

Оциліндрований брус

Оциліндрований брус є найбільш оптимальним і поширеним матеріалом для будівництва дерев`яних будинків і бань, бесідок, альтанок, різноманітних садових меблів, дерев`яних конструкцій будь-яких видів. Дерев`яні будинки з оциліндрованого брусу відрізняються красою, всередині такого будинку завжди відчувається особлива затишна атмосфера.

Читати далі...

Профільований брус

Найсучаснішим і високотехнологічним будівельним матеріалом в дерев`яному будівництві на сьогоднішній день є профільований брус. Для виробництва профільованого брусу, звичайному дерев`яному брусу на спеціальному деревообробному обладнанні надається певний профіль.

Читати далі...

Подвійний брус з утепленням

Головна ідея застосування подвійного бруса полягала в досягненні енергоефективності житла. Над проектуванням енергозберігаючих будинків працюють провідні інженери та архітектори в різних країнах світу, запропонована фінами технологія подвійного бруса дає можливість звести до мінімуму тепловтрати будинку, а також об`єднує переваги будівництва дерев`яного будинку з економічністю споруди.

Читати далі...

Клеєний брус

Клеєний брус принципово відрізняється від інших типів колод багатошаровістю. Така структура робить цей дерев’яний матеріал надміцним і витривалим.

Читати далі...

Каркасні конструкції

Каркасні конструкції виготовляються на власних виробничих потужностях компанії «Домінант», з використанням сучасних деревообробних станків. Імпортне, високоточне обладнання дозволяє нам високоякісно виконувати свою роботу. Каркаси складаються зі струганих, ретельно висушених балок 150х50 мм (сосна першого сорту). Ці балки застосовуються для зовнішніх каркасів.

Читати далі...

Немає відгуків

Переглянуті товари

16 інших товарів в цій категорії:

Товар додано для порівняння.