Баура2
- Кількість поверхів
- 2
- Площа
- 100.3
- Ширина
- 6.3
- Довжина
- 9.3
- Будинки і житлові будови
- Дачі
Котеджі - Кількість кімнат
- Двокімнатні будинки
- Особливості будинків
- Будинки з мансардою
Будинки з терасою
Будинки зі сходами - Кількість поверхів споруди
- Двоповерхові будинки
- Будинки з брусу
- Будинки з оциліндрованого брусу
- Садові та господарські споруди
- Бані
Бані з оциліндрованого брусу
(Що входить в ціну)
- комплект стін;
- комплект крокв;
- комплект балок перекриття;
- утеплювач міжвінцевий;
- антисептик (антисептування всього матеріалу);
- дубові нагеля;
- кріпильні материали (саморізи, усадкові болти, анкера, кріпильні пластини);
- гідроізоляція;
- вогнебіозахист (обробка деревини засобом І групи вогнезахисної ефективності)
Проект дерев’яного будинку «Баура2» з парною
Двоповерховий котедж з оциліндрованих колод «Баура2» відрізняється ефектним дизайном. Масивний навіс перед головним входом можна назвати родзинкою проекту. Він відразу привертає увагу і дає можливість влаштувати під ним терасу для літнього дозвілля. Мансарда з трикутним віконцем чарівно доповнює екстер’єр зрубу, виділяючи його на тлі навколишнього пейзажу. Дерев’яні будинки користуються великою популярністю. Перебуваючи в атмосфері деревної свіжості і тепла, яке подарують соснові стіни, можна відпочити від звичної рутини буденних днів. Звернемо вашу увагу також і на такі переваги проекту «Баура2», як місткість і практичність, що не може не тішити його майбутнього власника.
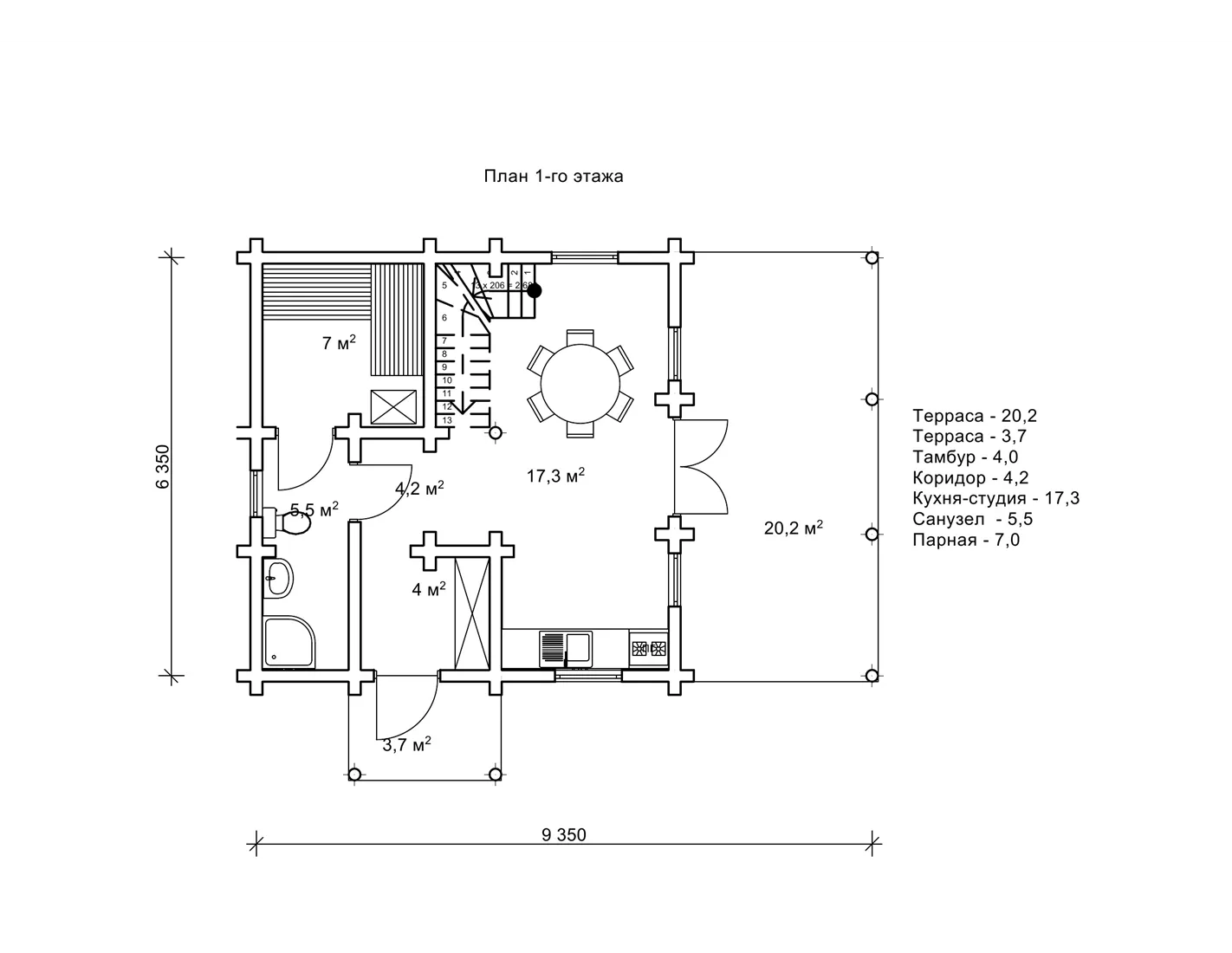
Планування будинку з мансардою та парною, 100,3 м2
Проект «Баура2» буде чудовим придбанням як в якості дачного будинку, так і в якості комфортабельної комерційної лазні. Планування першого поверху включає кухню-студію, парилку і санвузол з душовою. На мансарді є простора спальня і простір другого світла над кімнатою першого поверху. Проект «Баура2» включає всі необхідні зручності дачного будинку для відпочинку і оздоровлення. Параметри забудови за проектом 6,3 на 9,3 м, площа споруди 100,3 м2. Проект «Баура2» створювався на основі моделі «Баура», що представлена на нашому сайті у виконанні з подвійного брусу з утепленням. Порівняно з першою версією проекту ми дещо розширили площу як самої споруди, так і приміщення парилки. Це надає додаткові можливості для комерційного використання проекту. Адже можна запрошувати до лазневих процедур більше людей. Крім того, купуючи такий комфортабельний котедж з дерева для власного використання, вам не знадобиться додаткова прибудова для банних процедур, адже ви зможете насолоджуватися парильнею прямо у себе в будинку.
Як замовити будівництво дерев’яного будинку з лазнею по проекту «Баура2»
Замовляючи будівництво будинку з лазнею, ви зможете паритися в лазні так часто, як душа забажає. Щоб замовити будівництво дерев’яного будинку «Баура2» з мансардою і парною, звертайтеся до відділу по роботі з клієнтами «Домінант»: +38 063 499-91-00; +38 097 012-38-52 (Viber; WhatsApp). Наявність власного дерев’яного будинку, та ще й з лазнею, дає вам абсолютно нові можливості для відпочинку і оздоровлення. На сайті компанії «Домінант» ви зможете підібрати будинки з лазнею на будь-який смак і бюджет, а також доповнити споруду альтанкою або садової меблями. Ми можемо побудувати з дерева абсолютно все, що вам знадобиться на ділянці.
- Кількість поверхів
- 2
- Площа
- 100.3
- Ширина
- 6.3
- Довжина
- 9.3
- Будинки і житлові будови
- Дачі
Котеджі - Кількість кімнат
- Двокімнатні будинки
- Особливості будинків
- Будинки з мансардою
Будинки з терасою
Будинки зі сходами - Кількість поверхів споруди
- Двоповерхові будинки
- Будинки з брусу
- Будинки з оциліндрованого брусу
- Садові та господарські споруди
- Бані
Бані з оциліндрованого брусу
Базова комплектація:
(Що входить в ціну)
- комплект стін;
- комплект крокв;
- комплект балок перекриття;
- утеплювач міжвінцевий;
- антисептик (антисептування всього матеріалу);
- дубові нагеля;
- кріпильні материали (саморізи, усадкові болти, анкера, кріпильні пластини);
- гідроізоляція;
- вогнебіозахист (обробка деревини засобом І групи вогнезахисної ефективності)
262440 грн.
Дах (комплектність):
- Рейка 100*25мм (cосна)
- Контрейка 50*25мм (сосна)
- Металочерепиця МОНТЕРРЕЙ (Польща) 0,45мм
- Коник прямий
- Планка примикання
- Лобова (декоративна) планка
- Вітровая планка
- Яндола
- Капельник (Карнизна планка)
- Ущільнювач універсальный
- Саморізи ОС 4.8х35
- Фарба-спрей
- Гідробар'єр
- Монтаж
192940 грн.
Вікна (комплектність):
- Вікно VEKA 58, колір білий 10
- Імпости вертикальні: 1 x 102103
- Скління: СПО, 24мм, (Rсп=0.36)*
- Тип фурнітури: Activpilot поворотно-відкидна, колір білий
- Підбір спеціальний: Activ микровентиляція; Activ 2-функц. механ.
- Моск.сітка: МС 3
- Підвіконня: ВМ 110мм, колір білий
- Підвіконня: ПВ ПВХ 150, заглушки: 600мм, колір білий
- Монтаж
125400 грн.
Двері (комплектність):
- Полотно
- Коробка
- Лиштва
- Карниз
- Фарбування
- Скло
- Фурнітура
- Врізка фурнітуры
- Монтаж
138880 грн.
Фарбування (комплектність):
- Шліфування торців
- Тришарове покриття ефективним деревозахисним засобом на базі низькомолекулярної алкідної смоли методом розпилення.
Оциліндрований брус
Оциліндрований брус є найбільш оптимальним і поширеним матеріалом для будівництва дерев`яних будинків і бань, бесідок, альтанок, різноманітних садових меблів, дерев`яних конструкцій будь-яких видів. Дерев`яні будинки з оциліндрованого брусу відрізняються красою, всередині такого будинку завжди відчувається особлива затишна атмосфера.
Профільований брус
Найсучаснішим і високотехнологічним будівельним матеріалом в дерев`яному будівництві на сьогоднішній день є профільований брус. Для виробництва профільованого брусу, звичайному дерев`яному брусу на спеціальному деревообробному обладнанні надається певний профіль.
Подвійний брус з утепленням
Головна ідея застосування подвійного бруса полягала в досягненні енергоефективності житла. Над проектуванням енергозберігаючих будинків працюють провідні інженери та архітектори в різних країнах світу, запропонована фінами технологія подвійного бруса дає можливість звести до мінімуму тепловтрати будинку, а також об`єднує переваги будівництва дерев`яного будинку з економічністю споруди.
Клеєний брус
Клеєний брус принципово відрізняється від інших типів колод багатошаровістю. Така структура робить цей дерев’яний матеріал надміцним і витривалим.
Каркасні конструкції
Каркасні конструкції виготовляються на власних виробничих потужностях компанії «Домінант», з використанням сучасних деревообробних станків. Імпортне, високоточне обладнання дозволяє нам високоякісно виконувати свою роботу. Каркаси складаються зі струганих, ретельно висушених балок 150х50 мм (сосна першого сорту). Ці балки застосовуються для зовнішніх каркасів.












