Рілайна
- Кількість поверхів
- 2
- Площа
- 134
- Ширина
- 9
- Довжина
- 9.3
- Будинки і житлові будови
- Дачі
Котеджі
Маєтки
Садиби - Особливості будинків
- Будинки з балконом
Будинки з мансардою
Будинки з терасою
Будинки зі сходами - Кількість поверхів споруди
- Двоповерхові будинки
- Будинки з брусу
- Будинки з оциліндрованого брусу
(Що входить в ціну)
- комплект стін;
- комплект крокв;
- комплект балок перекриття;
- утеплювач міжвінцевий;
- антисептик (антисептування всього матеріалу);
- дубові нагеля;
- кріпильні материали (саморізи, усадкові болти, анкера, кріпильні пластини);
- гідроізоляція;
- вогнебіозахист (обробка деревини засобом І групи вогнезахисної ефективності)
Проект будинку-лазні «Рілайна» зі зрубу
Проект «Рілайна» відноситься до категорії дерев’яних зрубів, в яких поєднуються житлові приміщення з лазнею. Це привабливий дерев’яний котедж з оригінальним балконом і терасами під навісом, які розташовані по периметру котеджу. Тераси служать своєрідною прикрасою проекту і надають простір для фантазії щодо оформлення фасаду. Тут можна помістити необхідний інвентар або зберігати дрова для розтоплення лазні. Дуже гарно буде, якщо ви прикрасите тераси і балкон плетючими рослинами або організуєте простір для відпочинку, поставивши кілька стільців або шезлонгів. Зовнішня краса дизайну продовжується у внутрішньому наповненні проекту «Рілайна».
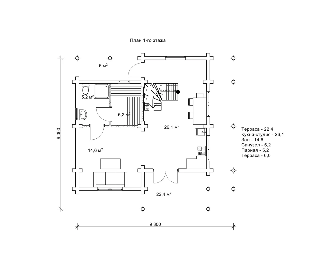
Планування зрубу з лазнею по проекту «Рілайна»
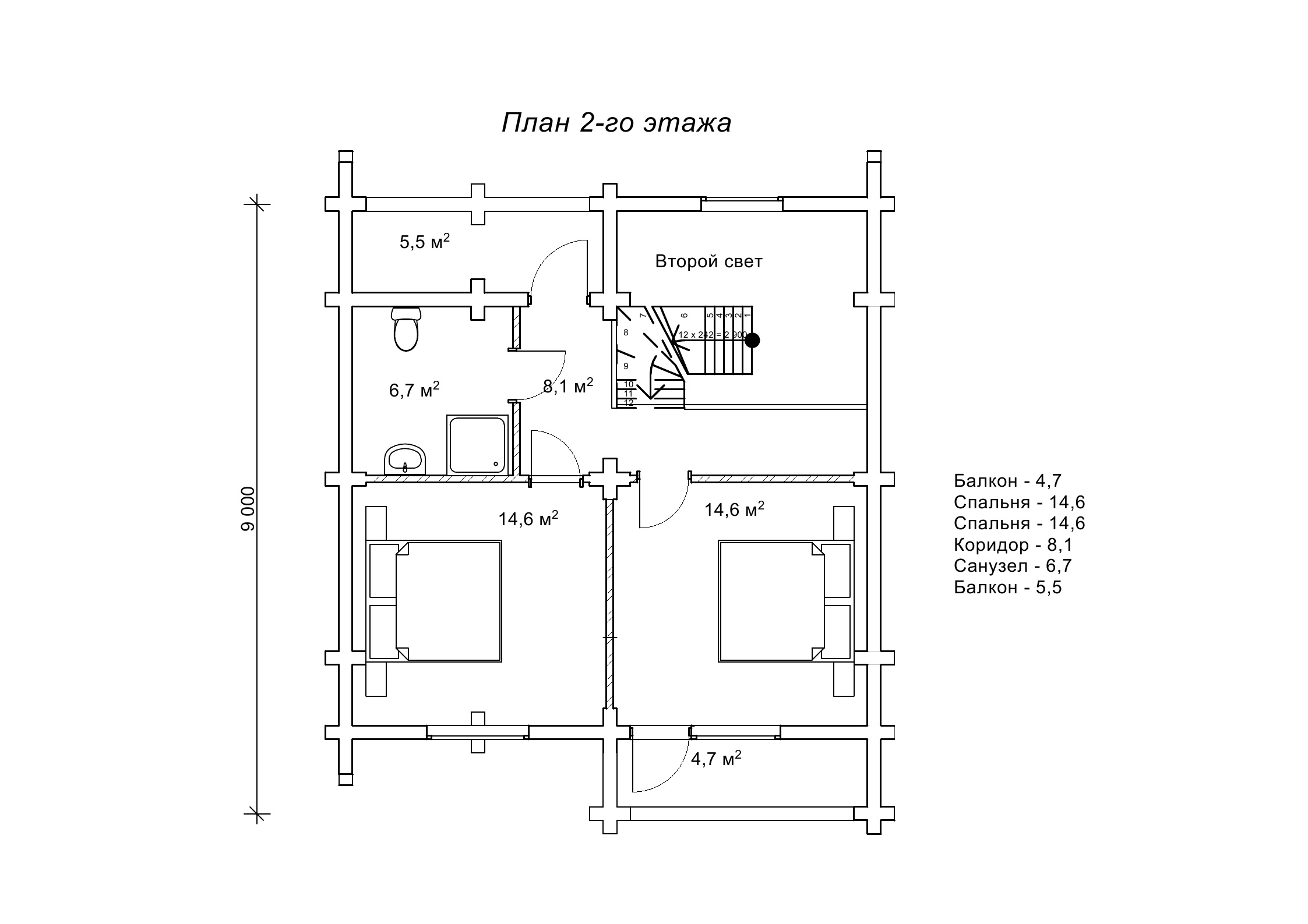
Параметри забудови зрубу з лазнею складають 9х9,3 м, проект спланований на двох поверхах. Другий поверх являє собою житлову мансарду. Загальна площа будівлі 134 м2. На першому поверсі кухня і вітальня розподілені по функціональним зонам в єдиному студійному просторі. Приміщення без перегородок оцінять прихильники простору, таке рішення візуально додає площі всередині кімнат. Окремим блоком на першому поверсі спроектоване приміщення парної з санвузлом. Площа парилки 5,2 м2 досить велика і при оптимальному розміщенні лежаків тут поміститься одночасно кілька людей, не обмежуючи один одного. Сходова зона в студійному просторі виступає однією з найпомітніших деталей інтер’єру. Тому радимо звернути особливу увагу на оформлення та облицювання сходів в проекті «Рілайна». Другий поверх будинку з оциліндрованих колод є воістину райським містечком для відпочинку та приємного дозвілля. Тут ми пропонуємо виділити 2 спальні, балкон, ще один санвузол і отримувати масу задоволення милуючись з коридорчика на друге світло у вітальні. Як бачимо в проекті «Рілайна» створені всі умови підвищеного комфорту і естетичної насолоди. Цей будинок гідний особливої уваги для тих, хто хоче отримати надійне житло з комфортними умовами на довгі роки!
Будівництво дерев’яного зрубу з лазнею «Рілайна»
Тим, хто мріє про свій власний заміський будинок, та ще й з лазнею з брусу - проект будинку-лазні «Рілайна» подарує чудову можливість об’єднати обидві мрії в одній. При замовленні будівництва дерев’яного зрубу з лазнею «Рілайна», ви істотно заощадите матеріал, фінанси і свою територію, отримавши переваги двох окремих будівель в одному приміщенні. Ми пропонуємо вигідну вартість будівництва без посередників по нашій ціні виробництва. Проект «Рілайна» стане самим затишним місцем відпочинку і оздоровлення, а щоб його замовити, зателефонуйте нам: +38 063 499-91-00; +38 097 012-38-52 (Viber; WhatsApp)
- Кількість поверхів
- 2
- Площа
- 134
- Ширина
- 9
- Довжина
- 9.3
- Будинки і житлові будови
- Дачі
Котеджі
Маєтки
Садиби - Особливості будинків
- Будинки з балконом
Будинки з мансардою
Будинки з терасою
Будинки зі сходами - Кількість поверхів споруди
- Двоповерхові будинки
- Будинки з брусу
- Будинки з оциліндрованого брусу
Базова комплектація:
(Що входить в ціну)
- комплект стін;
- комплект крокв;
- комплект балок перекриття;
- утеплювач міжвінцевий;
- антисептик (антисептування всього матеріалу);
- дубові нагеля;
- кріпильні материали (саморізи, усадкові болти, анкера, кріпильні пластини);
- гідроізоляція;
- вогнебіозахист (обробка деревини засобом І групи вогнезахисної ефективності)
294030 грн.
Дах (комплектність):
- Рейка 100*25мм (cосна)
- Контрейка 50*25мм (сосна)
- Металочерепиця МОНТЕРРЕЙ (Польща) 0,45мм
- Коник прямий
- Планка примикання
- Лобова (декоративна) планка
- Вітровая планка
- Яндола
- Капельник (Карнизна планка)
- Ущільнювач універсальный
- Саморізи ОС 4.8х35
- Фарба-спрей
- Гідробар'єр
- Монтаж
228020 грн.
Вікна (комплектність):
- Вікно VEKA 58, колір білий 10
- Імпости вертикальні: 1 x 102103
- Скління: СПО, 24мм, (Rсп=0.36)*
- Тип фурнітури: Activpilot поворотно-відкидна, колір білий
- Підбір спеціальний: Activ микровентиляція; Activ 2-функц. механ.
- Моск.сітка: МС 3
- Підвіконня: ВМ 110мм, колір білий
- Підвіконня: ПВ ПВХ 150, заглушки: 600мм, колір білий
- Монтаж
188100 грн.
Двері (комплектність):
- Полотно
- Коробка
- Лиштва
- Карниз
- Фарбування
- Скло
- Фурнітура
- Врізка фурнітуры
- Монтаж
164920 грн.
Фарбування (комплектність):
- Шліфування торців
- Тришарове покриття ефективним деревозахисним засобом на базі низькомолекулярної алкідної смоли методом розпилення.
Параметри забудови
- Кількість поверхів: 2
- Площа: 134
Розмір забудови
- Ширина: 9
- Довжина: 9.3
Перший поверх
| тераса (м²) | 22,4 |
| кухня-студія (м²) | 22,6 |
| зала (м²) | 14,6 |
| санвузол (м²) | 5,2 |
| парна (м²) | 5,2 |
| тераса (м²) | 6,0 |
Другий поверх
| балкон (м²) | 4,7 |
| спальня (м²) | 14,6 |
| спальня (м²) | 14,6 |
| коридор (м²) | 8,1 |
| санвузол (м²) | 6,7 |
| балкон (м²) | 5,5 |
Оциліндрований брус
Оциліндрований брус є найбільш оптимальним і поширеним матеріалом для будівництва дерев`яних будинків і бань, бесідок, альтанок, різноманітних садових меблів, дерев`яних конструкцій будь-яких видів. Дерев`яні будинки з оциліндрованого брусу відрізняються красою, всередині такого будинку завжди відчувається особлива затишна атмосфера.
Профільований брус
Найсучаснішим і високотехнологічним будівельним матеріалом в дерев`яному будівництві на сьогоднішній день є профільований брус. Для виробництва профільованого брусу, звичайному дерев`яному брусу на спеціальному деревообробному обладнанні надається певний профіль.
Подвійний брус з утепленням
Головна ідея застосування подвійного бруса полягала в досягненні енергоефективності житла. Над проектуванням енергозберігаючих будинків працюють провідні інженери та архітектори в різних країнах світу, запропонована фінами технологія подвійного бруса дає можливість звести до мінімуму тепловтрати будинку, а також об`єднує переваги будівництва дерев`яного будинку з економічністю споруди.
Клеєний брус
Клеєний брус принципово відрізняється від інших типів колод багатошаровістю. Така структура робить цей дерев’яний матеріал надміцним і витривалим.
Каркасні конструкції
Каркасні конструкції виготовляються на власних виробничих потужностях компанії «Домінант», з використанням сучасних деревообробних станків. Імпортне, високоточне обладнання дозволяє нам високоякісно виконувати свою роботу. Каркаси складаються зі струганих, ретельно висушених балок 150х50 мм (сосна першого сорту). Ці балки застосовуються для зовнішніх каркасів.












