Блюз
- Кількість поверхів
- 1
- Площа
- 86
- Ширина
- 9.5
- Довжина
- 10
- Будинки і житлові будови
- Будиночки
Дачі
Котеджі - Кількість кімнат
- Трикімнатні будинки
- Особливості будинків
- Будинки з каміном
Будинки з ґанком - Кількість поверхів споруди
- Одноповерхові будинки
- Будинки з брусу
- Будинки з клеєного брусу
Будинки з профільованого брусу
(Що входить в ціну)
- комплект стін;
- комплект крокв;
- комплект балок перекриття;
- утеплювач міжвінцевий;
- антисептик (антисептування всього матеріалу);
- дубові нагеля;
- кріпильні материали (саморізи, усадкові болти, анкера, кріпильні пластини);
- гідроізоляція;
- вогнебіозахист (обробка деревини засобом І групи вогнезахисної ефективності)
Будівництво будинку з каміном та двома спальнями
Невеликий котедж з бруса «Блюз» має класичну красу натурального, дерев’яного зрубу і характеризується лаконічністю архітектурних рішень. Проект гармонійно поєднує класичний дизайн дерев’яного котеджу, натуральність матеріалів та сучасний комфорт. Будиночок виконується із сухого профільованого бруса 150*150 мм. І зовнішні стіни будинку, і внутрішні перегородки з такого матеріалу винятково надійні, виглядають монолітно та презентабельно. Міцне з’єднання профільованого бруса способом шип у паз забезпечує повний захист внутрішніх приміщень від промерзання та протягів. Тому проект «Блюз» можна розглядати не лише як дачний будиночок, а й постійне житло. Тим більше внутрішнє планування котеджу настільки комфортне, що, приїхавши сюди на якийсь час, вам точно захочеться погостювати якомога довше.
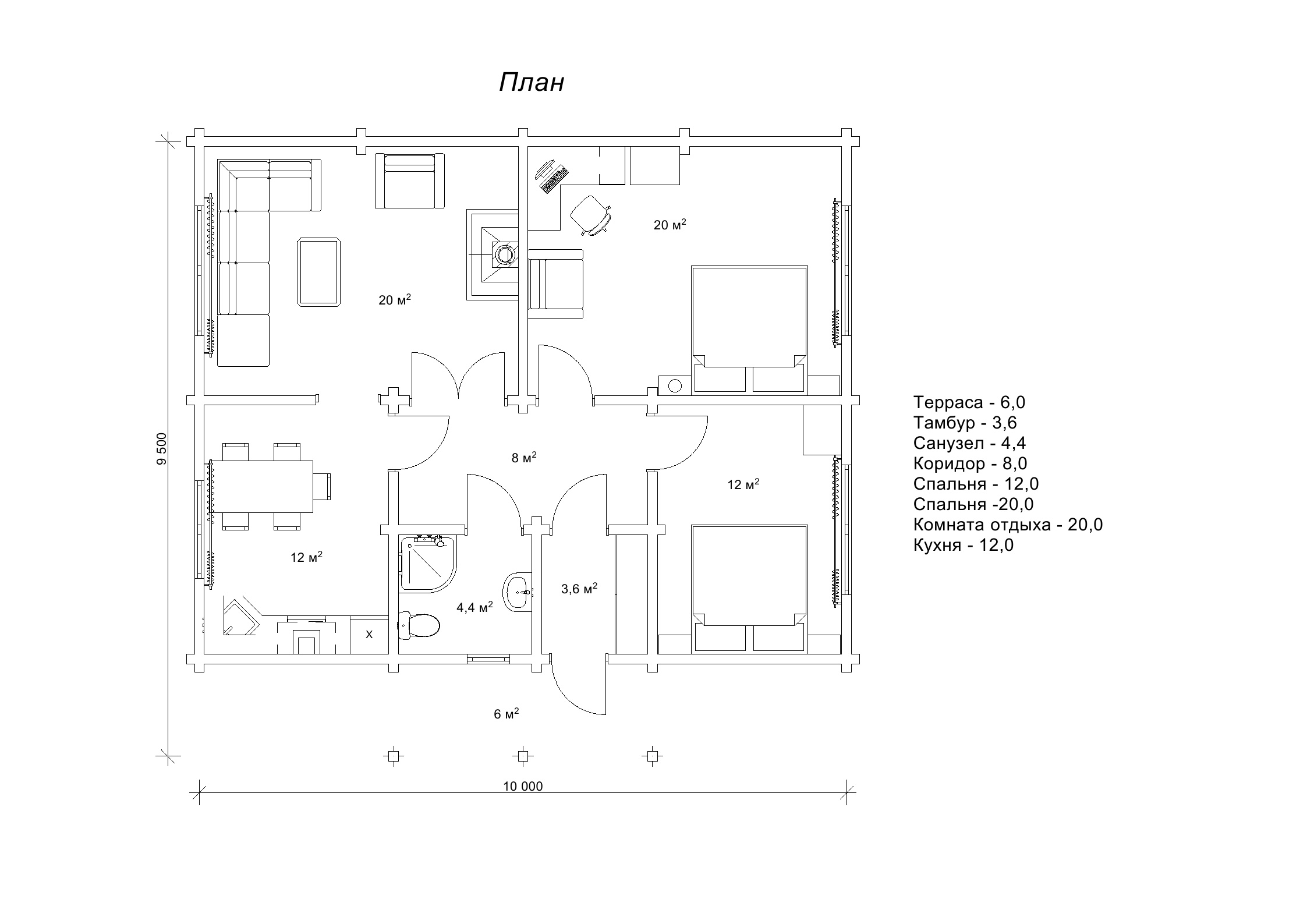
Будинок з каміном та двома спальнями «Блюз», площа 86 м²
Проект «Блюз» спланований у параметрах 9,5х10 м, займає 86 м2 та легко встановлюється на невелику земельну ділянку. У цьому симпатичному будиночку з каміном все продумано зручно і зі смаком. Тут є дві просторі спальні, вітальня на 20 м2, санвузол та окрема кухня. Чіткий поділ кімнат одна від одної без студійного простору передбачає максимальний комфорт для всіх домочадців. Кожен має свій особистий простір, і в будь-який момент можна усамітнитися і відпочити у своїй кімнаті. А разом із сім’єю можна збиратися біля каміна у просторій залі. Ще одним плюсом планування котеджу «Блюз» назвемо наявність теплового тамбуру, який послужить захистом житлових кімнат від холоду та вуличного бруду. До того ж у тамбурі зручно зберігати верхній одяг та взуття. Якщо ви хочете побудувати собі екологічне сучасне житло з максимально комфортним плануванням, проект «Блюз» стане оптимальним вибором.
- Кількість поверхів
- 1
- Площа
- 86
- Ширина
- 9.5
- Довжина
- 10
- Будинки і житлові будови
- Будиночки
Дачі
Котеджі - Кількість кімнат
- Трикімнатні будинки
- Особливості будинків
- Будинки з каміном
Будинки з ґанком - Кількість поверхів споруди
- Одноповерхові будинки
- Будинки з брусу
- Будинки з клеєного брусу
Будинки з профільованого брусу
Базова комплектація:
(Що входить в ціну)
- комплект стін;
- комплект крокв;
- комплект балок перекриття;
- утеплювач міжвінцевий;
- антисептик (антисептування всього матеріалу);
- дубові нагеля;
- кріпильні материали (саморізи, усадкові болти, анкера, кріпильні пластини);
- гідроізоляція;
- вогнебіозахист (обробка деревини засобом І групи вогнезахисної ефективності)
286740 грн.
Дах (комплектність):
- Рейка 100*25мм (cосна)
- Контрейка 50*25мм (сосна)
- Металочерепиця МОНТЕРРЕЙ (Польща) 0,45мм
- Коник прямий
- Планка примикання
- Лобова (декоративна) планка
- Вітровая планка
- Яндола
- Капельник (Карнизна планка)
- Ущільнювач універсальный
- Саморізи ОС 4.8х35
- Фарба-спрей
- Гідробар'єр
- Монтаж
245560 грн.
Вікна (комплектність):
- Вікно VEKA 58, колір білий 10
- Імпости вертикальні: 1 x 102103
- Скління: СПО, 24мм, (Rсп=0.36)*
- Тип фурнітури: Activpilot поворотно-відкидна, колір білий
- Підбір спеціальний: Activ микровентиляція; Activ 2-функц. механ.
- Моск.сітка: МС 3
- Підвіконня: ВМ 110мм, колір білий
- Підвіконня: ПВ ПВХ 150, заглушки: 600мм, колір білий
- Монтаж
41800 грн.
Двері (комплектність):
- Полотно
- Коробка
- Лиштва
- Карниз
- Фарбування
- Скло
- Фурнітура
- Врізка фурнітуры
- Монтаж
141484 грн.
Фарбування (комплектність):
- Шліфування торців
- Тришарове покриття ефективним деревозахисним засобом на базі низькомолекулярної алкідної смоли методом розпилення.
Оциліндрований брус
Оциліндрований брус є найбільш оптимальним і поширеним матеріалом для будівництва дерев`яних будинків і бань, бесідок, альтанок, різноманітних садових меблів, дерев`яних конструкцій будь-яких видів. Дерев`яні будинки з оциліндрованого брусу відрізняються красою, всередині такого будинку завжди відчувається особлива затишна атмосфера.
Профільований брус
Найсучаснішим і високотехнологічним будівельним матеріалом в дерев`яному будівництві на сьогоднішній день є профільований брус. Для виробництва профільованого брусу, звичайному дерев`яному брусу на спеціальному деревообробному обладнанні надається певний профіль.
Подвійний брус з утепленням
Головна ідея застосування подвійного бруса полягала в досягненні енергоефективності житла. Над проектуванням енергозберігаючих будинків працюють провідні інженери та архітектори в різних країнах світу, запропонована фінами технологія подвійного бруса дає можливість звести до мінімуму тепловтрати будинку, а також об`єднує переваги будівництва дерев`яного будинку з економічністю споруди.
Клеєний брус
Клеєний брус принципово відрізняється від інших типів колод багатошаровістю. Така структура робить цей дерев’яний матеріал надміцним і витривалим.
Каркасні конструкції
Каркасні конструкції виготовляються на власних виробничих потужностях компанії «Домінант», з використанням сучасних деревообробних станків. Імпортне, високоточне обладнання дозволяє нам високоякісно виконувати свою роботу. Каркаси складаються зі струганих, ретельно висушених балок 150х50 мм (сосна першого сорту). Ці балки застосовуються для зовнішніх каркасів.


















