Ірстон2
- Кількість поверхів
- 2
- Площа
- 269.2
- Ширина
- 10
- Довжина
- 15
- Будинки і житлові будови
- Маєтки
Садиби - Кількість кімнат
- Семикімнатні будинки
- Особливості будинків
- Будинки з другим світлом
Будинки з мансардою
Будинки зі сходами
Будинки з ґанком - Кількість поверхів споруди
- Двоповерхові будинки
- Будинки з брусу
- Будинки з оциліндрованого брусу
(Що входить в ціну)
- комплект стін;
- комплект крокв;
- комплект балок перекриття;
- утеплювач міжвінцевий;
- антисептик (антисептування всього матеріалу);
- дубові нагеля;
- кріпильні материали (саморізи, усадкові болти, анкера, кріпильні пластини);
- гідроізоляція;
- вогнебіозахист (обробка деревини засобом І групи вогнезахисної ефективності)
Маєток «Ірстон2», площа 269,2 м2
Маєток з оциліндрованого брусу «Ірстон2» можна виділити серед інших проектів дерев’яних маєтків і садиб завдяки монументальності та величному зовнішньому вигляду. Він практично вдвічі більше за габаритами, ніж його проект-попередник «Ірстон». Оновлений розкішний дерев’яний зруб з величезними панорамними вікнами другого світла всім своїм виглядом уособлює надійність і фундаментальність. Цей будинок - гордість господарів і вірний притулок для багатьох поколінь, будинок, який стане справжнім родовим гніздом. Немає нічого кращого такого добротного, сімейного осередку, виконаного з натурального дерева, яке «дихає» і насичує повітря корисними речовинами і смолами. Дерев’яний маєток «Ірстон2» - вибір мудрого сім’янина, який цінує високу якість життя і здоров’я своїх найрідніших і найближчих людей.
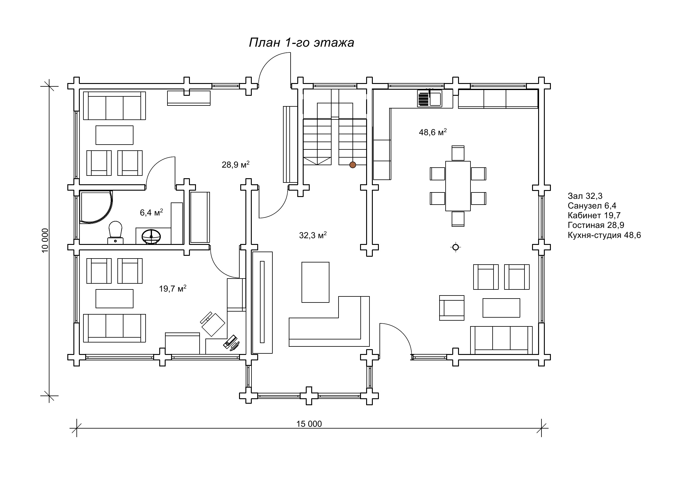
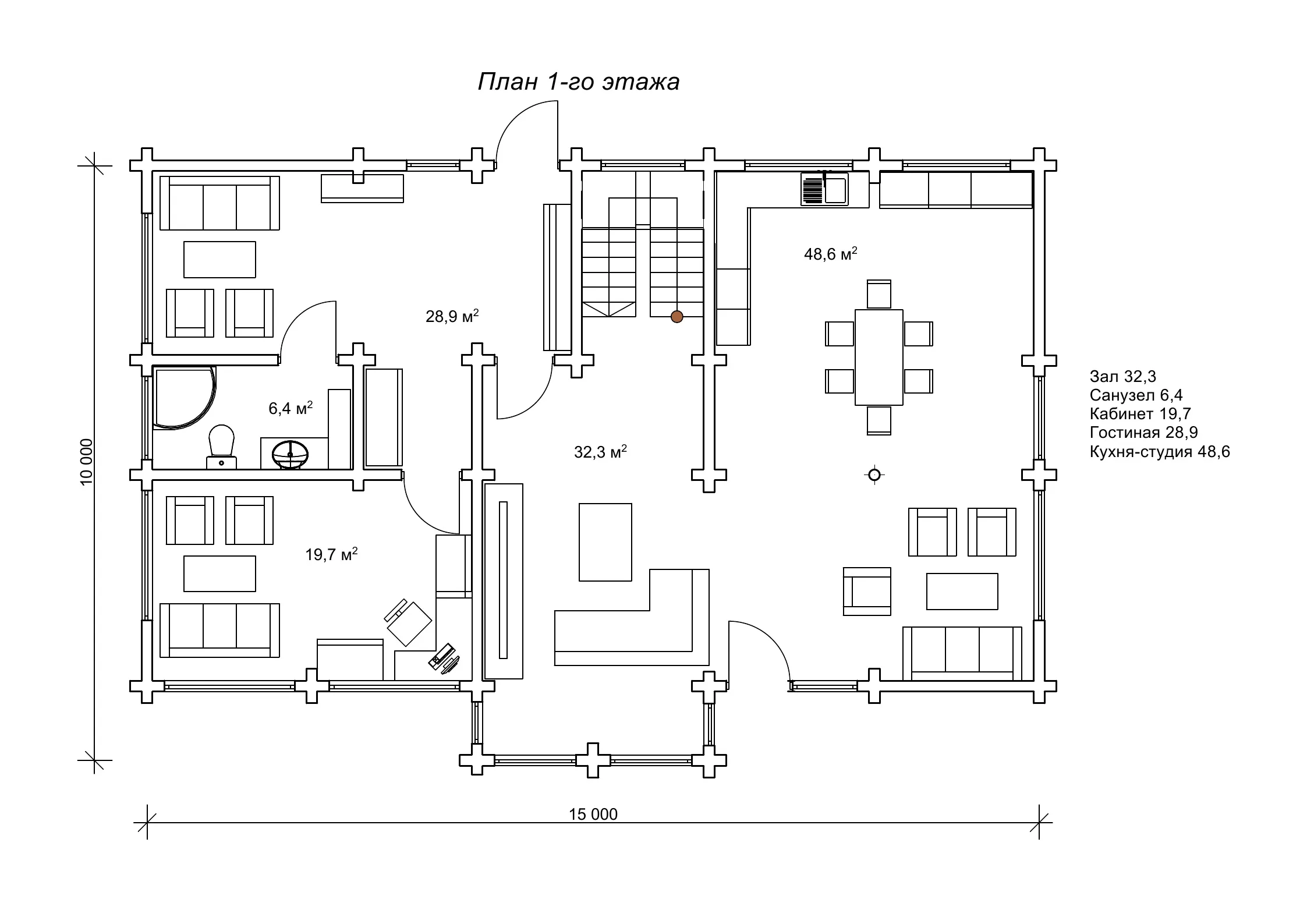
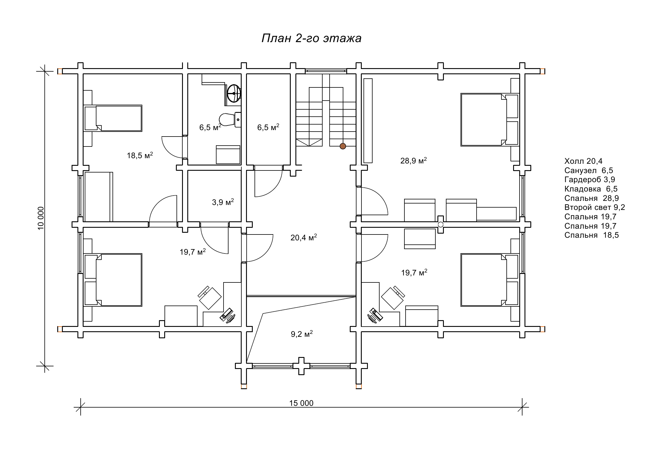
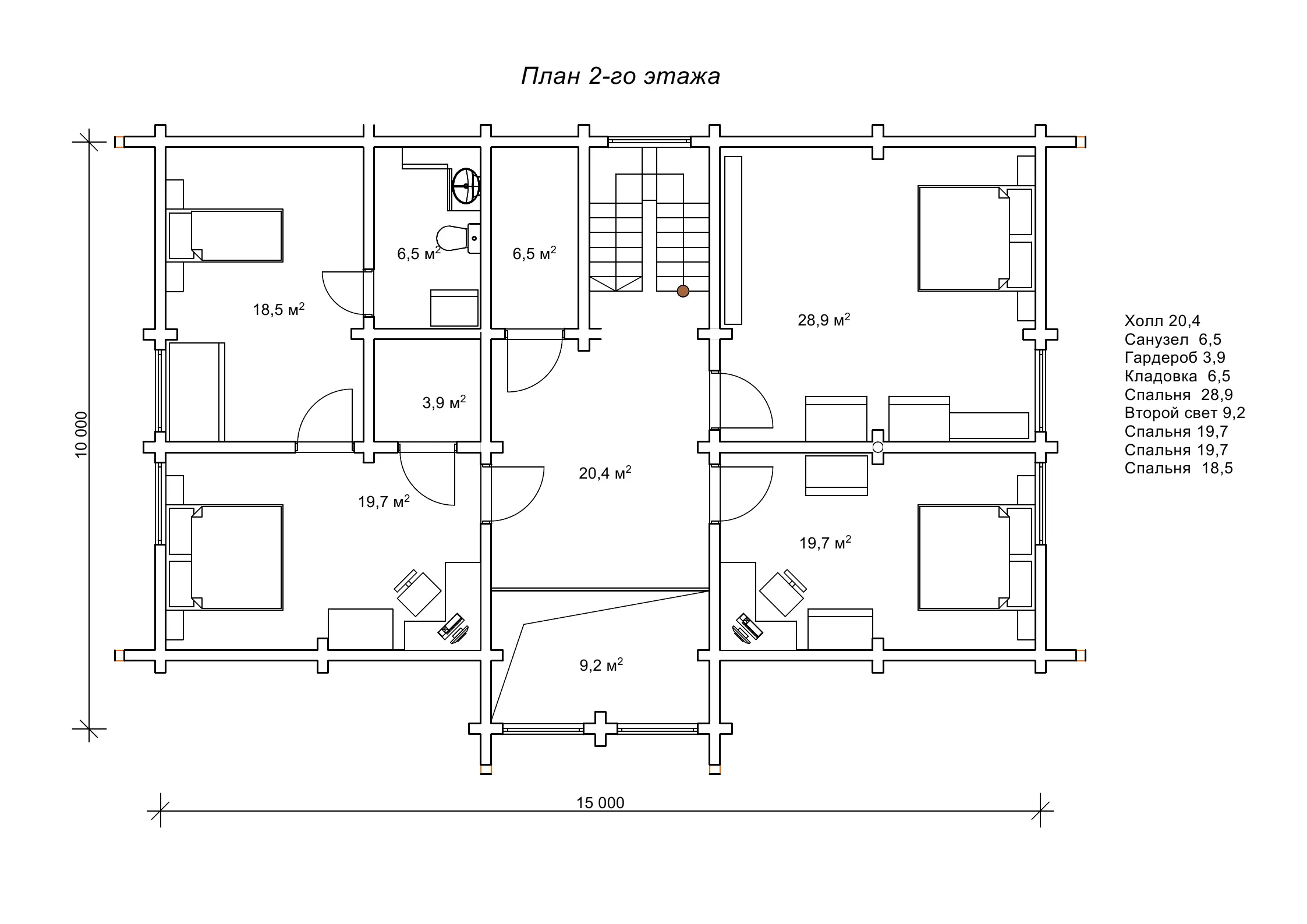
Планування кімнат в оциліндрованому маєтку 10х15 м
Виключно комфортні умови, вміло створені архітектором «Домінант» в маєтку «Ірстон2», стануть запорукою затишку для всіх домочадців на довгі роки справної служби житла. У габаритах 10 на 15 м першого поверху розташовані приміщення залу, вітальні, кухні-студії, кабінету і санвузла. Всі кімнати відрізняються великими розмірами, відчувається широта простору для втілення цікавих дизайнерських рішень в оформленні інтер’єру. На другому поверсі розмістилися чотири спальні, невеликий гардероб, комора, санвузол, хол і головною родзинкою виступає простір другого світла над залою першого поверху. Зручності, які подарує внутрішнє наповнення проекту «Ірстон2» своїм господарям, допоможуть наповнювати кожен день, проведений вдома, тільки позитивними емоціями і гарним настроєм.
Будівництво маєтку з оциліндрованого брусу
Спорудження солідного маєтку з оциліндрованого брусу «Ірстон2» вимагатиме простору для установки і наявності присадибної території для створення належного ландшафтного дизайну під стать самій будові. Як видно на 3-д візуалізації проекту, дерев’яна конструкція встановлювалася на цокольний поверх, де замовники передбачили гаражі для своїх авто. При необхідності ми можемо встановити дерев’яний зруб на цокольний поверх або, якщо ви бажаєте побудувати комбінований будинок з різних матеріалів, ми зробимо дерев’яну частину конструкції. Планування дерев’яного маєтку «Ірстон2» розроблялося відповідно до способу життя і побажань усіх членів сім’ї власника. Кожен проект дерев’яного будинку «Домінант» максимально враховує індивідуальні побажання клієнтів - звертайтеся, і разом ми виведемо формулу вашого будиночка мрії!
- Кількість поверхів
- 2
- Площа
- 269.2
- Ширина
- 10
- Довжина
- 15
- Будинки і житлові будови
- Маєтки
Садиби - Кількість кімнат
- Семикімнатні будинки
- Особливості будинків
- Будинки з другим світлом
Будинки з мансардою
Будинки зі сходами
Будинки з ґанком - Кількість поверхів споруди
- Двоповерхові будинки
- Будинки з брусу
- Будинки з оциліндрованого брусу
Базова комплектація:
(Що входить в ціну)
- комплект стін;
- комплект крокв;
- комплект балок перекриття;
- утеплювач міжвінцевий;
- антисептик (антисептування всього матеріалу);
- дубові нагеля;
- кріпильні материали (саморізи, усадкові болти, анкера, кріпильні пластини);
- гідроізоляція;
- вогнебіозахист (обробка деревини засобом І групи вогнезахисної ефективності)
534600 грн.
Дах (комплектність):
- Рейка 100*25мм (cосна)
- Контрейка 50*25мм (сосна)
- Металочерепиця МОНТЕРРЕЙ (Польща) 0,45мм
- Коник прямий
- Планка примикання
- Лобова (декоративна) планка
- Вітровая планка
- Яндола
- Капельник (Карнизна планка)
- Ущільнювач універсальный
- Саморізи ОС 4.8х35
- Фарба-спрей
- Гідробар'єр
- Монтаж
929620 грн.
Вікна (комплектність):
- Вікно VEKA 58, колір білий 10
- Імпости вертикальні: 1 x 102103
- Скління: СПО, 24мм, (Rсп=0.36)*
- Тип фурнітури: Activpilot поворотно-відкидна, колір білий
- Підбір спеціальний: Activ микровентиляція; Activ 2-функц. механ.
- Моск.сітка: МС 3
- Підвіконня: ВМ 110мм, колір білий
- Підвіконня: ПВ ПВХ 150, заглушки: 600мм, колір білий
- Монтаж
0 грн.
Двері (комплектність):
- Полотно
- Коробка
- Лиштва
- Карниз
- Фарбування
- Скло
- Фурнітура
- Врізка фурнітуры
- Монтаж
221340 грн.
Фарбування (комплектність):
- Шліфування торців
- Тришарове покриття ефективним деревозахисним засобом на базі низькомолекулярної алкідної смоли методом розпилення.
Параметри забудови
- Кількість поверхів: 2
- Площа: 269.2
Розмір забудови
- Ширина: 10
- Довжина: 15
Перший поверх
| зала (м²) | 32,3 |
| санувузол (м²) | 6,4 |
| кабінет (м²) | 19,7 |
| вітальня (м²) | 28,9 |
| кухня-студія (м²) | 48,6 |
Другий поверх
| хол (м²) | 20,4 |
| санувузол (м²) | 6,5 |
| гардероб (м²) | 3,9 |
| кладовка (м²) | 6,5 |
| спальня (м²) | 28,9 |
| друге світло (м²) | 9,2 |
| спальня (м²) | 19,7 |
| спальня (м²) | 19,7 |
| спальня (м²) | 18,5 |
Оциліндрований брус
Оциліндрований брус є найбільш оптимальним і поширеним матеріалом для будівництва дерев`яних будинків і бань, бесідок, альтанок, різноманітних садових меблів, дерев`яних конструкцій будь-яких видів. Дерев`яні будинки з оциліндрованого брусу відрізняються красою, всередині такого будинку завжди відчувається особлива затишна атмосфера.
Профільований брус
Найсучаснішим і високотехнологічним будівельним матеріалом в дерев`яному будівництві на сьогоднішній день є профільований брус. Для виробництва профільованого брусу, звичайному дерев`яному брусу на спеціальному деревообробному обладнанні надається певний профіль.
Подвійний брус з утепленням
Головна ідея застосування подвійного бруса полягала в досягненні енергоефективності житла. Над проектуванням енергозберігаючих будинків працюють провідні інженери та архітектори в різних країнах світу, запропонована фінами технологія подвійного бруса дає можливість звести до мінімуму тепловтрати будинку, а також об`єднує переваги будівництва дерев`яного будинку з економічністю споруди.
Клеєний брус
Клеєний брус принципово відрізняється від інших типів колод багатошаровістю. Така структура робить цей дерев’яний матеріал надміцним і витривалим.
Каркасні конструкції
Каркасні конструкції виготовляються на власних виробничих потужностях компанії «Домінант», з використанням сучасних деревообробних станків. Імпортне, високоточне обладнання дозволяє нам високоякісно виконувати свою роботу. Каркаси складаються зі струганих, ретельно висушених балок 150х50 мм (сосна першого сорту). Ці балки застосовуються для зовнішніх каркасів.












