Континент3
- Кількість поверхів
- 1
- Площа
- 66
- Ширина
- 6
- Довжина
- 11
- Будинки і житлові будови
- Дачі
Котеджі - Кількість кімнат
- Однокімнатні будинки
- Особливості будинків
- Будинки з терасою
Будинки з ґанком - Кількість поверхів споруди
- Одноповерхові будинки
- Будинки з брусу
- Будинки з клеєного брусу
Будинки з профільованого брусу - Садові та господарські споруди
- Бані
Бані з профільованого брусу
(Що входить в ціну)
- комплект стін;
- комплект крокв;
- комплект балок перекриття;
- утеплювач міжвінцевий;
- антисептик (антисептування всього матеріалу);
- дубові нагеля;
- кріпильні материали (саморізи, усадкові болти, анкера, кріпильні пластини);
- гідроізоляція;
- вогнебіозахист (обробка деревини засобом І групи вогнезахисної ефективності)
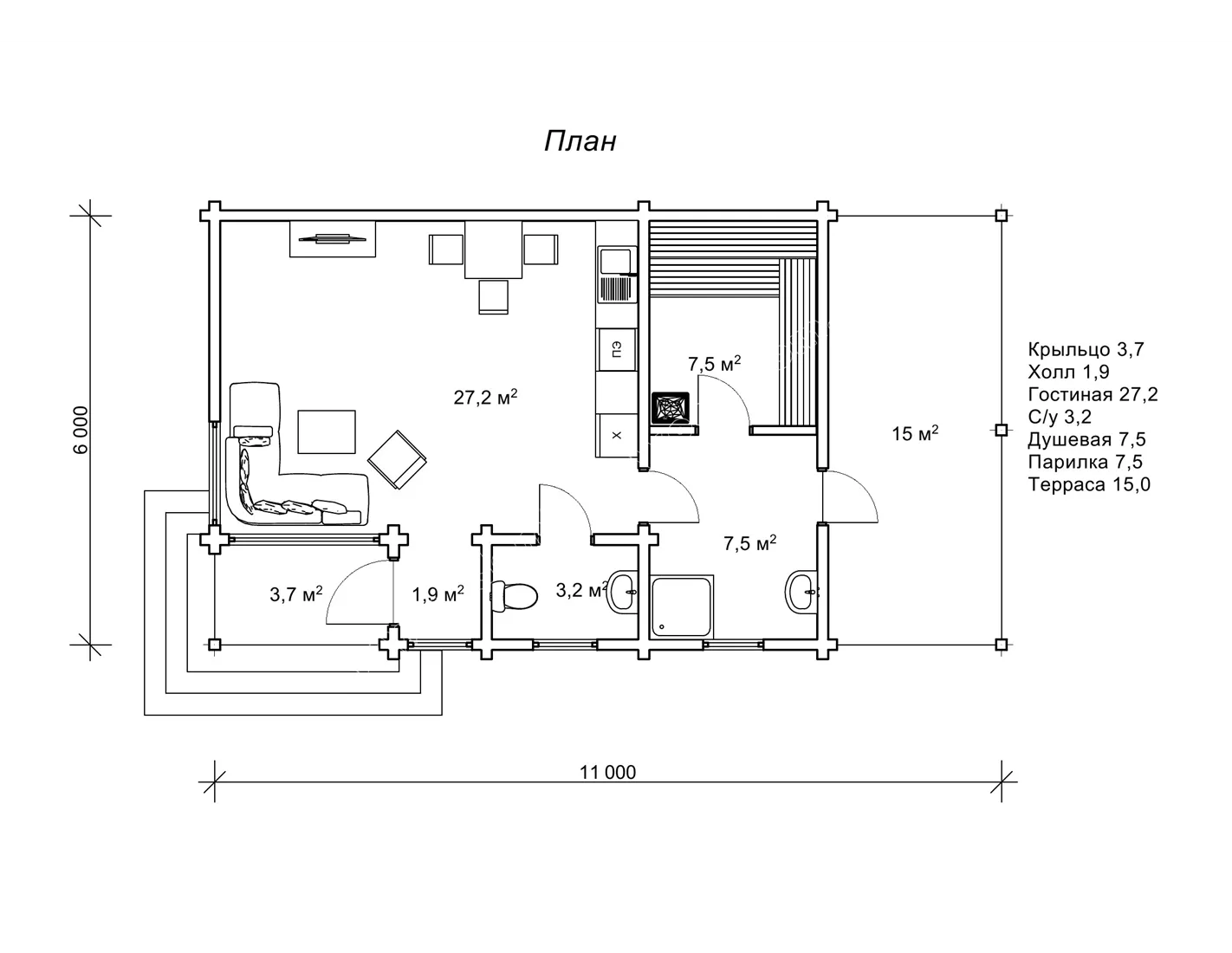
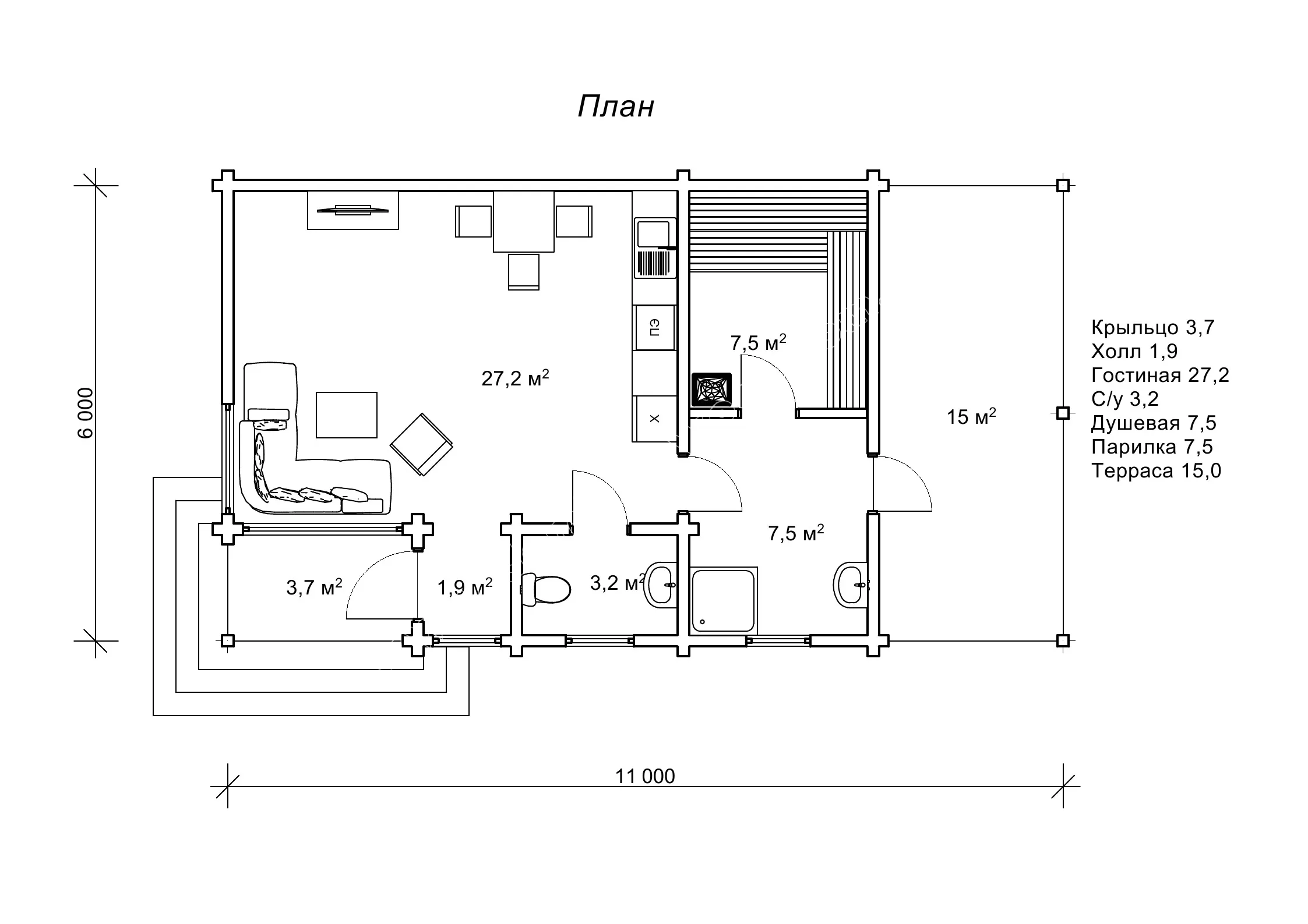
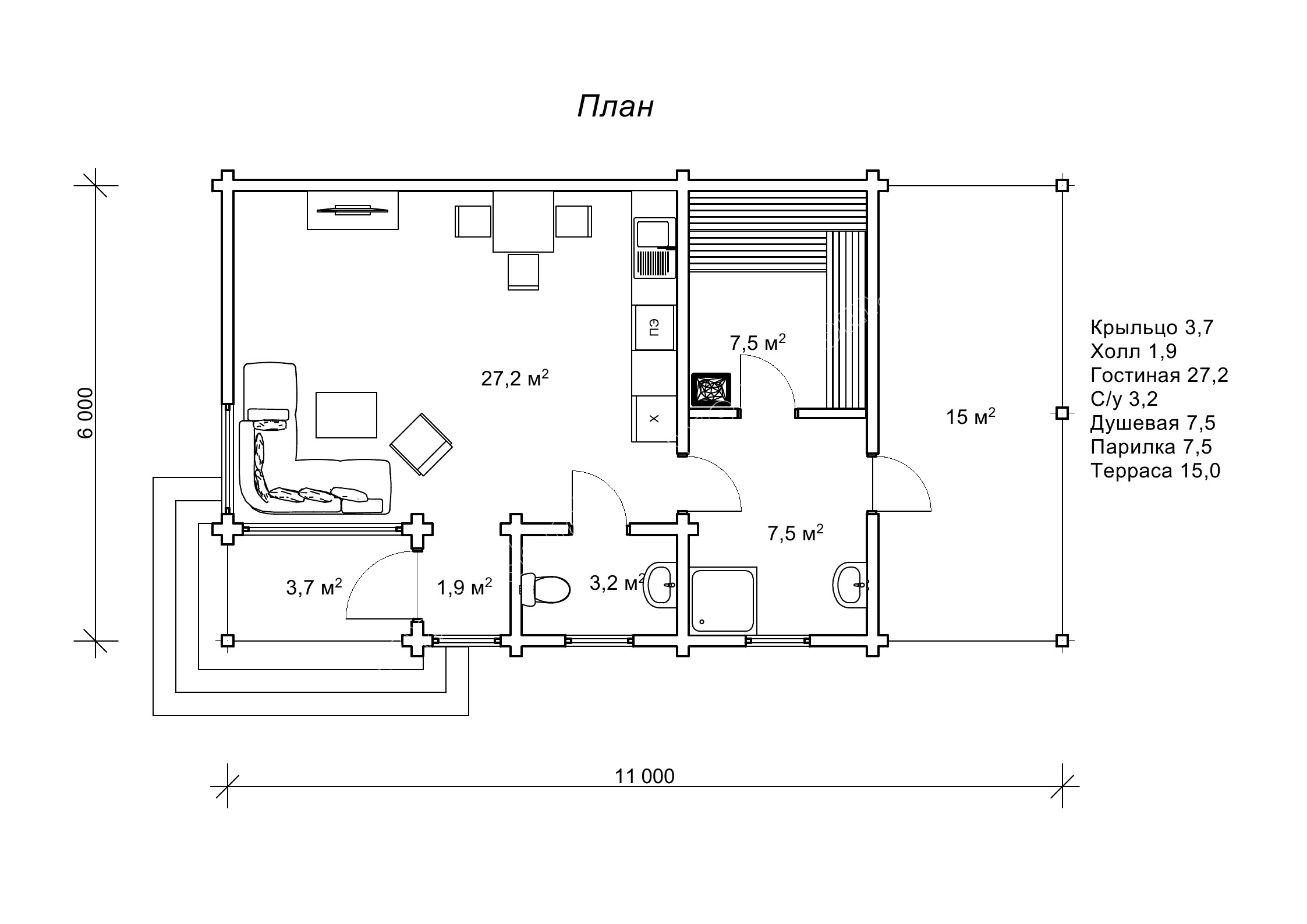
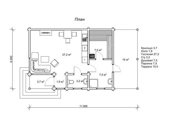
Проект Континент 3 є одним з найпопулярніших котеджів серед наших замовників, що зумовило розробку кількох різних варіацій вихідного проекту Континент. Більшість віддає перевагу таким практичним заміським спорудам як Континент3, бо вони відповідають всім побажанням щодо стильного зовнішнього вигляду, габаритних розмірів і внутрішнього наповнення заміського котеджу, який додатково до всього іншого поєднує функції дачі і лазні в одному котеджі.
Планування проекту Контінент3 створювалося на основі індивідуальних вимог більшості наших замовників, тому воно організоване максимально зручно для повноцінного відпочинку і проживання гостей і господарів. Габарити 6м на 11м і видовжена форма споруди оптимально дозволяє помістити будинок на компактній земельній ділянці і раціонально розмістити внутрішні приміщення. План проекту Контінент3 включає ганок, вітальню, санвузол, містку парильню площею 7,5 м², таку ж простору душову, звідки передбачений окремий вихід на літню терасу для того, щоб освіжитися прямо під час банних процедур.
Проект Контінент3 характеризується функціональністю і зовнішньою презентабельністю. Все це можна отримати за прийнятною ціною, замовивши будівництво котеджу за пропонованим готовим проектом. Такі котеджі, як Контінент3, завжди були найбільш затребуваними, тому, що на будівлі такого котеджу є можливість значно заощадити бюджет будівництва, адже в одній споруді ви отримуєте два об’єкти в одному: будинок і лазню. Багатофункціональний дачний або гостьовий будинок з лазнею заощадить фінанси, прикрасить заміську ділянку і стане улюбленим місцем відпочинку для всієї родини і численних гостей.
- Кількість поверхів
- 1
- Площа
- 66
- Ширина
- 6
- Довжина
- 11
- Будинки і житлові будови
- Дачі
Котеджі - Кількість кімнат
- Однокімнатні будинки
- Особливості будинків
- Будинки з терасою
Будинки з ґанком - Кількість поверхів споруди
- Одноповерхові будинки
- Будинки з брусу
- Будинки з клеєного брусу
Будинки з профільованого брусу - Садові та господарські споруди
- Бані
Бані з профільованого брусу
Базова комплектація:
(Що входить в ціну)
- комплект стін;
- комплект крокв;
- комплект балок перекриття;
- утеплювач міжвінцевий;
- антисептик (антисептування всього матеріалу);
- дубові нагеля;
- кріпильні материали (саморізи, усадкові болти, анкера, кріпильні пластини);
- гідроізоляція;
- вогнебіозахист (обробка деревини засобом І групи вогнезахисної ефективності)
225990 грн.
Дах (комплектність):
- Рейка 100*25мм (cосна)
- Контрейка 50*25мм (сосна)
- Металочерепиця МОНТЕРРЕЙ (Польща) 0,45мм
- Коник прямий
- Планка примикання
- Лобова (декоративна) планка
- Вітровая планка
- Яндола
- Капельник (Карнизна планка)
- Ущільнювач універсальный
- Саморізи ОС 4.8х35
- Фарба-спрей
- Гідробар'єр
- Монтаж
175400 грн.
Вікна (комплектність):
- Вікно VEKA 58, колір білий 10
- Імпости вертикальні: 1 x 102103
- Скління: СПО, 24мм, (Rсп=0.36)*
- Тип фурнітури: Activpilot поворотно-відкидна, колір білий
- Підбір спеціальний: Activ микровентиляція; Activ 2-функц. механ.
- Моск.сітка: МС 3
- Підвіконня: ВМ 110мм, колір білий
- Підвіконня: ПВ ПВХ 150, заглушки: 600мм, колір білий
- Монтаж
0 грн.
Двері (комплектність):
- Полотно
- Коробка
- Лиштва
- Карниз
- Фарбування
- Скло
- Фурнітура
- Врізка фурнітуры
- Монтаж
85064 грн.
Фарбування (комплектність):
- Шліфування торців
- Тришарове покриття ефективним деревозахисним засобом на базі низькомолекулярної алкідної смоли методом розпилення.
Оциліндрований брус
Оциліндрований брус є найбільш оптимальним і поширеним матеріалом для будівництва дерев`яних будинків і бань, бесідок, альтанок, різноманітних садових меблів, дерев`яних конструкцій будь-яких видів. Дерев`яні будинки з оциліндрованого брусу відрізняються красою, всередині такого будинку завжди відчувається особлива затишна атмосфера.
Профільований брус
Найсучаснішим і високотехнологічним будівельним матеріалом в дерев`яному будівництві на сьогоднішній день є профільований брус. Для виробництва профільованого брусу, звичайному дерев`яному брусу на спеціальному деревообробному обладнанні надається певний профіль.
Подвійний брус з утепленням
Головна ідея застосування подвійного бруса полягала в досягненні енергоефективності житла. Над проектуванням енергозберігаючих будинків працюють провідні інженери та архітектори в різних країнах світу, запропонована фінами технологія подвійного бруса дає можливість звести до мінімуму тепловтрати будинку, а також об`єднує переваги будівництва дерев`яного будинку з економічністю споруди.
Клеєний брус
Клеєний брус принципово відрізняється від інших типів колод багатошаровістю. Така структура робить цей дерев’яний матеріал надміцним і витривалим.
Каркасні конструкції
Каркасні конструкції виготовляються на власних виробничих потужностях компанії «Домінант», з використанням сучасних деревообробних станків. Імпортне, високоточне обладнання дозволяє нам високоякісно виконувати свою роботу. Каркаси складаються зі струганих, ретельно висушених балок 150х50 мм (сосна першого сорту). Ці балки застосовуються для зовнішніх каркасів.










