Гардеос
- Кількість поверхів
- 3
- Площа
- 670.4
- Ширина
- 16.9
- Довжина
- 18
- Будинки і житлові будови
- Маєтки
Садиби - Кількість кімнат
- Восьмикімнатні будинки
- Особливості будинків
- Будинки з балконом
Будинки з другим світлом
Будинки з мансардою
Будинки з терасою - Кількість поверхів споруди
- Триповерхові будинки
- Будинки з брусу
- Будинки з оциліндрованого брусу
(Що входить в ціну)
- комплект стін;
- комплект крокв;
- комплект балок перекриття;
- утеплювач міжвінцевий;
- антисептик (антисептування всього матеріалу);
- дубові нагеля;
- кріпильні материали (саморізи, усадкові болти, анкера, кріпильні пластини);
- гідроізоляція;
- вогнебіозахист (обробка деревини засобом І групи вогнезахисної ефективності)
Проект триповерхового особняка з оциліндрованого бруса Гардеос
Проект Гардеос - це особливий будинок, родинна садиба для респектабельного, заможного господаря, який може забезпечити для своєї сім’ї справжній комфорт і найздоровіші умови проживання в стінах з натурального дерева. Ефектний особняк з терасами, балконами і розкішними вікнами другого світла створений для того щоб стати родовим гніздом для великої родини і гостинним осередком для численних гостей.
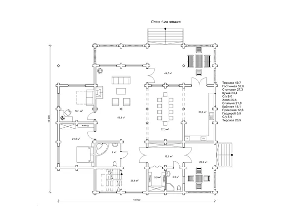
План особняка на три поверхи з 4 спальнями і другим світлом
Триповерховий будинок з оциліндрованих колод Гардеос dominant-wood.com.ua/uk/proekty/73-202-gardeos володіє масштабними габаритами будівлі, загальна площа будинку становить 670,4 м². На першому поверсі знаходиться дуже простора літня тераса площею 49,7 м², де можна виділити столову зону і облаштувати місце для відпочинку, поставивши зручні садові меблі. Також перший поверх включає передпокій, вітальню, їдальню, кухню, два санвузли, хол. На окрему увагу заслуговують приміщення кабінету і спальні на першому поверсі. Кабінет допоможе організувати роботу в спокійній, домашній обстановці. Спальня на першому поверсі буде найкомфортнішою кімнатою для літніх родичів, для тих, кому важко піднятися на другий або третій поверх по сходах. У цій кімнаті можна облаштувати кімнату для гостей, і вони зможуть довше погостювати в комфортній обстановці. На другому поверсі проектом передбачені спальні приміщення, санвузол і кабінет. На третьому поверсі розташовані кімнати відпочинку, хол, технічне приміщення і спроектовано друге світло, яке в такому величезному особняку стає ще ефектнішим і виглядає масштабнішим. Таке внутрішнє планування і архітектурні рішення в цілому дають великий простір для цікавих дизайнерських варіантів оформлення інтер’єру особняка Гардеос.
Будівництво триповерхового будинку з бруса
Замовити будівництво особняка Гардеос, можна звернувшись у виробничо-будівельну компанію «Домінант» dominant-wood.com.ua/ru по контактам у відповідному розділі. Прекрасний дерев’яний будинок по готовому проекту Гардеос здатний подарувати неповторне відчуття домашнього комфорту, спокій і затишок сім’ї, де про тебе піклуються, де тебе люблять, - все, що дійсно потрібно людині в цьому світі.
- Кількість поверхів
- 3
- Площа
- 670.4
- Ширина
- 16.9
- Довжина
- 18
- Будинки і житлові будови
- Маєтки
Садиби - Кількість кімнат
- Восьмикімнатні будинки
- Особливості будинків
- Будинки з балконом
Будинки з другим світлом
Будинки з мансардою
Будинки з терасою - Кількість поверхів споруди
- Триповерхові будинки
- Будинки з брусу
- Будинки з оциліндрованого брусу
Базова комплектація:
(Що входить в ціну)
- комплект стін;
- комплект крокв;
- комплект балок перекриття;
- утеплювач міжвінцевий;
- антисептик (антисептування всього матеріалу);
- дубові нагеля;
- кріпильні материали (саморізи, усадкові болти, анкера, кріпильні пластини);
- гідроізоляція;
- вогнебіозахист (обробка деревини засобом І групи вогнезахисної ефективності)
891810 грн.
Дах (комплектність):
- Рейка 100*25мм (cосна)
- Контрейка 50*25мм (сосна)
- Металочерепиця МОНТЕРРЕЙ (Польща) 0,45мм
- Коник прямий
- Планка примикання
- Лобова (декоративна) планка
- Вітровая планка
- Яндола
- Капельник (Карнизна планка)
- Ущільнювач універсальный
- Саморізи ОС 4.8х35
- Фарба-спрей
- Гідробар'єр
- Монтаж
1297960 грн.
Вікна (комплектність):
- Вікно VEKA 58, колір білий 10
- Імпости вертикальні: 1 x 102103
- Скління: СПО, 24мм, (Rсп=0.36)*
- Тип фурнітури: Activpilot поворотно-відкидна, колір білий
- Підбір спеціальний: Activ микровентиляція; Activ 2-функц. механ.
- Моск.сітка: МС 3
- Підвіконня: ВМ 110мм, колір білий
- Підвіконня: ПВ ПВХ 150, заглушки: 600мм, колір білий
- Монтаж
0 грн.
Двері (комплектність):
- Полотно
- Коробка
- Лиштва
- Карниз
- Фарбування
- Скло
- Фурнітура
- Врізка фурнітуры
- Монтаж
573748 грн.
Фарбування (комплектність):
- Шліфування торців
- Тришарове покриття ефективним деревозахисним засобом на базі низькомолекулярної алкідної смоли методом розпилення.
Параметри забудови
- Кількість поверхів: 3
- Площа: 670.4
Розмір забудови
- Ширина: 16.9
- Довжина: 18
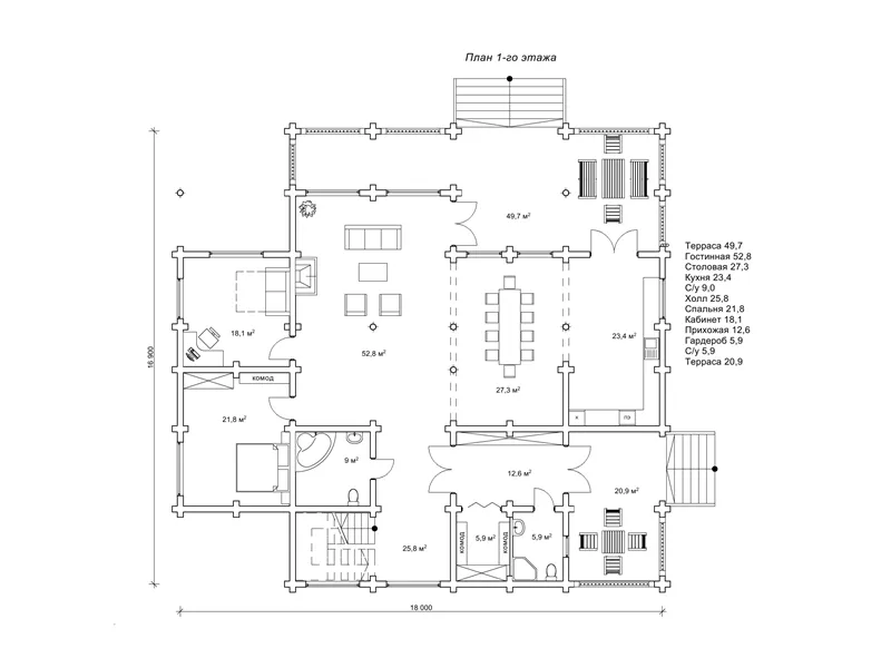
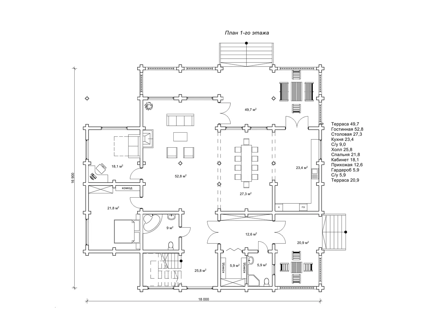
Перший поверх
| тераса (м²) | 49,7 |
| вітальня (м²) | 52,8 |
| їдальня (м²) | 27,3 |
| кухня (м²) | 23,4 |
| с/в (м²) | 9 |
| хол (м²) | 25,8 |
| спальня (м²) | 21,8 |
| кабінет (м²) | 18,1 |
| передпокій (м²) | 12,6 |
| гардероб (м²) | 5,9 |
| с/в (м²) | 5,9 |
| тераса (м²) | 20,9 |
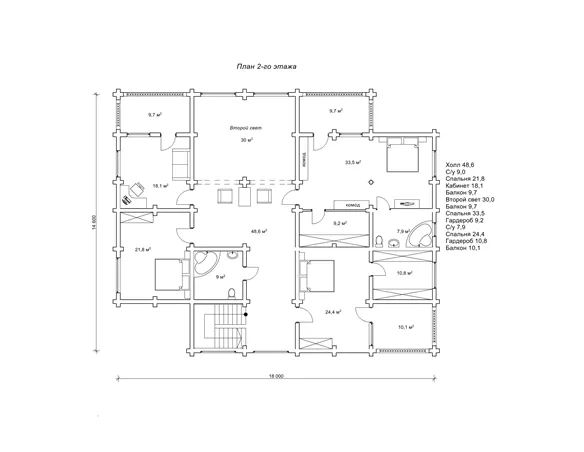
Другий поверх
| хол (м²) | 48,6 |
| с/в (м²) | 9 |
| спальня (м²) | 21,8 |
| кабінет (м²) | 18,1 |
| балкон (м²) | 9,7 |
| друге світло (м²) | 30 |
| балкон (м²) | 9,7 |
| спальня (м²) | 33,5 |
| гардероб (м²) | 9,2 |
| с/в (м²) | 7,9 |
| спальня (м²) | 24,4 |
| гардероб (м²) | 10,8 |
| балкон (м²) | 10 |
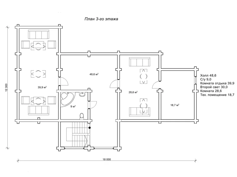
Третій поверх
| хол(м²) | 48,6 |
| с/в (м²) | 9 |
| кімната відпочинку (м²) | 39,9 |
| друге світло (м²) | 30 |
| кімната (м²) | 28,6 |
| тех. приміщення (м²) | 18,7 |
Оциліндрований брус
Оциліндрований брус є найбільш оптимальним і поширеним матеріалом для будівництва дерев`яних будинків і бань, бесідок, альтанок, різноманітних садових меблів, дерев`яних конструкцій будь-яких видів. Дерев`яні будинки з оциліндрованого брусу відрізняються красою, всередині такого будинку завжди відчувається особлива затишна атмосфера.
Профільований брус
Найсучаснішим і високотехнологічним будівельним матеріалом в дерев`яному будівництві на сьогоднішній день є профільований брус. Для виробництва профільованого брусу, звичайному дерев`яному брусу на спеціальному деревообробному обладнанні надається певний профіль.
Подвійний брус з утепленням
Головна ідея застосування подвійного бруса полягала в досягненні енергоефективності житла. Над проектуванням енергозберігаючих будинків працюють провідні інженери та архітектори в різних країнах світу, запропонована фінами технологія подвійного бруса дає можливість звести до мінімуму тепловтрати будинку, а також об`єднує переваги будівництва дерев`яного будинку з економічністю споруди.
Клеєний брус
Клеєний брус принципово відрізняється від інших типів колод багатошаровістю. Така структура робить цей дерев’яний матеріал надміцним і витривалим.
Каркасні конструкції
Каркасні конструкції виготовляються на власних виробничих потужностях компанії «Домінант», з використанням сучасних деревообробних станків. Імпортне, високоточне обладнання дозволяє нам високоякісно виконувати свою роботу. Каркаси складаються зі струганих, ретельно висушених балок 150х50 мм (сосна першого сорту). Ці балки застосовуються для зовнішніх каркасів.














