Шедар
- Кількість поверхів
- 1
- Площа
- 88.3
- Ширина
- 9
- Довжина
- 11.7
- Будинки і житлові будови
- Будиночки
Вілли
Дачі
Котеджі - Кількість кімнат
- Двокімнатні будинки
- Особливості будинків
- Будинки з терасою
- Кількість поверхів споруди
- Одноповерхові будинки
- Будинки з брусу
- Будинки з клеєного брусу
Будинки з профільованого брусу
(Що входить в ціну)
- комплект стін;
- комплект крокв;
- комплект балок перекриття;
- утеплювач міжвінцевий;
- антисептик (антисептування всього матеріалу);
- дубові нагеля;
- кріпильні материали (саморізи, усадкові болти, анкера, кріпильні пластини);
- гідроізоляція;
- вогнебіозахист (обробка деревини засобом І групи вогнезахисної ефективності)
Проект котеджу з оригінальним плануванням «Шедар»
Проект «Шедар» - це дуже красивий будинок із сухого, профільованого бруса, який має стильний, лаконічний дизайн. Ефектно виглядають великі вікна від підлоги до стелі на фасадах котеджу. Форма споруди дуже незвичайна. Будиночок ніби складається з двох прямокутних будов, які приєднані один до одного з кутового боку. З протилежних фасадів будівлі симетрично розміщуються входи. Над головним входом є навіс, що вкриває терасу розміром 9 м2. А з боку заднього дворика передбачений відкритий майданчик, де можна насолоджуватися відкритим сонцем і свіжим повітрям. Такий одноповерховий будиночок порадує свого власника перевагами як в естетичному, так і в практичному плані. Котедж з оригінальним плануванням «Шедар» стане втіленням найексклюзивніших вподобань своїх господарів.
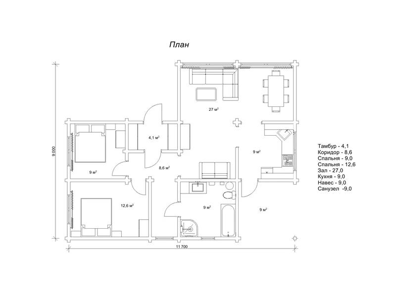
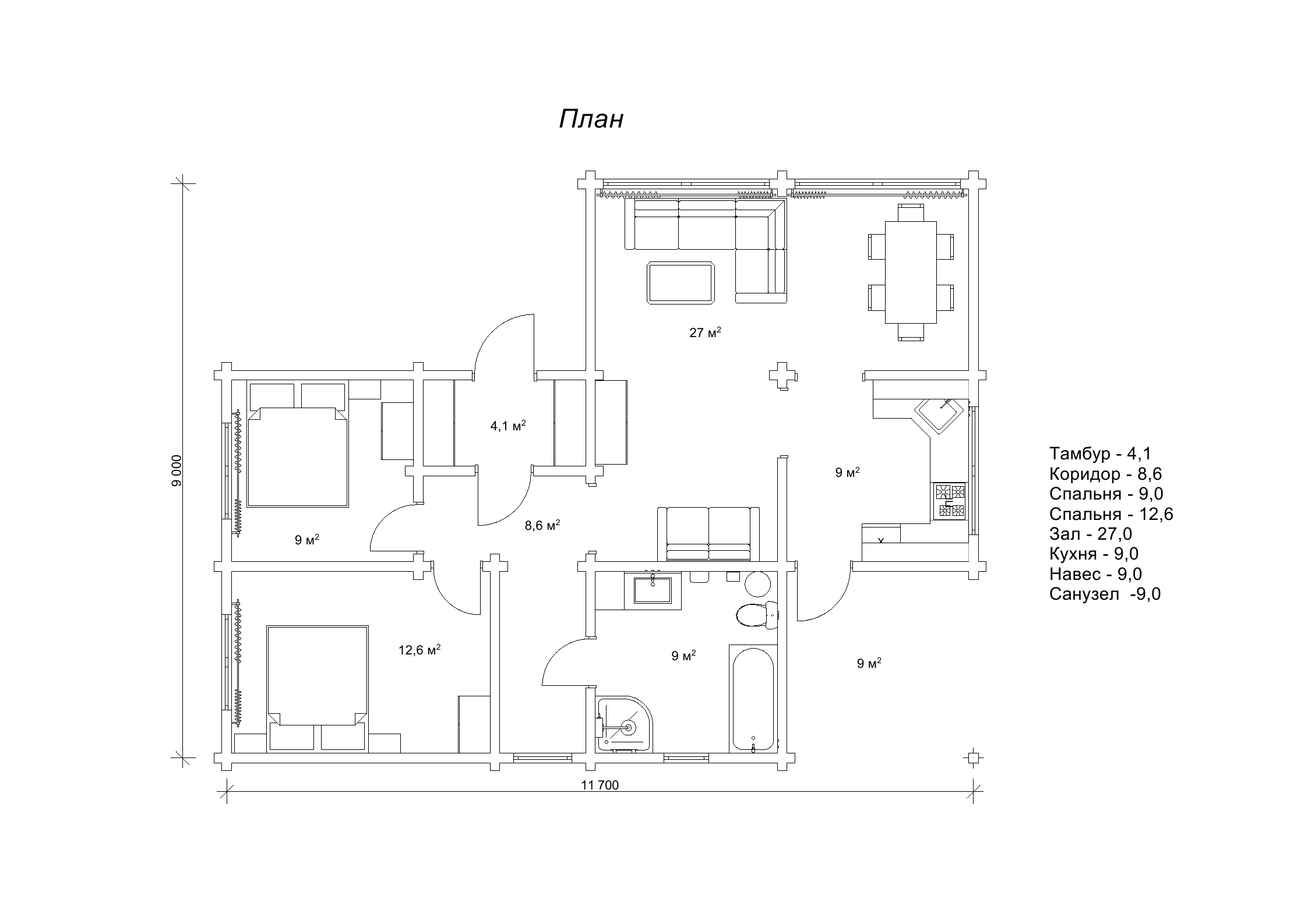
Будівництво котеджу «Шедар» з оригінальним плануванням, площа 88,3 м2
Котедж з оригінальним плануванням «Шедар» характеризується великими габаритами 9 на 11,7 м саме через вигадливі форми будівництва. Але корисна площа житлових приміщень будиночка досить компактна і становить лише 88,3 м2. Усередині проекту є дві спальні, кухня, зал, санвузол. Наявність теплового тамбуру говорить про всесезонну функціональність котеджу. Будинок із сухого бруса «Шедар» стане чудовим вибором у якості заміського житла, плюс подарує господарям чудову можливість розкрити свої дизайнерські здібності у створенні стильного інтер'єру. Погодьтеся, що таке оригінальне планування, як у котеджі «Шедар», вимагає відповідного оформлення, щоб незвичний зовнішній вигляд будівлі гармоніював із внутрішнім оздобленням. Будівництво котеджу «Шедар» з оригінальним плануванням підійде справжньому естету, для якого дуже важливою є не тільки хороша функціональність житла, але і його естетична складова.
- Кількість поверхів
- 1
- Площа
- 88.3
- Ширина
- 9
- Довжина
- 11.7
- Будинки і житлові будови
- Будиночки
Вілли
Дачі
Котеджі - Кількість кімнат
- Двокімнатні будинки
- Особливості будинків
- Будинки з терасою
- Кількість поверхів споруди
- Одноповерхові будинки
- Будинки з брусу
- Будинки з клеєного брусу
Будинки з профільованого брусу
Базова комплектація:
(Що входить в ціну)
- комплект стін;
- комплект крокв;
- комплект балок перекриття;
- утеплювач міжвінцевий;
- антисептик (антисептування всього матеріалу);
- дубові нагеля;
- кріпильні материали (саморізи, усадкові болти, анкера, кріпильні пластини);
- гідроізоляція;
- вогнебіозахист (обробка деревини засобом І групи вогнезахисної ефективності)
289170 грн.
Дах (комплектність):
- Рейка 100*25мм (cосна)
- Контрейка 50*25мм (сосна)
- Металочерепиця МОНТЕРРЕЙ (Польща) 0,45мм
- Коник прямий
- Планка примикання
- Лобова (декоративна) планка
- Вітровая планка
- Яндола
- Капельник (Карнизна планка)
- Ущільнювач універсальный
- Саморізи ОС 4.8х35
- Фарба-спрей
- Гідробар'єр
- Монтаж
368340 грн.
Вікна (комплектність):
- Вікно VEKA 58, колір білий 10
- Імпости вертикальні: 1 x 102103
- Скління: СПО, 24мм, (Rсп=0.36)*
- Тип фурнітури: Activpilot поворотно-відкидна, колір білий
- Підбір спеціальний: Activ микровентиляція; Activ 2-функц. механ.
- Моск.сітка: МС 3
- Підвіконня: ВМ 110мм, колір білий
- Підвіконня: ПВ ПВХ 150, заглушки: 600мм, колір білий
- Монтаж
83600 грн.
Двері (комплектність):
- Полотно
- Коробка
- Лиштва
- Карниз
- Фарбування
- Скло
- Фурнітура
- Врізка фурнітуры
- Монтаж
136276 грн.
Фарбування (комплектність):
- Шліфування торців
- Тришарове покриття ефективним деревозахисним засобом на базі низькомолекулярної алкідної смоли методом розпилення.
Оциліндрований брус
Оциліндрований брус є найбільш оптимальним і поширеним матеріалом для будівництва дерев`яних будинків і бань, бесідок, альтанок, різноманітних садових меблів, дерев`яних конструкцій будь-яких видів. Дерев`яні будинки з оциліндрованого брусу відрізняються красою, всередині такого будинку завжди відчувається особлива затишна атмосфера.
Профільований брус
Найсучаснішим і високотехнологічним будівельним матеріалом в дерев`яному будівництві на сьогоднішній день є профільований брус. Для виробництва профільованого брусу, звичайному дерев`яному брусу на спеціальному деревообробному обладнанні надається певний профіль.
Подвійний брус з утепленням
Головна ідея застосування подвійного бруса полягала в досягненні енергоефективності житла. Над проектуванням енергозберігаючих будинків працюють провідні інженери та архітектори в різних країнах світу, запропонована фінами технологія подвійного бруса дає можливість звести до мінімуму тепловтрати будинку, а також об`єднує переваги будівництва дерев`яного будинку з економічністю споруди.
Клеєний брус
Клеєний брус принципово відрізняється від інших типів колод багатошаровістю. Така структура робить цей дерев’яний матеріал надміцним і витривалим.
Каркасні конструкції
Каркасні конструкції виготовляються на власних виробничих потужностях компанії «Домінант», з використанням сучасних деревообробних станків. Імпортне, високоточне обладнання дозволяє нам високоякісно виконувати свою роботу. Каркаси складаються зі струганих, ретельно висушених балок 150х50 мм (сосна першого сорту). Ці балки застосовуються для зовнішніх каркасів.

















