Горда
- Кількість поверхів
- 2
- Площа
- 162
- Ширина
- 11
- Довжина
- 9
- Будинки і житлові будови
- Вілли
Котеджі
Маєтки - Кількість кімнат
- Чотирикімнатні будинки
- Особливості будинків
- Будинки з мансардою
Будинки з терасою - Кількість поверхів споруди
- Двоповерхові будинки
- Будинки з брусу
- Будинки з оциліндрованого брусу
(Що входить в ціну)
- комплект стін;
- комплект крокв;
- комплект балок перекриття;
- утеплювач міжвінцевий;
- антисептик (антисептування всього матеріалу);
- дубові нагеля;
- кріпильні материали (саморізи, усадкові болти, анкера, кріпильні пластини);
- гідроізоляція;
- вогнебіозахист (обробка деревини засобом І групи вогнезахисної ефективності)
Будівництво вілли з дерев’яного зрубу 11 на 9 м
Добротна і ефектна будова з масивних колод «Горда» відразу привертає до себе увагу. Це сучасний проект просторої вілли з мансардою, побудований з найбільш екологічного, натурального матеріалу. Сосновий брус, насичений корисними смолами і ефірними маслами, зробить відпочинок в такій віллі по-справжньому оздоровчим. У проекті «Горда» вдало поєднуються цікаві архітектурні рішення зі зручним плануванням. Проект «Горда» створений для тих, хто цінує красу і натуральність соснового зрубу і хоче отримувати насолоду від життя у винятковому комфорті дерев’яного будинку.
Вілла з дерев’яного зрубу «Горда» площа 162 м²
На площі розміром 162 м2 дерев’яної споруди за проектом «Горда» спланована мансарда і велика тераса під навісом розміром 22,5 м2. Просторі параметри дерев’яної вілли «Горда» 11 на 9 м дають багато простору для комфортного планування. На першому поверсі є дуже просторий зал з виходом на терасу. Окремо розташоване приміщення кухні. Також передбачено наявність хозприміщення, комори і теплового тамбура. Дуже зручно для організації побуту господарів, що в будинку крім житлових приміщень присутні підсобні кімнати. Вілла «Горда» розрахована на проживання і відпочинок великої родини і включає три великі спальні на другому поверсі. Характерною особливістю вілли зі зрубу виступає наявність окремого санвузла при кожній житловій кімнаті. Такий ексклюзивний проект дерев’яної вілли може служити не тільки відмінним рішенням для побудови комфортного житла, а й успішним комерційним проектом під здачу в оренду.
- Кількість поверхів
- 2
- Площа
- 162
- Ширина
- 11
- Довжина
- 9
- Будинки і житлові будови
- Вілли
Котеджі
Маєтки - Кількість кімнат
- Чотирикімнатні будинки
- Особливості будинків
- Будинки з мансардою
Будинки з терасою - Кількість поверхів споруди
- Двоповерхові будинки
- Будинки з брусу
- Будинки з оциліндрованого брусу
Базова комплектація:
(Що входить в ціну)
- комплект стін;
- комплект крокв;
- комплект балок перекриття;
- утеплювач міжвінцевий;
- антисептик (антисептування всього матеріалу);
- дубові нагеля;
- кріпильні материали (саморізи, усадкові болти, анкера, кріпильні пластини);
- гідроізоляція;
- вогнебіозахист (обробка деревини засобом І групи вогнезахисної ефективності)
376650 грн.
Дах (комплектність):
- Рейка 100*25мм (cосна)
- Контрейка 50*25мм (сосна)
- Металочерепиця МОНТЕРРЕЙ (Польща) 0,45мм
- Коник прямий
- Планка примикання
- Лобова (декоративна) планка
- Вітровая планка
- Яндола
- Капельник (Карнизна планка)
- Ущільнювач універсальный
- Саморізи ОС 4.8х35
- Фарба-спрей
- Гідробар'єр
- Монтаж
385880 грн.
Вікна (комплектність):
- Вікно VEKA 58, колір білий 10
- Імпости вертикальні: 1 x 102103
- Скління: СПО, 24мм, (Rсп=0.36)*
- Тип фурнітури: Activpilot поворотно-відкидна, колір білий
- Підбір спеціальний: Activ микровентиляція; Activ 2-функц. механ.
- Моск.сітка: МС 3
- Підвіконня: ВМ 110мм, колір білий
- Підвіконня: ПВ ПВХ 150, заглушки: 600мм, колір білий
- Монтаж
125400 грн.
Двері (комплектність):
- Полотно
- Коробка
- Лиштва
- Карниз
- Фарбування
- Скло
- Фурнітура
- Врізка фурнітуры
- Монтаж
199640 грн.
Фарбування (комплектність):
- Шліфування торців
- Тришарове покриття ефективним деревозахисним засобом на базі низькомолекулярної алкідної смоли методом розпилення.
Параметри забудови
- Кількість поверхів: 2
- Площа: 162
Розмір забудови
- Ширина: 11
- Довжина: 9
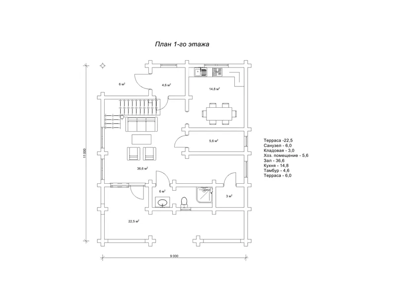
Перший поверх
| тераса (м²) | 22,5 |
| санвузол (м²) | 6,0 |
| кладова (м²) | 3,0 |
| госп. приміщення (м²) | 5,6 |
| зала (м²) | 36,6 |
| кухня (м²) | 148 |
| тамбур (м²) | 14,6 |
| тераса (м²) | 6,0 |
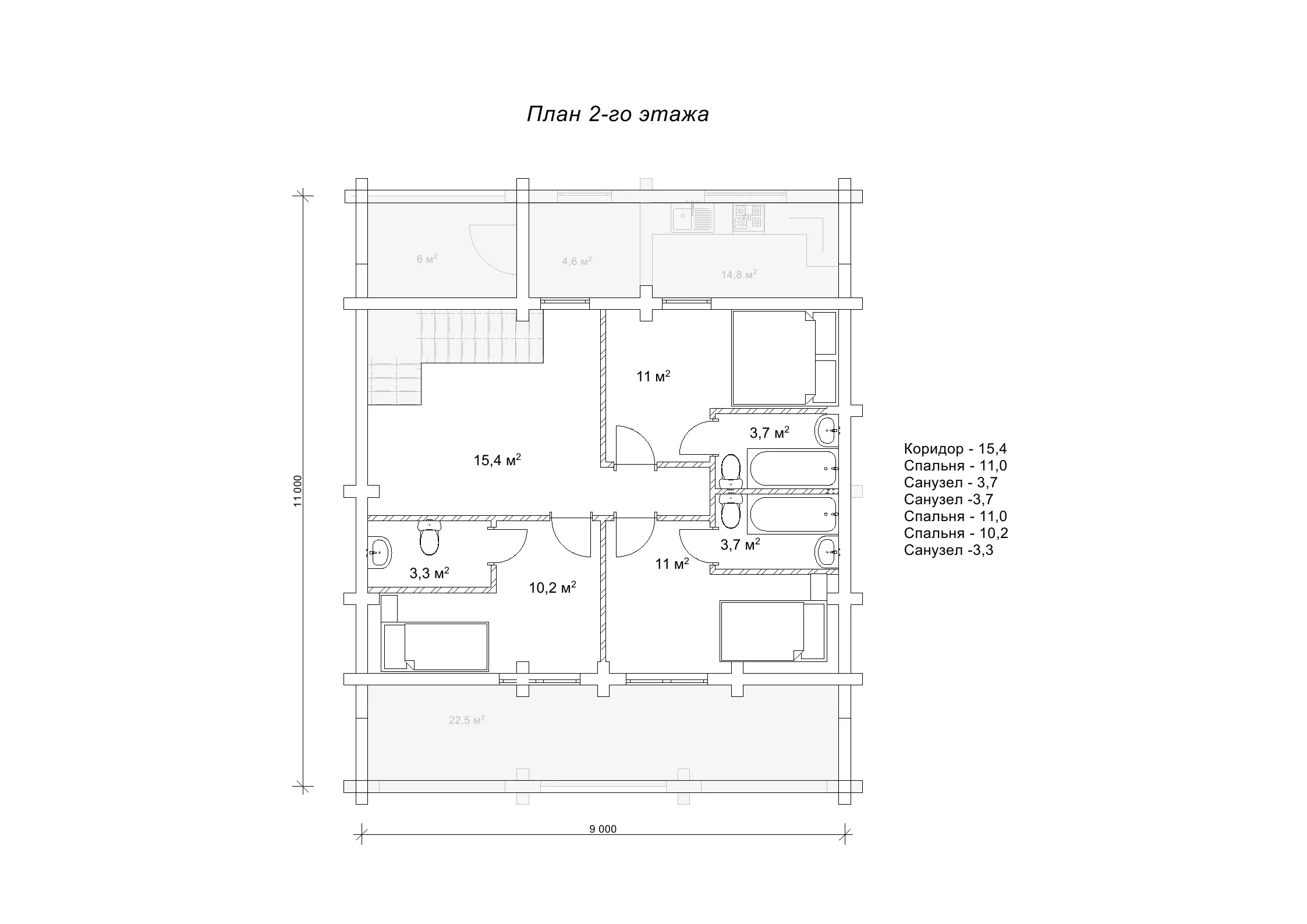
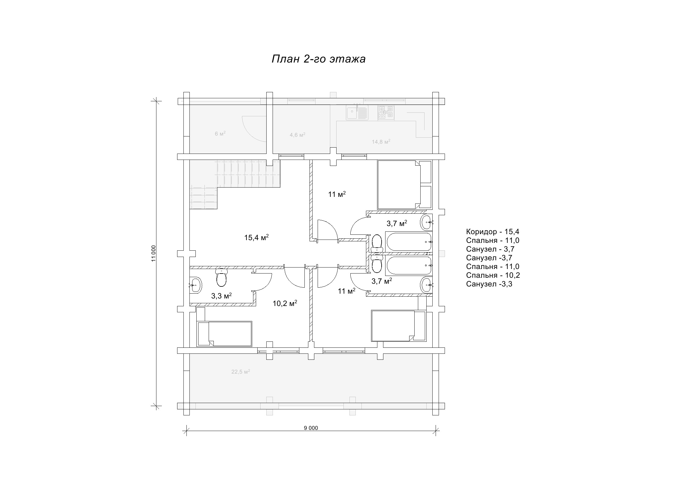
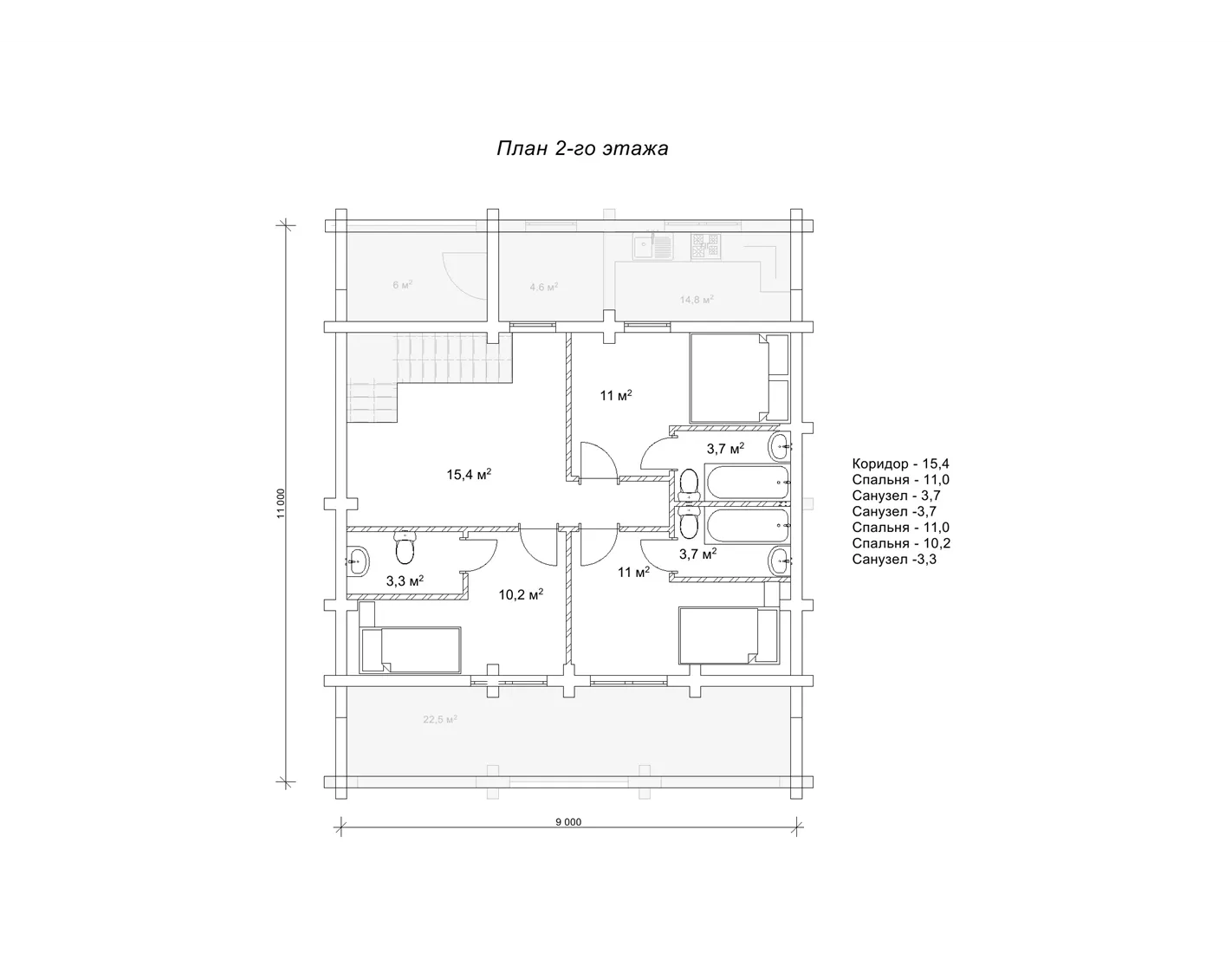
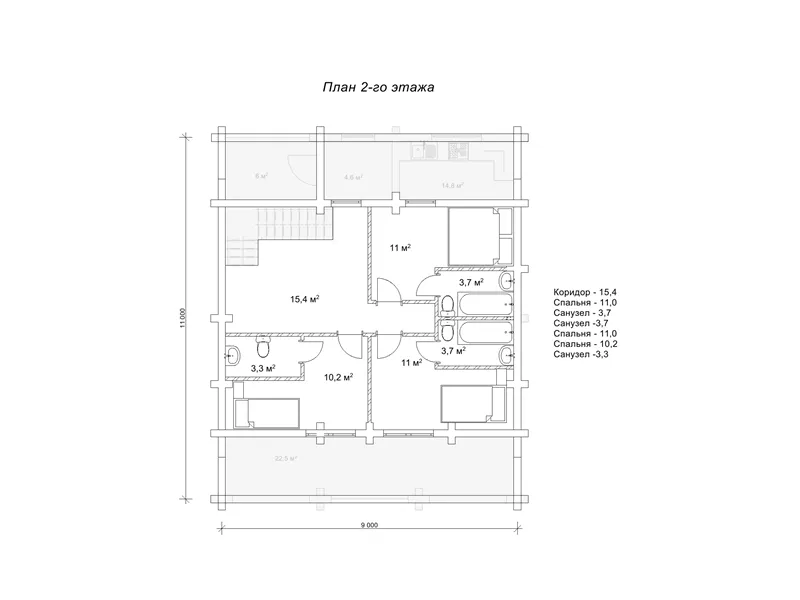
Другий поверх
| коридор (м²) | 15,4 |
| спальня (м²) | 11,0 |
| санвузол (м²) | 3,7 |
| санвузол (м²) | 3,7 |
| спальня (м²) | 11,0 |
| спальня (м²) | 10,2 |
| санвузол (м²) | 3,3 |
Оциліндрований брус
Оциліндрований брус є найбільш оптимальним і поширеним матеріалом для будівництва дерев`яних будинків і бань, бесідок, альтанок, різноманітних садових меблів, дерев`яних конструкцій будь-яких видів. Дерев`яні будинки з оциліндрованого брусу відрізняються красою, всередині такого будинку завжди відчувається особлива затишна атмосфера.
Профільований брус
Найсучаснішим і високотехнологічним будівельним матеріалом в дерев`яному будівництві на сьогоднішній день є профільований брус. Для виробництва профільованого брусу, звичайному дерев`яному брусу на спеціальному деревообробному обладнанні надається певний профіль.
Подвійний брус з утепленням
Головна ідея застосування подвійного бруса полягала в досягненні енергоефективності житла. Над проектуванням енергозберігаючих будинків працюють провідні інженери та архітектори в різних країнах світу, запропонована фінами технологія подвійного бруса дає можливість звести до мінімуму тепловтрати будинку, а також об`єднує переваги будівництва дерев`яного будинку з економічністю споруди.
Клеєний брус
Клеєний брус принципово відрізняється від інших типів колод багатошаровістю. Така структура робить цей дерев’яний матеріал надміцним і витривалим.
Каркасні конструкції
Каркасні конструкції виготовляються на власних виробничих потужностях компанії «Домінант», з використанням сучасних деревообробних станків. Імпортне, високоточне обладнання дозволяє нам високоякісно виконувати свою роботу. Каркаси складаються зі струганих, ретельно висушених балок 150х50 мм (сосна першого сорту). Ці балки застосовуються для зовнішніх каркасів.

















