Зателефонуйте мені
Марун №1
Марун №2
Марун №3
Марун №4
Марун №5
Марун №6
Марун №7
Марун №1
Марун №2
Марун №3
Марун №4
Марун №5
Марун №6
Марун №7
Марун №1
Марун №1 Марун №2 Марун №3 Марун №4 Марун №5 Марун №6 Марун №7

Марун

1 089 725,00 ₴
Гостьовий котедж на 3 номери під здавання в оренду - «Марун»
Розмір брусу
  • Оциліндрований 160
  • Оциліндрований 180
  • Оциліндрований 200
  • Оциліндрований 220
  • Профільований 60
  • Профільований 150
  • Профільований 200
  • Подвійний 300
  • Клеєний 120
  • Клеєний 180
Кількість поверхів
2
Площа
138
Ширина
10.6
Довжина
6.5
Будинки і житлові будови
Котеджі
Кількість кімнат
Трикімнатні будинки
Особливості будинків
Будинки з балконом
Будинки з мансардою
Будинки з терасою
Будинки зі сходами
Кількість поверхів споруди
Двоповерхові будинки
Будинки з брусу
Будинки з оциліндрованого брусу
Комерційні будівлі
Бази відпочинку
Готелі
 

(Що входить в ціну)

Що входить в базову комплектацію

  • комплект стін;
  • комплект крокв;
  • комплект балок перекриття;
  • утеплювач міжвінцевий;
  • антисептик (антисептування всього матеріалу);
  • дубові нагеля;
  • кріпильні материали (саморізи, усадкові болти, анкера, кріпильні пластини);
  • гідроізоляція;
  • вогнебіозахист (обробка деревини засобом І групи вогнезахисної ефективності)

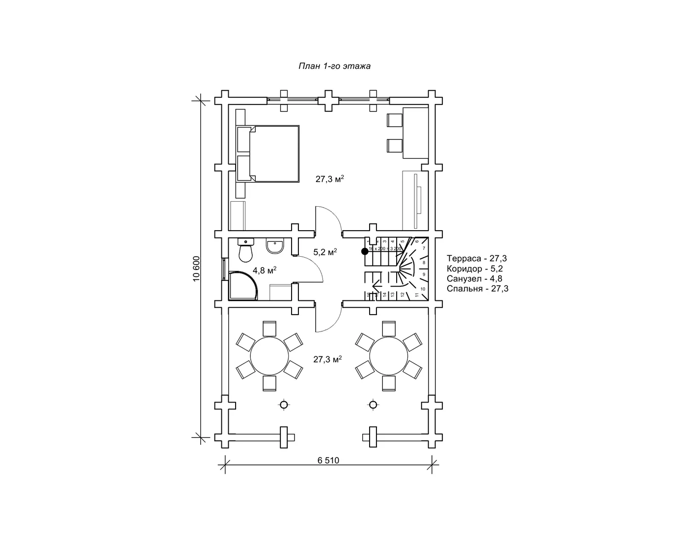
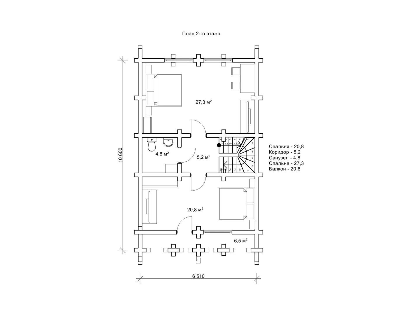
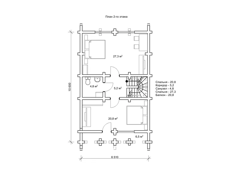
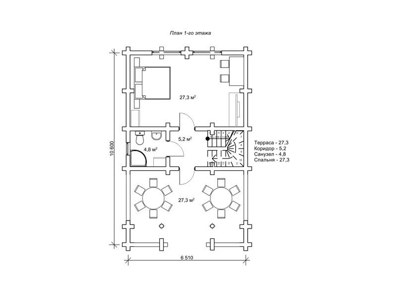
Проект гостьового котеджу «Марун» площа 138 м2

Проект «Марун» - це класична модель дерев’яного котеджу з мансардою, балкончиком і терасою. Типовий котедж зі зрубу є одним з найбільш затребуваних варіантів для будівництва в готельному комплексі або в котеджному містечку. Тут є все найнеобхідніше для створення комфорту і приємної атмосфери відпочинку і розслаблення. Універсальність і привабливий зовнішній вигляд - головні характеристика проекту «Марун». Оптимальним проектом для комерційного використання його робить внутрішнє планування, яке розраховане на три номери для гостей. Розглянемо докладніше план і розміри споруди.

План проекту «Марун» на 3 номери для гостей

Параметри забудови котеджу становлять 10,6 на 6,5 м, він містить півтора поверху, простору терасу, балкон і три номери для відпочиваючих. Загальна площа проекту «Марун» становить 138 м2, він виконується з оциліндрованого зрубу. Колодчаста споруда відрізняється привабливим зовнішнім дизайном і затишним інтер’єром. Це обов’язково сподобається туристам і посприяє гарному відпочинку та оздоровлення в атмосфері природи і краси. На великій терасі біля будинку площею 27,3 м можна поставити кілька столиків для гостей, де можна провести приємне дозвілля після насиченого пригодами дня. Кожен з трьох номерів для туристів має достатню площу для створення затишної атмосфери, а на кожному поверсі передбачено санвузол. Як бачимо планування котеджу «Марун» містить виключно кімнати для гостей і передбачене для побудови в готельному комплексі, де вже є будівлі ресторану і офісу для адміністрації.

Спорудження котеджів під здавання в оренду

Будівництво дерев’яного котеджу під здавання в оренду - це дуже вигідне капіталовкладення. Адже вибираючи для будівництва бази відпочинку оциліндрований зруб, вам не потрібно буде вкладати в будівництво масу зусиль і грошей. Посудіть самі, дерев’яний зруб не потрібно додатково утеплювати і обробляти стіни (вони й так теплі і гарні). Він швидко складається: колода за колодою, а після завершення будівництва практично відразу готовий до експлуатації. Оригінальний дерев’яний котедж «Марун» заслужено може стати перлиною морського узбережжя або прикрасою мальовничого гірського ландшафту, приносячи чималий прибуток господарям. Для замовлення споруди котеджу «Марун» під здачу в оренду, зателефонуйте в офіс «Домінант»: +38 063 499-91-00; +38 097 012-38-52 (Viber; WhatsApp).

Кількість поверхів
2
Площа
138
Ширина
10.6
Довжина
6.5
Будинки і житлові будови
Котеджі
Кількість кімнат
Трикімнатні будинки
Особливості будинків
Будинки з балконом
Будинки з мансардою
Будинки з терасою
Будинки зі сходами
Кількість поверхів споруди
Двоповерхові будинки
Будинки з брусу
Будинки з оциліндрованого брусу
Комерційні будівлі
Бази відпочинку
Готелі

Базова комплектація:
(Що входить в ціну)

Що входить в базову комплектацію

  • комплект стін;
  • комплект крокв;
  • комплект балок перекриття;
  • утеплювач міжвінцевий;
  • антисептик (антисептування всього матеріалу);
  • дубові нагеля;
  • кріпильні материали (саморізи, усадкові болти, анкера, кріпильні пластини);
  • гідроізоляція;
  • вогнебіозахист (обробка деревини засобом І групи вогнезахисної ефективності)

294030 грн.

Дах (комплектність):

  • Рейка 100*25мм (cосна)
  • Контрейка 50*25мм (сосна)
  • Металочерепиця МОНТЕРРЕЙ (Польща) 0,45мм
  • Коник прямий
  • Планка примикання
  • Лобова (декоративна) планка
  • Вітровая планка
  • Яндола
  • Капельник (Карнизна планка)
  • Ущільнювач універсальный
  • Саморізи ОС 4.8х35
  • Фарба-спрей
  • Гідробар'єр
  • Монтаж

175400 грн.

Вікна (комплектність):

  • Вікно VEKA 58, колір білий 10
  • Імпости вертикальні: 1 x 102103
  • Скління: СПО, 24мм, (Rсп=0.36)*
  • Тип фурнітури: Activpilot поворотно-відкидна, колір білий
  • Підбір спеціальний: Activ микровентиляція; Activ 2-функц. механ.
  • Моск.сітка: МС 3
  • Підвіконня: ВМ 110мм, колір білий
  • Підвіконня: ПВ ПВХ 150, заглушки: 600мм, колір білий
  • Монтаж

83600 грн.

Двері (комплектність):

  • Полотно
  • Коробка
  • Лиштва
  • Карниз
  • Фарбування
  • Скло
  • Фурнітура
  • Врізка фурнітуры
  • Монтаж

173600 грн.

Фарбування (комплектність):

  • Шліфування торців
  • Тришарове покриття ефективним деревозахисним засобом на базі низькомолекулярної алкідної смоли методом розпилення.

Параметри забудови

  • Кількість поверхів: 2
  • Площа: 138

Розмір забудови

  • Ширина: 10.6
  • Довжина: 6.5

Перший поверх

тераса (м²)27,3
коридор (м²)5,2
санвузол (м²)4,8
спальня (м²)27,3

Другий поверх

спальня (м²)20,8
коридор (м²)5,2
санвузол (м²)4,8
спальня (м²)27,3
балкон (м²)20,8

Оциліндрований брус

Оциліндрований брус є найбільш оптимальним і поширеним матеріалом для будівництва дерев`яних будинків і бань, бесідок, альтанок, різноманітних садових меблів, дерев`яних конструкцій будь-яких видів. Дерев`яні будинки з оциліндрованого брусу відрізняються красою, всередині такого будинку завжди відчувається особлива затишна атмосфера.

Читати далі...

Профільований брус

Найсучаснішим і високотехнологічним будівельним матеріалом в дерев`яному будівництві на сьогоднішній день є профільований брус. Для виробництва профільованого брусу, звичайному дерев`яному брусу на спеціальному деревообробному обладнанні надається певний профіль.

Читати далі...

Подвійний брус з утепленням

Головна ідея застосування подвійного бруса полягала в досягненні енергоефективності житла. Над проектуванням енергозберігаючих будинків працюють провідні інженери та архітектори в різних країнах світу, запропонована фінами технологія подвійного бруса дає можливість звести до мінімуму тепловтрати будинку, а також об`єднує переваги будівництва дерев`яного будинку з економічністю споруди.

Читати далі...

Клеєний брус

Клеєний брус принципово відрізняється від інших типів колод багатошаровістю. Така структура робить цей дерев’яний матеріал надміцним і витривалим.

Читати далі...

Каркасні конструкції

Каркасні конструкції виготовляються на власних виробничих потужностях компанії «Домінант», з використанням сучасних деревообробних станків. Імпортне, високоточне обладнання дозволяє нам високоякісно виконувати свою роботу. Каркаси складаються зі струганих, ретельно висушених балок 150х50 мм (сосна першого сорту). Ці балки застосовуються для зовнішніх каркасів.

Читати далі...

Немає відгуків

Переглянуті товари

16 інших товарів в цій категорії:

Товар додано для порівняння.