Абелон
- Кількість поверхів
- 1
- Площа
- 42.2
- Ширина
- 4.6
- Довжина
- 9
- Будинки і житлові будови
- Будиночки
Вілли
Дачі
Котеджі - Кількість кімнат
- Двокімнатні будинки
- Кількість поверхів споруди
- Одноповерхові будинки
- Будинки з брусу
- Будинки з клеєного брусу
Будинки з профільованого брусу - Комерційні будівлі
- Бази відпочинку
Готелі
(Що входить в ціну)
- комплект стін;
- комплект крокв;
- комплект балок перекриття;
- утеплювач міжвінцевий;
- антисептик (антисептування всього матеріалу);
- дубові нагеля;
- кріпильні материали (саморізи, усадкові болти, анкера, кріпильні пластини);
- гідроізоляція;
- вогнебіозахист (обробка деревини засобом І групи вогнезахисної ефективності)
Будівництво двокімнатного котеджу із дерева «Абелон»
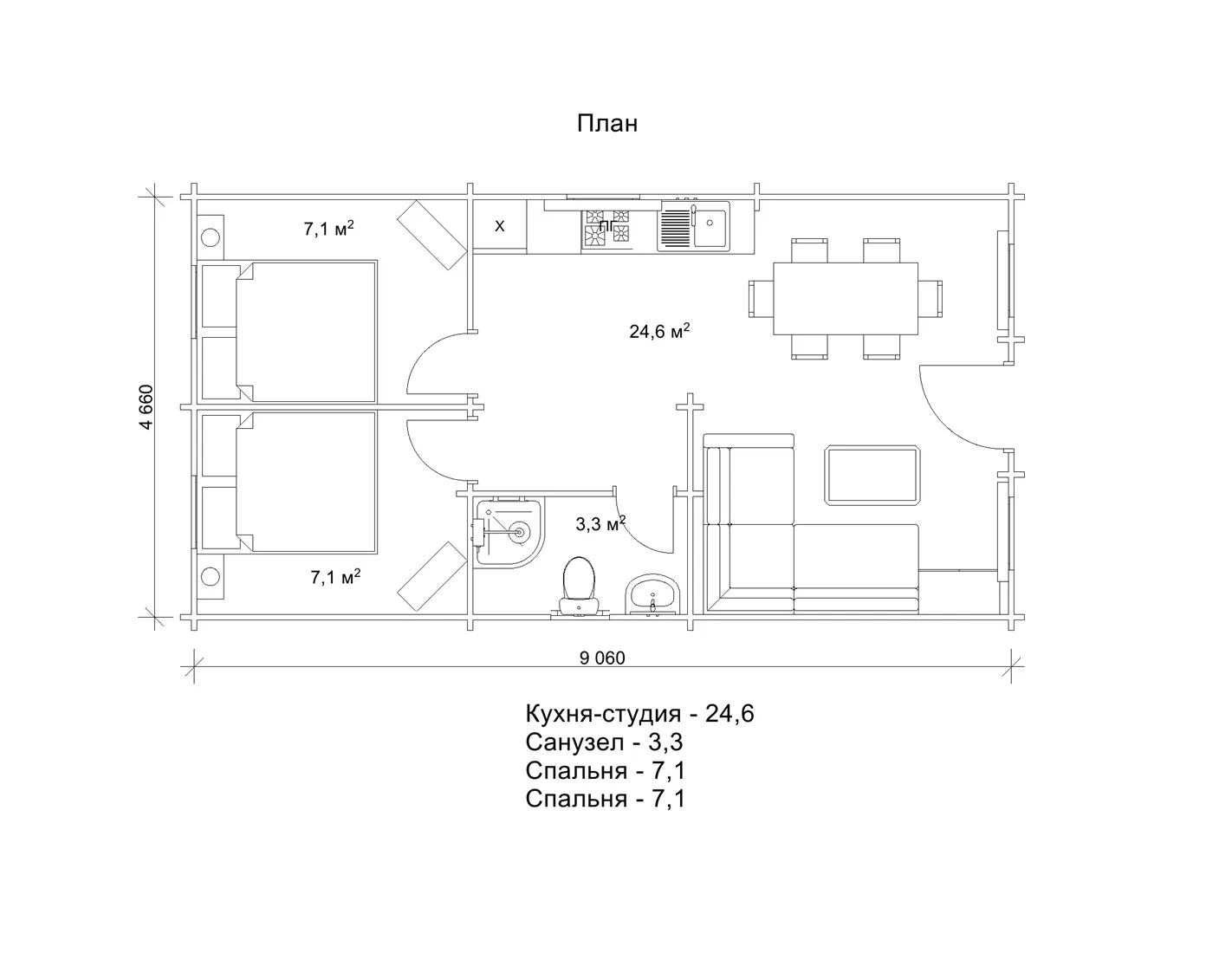
Двокімнатний котедж із сухого, профільованого бруса «Абелон» позиціонується як дачний або люксовий курортний будиночок. Простий дизайн та економічність котеджу сприятиме швидким термінам реалізації, швидкої окупності та суттєво урізноманітнить спектр послуг готельного комплексу. Ну хто не хоче відпочити у дерев’яному будиночку із натуральної сосни? Такий курортний будиночок завжди буде особливо затребуваним. До того ж, внутрішнє наповнення проекту «Абелон» створене з винятковим комфортом. У компактному просторі дерев’яного будиночка 42,2 м2 площа організована максимально раціонально та зручно, містить дві житлові кімнати, вітальню з кухнею та санвузол. Приїжджати в такий будиночок на відпочинок із сім’єю чи з друзями та насолоджуватися натуральністю дерев’яного зрубу – це справжнє задоволення та оздоровлення!
Планування двокімнатного котеджу «Абелон», площа 42,2 м2
Параметри проекту «Абелон» складають 4,6 на 9 м, площа котеджу 42,2 м2. Це одноповерхова споруда простої, прямокутної форми з класичним двосхилим дахом. Котедж виконується із профільованого бруса 60*150 мм. Це літній будиночок з тонкими стінами, а для комфортного проживання рекомендується розмір соснового бруса від 150*150 мм. Будиночок «Абелон» спочатку створено для сезонного використання та комерційного застосування. Але якщо є бажання експлуатувати будівлю цілий рік, можна побудувати її з більшого розміру бруса і отримати зимовий, теплий варіант котеджу. Найтеплішим та енергоефективним буде будинок із подвійного бруса із утепленням стін. Замовлення будівництва проекту «Абелон» та прорахунок будиночка в різних технологіях виробництва та будівництва можна оформити, звернувшись до відділу роботи з клієнтами «Домінант».
- Кількість поверхів
- 1
- Площа
- 42.2
- Ширина
- 4.6
- Довжина
- 9
- Будинки і житлові будови
- Будиночки
Вілли
Дачі
Котеджі - Кількість кімнат
- Двокімнатні будинки
- Кількість поверхів споруди
- Одноповерхові будинки
- Будинки з брусу
- Будинки з клеєного брусу
Будинки з профільованого брусу - Комерційні будівлі
- Бази відпочинку
Готелі
Базова комплектація:
(Що входить в ціну)
- комплект стін;
- комплект крокв;
- комплект балок перекриття;
- утеплювач міжвінцевий;
- антисептик (антисептування всього матеріалу);
- дубові нагеля;
- кріпильні материали (саморізи, усадкові болти, анкера, кріпильні пластини);
- гідроізоляція;
- вогнебіозахист (обробка деревини засобом І групи вогнезахисної ефективності)
165240 грн.
Дах (комплектність):
- Рейка 100*25мм (cосна)
- Контрейка 50*25мм (сосна)
- Металочерепиця МОНТЕРРЕЙ (Польща) 0,45мм
- Коник прямий
- Планка примикання
- Лобова (декоративна) планка
- Вітровая планка
- Яндола
- Капельник (Карнизна планка)
- Ущільнювач універсальный
- Саморізи ОС 4.8х35
- Фарба-спрей
- Гідробар'єр
- Монтаж
87700 грн.
Вікна (комплектність):
- Вікно VEKA 58, колір білий 10
- Імпости вертикальні: 1 x 102103
- Скління: СПО, 24мм, (Rсп=0.36)*
- Тип фурнітури: Activpilot поворотно-відкидна, колір білий
- Підбір спеціальний: Activ микровентиляція; Activ 2-функц. механ.
- Моск.сітка: МС 3
- Підвіконня: ВМ 110мм, колір білий
- Підвіконня: ПВ ПВХ 150, заглушки: 600мм, колір білий
- Монтаж
41800 грн.
Двері (комплектність):
- Полотно
- Коробка
- Лиштва
- Карниз
- Фарбування
- Скло
- Фурнітура
- Врізка фурнітуры
- Монтаж
89404 грн.
Фарбування (комплектність):
- Шліфування торців
- Тришарове покриття ефективним деревозахисним засобом на базі низькомолекулярної алкідної смоли методом розпилення.
Оциліндрований брус
Оциліндрований брус є найбільш оптимальним і поширеним матеріалом для будівництва дерев`яних будинків і бань, бесідок, альтанок, різноманітних садових меблів, дерев`яних конструкцій будь-яких видів. Дерев`яні будинки з оциліндрованого брусу відрізняються красою, всередині такого будинку завжди відчувається особлива затишна атмосфера.
Профільований брус
Найсучаснішим і високотехнологічним будівельним матеріалом в дерев`яному будівництві на сьогоднішній день є профільований брус. Для виробництва профільованого брусу, звичайному дерев`яному брусу на спеціальному деревообробному обладнанні надається певний профіль.
Подвійний брус з утепленням
Головна ідея застосування подвійного бруса полягала в досягненні енергоефективності житла. Над проектуванням енергозберігаючих будинків працюють провідні інженери та архітектори в різних країнах світу, запропонована фінами технологія подвійного бруса дає можливість звести до мінімуму тепловтрати будинку, а також об`єднує переваги будівництва дерев`яного будинку з економічністю споруди.
Клеєний брус
Клеєний брус принципово відрізняється від інших типів колод багатошаровістю. Така структура робить цей дерев’яний матеріал надміцним і витривалим.
Каркасні конструкції
Каркасні конструкції виготовляються на власних виробничих потужностях компанії «Домінант», з використанням сучасних деревообробних станків. Імпортне, високоточне обладнання дозволяє нам високоякісно виконувати свою роботу. Каркаси складаються зі струганих, ретельно висушених балок 150х50 мм (сосна першого сорту). Ці балки застосовуються для зовнішніх каркасів.


















