Зателефонуйте мені
Міліяна №1
Міліяна №2
Міліяна №3
Міліяна №4
Міліяна №5
Міліяна №6
Міліяна №7
Міліяна №8
Міліяна №9
Міліяна №10
Міліяна №11
Міліяна №12
Міліяна №13
Міліяна №1
Міліяна №2
Міліяна №3
Міліяна №4
Міліяна №5
Міліяна №6
Міліяна №7
Міліяна №8
Міліяна №9
Міліяна №10
Міліяна №11
Міліяна №12
Міліяна №13
Міліяна №1
Міліяна №1 Міліяна №2 Міліяна №3 Міліяна №4 Міліяна №5 Міліяна №6 Міліяна №7 Міліяна №8 Міліяна №9 Міліяна №10 Міліяна №11 Міліяна №12 Міліяна №13

Міліяна

736 420,00 ₴
Дачний котедж із каміном, площа 91,5 м2 - «Міліяна»
Розмір брусу
  • Оциліндрований 160
  • Оциліндрований 180
  • Оциліндрований 200
  • Оциліндрований 220
  • Профільований 60
  • Профільований 150
  • Профільований 200
  • Подвійний 300
  • Клеєний 120
  • Клеєний 180
Кількість поверхів
1
Площа
91.5
Ширина
10.6
Довжина
8.6
Будинки і житлові будови
Будиночки
Дачі
Котеджі
Кількість кімнат
Двокімнатні будинки
Особливості будинків
Будинки з каміном
Будинки з навісом
Будинки з терасою
Кількість поверхів споруди
Одноповерхові будинки
Будинки з брусу
Будинки з оциліндрованого брусу
 

(Що входить в ціну)

Що входить в базову комплектацію

  • комплект стін;
  • комплект крокв;
  • комплект балок перекриття;
  • утеплювач міжвінцевий;
  • антисептик (антисептування всього матеріалу);
  • дубові нагеля;
  • кріпильні материали (саморізи, усадкові болти, анкера, кріпильні пластини);
  • гідроізоляція;
  • вогнебіозахист (обробка деревини засобом І групи вогнезахисної ефективності)

Будівництво дачного котеджу «Міліяна» з каміном

Колодчастий будиночок із затишною терасою «Міліяна» служить яскравим відображенням чарівної естетики соснового зрубу. У такому дачному котеджі із соснової деревини кожен зможе відчути справжню свіжість хвойного лісу та сповнитися силою природи. Максимально простий дизайн будівлі, невеликі вікна, прямолінійні форми, двосхилий дах забезпечує економічність бюджету на будівництво будиночка. Найголовнішим елементом в архітектурі проекту «Міліяна» є простора тераса під навісом. Вона одразу налаштовує на затишний відпочинок біля котеджу на свіжому повітрі. У будиночку можна буде більше проводити час на вулиці, насолоджуючись комфортом будівництва та красою навколишніх видів. А переваги внутрішнього наповнення проекту, наприклад, камін, зробить дозвілля на дачі ще приємнішим.

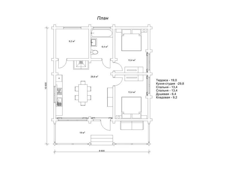
План дачного котеджу з каміном, площа 91,5 м2

Дачний котедж з каміном «Міліяна» має зручні розміри 10,6 на 8,6 м, які затребувані у більшості тих, хто планує будуватися. Площа будиночка становить 91,5 м2 включно із просторою терасою розміром 19 м2. У котеджі є дві спальні по 13,4 м2, санвузол, кухня-студія площею 29,8 м2, де спеціально передбачено місце для каміна. Дуже зручно, що в будиночку сплановано комору розміром 9,2 м2, без якої на дачі просто не обійтися. Особливо якщо є город та сад, то в такому приміщенні зручно зберігати садовий інвентар та інше господарське приладдя. План дачного котеджу з каміном враховує всі потреби сучасної людини для комфортного облаштування земельної ділянки. Будиночок «Міліяна» настільки зручний, функціональний та забезпечує абсолютно все необхідне для комфорта, що його будівництво можна використовувати так само і для житла на постійній основі.

Кількість поверхів
1
Площа
91.5
Ширина
10.6
Довжина
8.6
Будинки і житлові будови
Будиночки
Дачі
Котеджі
Кількість кімнат
Двокімнатні будинки
Особливості будинків
Будинки з каміном
Будинки з навісом
Будинки з терасою
Кількість поверхів споруди
Одноповерхові будинки
Будинки з брусу
Будинки з оциліндрованого брусу

Базова комплектація:
(Що входить в ціну)

Що входить в базову комплектацію

  • комплект стін;
  • комплект крокв;
  • комплект балок перекриття;
  • утеплювач міжвінцевий;
  • антисептик (антисептування всього матеріалу);
  • дубові нагеля;
  • кріпильні материали (саморізи, усадкові болти, анкера, кріпильні пластини);
  • гідроізоляція;
  • вогнебіозахист (обробка деревини засобом І групи вогнезахисної ефективності)

313470 грн.

Дах (комплектність):

  • Рейка 100*25мм (cосна)
  • Контрейка 50*25мм (сосна)
  • Металочерепиця МОНТЕРРЕЙ (Польща) 0,45мм
  • Коник прямий
  • Планка примикання
  • Лобова (декоративна) планка
  • Вітровая планка
  • Яндола
  • Капельник (Карнизна планка)
  • Ущільнювач універсальный
  • Саморізи ОС 4.8х35
  • Фарба-спрей
  • Гідробар'єр
  • Монтаж

245560 грн.

Вікна (комплектність):

  • Вікно VEKA 58, колір білий 10
  • Імпости вертикальні: 1 x 102103
  • Скління: СПО, 24мм, (Rсп=0.36)*
  • Тип фурнітури: Activpilot поворотно-відкидна, колір білий
  • Підбір спеціальний: Activ микровентиляція; Activ 2-функц. механ.
  • Моск.сітка: МС 3
  • Підвіконня: ВМ 110мм, колір білий
  • Підвіконня: ПВ ПВХ 150, заглушки: 600мм, колір білий
  • Монтаж

83600 грн.

Двері (комплектність):

  • Полотно
  • Коробка
  • Лиштва
  • Карниз
  • Фарбування
  • Скло
  • Фурнітура
  • Врізка фурнітуры
  • Монтаж

112840 грн.

Фарбування (комплектність):

  • Шліфування торців
  • Тришарове покриття ефективним деревозахисним засобом на базі низькомолекулярної алкідної смоли методом розпилення.

Параметри забудови

  • Кількість поверхів: 1
  • Площа: 91.5

Розмір забудови

  • Ширина: 10.6
  • Довжина: 8.6

Перший поверх

тераса (м²)19,0
кухня-студія (м²)29,8
спальня х2(м²)13,4
душова (м²)6,4
кладова (м²)9,2

Оциліндрований брус

Оциліндрований брус є найбільш оптимальним і поширеним матеріалом для будівництва дерев`яних будинків і бань, бесідок, альтанок, різноманітних садових меблів, дерев`яних конструкцій будь-яких видів. Дерев`яні будинки з оциліндрованого брусу відрізняються красою, всередині такого будинку завжди відчувається особлива затишна атмосфера.

Читати далі...

Профільований брус

Найсучаснішим і високотехнологічним будівельним матеріалом в дерев`яному будівництві на сьогоднішній день є профільований брус. Для виробництва профільованого брусу, звичайному дерев`яному брусу на спеціальному деревообробному обладнанні надається певний профіль.

Читати далі...

Подвійний брус з утепленням

Головна ідея застосування подвійного бруса полягала в досягненні енергоефективності житла. Над проектуванням енергозберігаючих будинків працюють провідні інженери та архітектори в різних країнах світу, запропонована фінами технологія подвійного бруса дає можливість звести до мінімуму тепловтрати будинку, а також об`єднує переваги будівництва дерев`яного будинку з економічністю споруди.

Читати далі...

Клеєний брус

Клеєний брус принципово відрізняється від інших типів колод багатошаровістю. Така структура робить цей дерев’яний матеріал надміцним і витривалим.

Читати далі...

Каркасні конструкції

Каркасні конструкції виготовляються на власних виробничих потужностях компанії «Домінант», з використанням сучасних деревообробних станків. Імпортне, високоточне обладнання дозволяє нам високоякісно виконувати свою роботу. Каркаси складаються зі струганих, ретельно висушених балок 150х50 мм (сосна першого сорту). Ці балки застосовуються для зовнішніх каркасів.

Читати далі...

Немає відгуків

Переглянуті товари

16 інших товарів в цій категорії:

Товар додано для порівняння.