Леорд
- Кількість поверхів
- 2
- Площа
- 189.1
- Ширина
- 11.7
- Довжина
- 10.9
- Будинки і житлові будови
- Котеджі
Маєтки
Садиби - Кількість кімнат
- Чотирикімнатні будинки
- Особливості будинків
- Будинки з другим світлом
Будинки з котельнею
Будинки з терасою
Будинки зі сходами - Кількість поверхів споруди
- Двоповерхові будинки
- Будинки з брусу
- Будинки з оциліндрованого брусу
(Що входить в ціну)
- комплект стін;
- комплект крокв;
- комплект балок перекриття;
- утеплювач міжвінцевий;
- антисептик (антисептування всього матеріалу);
- дубові нагеля;
- кріпильні материали (саморізи, усадкові болти, анкера, кріпильні пластини);
- гідроізоляція;
- вогнебіозахист (обробка деревини засобом І групи вогнезахисної ефективності)
У проекті двоповерхового будинку з бруса Леорда поєднується презентабельний зовнішній вигляд і ретельно продумане внутрішнє планування. Всі переваги, якими відрізняється цей дерев’яний особняк, роблять його найкращим вибором для будівництва заміського житла. Ефектні фасади зрубу Леорд, які обрамлені літніми террасами, з першого погляду притягують особливу увагу. Величезні вікна другого світла додають особняку величі і престижу. Такий стильний екстер’єр будівлі означає, що його внутрішнє наповнення теж має бути сплановано бездоганно.
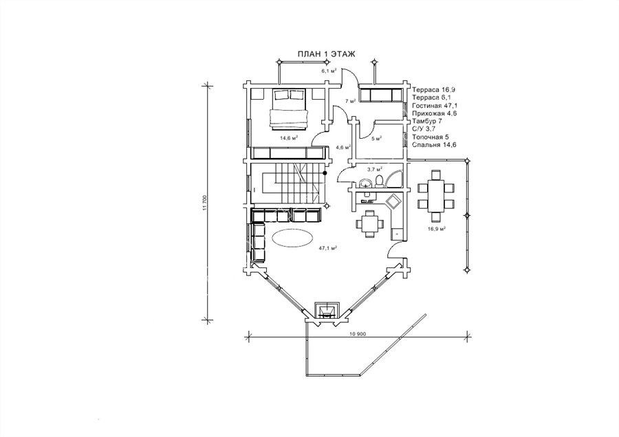
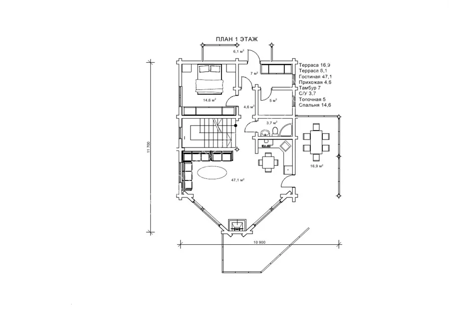
Розміри забудови проекту Леорда dominant-wood.com.ua/uk /proekty/140-leord становлять 10,9 на 11,7 м, споруда займає площу 189,1м². Такий порівняно невеликий простір усередині будинку оптимально розподіляється на кімнати і функціональні зони, завдяки чому формується велика корисна площа і особливо приваблива ціна споруди. Обов’язково варто відзначити наявність повноцінного другого поверху в особняку Леорд, що обов’язково оцінять ті, кому не підходять варіанти проектів з мансардою.
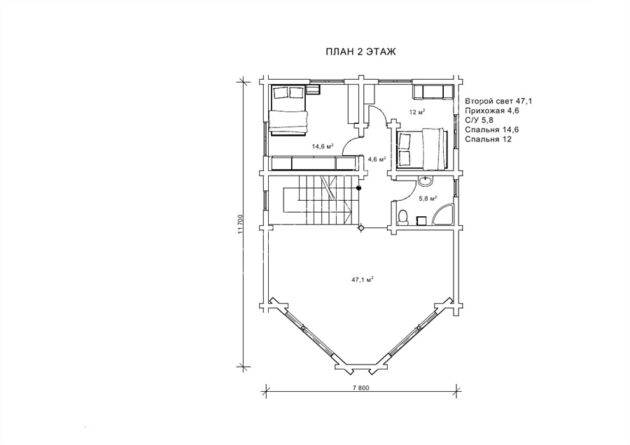
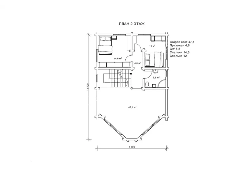
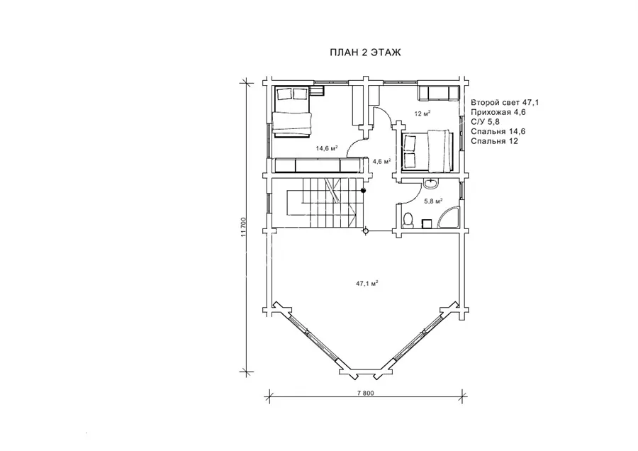
РВнутрішнє планування будинку має всі необхідні приміщення, що забезпечують винятковий комфорт. Перший поверх являє простору вітальню, що утворює об’єднаний простір з кухнею, передпокій, тамбур, санвузол, топкові. Також на першому поверсі пропонується розмістити спальню. Другий поверх повністю відведений під організацію особистого простору, його займають дві спальні, передпокій і санвузол. В інтер’єрі будинку оригінально виглядає «друге світло», що візуально збільшує видиму площу.
Р Аристократичний двоповерховий будинок Леорд з гордовитим фасадом в повній мірі відображає індивідуальний спосіб життя і внутрішній світ своїх господарів. Кваліфіковані проектанти компанії «Домінант» dominant-wood.com.ua/uk завжди з душею і фантазією підходять до розробки індивідуальних проектів, і двоповерховий будинок з бруса Леорд - яскраве тому підтвердження.
- Кількість поверхів
- 2
- Площа
- 189.1
- Ширина
- 11.7
- Довжина
- 10.9
- Будинки і житлові будови
- Котеджі
Маєтки
Садиби - Кількість кімнат
- Чотирикімнатні будинки
- Особливості будинків
- Будинки з другим світлом
Будинки з котельнею
Будинки з терасою
Будинки зі сходами - Кількість поверхів споруди
- Двоповерхові будинки
- Будинки з брусу
- Будинки з оциліндрованого брусу
Базова комплектація:
(Що входить в ціну)
- комплект стін;
- комплект крокв;
- комплект балок перекриття;
- утеплювач міжвінцевий;
- антисептик (антисептування всього матеріалу);
- дубові нагеля;
- кріпильні материали (саморізи, усадкові болти, анкера, кріпильні пластини);
- гідроізоляція;
- вогнебіозахист (обробка деревини засобом І групи вогнезахисної ефективності)
400950 грн.
Дах (комплектність):
- Рейка 100*25мм (cосна)
- Контрейка 50*25мм (сосна)
- Металочерепиця МОНТЕРРЕЙ (Польща) 0,45мм
- Коник прямий
- Планка примикання
- Лобова (декоративна) планка
- Вітровая планка
- Яндола
- Капельник (Карнизна планка)
- Ущільнювач універсальный
- Саморізи ОС 4.8х35
- Фарба-спрей
- Гідробар'єр
- Монтаж
596360 грн.
Вікна (комплектність):
- Вікно VEKA 58, колір білий 10
- Імпости вертикальні: 1 x 102103
- Скління: СПО, 24мм, (Rсп=0.36)*
- Тип фурнітури: Activpilot поворотно-відкидна, колір білий
- Підбір спеціальний: Activ микровентиляція; Activ 2-функц. механ.
- Моск.сітка: МС 3
- Підвіконня: ВМ 110мм, колір білий
- Підвіконня: ПВ ПВХ 150, заглушки: 600мм, колір білий
- Монтаж
0 грн.
Двері (комплектність):
- Полотно
- Коробка
- Лиштва
- Карниз
- Фарбування
- Скло
- Фурнітура
- Врізка фурнітуры
- Монтаж
157108 грн.
Фарбування (комплектність):
- Шліфування торців
- Тришарове покриття ефективним деревозахисним засобом на базі низькомолекулярної алкідної смоли методом розпилення.
Параметри забудови
- Кількість поверхів: 2
- Площа: 189.1
Розмір забудови
- Ширина: 11.7
- Довжина: 10.9
Перший поверх
| вітальня (м²) | 47,1 |
| передпокій (м²) | 4,6 |
| с/в (м²) | 3,7 |
| спальня (м²) | 14,6 |
| тамбур (м²) | 7 |
| тераса (м²) | 16,9 |
| тераса (м²) | 6,1 |
| топкова (м²) | 5 |
Другий поверх
| друге світло (м²) | 47,1 |
| передпокій (м²) | 4,6 |
| с/в (м²) | 5,8 |
| спальня (м²) | 14,6 |
| спальня (м²) | 12 |
Оциліндрований брус
Оциліндрований брус є найбільш оптимальним і поширеним матеріалом для будівництва дерев`яних будинків і бань, бесідок, альтанок, різноманітних садових меблів, дерев`яних конструкцій будь-яких видів. Дерев`яні будинки з оциліндрованого брусу відрізняються красою, всередині такого будинку завжди відчувається особлива затишна атмосфера.
Профільований брус
Найсучаснішим і високотехнологічним будівельним матеріалом в дерев`яному будівництві на сьогоднішній день є профільований брус. Для виробництва профільованого брусу, звичайному дерев`яному брусу на спеціальному деревообробному обладнанні надається певний профіль.
Подвійний брус з утепленням
Головна ідея застосування подвійного бруса полягала в досягненні енергоефективності житла. Над проектуванням енергозберігаючих будинків працюють провідні інженери та архітектори в різних країнах світу, запропонована фінами технологія подвійного бруса дає можливість звести до мінімуму тепловтрати будинку, а також об`єднує переваги будівництва дерев`яного будинку з економічністю споруди.
Клеєний брус
Клеєний брус принципово відрізняється від інших типів колод багатошаровістю. Така структура робить цей дерев’яний матеріал надміцним і витривалим.
Каркасні конструкції
Каркасні конструкції виготовляються на власних виробничих потужностях компанії «Домінант», з використанням сучасних деревообробних станків. Імпортне, високоточне обладнання дозволяє нам високоякісно виконувати свою роботу. Каркаси складаються зі струганих, ретельно висушених балок 150х50 мм (сосна першого сорту). Ці балки застосовуються для зовнішніх каркасів.












