Сефайра
- Кількість поверхів
- 2
- Площа
- 285.6
- Ширина
- 14
- Довжина
- 12.8
- Будинки і житлові будови
- Вілли
Котеджі
Маєтки
Садиби - Особливості будинків
- Будинки з гаражем
Будинки з мансардою
Будинки з терасою
Будинки зі сходами - Кількість поверхів споруди
- Двоповерхові будинки
- Будинки з брусу
- Будинки з клеєного брусу
Будинки з профільованого брусу
(Що входить в ціну)
- комплект стін;
- комплект крокв;
- комплект балок перекриття;
- утеплювач міжвінцевий;
- антисептик (антисептування всього матеріалу);
- дубові нагеля;
- кріпильні материали (саморізи, усадкові болти, анкера, кріпильні пластини);
- гідроізоляція;
- вогнебіозахист (обробка деревини засобом І групи вогнезахисної ефективності)
Проект будинку з сухого бруса «Сефайра» площею 285,6 м2
Ультрасучасний, захоплюючий завдяки одному своєму вигляду, особняк «Сефайра» варто вибирати для побудови постійного, комфортного житла. Цей будинок створений, щоб дарувати свій затишок і довговічність багатьом поколінням однієї великої, дружньої родини. Асиметричні схили дахів і різноманітність форм вікон ідеально поєднуються з суворою геометрією профільованого, сухого бруса, складеного методом шип в паз. Добротні, монолітні фасади дерев’яної садиби з висушеного масиву дерева надають екстер’єру проекту «Сефайра» особливого шику. Натуральність матеріалів в поєднанні з функціональним дизайном будівель завжди високо цінуються і вважаються вибором прогресивних людей. Як правило, такі люди мають у своєму розпорядженні достатньо фінансів і знають, як їх вигідно вкладати. Чому ж ми розглядаємо проект маєтку з сухого бруса, як вигідне вкладення? Давайте розглянемо докладніше план будови і виявимо всі його переваги.
Планування проекту «Сефайра» з гаражем і терасою
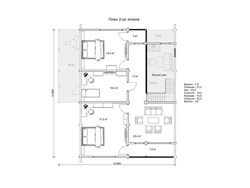
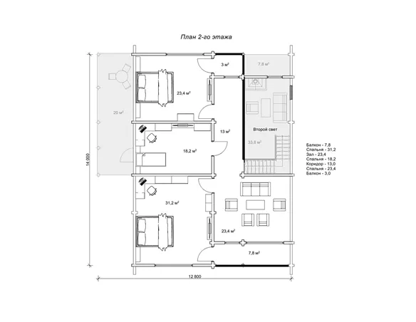
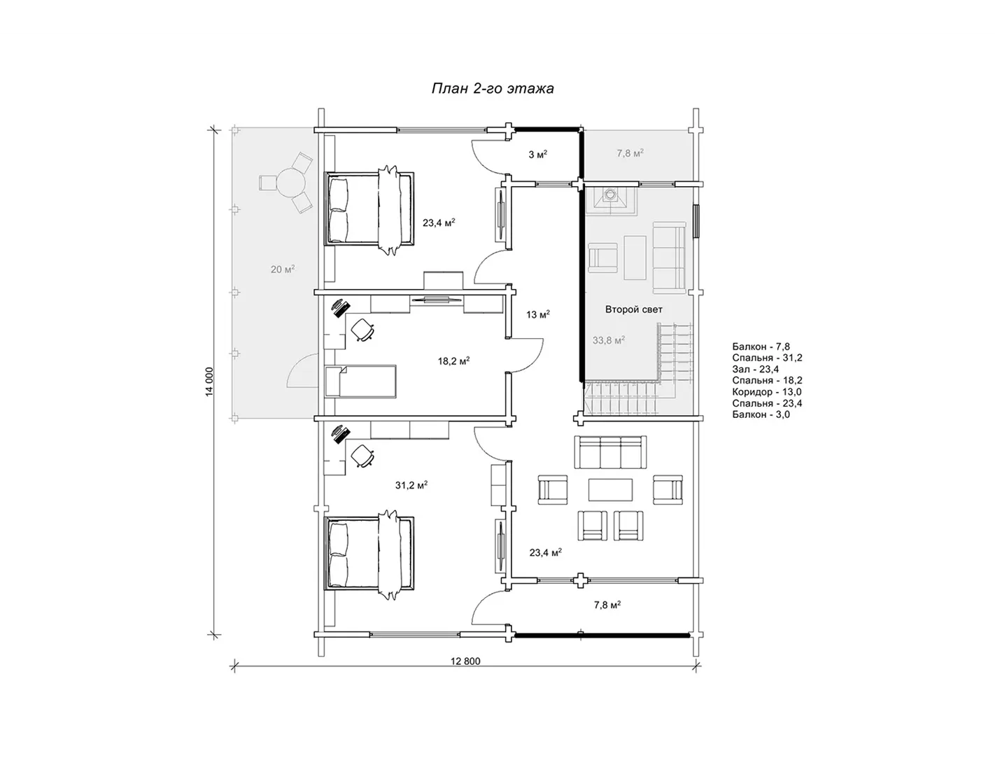
Планування маєтку «Сефайра» розташоване в параметрах будівлі 14 м на 12,8 м, другий поверх будинку виконаний у вигляді мансарди. Загальна площа садиби становить 285,6 м2. У зазначених розмірах передбачено абсолютно все для створення виключно комфортних умов проживання. Судіть самі, на першому поверсі є зал з каміном, виділене окреме приміщення під кухню. Розміри ванної кімнати на першому поверсі складають 10,5 м, це дуже велике і просторе приміщення, де можна встановити не тільки ванну, але і душову кабінку. Крім того, на першому поверсі є простора спальня площею 23,4 м2 і приміщення гаража площею 31,2 м2 для автомобіля. Прекрасна тераса під непокритими перголами залишає величезний простір для фантазії по її оздобленню гарними рослинами і зручними меблями. Піднявшись по сходах на другий поверх, ми бачимо ще три житлові кімнати та загальну вітальню з виходом на балкон. Окрасою другого поверху в проекті «Сефайра» виступає вид на «друге світло» над залою першого поверху. Такий домашній простір без міжповерхових перекриттів дає відчуття польоту і візуально збільшує площу. У такому будинку кожен день можна насолоджуватися не тільки комфортом, але й навколишньою красою! Будівництво садиби «Сефайра» з висушеного масиву сосни - це суттєвий внесок в підвищення якості життя і в створення комфортабельних побутових умов.
Замовлення будівництва будинку з сухого бруса «Сефайра» у виробника
Щоб оформити замовлення на будівництво розкішного особняка «Сефайра», потрібно сплатити 50% від вартості, зазначеної на даній сторінці, а також заповнити і підписати договір, який ви знайдете в розділі «Документи». Після чого ми беремо комплект дерев’яної будови в роботу і виробляємо базову комплектацію проекту «Сефайра», в подробицях розписану навпроти ціни під картинками і плануванням проекту. Як бачите, монтаж вже закладено в ціну базової комплектації. За фактом початку збірки зрубу потрібно буде оплатити наступні 30% від ціни з сайту, а за фактом закінчення роботи - 20%. За доступну вартість, встановлену безпосередньо виробником «Домінант», ви отримуєте повністю готовий дерев’яний зруб проекту «Сефайра», який вам залишиться оформити і доповнити матеріалами (покрівлею, вікнами, сходами і ін.) на свій смак і бюджет. Якість сушіння бруса і виробництва дерев’яних комплектів будинків «Домінант» цінують повсюдно, як в Україні, так і за кордоном. Дозвольте і ви собі кращий вибір дерев’яного будинку від лідерів дерев’яного будівництва «Домінант»!
- Кількість поверхів
- 2
- Площа
- 285.6
- Ширина
- 14
- Довжина
- 12.8
- Будинки і житлові будови
- Вілли
Котеджі
Маєтки
Садиби - Особливості будинків
- Будинки з гаражем
Будинки з мансардою
Будинки з терасою
Будинки зі сходами - Кількість поверхів споруди
- Двоповерхові будинки
- Будинки з брусу
- Будинки з клеєного брусу
Будинки з профільованого брусу
Базова комплектація:
(Що входить в ціну)
- комплект стін;
- комплект крокв;
- комплект балок перекриття;
- утеплювач міжвінцевий;
- антисептик (антисептування всього матеріалу);
- дубові нагеля;
- кріпильні материали (саморізи, усадкові болти, анкера, кріпильні пластини);
- гідроізоляція;
- вогнебіозахист (обробка деревини засобом І групи вогнезахисної ефективності)
588060 грн.
Дах (комплектність):
- Рейка 100*25мм (cосна)
- Контрейка 50*25мм (сосна)
- Металочерепиця МОНТЕРРЕЙ (Польща) 0,45мм
- Коник прямий
- Планка примикання
- Лобова (декоративна) планка
- Вітровая планка
- Яндола
- Капельник (Карнизна планка)
- Ущільнювач універсальный
- Саморізи ОС 4.8х35
- Фарба-спрей
- Гідробар'єр
- Монтаж
666520 грн.
Вікна (комплектність):
- Вікно VEKA 58, колір білий 10
- Імпости вертикальні: 1 x 102103
- Скління: СПО, 24мм, (Rсп=0.36)*
- Тип фурнітури: Activpilot поворотно-відкидна, колір білий
- Підбір спеціальний: Activ микровентиляція; Activ 2-функц. механ.
- Моск.сітка: МС 3
- Підвіконня: ВМ 110мм, колір білий
- Підвіконня: ПВ ПВХ 150, заглушки: 600мм, колір білий
- Монтаж
209000 грн.
Двері (комплектність):
- Полотно
- Коробка
- Лиштва
- Карниз
- Фарбування
- Скло
- Фурнітура
- Врізка фурнітуры
- Монтаж
324632 грн.
Фарбування (комплектність):
- Шліфування торців
- Тришарове покриття ефективним деревозахисним засобом на базі низькомолекулярної алкідної смоли методом розпилення.
Параметри забудови
- Кількість поверхів: 2
- Площа: 285.6
Розмір забудови
- Ширина: 14
- Довжина: 12.8
Перший поверх
| тераса (м²) | 6,8 |
| тамбур (м²) | 9,0 |
| кухня (м²) | 14,4 |
| зал (м²) | 38,8 |
| тераса (м²) | 7,8 |
| гараж (м²) | 31,2 |
| санвузол (м²) | 10,5 |
| кладова (м²) | 7,7 |
| спальня(м²) | 23,4 |
| тераса (м²) | 20,0 |
Другий поверх
| балкон (м²) | 7,8 |
| спальня (м²) | 31,2 |
| зала (м²) | 23,4 |
| спальня (м²) | 18,2 |
| коридор (м²) | 13,0 |
| спальня (м²) | 23,4 |
| балкон (м²) | 3,0 |
Оциліндрований брус
Оциліндрований брус є найбільш оптимальним і поширеним матеріалом для будівництва дерев`яних будинків і бань, бесідок, альтанок, різноманітних садових меблів, дерев`яних конструкцій будь-яких видів. Дерев`яні будинки з оциліндрованого брусу відрізняються красою, всередині такого будинку завжди відчувається особлива затишна атмосфера.
Профільований брус
Найсучаснішим і високотехнологічним будівельним матеріалом в дерев`яному будівництві на сьогоднішній день є профільований брус. Для виробництва профільованого брусу, звичайному дерев`яному брусу на спеціальному деревообробному обладнанні надається певний профіль.
Подвійний брус з утепленням
Головна ідея застосування подвійного бруса полягала в досягненні енергоефективності житла. Над проектуванням енергозберігаючих будинків працюють провідні інженери та архітектори в різних країнах світу, запропонована фінами технологія подвійного бруса дає можливість звести до мінімуму тепловтрати будинку, а також об`єднує переваги будівництва дерев`яного будинку з економічністю споруди.
Клеєний брус
Клеєний брус принципово відрізняється від інших типів колод багатошаровістю. Така структура робить цей дерев’яний матеріал надміцним і витривалим.
Каркасні конструкції
Каркасні конструкції виготовляються на власних виробничих потужностях компанії «Домінант», з використанням сучасних деревообробних станків. Імпортне, високоточне обладнання дозволяє нам високоякісно виконувати свою роботу. Каркаси складаються зі струганих, ретельно висушених балок 150х50 мм (сосна першого сорту). Ці балки застосовуються для зовнішніх каркасів.

















