Маріжана
- Кількість поверхів
- 2
- Площа
- 250.2
- Ширина
- 13.3
- Довжина
- 12
- Будинки і житлові будови
- Маєтки
Садиби - Кількість кімнат
- Шестикімнатні будинки
- Особливості будинків
- Будинки з другим світлом
Будинки з котельнею
Будинки з мансардою
Будинки з терасою
Будинки зі сходами - Кількість поверхів споруди
- Двоповерхові будинки
- Будинки з брусу
- Будинки з оциліндрованого брусу
(Що входить в ціну)
- комплект стін;
- комплект крокв;
- комплект балок перекриття;
- утеплювач міжвінцевий;
- антисептик (антисептування всього матеріалу);
- дубові нагеля;
- кріпильні материали (саморізи, усадкові болти, анкера, кріпильні пластини);
- гідроізоляція;
- вогнебіозахист (обробка деревини засобом І групи вогнезахисної ефективності)
Добротний дерев’яний особняк з оциліндрованого бруса Маріжана відразу зачаровує самобутньою красою і оригінальною, симетричною архітектурою. У центральній частині будинку ефектно виглядають великі вікна другого світла. З обох сторін центрального фасаду знаходяться два входи і затишні, невеликі тераси, які немов у дзеркалі відображають одна одну. Завдяки такому цікавому архітектурному рішенню, дивлячись на будинок, милуєшся досконалістю форм, і створюється відчуття ідеальної завершеності ліній.
Окремої уваги заслуговує планування дерев’яного особняка Маріжана. Цей гостинний будинок готовий зустрічати велике сімейство та їх численних гостей, адже в особняку передбачено п’ять спальних кімнат. Одна зі спалень розташована на першому поверсі, вона розрахована на людей похилого віку або сімейну пару з маленькою дитиною - усіх, кому важко підніматися на другий поверх. Решта чотири спальні знаходяться на другому поверсі, розташовуючись в протилежних частинах будинку, щоб можна було спокійно усамітнитися і відпочити. Звернемо вашу увагу на величезну вітальню з другим світлом. Друге світло, що спроектовано у проекті Маріжана, додає приміщенню простору і природного освітлення. Високі стелі, простір і достаток світла дають можливість використовувати в інтер’єрі великі люстри, масивні меблі, декорувати вітальню високими рослинами і навіть кімнатними деревами.
Продовжуючи розглядати планування першого поверху, зауважимо, що кухня і їдальня утворюють єдиний простір, а з їдальні є окремий вихід на одну з терас, де можна поставити, наприклад, крісло-гойдалку і насолодитися вечірнім чаєм.
Прекрасний будинок для життя Маріжана володіє всіма перевагами, які тільки може подарувати своїм господарям дерев’яний особняк. Добротна будівля з оциліндрованного бруса справно послужить кільком поколінням і буде передаватися у спадок як фамільна гордість.
- Кількість поверхів
- 2
- Площа
- 250.2
- Ширина
- 13.3
- Довжина
- 12
- Будинки і житлові будови
- Маєтки
Садиби - Кількість кімнат
- Шестикімнатні будинки
- Особливості будинків
- Будинки з другим світлом
Будинки з котельнею
Будинки з мансардою
Будинки з терасою
Будинки зі сходами - Кількість поверхів споруди
- Двоповерхові будинки
- Будинки з брусу
- Будинки з оциліндрованого брусу
Базова комплектація:
(Що входить в ціну)
- комплект стін;
- комплект крокв;
- комплект балок перекриття;
- утеплювач міжвінцевий;
- антисептик (антисептування всього матеріалу);
- дубові нагеля;
- кріпильні материали (саморізи, усадкові болти, анкера, кріпильні пластини);
- гідроізоляція;
- вогнебіозахист (обробка деревини засобом І групи вогнезахисної ефективності)
558900 грн.
Дах (комплектність):
- Рейка 100*25мм (cосна)
- Контрейка 50*25мм (сосна)
- Металочерепиця МОНТЕРРЕЙ (Польща) 0,45мм
- Коник прямий
- Планка примикання
- Лобова (декоративна) планка
- Вітровая планка
- Яндола
- Капельник (Карнизна планка)
- Ущільнювач універсальный
- Саморізи ОС 4.8х35
- Фарба-спрей
- Гідробар'єр
- Монтаж
491120 грн.
Вікна (комплектність):
- Вікно VEKA 58, колір білий 10
- Імпости вертикальні: 1 x 102103
- Скління: СПО, 24мм, (Rсп=0.36)*
- Тип фурнітури: Activpilot поворотно-відкидна, колір білий
- Підбір спеціальний: Activ микровентиляція; Activ 2-функц. механ.
- Моск.сітка: МС 3
- Підвіконня: ВМ 110мм, колір білий
- Підвіконня: ПВ ПВХ 150, заглушки: 600мм, колір білий
- Монтаж
0 грн.
Двері (комплектність):
- Полотно
- Коробка
- Лиштва
- Карниз
- Фарбування
- Скло
- Фурнітура
- Врізка фурнітуры
- Монтаж
214396 грн.
Фарбування (комплектність):
- Шліфування торців
- Тришарове покриття ефективним деревозахисним засобом на базі низькомолекулярної алкідної смоли методом розпилення.
Параметри забудови
- Кількість поверхів: 2
- Площа: 250.2
Розмір забудови
- Ширина: 13.3
- Довжина: 12
Перший поверх
| вітальня (м²) | 43,6 |
| кухня (м²) | 11,7 |
| с/в (м²) | 8,4 |
| спальня (м²) | 17,3 |
| спальня (м²) | 17,3 |
| тамбур (м²) | 11,7 |
| тераса (м²) | 6,3 |
| тераса (м²) | 8,7 |
| тераса (м²) | 8,7 |
| топкова (м²) | 6,3 |
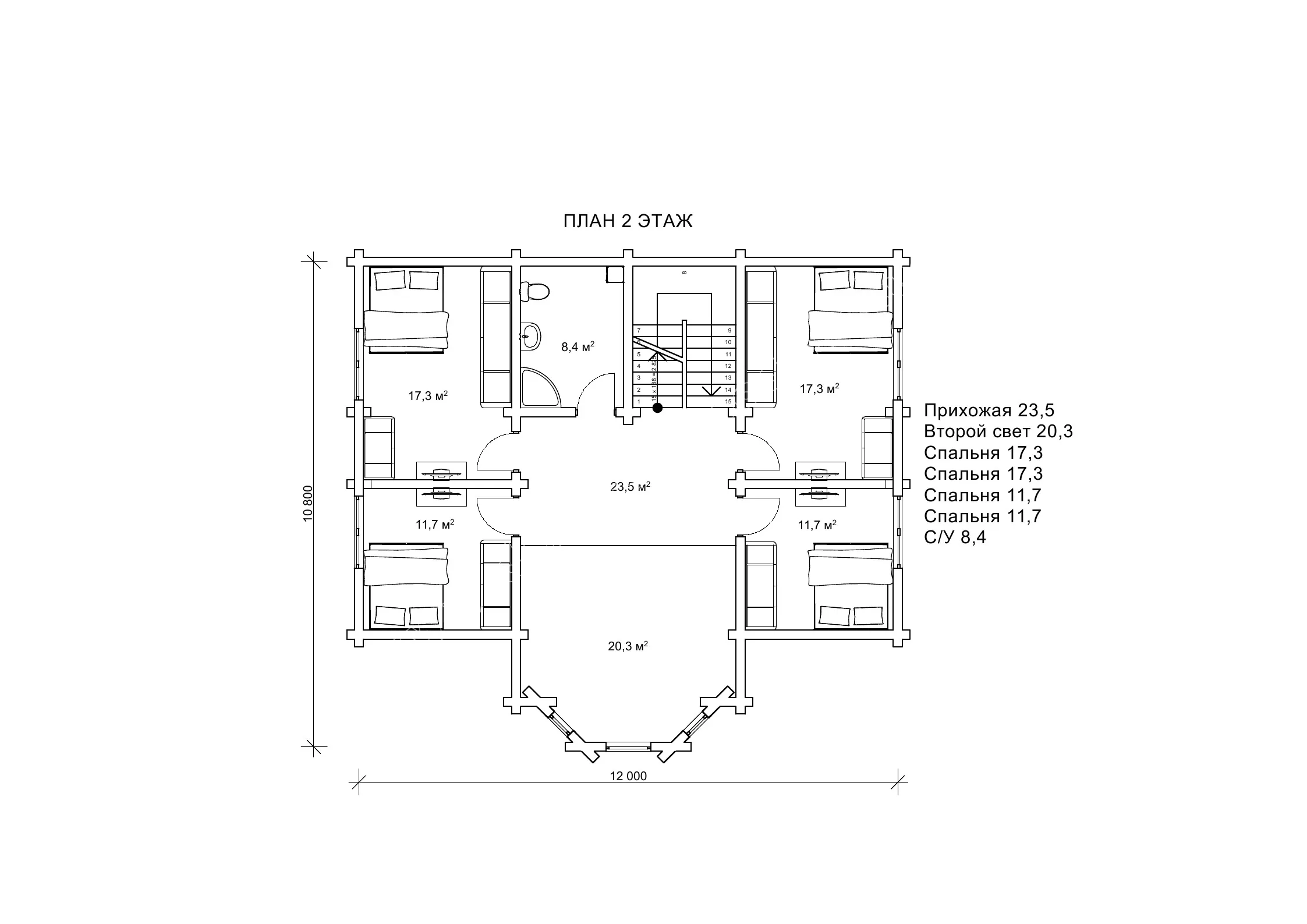
Другий поверх
| друге світло (м²) | 20,3 |
| передпокій (м²) | 23,5 |
| с/в (м²) | 8,4 |
| спальня (м²) | 17,3 |
| спальня (м²) | 17,3 |
| спальня (м²) | 11,7 |
| спальня (м²) | 11,7 |
Оциліндрований брус
Оциліндрований брус є найбільш оптимальним і поширеним матеріалом для будівництва дерев`яних будинків і бань, бесідок, альтанок, різноманітних садових меблів, дерев`яних конструкцій будь-яких видів. Дерев`яні будинки з оциліндрованого брусу відрізняються красою, всередині такого будинку завжди відчувається особлива затишна атмосфера.
Профільований брус
Найсучаснішим і високотехнологічним будівельним матеріалом в дерев`яному будівництві на сьогоднішній день є профільований брус. Для виробництва профільованого брусу, звичайному дерев`яному брусу на спеціальному деревообробному обладнанні надається певний профіль.
Подвійний брус з утепленням
Головна ідея застосування подвійного бруса полягала в досягненні енергоефективності житла. Над проектуванням енергозберігаючих будинків працюють провідні інженери та архітектори в різних країнах світу, запропонована фінами технологія подвійного бруса дає можливість звести до мінімуму тепловтрати будинку, а також об`єднує переваги будівництва дерев`яного будинку з економічністю споруди.
Клеєний брус
Клеєний брус принципово відрізняється від інших типів колод багатошаровістю. Така структура робить цей дерев’яний матеріал надміцним і витривалим.
Каркасні конструкції
Каркасні конструкції виготовляються на власних виробничих потужностях компанії «Домінант», з використанням сучасних деревообробних станків. Імпортне, високоточне обладнання дозволяє нам високоякісно виконувати свою роботу. Каркаси складаються зі струганих, ретельно висушених балок 150х50 мм (сосна першого сорту). Ці балки застосовуються для зовнішніх каркасів.












