Каледос
- Кількість поверхів
- 2
- Площа
- 172.9
- Ширина
- 13.4
- Довжина
- 8.7
- Будинки і житлові будови
- Котеджі
Маєтки
Садиби - Кількість кімнат
- Чотирикімнатні будинки
- Особливості будинків
- Будинки з балконом
Будинки з мансардою
Будинки з терасою
Будинки зі сходами - Будинки з брусу
- Будинки з оциліндрованого брусу
(Що входить в ціну)
- комплект стін;
- комплект крокв;
- комплект балок перекриття;
- утеплювач міжвінцевий;
- антисептик (антисептування всього матеріалу);
- дубові нагеля;
- кріпильні материали (саморізи, усадкові болти, анкера, кріпильні пластини);
- гідроізоляція;
- вогнебіозахист (обробка деревини засобом І групи вогнезахисної ефективності)
Проект будинку із зрубу 13,4х8,7 м з другим світлом
Проект «Кледос» притягує погляди до величезних вікон та затишних балкончиків під звісами добротної покрівлі. Головна особливість дизайну цієї будівлі – ідеальна симетрія в оформленні головного фасаду. По обидва боки скляної панорами красуються дві компактні тераси, захищені навісами дахів. Крізь високі вікна другого світла відкривається розкішна панорама, яка постійно радуватиме зміною пори року господарів маєтку з бруса і подарує їм справжнє єднання з природою. До того ж простір другого світла без міжповерхових перекриттів сповнить домівку світлом, затишком і особливою чарівністю. Адже друге світло несе в собі широту простору та безліч можливостей для того, щоб оригінально оформити інтер'єр. Зовні презентабельний будинок-зруб «Каледос» забезпечить своїм господарям неймовірний комфорт та відкриє всі переваги проживання за містом у добротних стінах із натурального дерева.
Будівництво будинку зі зрубу 13,4х8,7 м з другим світлом, проект «Каледос»
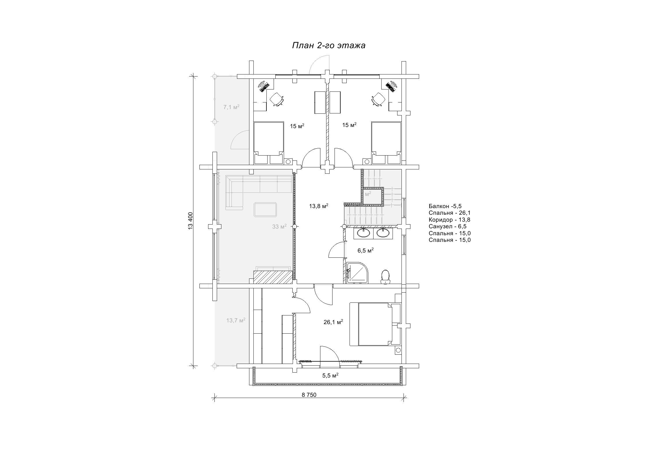
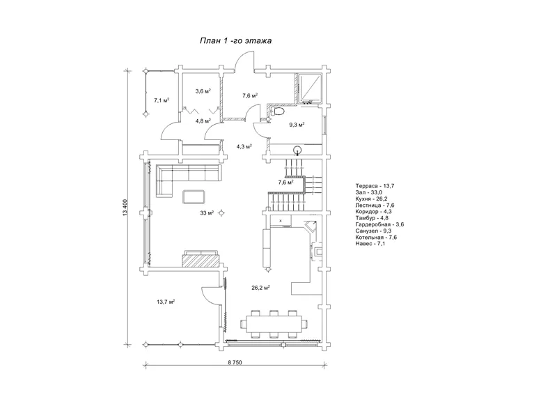
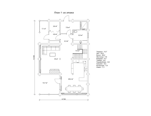
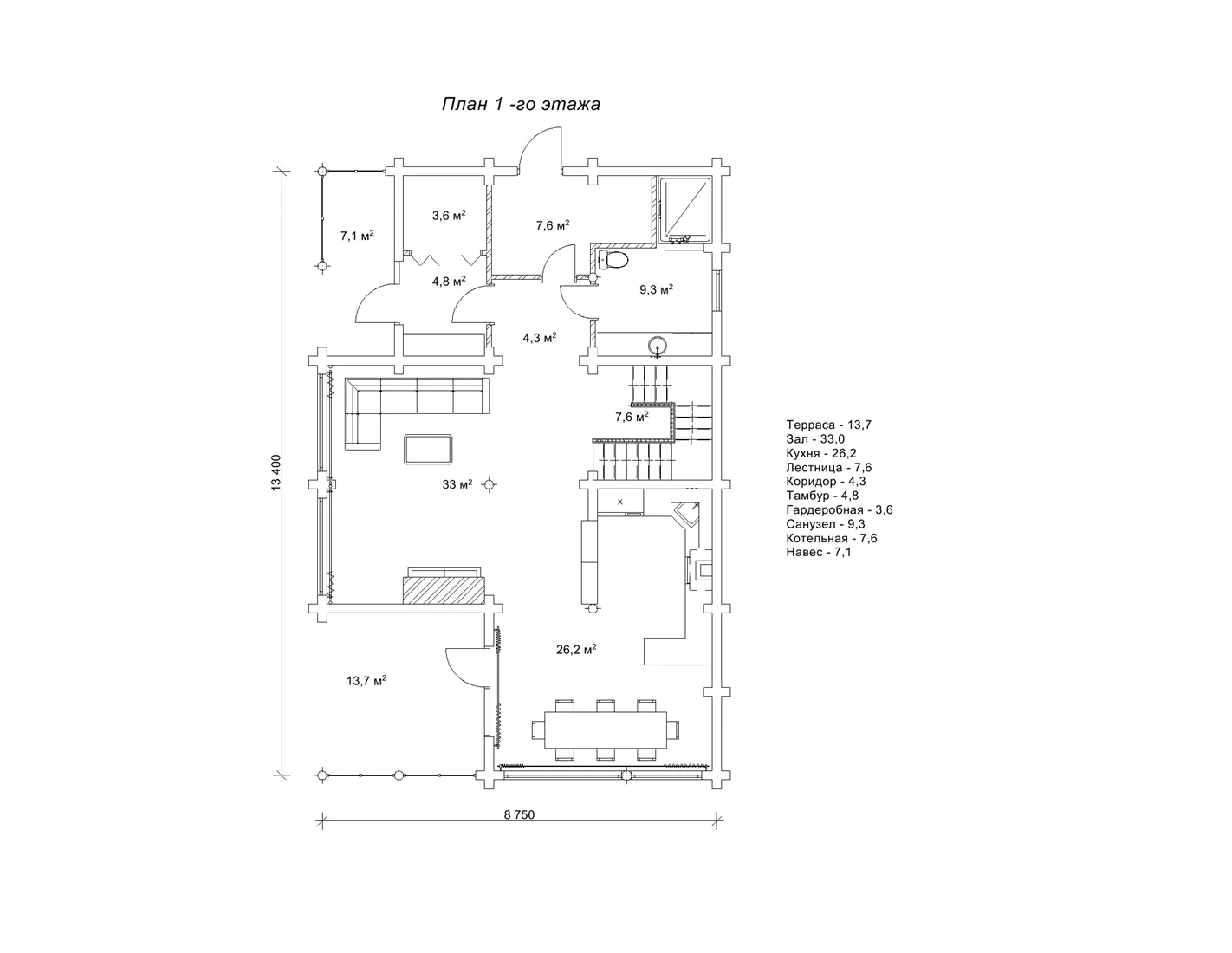
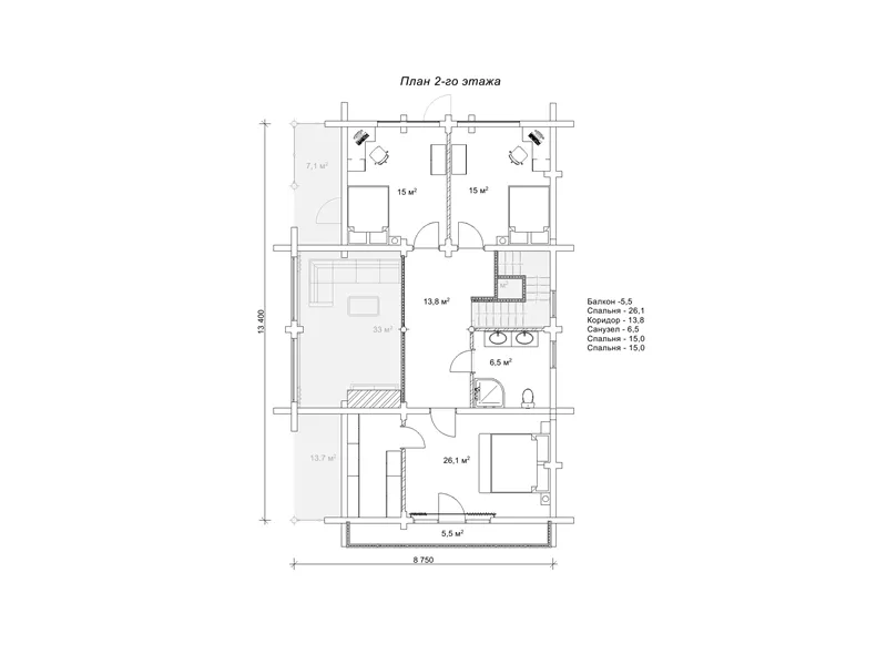
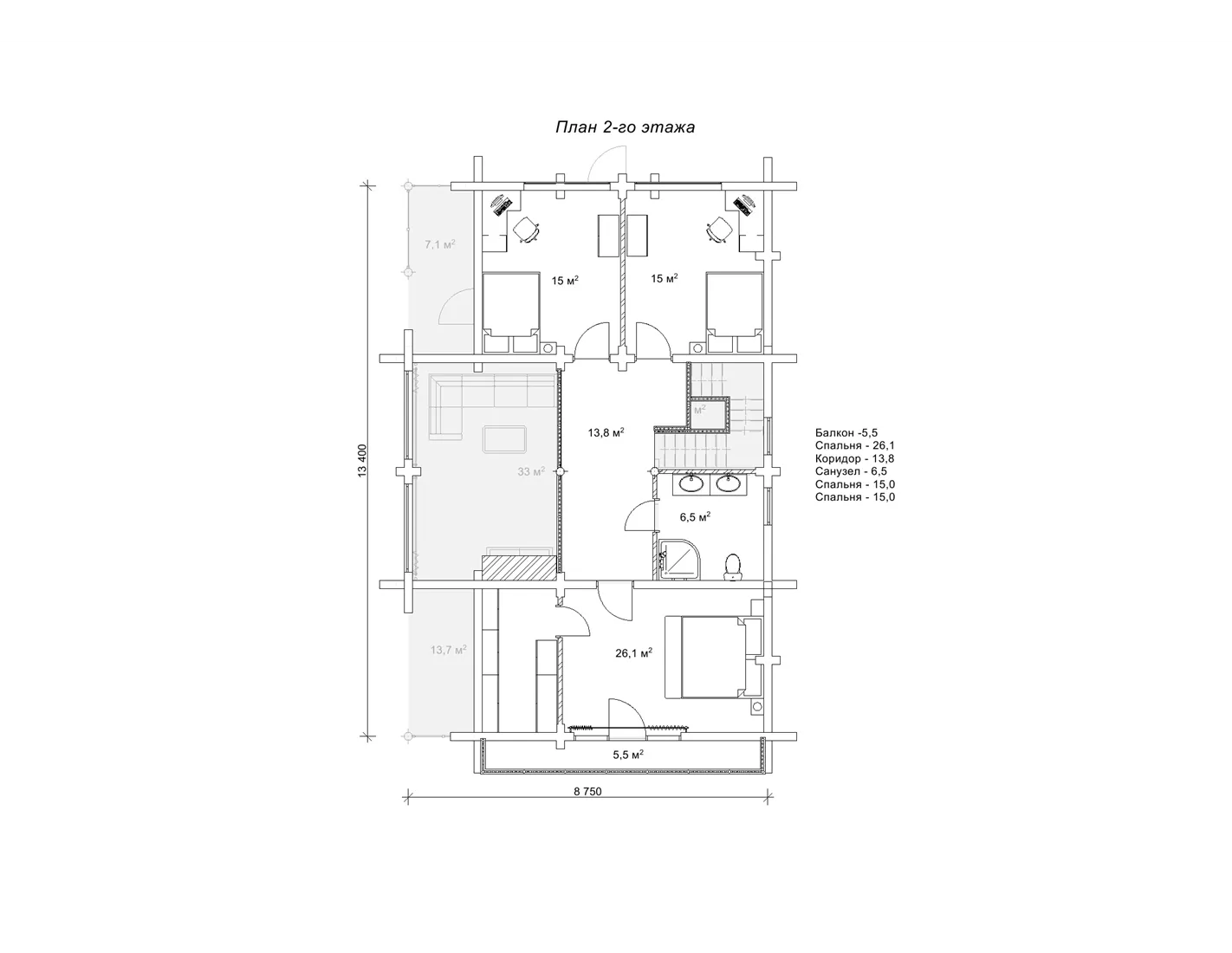
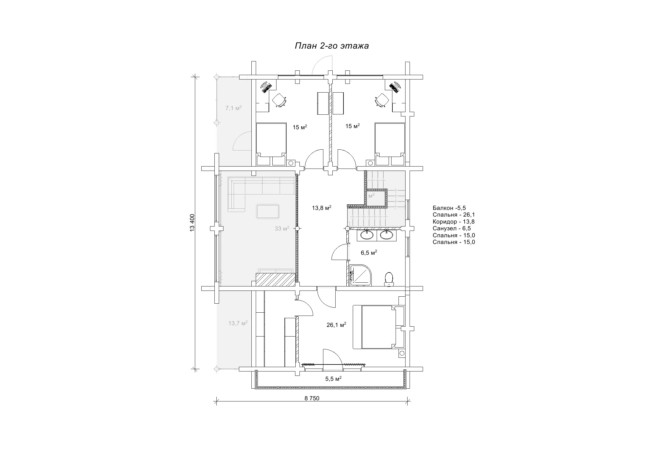
Вхід до садиби «Каледос» спланований через терасу розміром 7,1 м2 та тепловий тамбур-передпокій розміром 4,8 м2. Тут все продумано для того, щоб поставити взуття та зняти верхній одяг. Далі проходимо в коридор, звідки є вхід у котельню, санвузол, на сходи та в камінну залу з другим світлом. Окремим блоком дерев'яної садиби виступає простора кухня з виходом на терасу розміром 13,7 м2. Тут і господарі, і їхні гості матимуть змогу відпочити на свіжому повітрі біля будинку. На другому поверсі є коридор, просторий санвузол, а також спланована велика спальня з гардеробом та дві дитячі кімнати. Прямо з коридорчика другого поверху відкривається панорама другого світла над вітальнею. Проект «Каледос» створений професіоналами компанії «Домінант», щоб життя за містом було сповнене красою та комфортом.
- Кількість поверхів
- 2
- Площа
- 172.9
- Ширина
- 13.4
- Довжина
- 8.7
- Будинки і житлові будови
- Котеджі
Маєтки
Садиби - Кількість кімнат
- Чотирикімнатні будинки
- Особливості будинків
- Будинки з балконом
Будинки з мансардою
Будинки з терасою
Будинки зі сходами - Будинки з брусу
- Будинки з оциліндрованого брусу
Базова комплектація:
(Що входить в ціну)
- комплект стін;
- комплект крокв;
- комплект балок перекриття;
- утеплювач міжвінцевий;
- антисептик (антисептування всього матеріалу);
- дубові нагеля;
- кріпильні материали (саморізи, усадкові болти, анкера, кріпильні пластини);
- гідроізоляція;
- вогнебіозахист (обробка деревини засобом І групи вогнезахисної ефективності)
464130 грн.
Дах (комплектність):
- Рейка 100*25мм (cосна)
- Контрейка 50*25мм (сосна)
- Металочерепиця МОНТЕРРЕЙ (Польща) 0,45мм
- Коник прямий
- Планка примикання
- Лобова (декоративна) планка
- Вітровая планка
- Яндола
- Капельник (Карнизна планка)
- Ущільнювач універсальный
- Саморізи ОС 4.8х35
- Фарба-спрей
- Гідробар'єр
- Монтаж
736680 грн.
Вікна (комплектність):
- Вікно VEKA 58, колір білий 10
- Імпости вертикальні: 1 x 102103
- Скління: СПО, 24мм, (Rсп=0.36)*
- Тип фурнітури: Activpilot поворотно-відкидна, колір білий
- Підбір спеціальний: Activ микровентиляція; Activ 2-функц. механ.
- Моск.сітка: МС 3
- Підвіконня: ВМ 110мм, колір білий
- Підвіконня: ПВ ПВХ 150, заглушки: 600мм, колір білий
- Монтаж
209000 грн.
Двері (комплектність):
- Полотно
- Коробка
- Лиштва
- Карниз
- Фарбування
- Скло
- Фурнітура
- Врізка фурнітуры
- Монтаж
229152 грн.
Фарбування (комплектність):
- Шліфування торців
- Тришарове покриття ефективним деревозахисним засобом на базі низькомолекулярної алкідної смоли методом розпилення.
Параметри забудови
- Кількість поверхів: 2
- Площа: 172.9
Розмір забудови
- Ширина: 13.4
- Довжина: 8.7
Перший поверх
| тераса (м²) | 13,7 |
| зала (м²) | 33,0 |
| кухня (м²) | 26,2 |
| сходи (м²) | 7,6 |
| коридор (м²) | 4,3 |
| тамбур (м²) | 4,8 |
| гардеробна (м²) | 3,6 |
| санвузол (м²) | 9,3 |
| котельня (м²) | 7,6 |
| навіс (м²) | 7,1 |
Другий поверх
| балкон (м²) | 5,5 |
| спальня (м²) | 26,1 |
| коридор (м²) | 13,8 |
| санвузол (м²) | 6,5 |
| спальня х 2(м²) | 15,0 |
Оциліндрований брус
Оциліндрований брус є найбільш оптимальним і поширеним матеріалом для будівництва дерев`яних будинків і бань, бесідок, альтанок, різноманітних садових меблів, дерев`яних конструкцій будь-яких видів. Дерев`яні будинки з оциліндрованого брусу відрізняються красою, всередині такого будинку завжди відчувається особлива затишна атмосфера.
Профільований брус
Найсучаснішим і високотехнологічним будівельним матеріалом в дерев`яному будівництві на сьогоднішній день є профільований брус. Для виробництва профільованого брусу, звичайному дерев`яному брусу на спеціальному деревообробному обладнанні надається певний профіль.
Подвійний брус з утепленням
Головна ідея застосування подвійного бруса полягала в досягненні енергоефективності житла. Над проектуванням енергозберігаючих будинків працюють провідні інженери та архітектори в різних країнах світу, запропонована фінами технологія подвійного бруса дає можливість звести до мінімуму тепловтрати будинку, а також об`єднує переваги будівництва дерев`яного будинку з економічністю споруди.
Клеєний брус
Клеєний брус принципово відрізняється від інших типів колод багатошаровістю. Така структура робить цей дерев’яний матеріал надміцним і витривалим.
Каркасні конструкції
Каркасні конструкції виготовляються на власних виробничих потужностях компанії «Домінант», з використанням сучасних деревообробних станків. Імпортне, високоточне обладнання дозволяє нам високоякісно виконувати свою роботу. Каркаси складаються зі струганих, ретельно висушених балок 150х50 мм (сосна першого сорту). Ці балки застосовуються для зовнішніх каркасів.






















