Зателефонуйте мені
Байкал №1
Байкал №2
Байкал №3
Байкал №4
Байкал №5
Байкал №6
Байкал №7
Байкал №1
Байкал №2
Байкал №3
Байкал №4
Байкал №5
Байкал №6
Байкал №7
Байкал №1
Байкал №1 Байкал №2 Байкал №3 Байкал №4 Байкал №5 Байкал №6 Байкал №7

Байкал

952 523,00 ₴
Проект дерев`яного будинку 9 на 9 м - «Байкал»
Розмір брусу
  • Оциліндрований 160
  • Оциліндрований 180
  • Оциліндрований 200
  • Оциліндрований 220
  • Профільований 60
  • Профільований 150
  • Профільований 200
  • Подвійний 300
  • Клеєний 120
  • Клеєний 180
Кількість поверхів
2
Площа
192
Ширина
9
Довжина
9
Будинки і житлові будови
Котеджі
Маєтки
Садиби
Кількість кімнат
Трикімнатні будинки
Особливості будинків
Будинки з балконом
Будинки з мансардою
Будинки з терасою
Будинки зі сходами
Кількість поверхів споруди
Двоповерхові будинки
Будинки з брусу
Будинки з оциліндрованого брусу
 

(Що входить в ціну)

Що входить в базову комплектацію

  • комплект стін;
  • комплект крокв;
  • комплект балок перекриття;
  • утеплювач міжвінцевий;
  • антисептик (антисептування всього матеріалу);
  • дубові нагеля;
  • кріпильні материали (саморізи, усадкові болти, анкера, кріпильні пластини);
  • гідроізоляція;
  • вогнебіозахист (обробка деревини засобом І групи вогнезахисної ефективності)

Пропонуємо вашій увазі проект Байкал dominant-wood.com.ua/ru/proekty/115-940-bajkal, який являє собою просторий дерев’яний особняк з комфортним плануванням для зручного проживання або проведення часу. Планування першого поверху вирішене у вільній манері відкритого простору - вітальня поєднана з кухнею-їдальнею, що візуально збільшує площу. На другому поверсі розташовані дві спальні з просторим балконом. Привертає увагу наявність великого простору відкритих майданчиків в будинку, мається на увазі балкон і тераса. Такі приміщення в будинку припадуть до вподоби кожному члену сім’ї, адже при наявності новонароджених дітей, ви можете без особливих проблем вивозити коляску і насолоджуватися чистим повітрям.

Перебуваючи, самі в м’якому кріслі або гамаку, ви можете вести щоденник або робити робочі записи. На свіжому повітрі все сприймається інакше. І тепер у вас буде можливість в цьому впевнитися. Також, майже всю площу першого поверху, займає зал. Це є прерогативою всієї споруди. Так як ви можете поставити тут рояль, навчаючи своїх дітей мистецтву. Можете доповнити приміщення настільними іграми, отримуючи можливість урізноманітнити ваші вечора в колі сім’ї та друзів. Прикрасивши зал каміном, ви досягнете м’якої і теплої атмосфери, невимушеної і в той же час щирої.

Багато хто вважає, що саме ця кімната, здатна охарактеризувати своїх власників. Із проектом Байкал dominant-wood.com.ua/uk/proekty/115-940-bajkal у вас буде багато переваг і варіацій, щоб домогтися приголомшливого враження, від перебування у вашому домі. Наші проекти дерев’яних будинків допоможуть визначитися з будинком, придатним саме вам, який з кожним днем буде надихати і приносити відчуття комфорту вашій родині.

Кількість поверхів
2
Площа
192
Ширина
9
Довжина
9
Будинки і житлові будови
Котеджі
Маєтки
Садиби
Кількість кімнат
Трикімнатні будинки
Особливості будинків
Будинки з балконом
Будинки з мансардою
Будинки з терасою
Будинки зі сходами
Кількість поверхів споруди
Двоповерхові будинки
Будинки з брусу
Будинки з оциліндрованого брусу

Базова комплектація:
(Що входить в ціну)

Що входить в базову комплектацію

  • комплект стін;
  • комплект крокв;
  • комплект балок перекриття;
  • утеплювач міжвінцевий;
  • антисептик (антисептування всього матеріалу);
  • дубові нагеля;
  • кріпильні материали (саморізи, усадкові болти, анкера, кріпильні пластини);
  • гідроізоляція;
  • вогнебіозахист (обробка деревини засобом І групи вогнезахисної ефективності)

303750 грн.

Дах (комплектність):

  • Рейка 100*25мм (cосна)
  • Контрейка 50*25мм (сосна)
  • Металочерепиця МОНТЕРРЕЙ (Польща) 0,45мм
  • Коник прямий
  • Планка примикання
  • Лобова (декоративна) планка
  • Вітровая планка
  • Яндола
  • Капельник (Карнизна планка)
  • Ущільнювач універсальный
  • Саморізи ОС 4.8х35
  • Фарба-спрей
  • Гідробар'єр
  • Монтаж

245560 грн.

Вікна (комплектність):

  • Вікно VEKA 58, колір білий 10
  • Імпости вертикальні: 1 x 102103
  • Скління: СПО, 24мм, (Rсп=0.36)*
  • Тип фурнітури: Activpilot поворотно-відкидна, колір білий
  • Підбір спеціальний: Activ микровентиляція; Activ 2-функц. механ.
  • Моск.сітка: МС 3
  • Підвіконня: ВМ 110мм, колір білий
  • Підвіконня: ПВ ПВХ 150, заглушки: 600мм, колір білий
  • Монтаж

0 грн.

Двері (комплектність):

  • Полотно
  • Коробка
  • Лиштва
  • Карниз
  • Фарбування
  • Скло
  • Фурнітура
  • Врізка фурнітуры
  • Монтаж

124992 грн.

Фарбування (комплектність):

  • Шліфування торців
  • Тришарове покриття ефективним деревозахисним засобом на базі низькомолекулярної алкідної смоли методом розпилення.

Параметри забудови

  • Кількість поверхів: 2
  • Площа: 192

Розмір забудови

  • Ширина: 9
  • Довжина: 9

Перший поверх

зал (м²)54
с/в (м²)9
тамбур (м²)5
тераса (м²)13

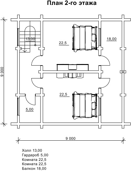
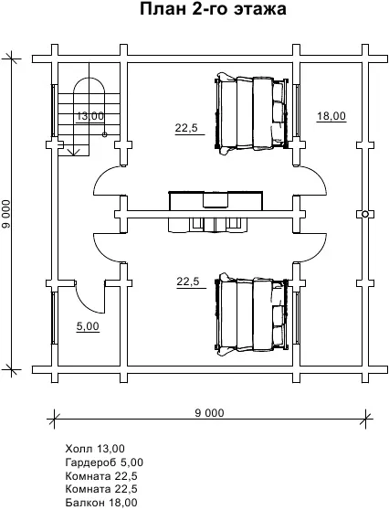
Другий поверх

балкон (м²)18
гардеробна (м²)5
кімната (м²)22,5
кімната (м²)22,5
хол (м²)13

Оциліндрований брус

Оциліндрований брус є найбільш оптимальним і поширеним матеріалом для будівництва дерев`яних будинків і бань, бесідок, альтанок, різноманітних садових меблів, дерев`яних конструкцій будь-яких видів. Дерев`яні будинки з оциліндрованого брусу відрізняються красою, всередині такого будинку завжди відчувається особлива затишна атмосфера.

Читати далі...

Профільований брус

Найсучаснішим і високотехнологічним будівельним матеріалом в дерев`яному будівництві на сьогоднішній день є профільований брус. Для виробництва профільованого брусу, звичайному дерев`яному брусу на спеціальному деревообробному обладнанні надається певний профіль.

Читати далі...

Подвійний брус з утепленням

Головна ідея застосування подвійного бруса полягала в досягненні енергоефективності житла. Над проектуванням енергозберігаючих будинків працюють провідні інженери та архітектори в різних країнах світу, запропонована фінами технологія подвійного бруса дає можливість звести до мінімуму тепловтрати будинку, а також об`єднує переваги будівництва дерев`яного будинку з економічністю споруди.

Читати далі...

Клеєний брус

Клеєний брус принципово відрізняється від інших типів колод багатошаровістю. Така структура робить цей дерев’яний матеріал надміцним і витривалим.

Читати далі...

Каркасні конструкції

Каркасні конструкції виготовляються на власних виробничих потужностях компанії «Домінант», з використанням сучасних деревообробних станків. Імпортне, високоточне обладнання дозволяє нам високоякісно виконувати свою роботу. Каркаси складаються зі струганих, ретельно висушених балок 150х50 мм (сосна першого сорту). Ці балки застосовуються для зовнішніх каркасів.

Читати далі...

Немає відгуків

Переглянуті товари

16 інших товарів в цій категорії:

Товар додано для порівняння.