- Статті
- 0 вподобання
- 614 покази
Хоча вересень дивує нас справжнім літнім теплом, а сонце продовжує щедро дарувати свої промені, ми знаємо, що ця мить не триватиме вічно. Згодом осінь почне нагадувати про себе холодними вечорами, першими приморозками й бажанням знайти затишок там, де тепло не залежить від примх погоди. Саме тоді особливо приємно буде сховатись у власному будинку, де панує м’яке тепло дерев’яних стін. І це відчуття цілком реальне завдяки компанії «Домінант». Адже ми спеціалізуємось на будівництві утеплених будинків з подвійного брусу, які зберігають тепло навіть у найсуворіші дні. Сьогодні розглядаємо проекти утеплених котеджів, щоб у вас був час обрати свій і подбати про зустріч холодів у власному дерев’яному будинку.
Переваги котеджу з подвійного брусу, утепленого арболітом
У такому будинку завжди затишно: повітря наповнене свіжістю хвойної сосни, а стіни з подвійного брусу надійно захищають від вітру й холоду. Це не просто оселя - це місце, де літо триває довше, а зима стає значно м’якшою. Стіна утепленого брусу складається з двох сухих профільованих брусів перетином 60×150 мм, розташованих паралельно один одному. Між ними залишається вільний простір шириною 180 мм, який заповнюється утеплювачем. У результаті виходить тришарова конструкція: дерево - утеплювач - дерево.
Раніше для будівництва своїх проектів компанія «Домінант» використовувала утеплювач URSA (Pure One) товщиною 150 мм. Це безпечний для людини, екологічно чистий матеріал з високими теплоізоляційними властивостями, який не підтримує горіння. Сьогодні ми вдосконалили технологію подвійного брусу з утепленням і перейшли на арболіт (деревобетон). Він складається з органічного наповнювача (тирса) та цементу. На нашому виробництві арболіт готується з соснової тирси (ми працюємо виключно з сосною) та цементу марки 400 або 500. У суміш додається вода і вапно. Вапно виконує важливу функцію: воно повністю нейтралізує глюкозу в деревних трісках, роблячи матеріал стійким і нецікавим для комах та гризунів. Добре приготований арболіт стає чудовим утеплювачем. Завдяки безлічі повітряних пор він бездоганно утримує тепло і не дає усадки. Це матеріал, безпечний для людини, екологічно чистий, не схильний до появи цвілі чи гнилі. Крім того, арболіт відрізняється низькою горючістю - він не підтримує поширення вогню. І як дерево, цей матеріал «дихає», завдяки чому в будинку зберігається природний і здоровий мікроклімат.
Розглянувши особливості технології, давайте сконцентруємся на її перевагах:
- Головна цінність таких будівель - енергозбереження. Вони чудово тримають тепло взимку, тому витрати на опалення значно менші.
- Конструкція подвійного брусу забезпечує також відмінну звукоізоляцію, тож у будинку завжди буде тихо і спокійно.
- Завдяки використанню колоди невеликого розміру (60×150 мм), проекти залишаються доступними за ціною, але при цьому зберігають високу якість.
- Подвійне з’єднання брусу робить будівлю стійкою й надійною - такі будинки витримують навіть землетруси силою до 6 балів.
- Ще одна важлива перевага - екологічність. У конструкції не використовується клей чи хімічні домішки, лише дерево та утеплювач, безпечні для людини.
- Невелика вага будинку дозволяє заощадити на фундаменті, а завдяки точному профілю брусу будівля не потребує складної обробки: достатньо покрити всередині поверхню воском або фарбою на водній основі, а зовні додати посилений захист до покриття.
- В технології подвійного брусу є можливість використовувати комбінування матеріалів. Наприклад, для міжкімнатних перегородок застосовується одинарний сухий профільований брус 60×150 мм, що в свою чергу економить бюджет будівництва.
Будинок з подвійного брусу з утепленням поєднує в собі особливу атмосферу дерев’яної оселі, чудову теплоізоляцію та простоту в догляді. А ще такі проекти мають доступну собівартість, тому й стають дедалі популярнішими серед наших клієнтів.
Збережи тепло - обери дім з подвійного брусу з утепленням
У нас великий каталог проектів, і кожен може підібрати будинок під свій бюджет. Окремо ми виділили будинки з подвійного брусу з утепленням. Вони добре тримають тепло взимку і роблять життя комфортним. Це просте і надійне рішення: натуральне дерево, міцні стіни та економія на опаленні. Обираючи такий проект, ви отримуєте теплий дім для своєї родини на довгі роки.
Проект «Брілана»: житловий будинок з трьома спальнями
Будинок з утепленого брусу «Брілана» спершу робили під клієнта з Іспанії. У проекті врахували все - і клімат, і архітектурні традиції. Подвійні бруси з утеплювачем тримають прохолоду навіть у спеку. Взимку стіни добре утримують тепло. Це насправді універсальний дім. І для півдня, і для півночі. Розмір будинку 11,8 на 11,9 м. Зовнішні стіни подвійні, з утепленням усередині. Внутрішні перегородки робляться з сухого профільованого брусу 60×150 мм.
Усередині - три спальні. У двох є власний санвузол. Є вітальня, де вистачить місця для всієї родини. Кухня зручна й простора. Є навіть кабінет для роботи. Одноповерхове планування дозволяє жити на повну: і працювати, і відпочивати, і приймати гостей.
Проект «Сільва2»: гостьовий будиночок на 44,3 м
Цей будиночок спочатку робили з колод. Він вийшов дуже вдалим і сподобався нашим клієнтам. Тому ми вирішили не зупинятися і зробили оновлену версію вже з подвійного брусу з утеплювачем. Так будинок став тепліший, міцніший і більш універсальний. Ця версія більше подобається тим, хто обирає сучасний стиль будівництва. Вона виглядає стримано і стильно. А от стара модель із колод підходить тим, кому ближчі казкові, округлі дерев’яні будиночки. Отже, модель «Сільва2»стала продовженням літнього варіанту «Сільва». Площа залишилася майже такою ж, проте планування стало зручнішим. На першому поверсі є зал 18,8 м2. Біля нього маленька комора 2,1 м2 і санвузол 5,6 м2, де легко поміститься ванна. Мансарда у «Сільва2» вища, ніж у старій моделі. Спальня більша - 12,5 м2. Там стало зручніше спати і відпочивати.
Стіни з подвійного брусу добре тримають тепло і додають надійності. Тепер проект «Сільва2» можна сміливо будувати не тільки як літній варіант, а й для постійного життя. А ще його часто беруть під оренду, бо він економний у витратах на опалення і зручний у будь-яку пору року.
Проект «Лейс»: будинок-лазня 6,9 м на 14 м
«Лейс» побудований за сучасною теплою технологією та має головну перевагу - наявність парилки (6,1 м2). Такий будинок-лазня не лише економить місце на ділянці, а й дарує власникам постійний доступ до оздоровчих процедур. У плануванні передбачено котельню, душову, санвузол - повний набір для справжньої лазні. Крім цього, у будинку є спальня, зал із можливістю облаштувати кухню та затишна тераса. Окремої уваги заслуговують панорамні вікна від підлоги до стелі у залі та спальні. Якщо звести будинок у мальовничій місцевості, великі вікна дозволять щодня насолоджуватися краєвидами й світлом.
Будівництво дачі з бруса завжди було вдалим рішенням, а вибравши готовий проект «Лейс» з подвійного брусу з утеплювачем, ви отримаєте теплий і надійний дім, придатний як для літнього відпочинку, так і для зимових свят. Уявіть, як затишно зустрічати Новий рік у власному заміському будиночку з лазнею, що робить відпочинок ще більш особливим.
Проект «Тілейф»: розкішний маєток на 266,3 м2 з басейном
Маєток площею 266,3 м2 (параметри 17,8 × 14,3 м) розрахований на ділянку до 15 соток і має два поверхи. «Родзинка» першого поверху - просторий басейн 4×6 м (42,6 м2), біля якого можна розмістити зону відпочинку з меблями та шезлонгами. Окрім басейну, на першому поверсі передбачені зал на 34,4 м2, кухня площею 27,7 м2, робочий кабінет, санвузол, тамбур і комора. Дві тераси додають будинку «Тілейф» особливого шарму: одна біля входу виконує роль затишного ґанку, інша з виходом на кухню ідеально підійде для літніх вечерь та посиденьок з друзями.
Другий поверх відкривається з видової площадки другого світла, з якої є вихід у дві спальні, ванну кімнату та санвузол. Планування гармонійно поєднує простір для відпочинку, роботи й прийому гостей. Маєток вражає не тільки архітектурою, але й функціональністю. Він створений для тих, хто мріє про щоденний комфорт, здоровий відпочинок біля власного басейну й довговічність дерев’яного житла.
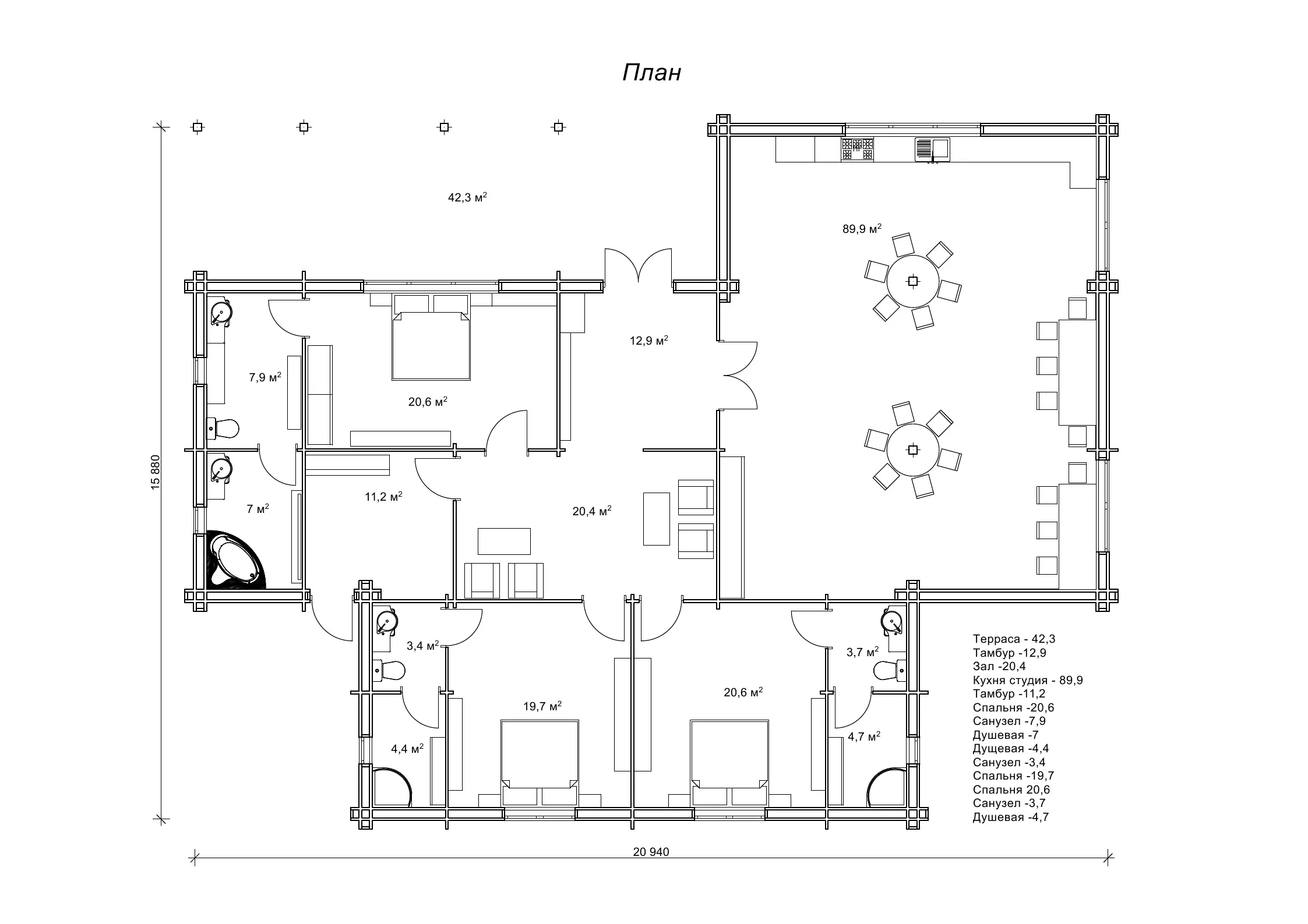
Проект «Дамейя»: готель-хостел на 3 номери
Проект створювався таким чином, щоб у кожного гостя був свій простір, де він може відпочити чи просто побути на самоті, але водночас у будинку є й спільні місця, де всі збираються разом, говорять, їдять або просто проводять час, і ця комбінація приватного й загального робить хостел зручним для різних людей. Тут три номери. У кожному є санвузол.
«Дамейя» має розмір 15,8 × 20,9 м, у ній виділено зал на 20,4 м2 для спілкування, а також простору кухню-студію на 89,9 м2, де гості можуть одночасно сісти за стіл, приготувати собі їжу або просто випити кави, і там вистачає місця всім без винятку. Біля входу велика тераса. Її площа 42,3 м2. На ній легко зробити лаунж, бар або зону з лежаками біля вуличного басейну. Як бачите ми здатні побалувати вас проектами будівель будь-якої складності і призначення: від гостьового будиночку до готелю! Ще більше гідних уваги проектів будинків з утепленням дивіться в нашому загальному каталозі. На кожній сторінці з проектом ми підготували вам докладну інформацію про план з розмірами, комплектацію, фото робіт та інші деталі будинку. Обираючи житло з подвійного брусу з утепленням, ви інвестуєте не лише у квадратні метри, а й у комфорт та здоровий мікроклімат. Зробіть свій вибір на користь енергоефективності та довговічності - і ваш дім залишатиметься надійним і затишним поколіннями!























