- Новини
- 0 вподобання
- 1093 покази
Замовлення на дерев’яні споруди в Німеччину надходять в «Домінант» регулярно. Адже громадяни країни, третину території якої займає ліс, знаються на деревині, як ніхто інший. Також німці цінять порядок і акуратність у всьому, а ми суворо дотримуємось екологічних норм у процесі деревообробки та надаємо всі необхідні сертифікати на експорт дерев'яних виробів. Тому дерев'яні будинки виробництва «Домінант» настільки затребувані в Німеччині. Сьогодні розповідаємо про виконання замовлення оциліндрованого котеджу до цієї країни.
Індивідуальний проект котеджу на експорт
Зазвичай, німецькі замовники надають перевагу індивідуальному проектуванню, не дивлячись на величезний асортимент готових проектів з нашого сайту. Специфіка німецьких замовлень полягає в їхній максимальній простоті та практичності. Кожного року ми обов’язково виконуємо декілька замовлень для німців, і всі вони відрізняються досить компактними розмірами, лаконічним стилем, функціональністю планування. Індивідуальні замовлення будинкових комплектів найкраще допомагають отримати бажаний результат, який відповідатиме усім особистим вподобанням клієнта та офіційно прийнятим нормам.
До того ж багато проектів, які були розроблені відповідно до індивідуальних побажань, ми занесли в каталог готових проектів «Домінант», як найвдаліші моделі будинків. Адже саме в них втілюються сучасні запити і бачення комфорту наших замовників. Отже пропонуємо вам розглянути проект гостьового котеджу з каміном «Ратвіс», створений по мотивах індивідуального замовлення в Німеччину. Як бачите, в проектному рішенні передбачено, що це буде однокімнатний будиночок-студія, в якому можна облаштувати функціональні зони на власний розсуд.
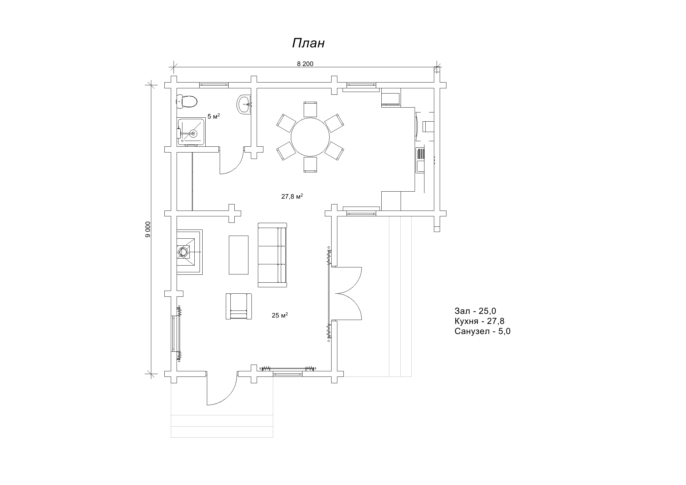
Цього разу комплект котеджу на експорт до Німеччини був виготовлений з соснових колод діаметром 180 мм та був експортований до Кохель-ам-Зе. Параметри комплекту 9 на 8,2 м відповідали індивідуальним побажанням замовника по зручності та функціональності забудови. Крім того, важливо врахувати такі параметри, як технологічні можливості та дозволи, які існують у країні, куди будинок експортується. Наприклад, у країнах з холодним кліматом можуть існувати вимоги щодо ізоляції та опалення будинків. У данному випадку у нас придбали комплект з колод діаметром 180 мм, які підходять для сезонного перебування та дозвілля. У планах клієнтів було використання котеджу у якості літньої резиденції в мальовничій місцевості озера Кохельзе (Баварія). Якщо вам колись траплялися неймовірно гарні зображення пейзажів озера, в оточенні гірського рельєфу, то знайте, що то саме та місцина, куди відправився не менш мальовничий, колодчастий котедж нашого виробництва, що став частинкою прекрасної природи Баварії.
Планування та зовнішній вигляд котеджу враховують індивідуальні потреби та бажання клієнта. Будова відрізняється максимальною простотою, відкритістю і майже не містить внутрішніх перегородок, окрім відгородженого санвузла. При вході спланована кухня-студія з окремим виходом на відкриту терасу біля будинку. Такий простий набір приміщень налаштовує на затишний відпочинок та проведення більшості часу на природі.
Виготовлення індивідуального проекту котеджу на експорт - це складний процес, який потребує великої уваги до деталей та високої якості виконання. Однак, якщо проект відповідає всім вимогам технічної, дизайнерської та безпекової складових, він може бути дуже успішним на міжнародному ринку, як усі експортовані комплекти будинків «Домінант», які радують своїх господарів в найрізноманітніших куточках світу. Неймовірна здатність хвойних дерев - виділяти фітонциди (природні антисептуючі речовини), що забезпечує всередині будинку сприятливий для здоров’я мікроклімат і тонкий аромат хвої, дуже затребувана скрізь. Крім цього, на міжнародному ринку насамперед цінують якість і довіряють сертифікованим виробникам, тому бездоганно зроблені комплекти котеджів «Домінант» завжди на висоті!
Переваги замовлення дерев’яних будинкових комплектів в «ДОМІНАНТ-ВУД»
Перед тим, як довірити комусь будівництво котеджу або виробництво комплекту будинку слід ретельно обрати підрядника. При цьому вам обов’язково стане в нагоді наша публікація «Як вибрати підрядника для будівництва будинку з брусу: чек-лист «ДОМІНАНТ-ВУД»». Зокрема, ми, як експортоорієнтоване підприємство з двадцятирічним досвідом роботи маємо суттєві переваги порівняно з іншими деревообробними підприємствами.
Використання якісної деревини. Компанія використовує лише сертифіковану сировину з українських лісів, що гарантує довговічність та міцність будівель. Про це свідчить наявність сертифіката FSC, що підтверджує безпечне походження сировини з лісгоспів, що впровадили систему сталого управління лісними ресурсами.
Професійний досвід. Команда «Домінант» має багаторічний досвід (22 роки) у виробництві дерев'яних зрубів, що дозволяє їм створювати високоякісні та ефективні конструкції.
Індивідуальний підхід. Компанія практикує індивідуальний підхід до кожного клієнта, допомагаючи обрати оптимальний проект та виконати всі побажання замовника.
Використання новітніх технологій. Підприємство застосовує новітні технології у виробництві, що збільшує виробничі потужності та допомагає постійно вдосконалювати асортимент і продукцію.
Гарантія якості. Компанія надає гарантію на свої вироби, що свідчить про високу якість та надійність будівель.
Міжнародна діяльність. «ДОМІНАНТ-ВУД» має багатий досвід експорту дерев'яних зрубів за кордон, зокрема до країн Європейського Союзу, США та Азії. Ефективно налаштована зовнішньоекономічна діяльність на підприємстві розширює ринки збуту та відкриває можливості для іноземних замовників отримати якісний, український продукт. Детальніше про локації споруд від «Домінант» можна дізнатися з карти готових робіт на сайті.
Компанія «Домінант» завжди максимально точно виконує побажання замовників на дерев’яні будови по індивідуальним запитам. Через це кількість зарубіжних замовлень на будівництво дерев'яного будинку фірмою постійно зростає. Ми готові розробити і побудувати проект по індивідуальним завданням, як в Україні, так і за кордоном. При цьому гарантується його якість і довговічність. Ми впевнені, що кожен зможе обрати будову відповідно до своїх вподобань у нашому каталозі проектів, більше того, ми готові реалізувати будь-які індивідуальні ідеї. Тому звертайтеся до офісу «Домінант», і втілюйте мрію про свій затишний дерев’яний котедж, який стане улюбленим місцем і справжньою віддушиною у череді буднів.
















