- Новини
- 0 вподобання
- 3720 покази
Нарощуючи обсяги виробництва, постійно відкриваючи нові ринки на протязі ось вже другого десятка років, ми стали потужним експортоорієнтованим підприємством в сфері деревообробки. Каталог проектів будинків з брусу «Домінант» постійно поповнюється новими гідними роботами, які радують домовласників в різних куточках Землі! Все більше зарубіжних клієнтів звертаються в компанію «Домінант» щоб замовити виготовлення зрубів, і ми з радістю освоюємо нові території.
Отже, сьогодні вас чекає знайомство з дивовижним проектом дерев'яної садиби чарівної краси «Мезар».
Не менш дивним є те, що ми виготовили зруб садиби для відправки її на інший континент! І тепер дерев'яна садиба нашого виробництва зібрана в США, в містечку Поконо, округ Монро, штат Пенсильванія. Це недалеко від популярного району Camelback з курортом Water Beach & Ski Area, розташованого в Поконо і прилеглому містечку Джексон. Примітно, що багато закордонних проектів наших будинків зводяться саме в мальовничих куточках природи для підтримки навколишньої краси і гармонії з прекрасними пейзажами. Тільки дерев'яний будинок з натурального зрубу із запахом хвойної свіжості здатний стати прикрасою будь-якого природного ландшафту.
Особливості виробництва дерев'яного будинку на експорт в США
Для того, щоб замовити виробництво дерев'яного будинку з монтажем або просто комплекту для самостійної збірки в компанії «Домінант», потрібно вибрати відповідний проект в меню «Проекти» на нашому сайті. На кожній сторінці з проектом ми розрахували ціни базової комплектації споруди і детально розписали, що включає вартість з докладним поясненням для зручності всіх клієнтів.
Сформована за багато років нашої діяльності колекція проектів будинків з бруса склала близько тисячі будівель на будь-який смак і бюджет, від бюджетних дач до елітних вілл. Крім того, ми завжди можемо спроектувати абсолютно новий проект, повністю ідеальний для клієнта і його сім'ї, як ми зробили для нашого клієнта з США.
Наш архітектор створив абсолютно унікальний проект садиби з другим світлом з колод 220 мм в діаметрі. Після внесення передоплати за проект, архітектор зробив проект саме таким, яким бачив його наш замовник в своїх мріях. Далі ми підписали договір на виготовлення дерев'яної конструкції і після оплати 50% від вартості будови приступили до виробництва. Коли комплект садиби був готовий, клієнт оплатив другі 50% за дерев'яну конструкцію і транспортував її в декількох морських контейнерах до себе в США. На ділянці замовника будинок, виготовлений нами за проектом «Мезар», клієнт збирав за допомогою місцевої бригади будівельників.
Специфікою створення і затвердження проектів будинків в США виступає вимога до метричної системи. Всі розміри в технічній частині проекту по збірці дерев'яної конструкції повинні бути вказані в дюймах. Не кажучи вже про те, що сам проект і всі його деталі повинні бути прописані англійською мовою. На підприємстві «Домінант» добре налагоджена зовнішньоекономічна діяльність. Завдяки тому, що ми враховуємо специфічні норми і вимоги різних країн з експорту дерев'яних комплектів будинків і будівництва, наші будівлі можна побачити в будь-яких куточках світу.
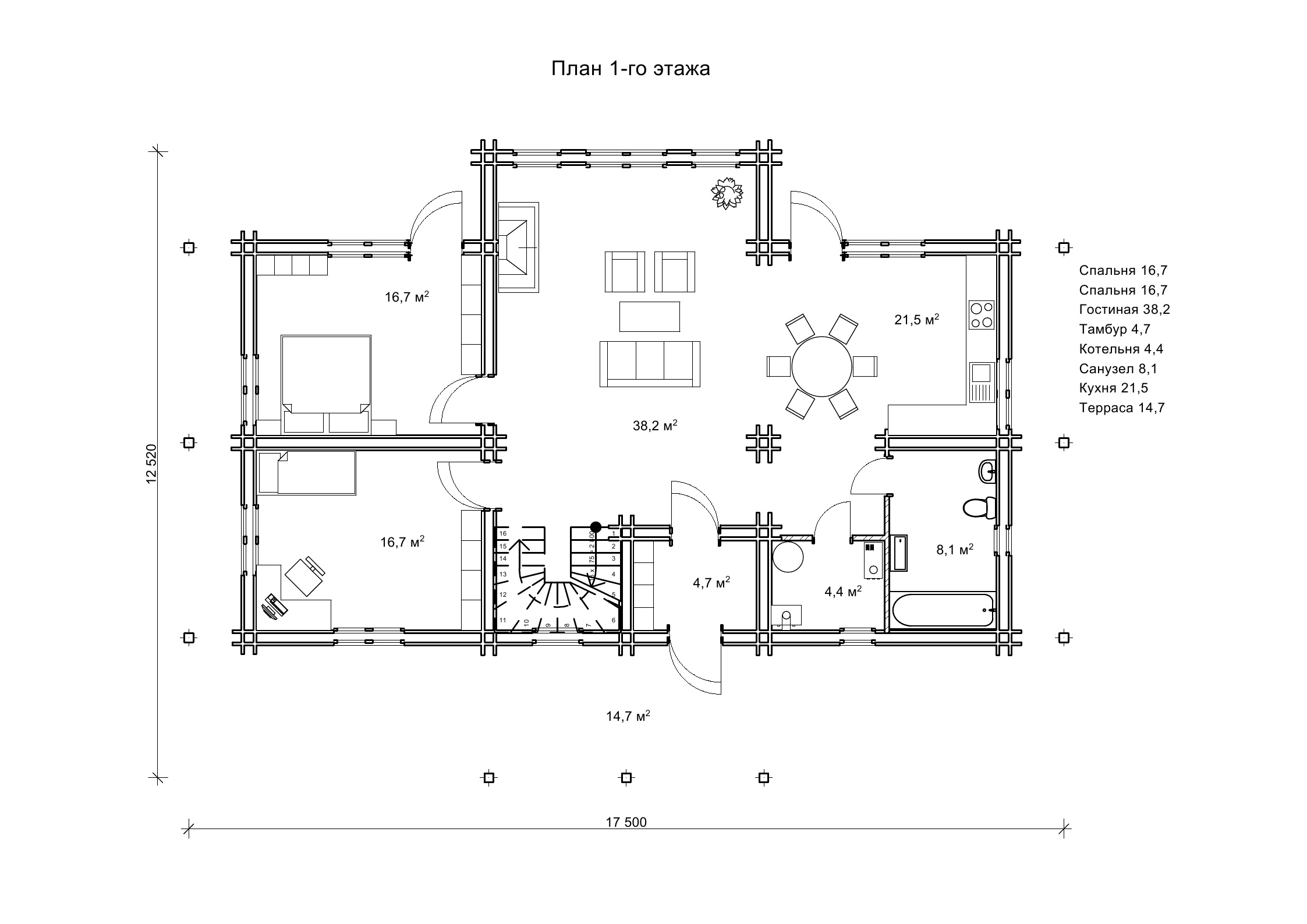
Садиба зі зрубу Ø 220 мм з другим світлом - проект «Мезар», 255 м2
Монументальний маєток «Мезар» - це предмет гордості господаря, це родове гніздо, яке буде переходити з покоління в покоління. Добротна садиба зі зрубу займає габарити 7,8 на 17,5 м і площу 255 м2, будучи одним з найбільш гідних проектів, які рекомендуються для постійного житла в каталозі «Домінант». Просторі приміщення двох поверхів будівлі комфортно може займати велика родина або використовувати вільні кімнати, якщо такі є, для гостей. Відмінними рисами проекту «Мезар» можна назвати друге світло над залою, балкони над дерев'яними колонами та панорамні вікна, що займають практично весь головний фасад будинку. При створенні проекту господар підкреслив вишуканість кожної деталі зовнішнього дизайну і розкіш внутрішньої обстановки. По суті, він заклав фундаментальну основу в процвітання і здоров'я своєї родини.
Мальовниче місце з зеленими лісами і високими горами поблизу містечка Поконо штату Пенсильванія злагоджено поєднуються з класичною красою натурального дерева, яка в повній мірі розкрита в багатій садибі «Мезар». Округлості дерев'яного зрубу причепурюють будову, роблячи її урочистою і аристократичною.
Майстри «Домінант» знають, як поєднувати зовнішній лиск будови з перевагами натуральних матеріалів, з яких виконується проект. Проект садиби «Мезар», реалізований в Америці, надихнув нас на розробку його в найпрогресивнішій на сьогоднішній день технології будівництва з подвійного брусу з утеплювачем всередині стін. Так ми створили другу версію проекту «Мезар2».
Ті, хто віддає перевагу суворим геометричним формам сухого бруса без округлих, рублених, оциліндрованих стін, гідно оцінять модернізований «Мезар2». Та ще й з каміном, який ми додали у внутрішнє планування! Погодьтеся, складно уявити такий ефектний будинок в лісі без каміна. Але давайте розглянемо проект «Мезар2» докладніше трохи пізніше, як тільки теж побудуємо його, а зараз повернемося до планування побудованого проекту «Мезар».
Планування і будівництво дерев'яної садиби з брусу
Планування незрівнянного маєтку з бруса відкриває безмежний простір для фантазії по дизайну великого внутрішнього простору. На першому поверсі знаходиться «серце» будинку - центральна вітальня площею 41,3 м2. З вітальні відкривається великий панорамний вид на навколишню красу. Симетрично з обох боків від вітальні сплановані кухня і кабінет однакової площі 18,7 м2. І в тому, і в іншому приміщенні передбачені виходи на тераси, що дуже зручно, так як не потрібно йти через весь будинок, щоб насолодитися свіжим повітрям. На першому поверсі також є спальня. Це житлова кімната площею 16,9 м2, яка підходить для тих мешканців, кому складно пересуватися по сходах або для гостей, що затримуються в будинку на кілька днів. Ванна кімната і приміщення котельні утворюють окремий блок. Ванна дуже простора, вона займає площу 9,1 м2. В котельні 5,2 м2 достатньо місця для опалювального обладнання та зберігання домашнього інвентаря. При вході в будинок спроектований тепловий тамбур, який захистить від попадання всередину холодного повітря і буде зручним місцем для зберігання верхнього одягу.
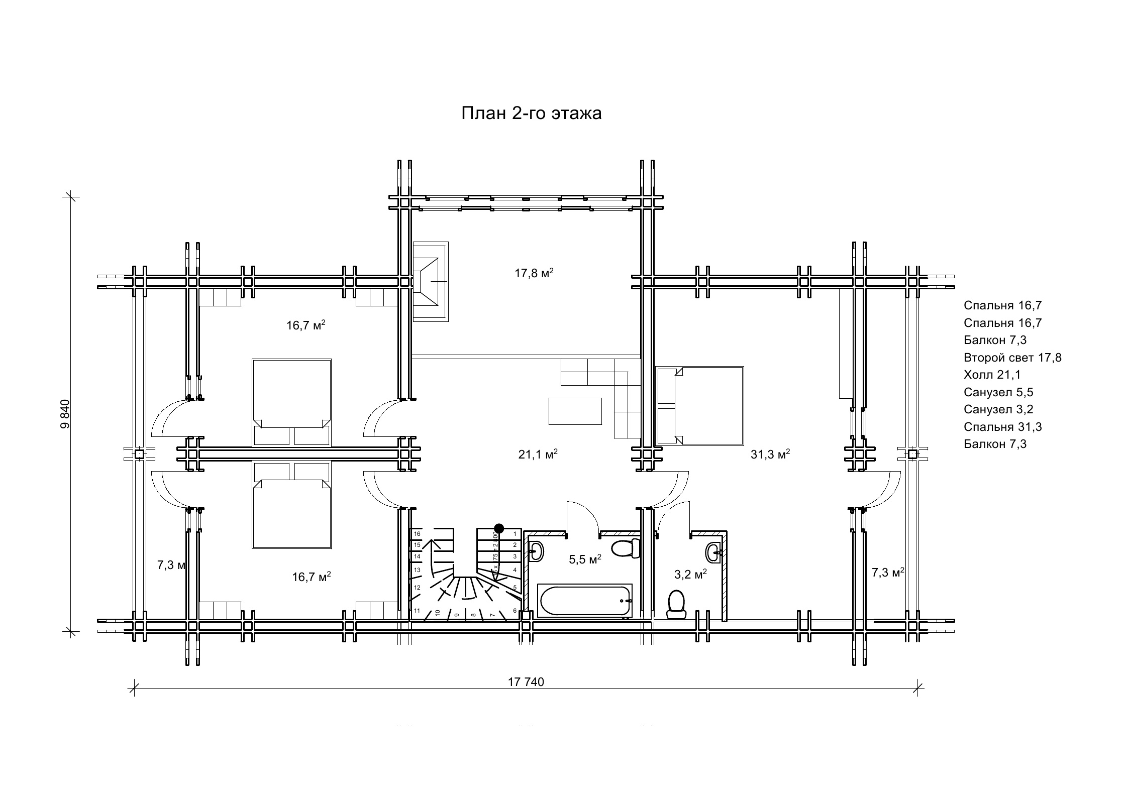
Простір другого поверху - це зона відпочинку, розподілена на особисту територію для кожного члену родини. Тут спроектовані чотири спальні площею 18,7 м2, є невелика комора розміром 5 м2. Вхід в кімнати спланований зі світлого коридору площею 21,1 м2, з якого відкривається пишна краса другого світла в садибі «Мезар». Виходячи на балкон перед другим світлом, відчуваєш широту простору, бачиш неймовірну панораму з вітальні, і розумієш - життя прекрасне і сповнене красою!
Планування садиби «Мезар» з п'ятьма спальнями передбачає проживання великої родини, а товщина зрубу 220 мм діаметром, виконаного з соснових колод по теплоті порівнянна з 980 мм товщини цегляної кладки. Це означає, що будинок буде теплим навіть в умовах морозної і сніжної зими. Відзначимо, що США, зокрема штат Пенсильванія, знаходяться в південніших широтах ніж Україна, а у нас розмір соснових колод 220 мм, закладених в стінах житла, прекрасно підходить для постійного проживання з урахуванням сформованих кліматичних умов.
Як замовити дерев'яний будинок в США або іншу країну?
Безліч наших замовників в Україні і за кордоном вже переконалися на власному досвіді, що при замовленні споруди з дерева у виробничо-будівельної компанії «Домінант», купується абсолютно екологічний, високоякісний і довговічний зруб. Ми контролюємо кожен етап виробництва і будівництва. Починаючи від обробки деревини і закінчуючи складанням проекту, кожен виробничий процес виконується з високою точністю на автоматичних лініях власного виробництва. Замовники завжди залишаються задоволені кінцевим результатом, а ми з радістю знайомимо вас з новими роботами! Як ми будуємо будинки за кордоном: оформлення замовлення і процес побудови, докладно описано в одній з наших публікацій, якщо ви перейдете по виділеному посиланню, відразу натрапите на відповідну статтю і отримаєте повну інформацію. Великий обсяг роботи в багатьох країнах світу підтверджує бездоганну якість наших виробів. Ми по праву заслужили міжнародну репутацію надійного підприємства з кваліфікованими фахівцями, великими обсягами реалізації і високої виробничою потужністю, завдяки чому відкриваємо все нові і нові країни в нашій роботі!







































