- Новини
- 0 вподобання
- 1565 покази
Проект оригінального і дуже гарного будинку «Сапфір» під стать своїй назві, взятої від дорогоцінного каменю, можна віднести до ексклюзивних проектів «Домінант» для творчих людей. Такий будинок призначений для тих, хто хоче придбати гарний, модний, сучасний і просторий маєток, а також має в своєму розпорядженні достатніми фінансами на масштабну споруду. Оциліндрований маєток за «Сапфір» наші майстри звели в Вінниці з колод діаметром 200 мм. Далі подробиці реалізації проекту.
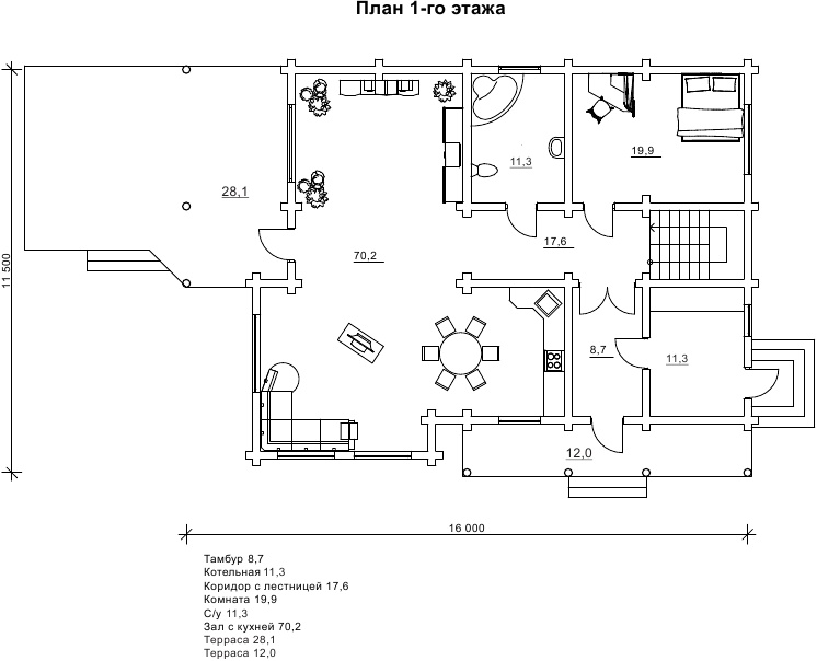
Оригінальність планування маєтку «Сапфір» 11,5 на 16 м
Проект «Сапфір» спроектований в параметрах 11,5 на 16 м і його загальна площа становить 289,81 м2. Дизайн двоповерхового маєтку формується поєднанням різних архітектурних ліній. Вигини мансардного даху, конструкції навісів над ґанком і терасою, різна форма і розмір вікон утворюють багатогранний і динамічний дизайн. З боку протилежних фасадів розташовані дві абсолютно різні вхідні групи. Причому кожен вхід в маєток оформлений так ошатно, що може послужити головним. Багатогранність і незвичайні зовнішні обриси зрубу означають оригінальність і його внутрішнього планування.
Планування першого поверху починається з терас по обидва боки фасадів. На великій терасі площею 28 м2 можна вдосталь відпочити, насолоджуючись природою біля будинку. Тут можна обладнати мангал або м'який куточок. Місця вистачить під всі ідеї організації відпочинку. Близько другого входу є невелика тераса на 12 м2 під балконом аналогічної площі. Незважаючи на невеликі розміри тераси, на фото видно, що вона досить містка для столу і лавочки, наприклад. Всередині першого поверху спланована велика вітальня з кухнею на 70,2 м2. Якраз з неї можна вийти на велику терасу. Також перший поверх містить просторий санвузол і спальню, яку зручно використовувати під гостьову кімнату. Ще одне дуже корисне приміщення першого поверху - це котельня. Її площі 11,3 м2 цілком вистачає для всієї необхідної опалювальної техніки. У цьому дерев'яному маєтку господареві не потрібно замислюватись, де розташувати котел і основні вузли комунікацій.
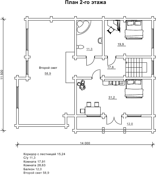
Друге світло між поверхами дозволяє господарям маєтку «Сапфір» отримати величезний зал заввишки в два поверхи з великим об'ємом натурального освітлення і неповторною акустикою. Грамотний дизайнер інтер'єрів здатний зробити таку вітальню з другим світлом іконою стилю. Також на другому поверсі розташовані дві просторі, житлові кімнати. Одна з кімнат спроектована з балконом. Зовнішня краса і внутрішнє планування зрубу «Сапфір» заворожує і запрошує стати господарем цього шедевра!
Переваги замовлення готового проекту будинку з каталогу «Домінант»
Проект «Сапфір» був обраний в нашому каталозі і побудований без внесення будь-яких змін замовником. Для зведення стін ми порекомендували вибрати колоду, не тонше ніж 200 мм в діаметрі, щоб масштабна споруда під 300 м2 була надійною, та ще й теплою в зимовий період. Вибір і побудова готового проекту будинку означало отримання кілька суттєвих переваг замовником.
Економія часу. Готовий проект будинку не вимагає часу на узгодження і додаткові прорахунки. Це дозволяє швидше почати будівництво, не відволікаючись на численні нюанси.
Економія бюджету. При виборі готового проекту, в каталозі зазначена попередньо порахована вартість, що дає можливість завчасно спланувати бюджет будівництва. Як правило, при внесенні змін до проекту, ціна може зростати залежно від внесених доповнень. У разі вибору і реалізації готового проекту без індивідуальних змін, вартість залишається незмінною і на неї можна спочатку орієнтуватися.
Перевірені і надійні планувальні рішення. Готовий проект будинку, як правило, вже перевірений попередніми його будівлями. Тому в готових проектах вже закладені оптимальні розміри і кількість кімнат, що виходячи з досвіду попередніх будівель, ідеально підходить під ті чи інші функції.
Найпривабливішим моментом при виборі будівель серед готових проектів «Домінант» виступає неймовірна широта вибору, яку навряд чи ви отримаєте в інших будівельних компаніях. У нас можна знайти готовий проект не тільки типового економічного котеджу, а й ексклюзивного проекту в стилі Luxury.
Готові проекти дерев'яних будинків від будівельної компанії «Домінант» - це бездоганні архітектурні об'єкти, які відповідають запитам сучасної, ділової людини та створені згідно офіційно встановленим будівельним нормам і правилам.







