- Новини
- 0 вподобання
- 2095 покази
Погода за вікном радує сонечком і теплом, чарівність золотої осені і шурхотіння листя дарує просто чарівний настрій. І ми хочемо порадувати вас чудовою новиною! Сьогодні презентуємо новий проект заміського будинку з гаражем з сухого профільованого бруса «Джельсан». Він дуже цікавий завдяки свому плануванню і оформленню.
В першу чергу звертаємо вашу увагу на те, що будинок встановлений на палях. Фундамент з паль дуже надійний і дає гарантію служби до 100 років. Звичайно ж установка стовбчастого фундаменту вимагає певної підготовки. В першу чергу, це перевірка ґрунту на кількість підземних вод. Найкраще таку перевірку робити навесні. Дуже важливо при будівництві будинку на палях чітко слідувати плану будівництва. Фундамент з паль має ряд переваг у порівнянні зі звичайним (стрічковим) фундаментом:
- 1. Свайний фундамент дає можливість побудувати будинок на достатньо не щільних ґрунтах (торф’яних, пилоподібних, насичених вологою).
- 2. Є можливість побудувати будинок на нерівній поверхні. В такому випадку палі забиваються на різну висоту.
- 3. Свайний фундамент економічно вигідніший ніж стрічковий.
- 4. Можливість будувати будинок відразу після установки. У пальовому фундаменті не використовують розчини і відповідно не треба чекати їх висихання.
- 5. Швидка і легка установка.
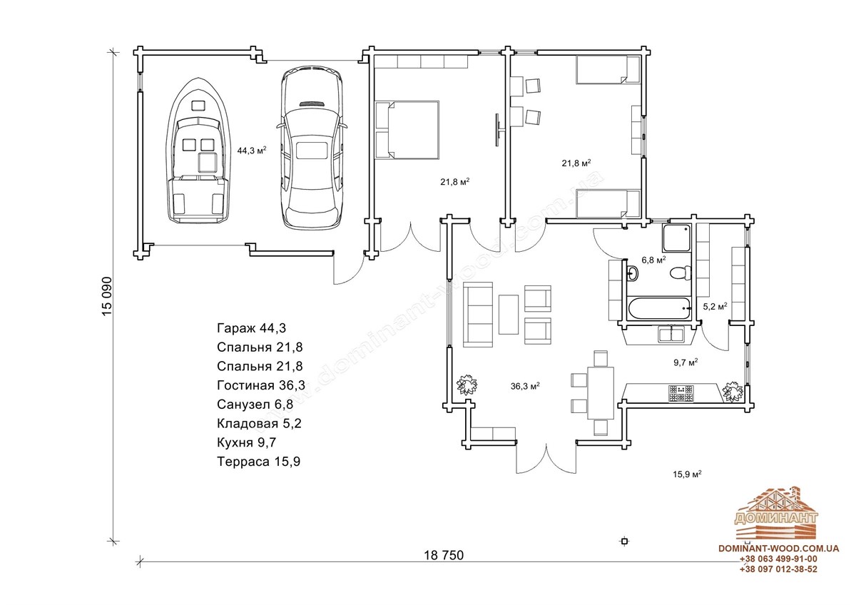
Але крім того, що будинок має свайний фундамент (плюси якого ми зазначили вище), проект цікавий за рахунок незвичайного дизайну і внутрішнього наповнення. Давайте ж більш детально ознайомимося з його особливостями. Це просторий одноповерховий особняк. Загальна площа будинку складає 161,8 м2. Побудований з сухого профільованого бруса 150*150 мм.
Заміський будинок з сухого бруса з гаражем
Наш проект має чіткі, класичні лінії споруди. Досить лаконічний, але в ньому є все необхідне для шикарного заміського відпочинку. На вході можна побачити криту терасу. Тут можна облаштувати чудовий куточок для відпочинку. Почитати книгу, послухати спів птахів, влаштувати сімейне чаювання або просто помріяти на свіжому повітрі. Площа будинку розділена на 3 кімнати і великий коридор-тамбур. Планування можна влаштувати на свій розсуд. Це може бути спальня, вітальня і кухня, або ж спальня, дитяча і кухня. Кожен господар зможе самостійно розподілити і оформити свій житловий простір. У будь-якому випадку а такому будинку місця вистачить для всіх членів сім'ї.
Головною родзинкою даного проекту є вбудований гараж. Мало того, що ви завжди будете впевнені в цілісності і збереженні свого автомобіля, так вам ще й не доведеться до нього далеко йти. Прямо з дому ви відкриваєте двері і заходите в гараж. Влітку це, звичайно, не так важливо, але всі переваги такого розташування ви точно оціните взимку, коли вам не потрібно буде виходити на мороз і довго прогрівати автомобіль. Відразу з теплого будинку ви сідаєте в теплий автомобіль і відправляєтеся у справах. Ви можете подумати, що таке сусідство не зовсім приємне, адже є запах пального і т.д. Не хвилюйтеся, при плануванні та будівництві будинку всі моменти були враховані забудовником і вашому комфорту в будинку нічого не завадить. Всі переваги будинку з гаражем ми розглянули в одній із попередніх публікацій.
Цей будинок виглядає дуже свіжо і ново. Функціональний, компактний, має все необхідне для комфорту і затишку. В даний момент такий особняк побудований в селі Тетерівка Житомирського району. Впевнені, що розглянувши ближче фото, вам захочеться так само мати такий будинок. Але не втомлюємося вам нагадувати, якщо будинок вашої мрії виглядає по іншому, розгляньте більш докладно наші проекти будинків з сухого профільованого бруса на сайті.
Переваги заміського будинку з сухого бруса
Будівлі з профільованого бруса мають ряд переваг про які ми не можемо промовчати. В першу чергу, це звичайно ж гармонійність і краса такої будови. Оброблене механічно дерево не вимагає додаткового оздоблення і відмінно вписується в будь-який ландшафт. Так само особливу увагу хочеться звернути на відмінну герметичність і теплоізоляцію таких будинків. Адже особливий спосіб з’єднання брусів дає максимально міцне зчеплення колод між собою, що гарантує відсутність міжвінцевих щілин. Будинки з профільованого бруса абсолютно екологічні. При цьому, структура деревини допомагає зберегти в будинку оптимальний мікроклімат. Такий будинок буде дарувати прохолоду влітку і зберігати тепло взимку.
Огляд проектів будинків з сухого профільованого бруса
Ми можемо запропонувати вам великий вибір комфортабельних дерев’яних будинків з профільованого бруса, наприклад «Малтінс» з площею 161,06 м2. У цьому будинку є велика літня тераса, мансардний другий поверх. Чіткі лінії зовнішнього дизайну і світлий простір усередині будинку не залишать байдужими своїх господарів. Любителям більш екстравагантних і сучасних дизайнів пропонуємо також розглянути наш проект маєтка з сухого бруса «Дагней», площа 195,3м2. Будинок має дуже оригінальне планування і чотири спальні, що дозволяє розміститися в ньому досить великій родині. Проектом передбачені також кімнати для збору і відпочинку сім’ї разом.
Чудовим вибором стануть і мініатюрні дачні будиночки з профільованого бруса. Тому доказ наші проекти «Сільва» 45,4 м2 або «Джаз» 45 м2. Ці невеликі будинки оформлені так, що в них відмінно можна провести канікули і не мати потреби ні в чому. Також такі будиночки будуть гарним рішенням для забудови бази відпочинку або курорту. Площа невелика, всередині є все необхідне, а зовнішній вигляд їх стане родзинкою будь-якого ландшафту.
Що б ви для себе не вирішили, який проект би не придумали, наші фахівці з величезним задоволенням візьмуться за розробку і втілення ваших фантазій в реальність!





























