Малтінс
- Кількість поверхів
- 2
- Площа
- 161.06
- Ширина
- 10.9
- Довжина
- 8.2
- Будинки і житлові будови
- Дачі
Котеджі - Кількість кімнат
- Чотирикімнатні будинки
- Особливості будинків
- Будинки з мансардою
Будинки з терасою
Будинки зі сходами
Будинки з ґанком - Кількість поверхів споруди
- Двоповерхові будинки
- Будинки з брусу
- Будинки з клеєного брусу
Будинки з оциліндрованого брусу
Будинки з профільованого брусу
(Що входить в ціну)
- комплект стін;
- комплект крокв;
- комплект балок перекриття;
- утеплювач міжвінцевий;
- антисептик (антисептування всього матеріалу);
- дубові нагеля;
- кріпильні материали (саморізи, усадкові болти, анкера, кріпильні пластини);
- гідроізоляція;
- вогнебіозахист (обробка деревини засобом І групи вогнезахисної ефективності)
Якщо ви прийняли важливе рішення про будівництво дерев’яного будинку, то пропозиція купити дерев’яний будинок під ключ Малтінс точно не залишить вас байдужими. Це добротний і дуже красивий будинок з сухого профільованого бруса, який надає будові акуратності, особливої точності ліній і радує погляд філігранною геометрією кожної деталі. Привертає до себе увагу затишна літня тераса і мансардний поверх, в якому вікна виходять прямо в небо.
Зовнішня краса і романтика проекту Малтінс dominant-wood.com.ua/uk/proekty/130-maltins гармонійно поєднується з прекрасно продуманим внутрішнім наповненням. Необхідно відзначити особливість внутрішнього наповнення проекту Малтінс. Незважаючи на досить компактну загальну площу будинку, всі кімнати в ньому досить місткі і розраховані на площу в межах 14-15 м². Не тільки кімнати можуть похвалитися місткістю, санвузли в будинку спроектовані по 5,8 м² кожен. Так що в санвузлі можна при бажанні помістити ванну або поставити велику душову кабінку. Кухня-вітальня володіє великими вікнами панорамного виду і вміщує дві окремі зони. На першому поверсі пропонується відвести одну кімнату під робочий кабінет, що обов’язково сподобається господареві, що любить попрацювати в домашній, спокійній обстановці. З двох спалень другого поверху вікна виходять у внутрішній дворик, що привносить відчуття відокремленості і особливого домашнього затишку. Таке оптимальне планування в компактних розмірах будинку обумовлює відмінну ціну, щоб купити саме цей дерев’яний будинок під ключ.
Замовляючи будівництво готового проекту Малтінс в компанії «Домінант» dominant-wood.com.ua/, ви на довгі роки забезпечуєте комфорт для своєї родини і насолоду сімейними обідами на власній літній терасі, де можна ще облаштувати зону відпочинку, встановивши гойдалки з м’яким сидінням або шезлонги для повітряних і сонячних ванн. Купити дерев’яний будинок під ключ Малтінс буде просто знахідкою для молодого сімейства з двома маленькими дітьми.
- Кількість поверхів
- 2
- Площа
- 161.06
- Ширина
- 10.9
- Довжина
- 8.2
- Будинки і житлові будови
- Дачі
Котеджі - Кількість кімнат
- Чотирикімнатні будинки
- Особливості будинків
- Будинки з мансардою
Будинки з терасою
Будинки зі сходами
Будинки з ґанком - Кількість поверхів споруди
- Двоповерхові будинки
- Будинки з брусу
- Будинки з клеєного брусу
Будинки з оциліндрованого брусу
Будинки з профільованого брусу
Базова комплектація:
(Що входить в ціну)
- комплект стін;
- комплект крокв;
- комплект балок перекриття;
- утеплювач міжвінцевий;
- антисептик (антисептування всього матеріалу);
- дубові нагеля;
- кріпильні материали (саморізи, усадкові болти, анкера, кріпильні пластини);
- гідроізоляція;
- вогнебіозахист (обробка деревини засобом І групи вогнезахисної ефективності)
687690 грн.
Дах (комплектність):
- Рейка 100*25мм (cосна)
- Контрейка 50*25мм (сосна)
- Металочерепиця МОНТЕРРЕЙ (Польща) 0,45мм
- Коник прямий
- Планка примикання
- Лобова (декоративна) планка
- Вітровая планка
- Яндола
- Капельник (Карнизна планка)
- Ущільнювач універсальный
- Саморізи ОС 4.8х35
- Фарба-спрей
- Гідробар'єр
- Монтаж
385880 грн.
Вікна (комплектність):
- Вікно VEKA 58, колір білий 10
- Імпости вертикальні: 1 x 102103
- Скління: СПО, 24мм, (Rсп=0.36)*
- Тип фурнітури: Activpilot поворотно-відкидна, колір білий
- Підбір спеціальний: Activ микровентиляція; Activ 2-функц. механ.
- Моск.сітка: МС 3
- Підвіконня: ВМ 110мм, колір білий
- Підвіконня: ПВ ПВХ 150, заглушки: 600мм, колір білий
- Монтаж
0 грн.
Двері (комплектність):
- Полотно
- Коробка
- Лиштва
- Карниз
- Фарбування
- Скло
- Фурнітура
- Врізка фурнітуры
- Монтаж
132804 грн.
Фарбування (комплектність):
- Шліфування торців
- Тришарове покриття ефективним деревозахисним засобом на базі низькомолекулярної алкідної смоли методом розпилення.
Параметри забудови
- Кількість поверхів: 2
- Площа: 161.06
Розмір забудови
- Ширина: 10.9
- Довжина: 8.2
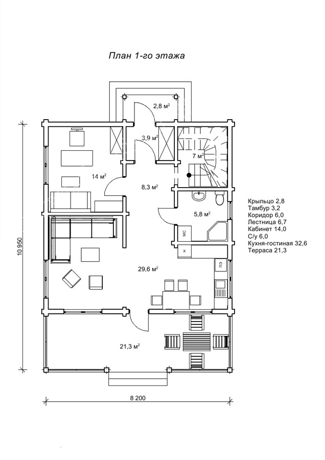
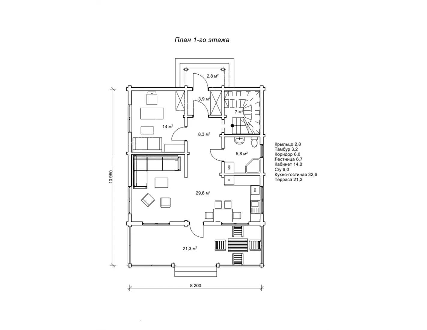
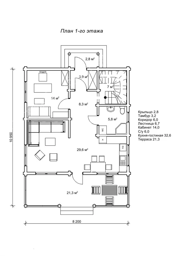
Перший поверх
| коридор (м²) | 6 |
| ганок (м²) | 2,8 |
| кухня (м²) | 32,6 |
| сходова зона (м²) | 6,7 |
| офісне приміщення (м²) | 13,7 |
| с/в (м²) | 6 |
| тамбур (м²) | 3,2 |
| тераса (м²) | 21,3 |
Другий поверх
| с/в (м²) | 6 |
| спальня (м²) | 14 |
| спальня (м²) | 15,2 |
| спальня (м²) | 14,3 |
| хол (м²) | 18,9 |
Оциліндрований брус
Оциліндрований брус є найбільш оптимальним і поширеним матеріалом для будівництва дерев`яних будинків і бань, бесідок, альтанок, різноманітних садових меблів, дерев`яних конструкцій будь-яких видів. Дерев`яні будинки з оциліндрованого брусу відрізняються красою, всередині такого будинку завжди відчувається особлива затишна атмосфера.
Профільований брус
Найсучаснішим і високотехнологічним будівельним матеріалом в дерев`яному будівництві на сьогоднішній день є профільований брус. Для виробництва профільованого брусу, звичайному дерев`яному брусу на спеціальному деревообробному обладнанні надається певний профіль.
Подвійний брус з утепленням
Головна ідея застосування подвійного бруса полягала в досягненні енергоефективності житла. Над проектуванням енергозберігаючих будинків працюють провідні інженери та архітектори в різних країнах світу, запропонована фінами технологія подвійного бруса дає можливість звести до мінімуму тепловтрати будинку, а також об`єднує переваги будівництва дерев`яного будинку з економічністю споруди.
Клеєний брус
Клеєний брус принципово відрізняється від інших типів колод багатошаровістю. Така структура робить цей дерев’яний матеріал надміцним і витривалим.
Каркасні конструкції
Каркасні конструкції виготовляються на власних виробничих потужностях компанії «Домінант», з використанням сучасних деревообробних станків. Імпортне, високоточне обладнання дозволяє нам високоякісно виконувати свою роботу. Каркаси складаються зі струганих, ретельно висушених балок 150х50 мм (сосна першого сорту). Ці балки застосовуються для зовнішніх каркасів.












