- Новини
- 0 вподобання
- 2026 покази
Влітку особливо хочеться втекти за межі міста в миловидний будиночок на природі і відпочити з сім'єю або друзями. А вже котедж зі зрубу з його чудовими характеристиками дозволить втілити це бажання в повній мірі! Наші замовники в Київській області вирішили здійснити свою мрію, побудувавши будинок за проектом «Монна» з оциліндрованих бруса діаметром 200 мм. Пропонуємо подивитися фото зрубового котеджу з місця будівництва і докладніше ознайомитися з чудовим плануванням будиночка. А раптом ви захочете собі такий же!
План і фото котеджу «Монна», 108,2 м2
Проект «Монна» привертає з першого погляду своїм надзвичайно красивим зовнішнім виглядом. Віконця різних форм, бантин під балконом, оригінальні деталі - хіба можна просто пройти повз таку красу?
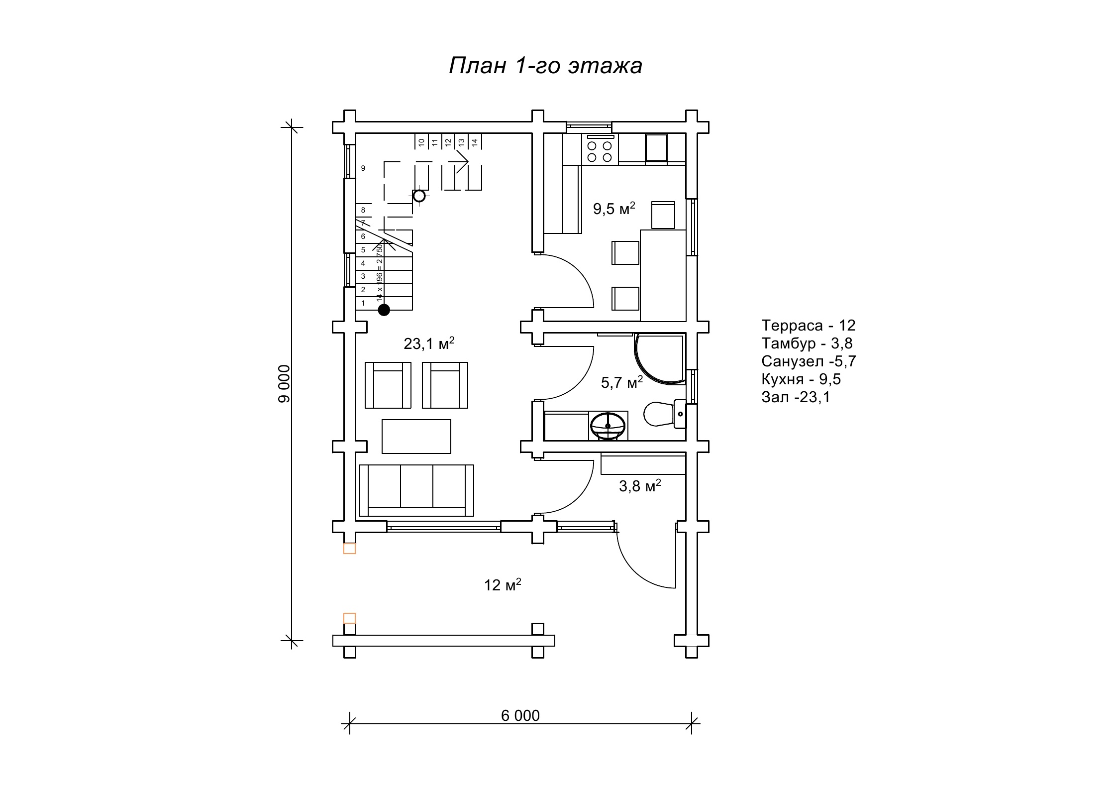
Родзинкою цього проекту стала простора тераса на першому поверсі площею 12 м2. Тут можна розташуватися невеликою компанією, святкувати важливі події або просто випити кави на свіжому повітрі. Тільки уявіть собі, як добре зустрічати новий день, попиваючи чай у будинку в будь-яку погоду! З тераси ми проходимо в тамбур, а з нього - прямо у велику вітальню. Із залу є вихід на кухню, мансарду і в санвузол. На верхньому поверсі знаходяться дві спальні, коридор і балкончик прямо над терасою. Незважаючи на досить скромні розміри (площа становить 108,2 м2), завдяки вдалому плануванню тут добре розміститься сім'я з дітьми.
Такий будиночок може послужити як дача, куди ви будете приїжджати в літню пору, так і повноцінний варіант побудови для постійного проживання. Крім того, така затишна будова може використовуватися в комерційних цілях в якості будиночка для відпочинку на природі.
Наші фахівці створювали котедж на основі проектів «Адмірал» і «Сонячний» , які дуже подобалися замовнику. Він побажав об'єднати всі переваги цих будиночків у власному котеджі, і в результаті творчої роботи наших архітекторів був створений будиночок мрії для нашого замовника - проект «Монна».
Проектування і будівництво котеджу за індивідуальним замовленням
На сайті компанії «Домінант» представлено широкий вибір проектів на будь-який смак і складність. Але ми залишаємо повну свободу вибору нашим замовникам - удосконалити або змінити будь-який проект відповідно до своїх вимог, або створити за допомогою архітекторів «Домінант» абсолютно новий, який точно буде унікальним і не схожим ні на один з інших дерев’яних будиночків!












