Монна
- Кількість поверхів
- 2
- Площа
- 108.2
- Ширина
- 9
- Довжина
- 6
- Будинки і житлові будови
- Котеджі
- Кількість кімнат
- Трикімнатні будинки
- Особливості будинків
- Будинки з балконом
Будинки з мансардою
Будинки з терасою
Будинки зі сходами - Кількість поверхів споруди
- Двоповерхові будинки
- Будинки з брусу
- Будинки з оциліндрованого брусу
(Що входить в ціну)
- комплект стін;
- комплект крокв;
- комплект балок перекриття;
- утеплювач міжвінцевий;
- антисептик (антисептування всього матеріалу);
- дубові нагеля;
- кріпильні материали (саморізи, усадкові болти, анкера, кріпильні пластини);
- гідроізоляція;
- вогнебіозахист (обробка деревини засобом І групи вогнезахисної ефективності)
Проект котеджу 9х6 м зі зрубу
Мальовничий котедж з терасою і балкончиком «Монна» приваблює до себе з першого погляду. Особливо цікаво виглядають на стінах віконця різних форм. Незвично зроблено бантини над балконом, які пожвавлюють зовнішній дизайн дерев’яного будинку. Проект сімейного котеджу «Монна» - це класичний зруб з оригінальними деталями, які підкреслюють красу натурального дерева.
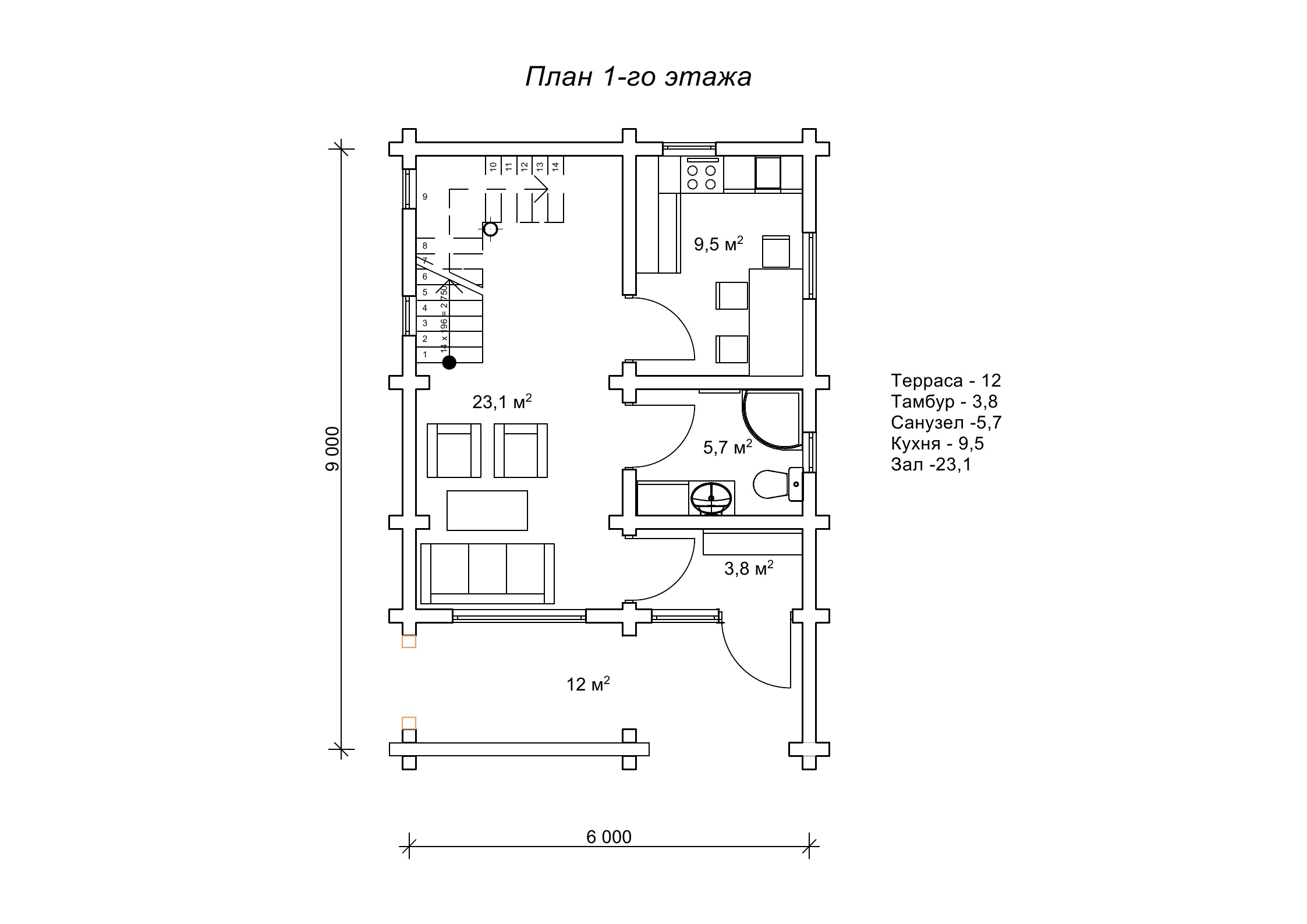
Планування кімнат в котеджі 9х6 м, проект «Монна»
На першому поверсі котеджу 9х6 м ми бачимо терасу біля входу площею 12 м2, де достатньо місця, щоб влаштувати на ній літню їдальню, попити вечірній чай або ранкову каву. Як же чудово починати новий день, зустрічаючи сонечко зі справжнім теплом його світанкових променів! З тераси входимо в тамбур, з якого потрапляємо в просторий зал на 23,1 м2, з якого можна пройти в санвузол, кухню або на мансарду. На мансардному поверсі сплановані дві спальні, коридор і балкончик, класично розташований прямо над терасою першого поверху.
Котедж 9х6 м за індивідуальним замовленням
Кожен будинок, який презентується в каталозі проектів "Домінант", надає повну свободу вибору клієнтам змінювати деталі будівлі та інтер’єру на свій смак! Наприклад будиночок «Монна» створювався на основі схожих котеджів: «Сонячний» і «Адмірал». В результаті доповнення планування і змін конструкції за індивідуальним замовленням клієнта з’явився прекрасний трикімнатний будиночок, який завжди буде справжнім острівцем затишку і заміського відпочинку серед природньої краси. Як ми будуємо будинки за індивідуальним замовленням, можна докладніше ознайомитися на нашому сайті. Якщо ви добре уявляєте, яким повинен бути ваш дерев’яний будиночок - ми розробимо унікальний проект за всіма бажаним вами параметрам, врахуємо всі переваги і укомплектуємо будинок за вашим бажанням!
- Кількість поверхів
- 2
- Площа
- 108.2
- Ширина
- 9
- Довжина
- 6
- Будинки і житлові будови
- Котеджі
- Кількість кімнат
- Трикімнатні будинки
- Особливості будинків
- Будинки з балконом
Будинки з мансардою
Будинки з терасою
Будинки зі сходами - Кількість поверхів споруди
- Двоповерхові будинки
- Будинки з брусу
- Будинки з оциліндрованого брусу
Базова комплектація:
(Що входить в ціну)
- комплект стін;
- комплект крокв;
- комплект балок перекриття;
- утеплювач міжвінцевий;
- антисептик (антисептування всього матеріалу);
- дубові нагеля;
- кріпильні материали (саморізи, усадкові болти, анкера, кріпильні пластини);
- гідроізоляція;
- вогнебіозахист (обробка деревини засобом І групи вогнезахисної ефективності)
228420 грн.
Дах (комплектність):
- Рейка 100*25мм (cосна)
- Контрейка 50*25мм (сосна)
- Металочерепиця МОНТЕРРЕЙ (Польща) 0,45мм
- Коник прямий
- Планка примикання
- Лобова (декоративна) планка
- Вітровая планка
- Яндола
- Капельник (Карнизна планка)
- Ущільнювач універсальный
- Саморізи ОС 4.8х35
- Фарба-спрей
- Гідробар'єр
- Монтаж
210480 грн.
Вікна (комплектність):
- Вікно VEKA 58, колір білий 10
- Імпости вертикальні: 1 x 102103
- Скління: СПО, 24мм, (Rсп=0.36)*
- Тип фурнітури: Activpilot поворотно-відкидна, колір білий
- Підбір спеціальний: Activ микровентиляція; Activ 2-функц. механ.
- Моск.сітка: МС 3
- Підвіконня: ВМ 110мм, колір білий
- Підвіконня: ПВ ПВХ 150, заглушки: 600мм, колір білий
- Монтаж
0 грн.
Двері (комплектність):
- Полотно
- Коробка
- Лиштва
- Карниз
- Фарбування
- Скло
- Фурнітура
- Врізка фурнітуры
- Монтаж
204848 грн.
Фарбування (комплектність):
- Шліфування торців
- Тришарове покриття ефективним деревозахисним засобом на базі низькомолекулярної алкідної смоли методом розпилення.
Оциліндрований брус
Оциліндрований брус є найбільш оптимальним і поширеним матеріалом для будівництва дерев`яних будинків і бань, бесідок, альтанок, різноманітних садових меблів, дерев`яних конструкцій будь-яких видів. Дерев`яні будинки з оциліндрованого брусу відрізняються красою, всередині такого будинку завжди відчувається особлива затишна атмосфера.
Профільований брус
Найсучаснішим і високотехнологічним будівельним матеріалом в дерев`яному будівництві на сьогоднішній день є профільований брус. Для виробництва профільованого брусу, звичайному дерев`яному брусу на спеціальному деревообробному обладнанні надається певний профіль.
Подвійний брус з утепленням
Головна ідея застосування подвійного бруса полягала в досягненні енергоефективності житла. Над проектуванням енергозберігаючих будинків працюють провідні інженери та архітектори в різних країнах світу, запропонована фінами технологія подвійного бруса дає можливість звести до мінімуму тепловтрати будинку, а також об`єднує переваги будівництва дерев`яного будинку з економічністю споруди.
Клеєний брус
Клеєний брус принципово відрізняється від інших типів колод багатошаровістю. Така структура робить цей дерев’яний матеріал надміцним і витривалим.
Каркасні конструкції
Каркасні конструкції виготовляються на власних виробничих потужностях компанії «Домінант», з використанням сучасних деревообробних станків. Імпортне, високоточне обладнання дозволяє нам високоякісно виконувати свою роботу. Каркаси складаються зі струганих, ретельно висушених балок 150х50 мм (сосна першого сорту). Ці балки застосовуються для зовнішніх каркасів.













