- Новини
- 0 вподобання
- 1723 покази
Пару днів назад на вулиці ще була золота, тепла осінь, але ось уже і перший сніг на дорогах і в містах країни. Дощ, пронизливий вітер і перші заморозки викликають відчайдушне бажання зігрітися. А для того, щоб ви могли не тільки погрітися, а й подбати про своє здоров'я - ми побудуємо вам чудову дерев’яну лазню! Ось таку як, наприклад, в нашій сьогоднішній публікації. Отже, нова споруда лазні з бруса пропонується вашій увазі.
Замовлення будівництва лазні з брусу
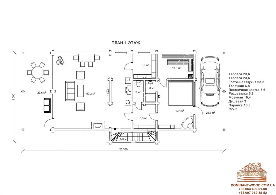
У нашу компанію «Домінант» звернувся замовник з індивідуальним проектом. Природно, ми із задоволенням взялися за його втілення. В результаті вийшла невелика, затишна лазня розміром 7,3 на 5,3 м для особистого користування клієнта, яка має ряд переваг і дозволить чудово відпочити і оздоровитися.
Загальна площа баньки 33,2 м2. Невеликі розміри дозволять легко розмістити її на будь-якій ділянці. Виконується споруда з сухого профільованого бруса. Саме такий матеріал дозволяє побудувати лазню досить швидко і без особливих витрат. Адже саме профільований брус за рахунок своєї структури і способу укладання (на поздовжньої поверхні має пази і шипи, які щільно зчіплюються між собою) дозволяє уникнути додаткової конопатки або герметизації швів. Зовнішній вигляд профільованого бруса дає можливість заощадити на додатковому оздобленні стін, які можна тільки шліфувати і покрити безбарвним воском. Компанія «Домінант» працює виключно з попередньо висушеним профільованим брусом, це дозволяє нашим клієнтам уникнути усадки дерев’яної конструкції і появи небажаних тріщин. Ну і хочеться відзначити, що профільований брус досить легкий, тому не вимагає масивного фундаменту. Для будівлі лазні наш клієнт вибрав розмір бруса 150 *150 мм. Такої товщини абсолютно достатньо, адже дерево відмінно зберігає тепло взимку і гарантує прохолоду влітку. Крім того, дерево «дихає», мікроклімат всередині приміщень підтримується оптимальний і вентиляція не потрібна.
Дизайн лазні досить простий, але абсолютно функціональний. Двосхилий дах, прості вікна, чіткі лінії - все це характеристики класичної споруди. Є невеличкий ганок під навісом на вході, далі знаходиться також невеликий тамбур, тут можна залишити верхній одяг і взуття. Інший простір розділено на три кімнати. Природно, передбачається мийне приміщення з душовою або купіллю, ви можете продумати все по своєму бажанню. Далі розташована безпосередньо парна, тут можна розкласти по полицях ароматні трави або розвісити віники, можна поставити невелику чашу з ароматними оліями, їх приємний запах буде сприяти вашому розслабленню і відпочинку. І саме просторе приміщення 15,6 м2, в нашій невеликій лазні, відведено для зони відпочинку, тут ви також зможете виділити куточок і для зберігання інвентарю. У кімнаті відпочинку можна поставити стіл із самоваром і лавки. Свіжий, трав’яний чай після парної всім припаде до смаку. Тільки уявіть, після важкого трудового дня ви можете приїхати додому і попаритися в своїй лазні, звичайно, всю робочу втому зніме рукою. Ви навіть зможете влаштувати свій сімейний банний день. Не потрібно дзвонити, шукати де замовити баню в місті, перебуваючи там думати про її чистоту та гігієну. Ви будете впевнені, що у вашій лазні завжди чисто, затишно і здорово. Поспішіть із замовленням та в хрещенські морози вже будете паритися в особистій лазні!
Ми привели простий приклад того, як ви можете облаштувати свою лазню. Звичайно ж кожен господар робить все на свій розсуд. В даний момент проект лазні вже встановлений в Броварському районі, Київської області. Замовник і його рідні зможуть відчути всі переваги банного відпочинку вже зовсім скоро. Хочемо зазначити, що такий варіант компактної лазні, буде й відмінним комерційним вкладенням. Невеликі компанії або сім’ї, з більшим задоволенням будуть замовляти відпочинок в такій лазні, ніж в великих банних комплексах де повно людей. Чудовим доповненням така лазня буде і для господарів баз відпочинку або міні-готелів.
Приклад різних проектів бань з бруса «Домінант»
Більше варіантів і пропозицій проектів бань, ви можете переглянути на сайті компанії «Домінант». Наприклад, такий проект лазні, як «Десерт» компактних розмірів 24,7 м2. Маленькі габарити споруди дозволять легко розмістити його на вашій ділянці. У проекті «Десерт» вас порадує наявність всіх необхідних приміщень, класична форма, екологічно чистий дерев’яний брус. Така лазня стане справжньою «цукеркою» вашої ділянки.
Якщо ж вам хочеться мати банний бізнес, ми пропонуємо вам розглянути наші великі лазневі комплекси. Зверніть увагу на комплекс «Кураж». Неймовірно стильний, сучасний, виконаний з екологічно чистого дерева - це далеко не все епітети, які гідні нашого проекту. Загальна площа цього двоповерхового красеня з величезними вікнами і великими терасами становить 306 м2. Перший поверх об’єднує кімнату відпочинку і кухню. На другому поверсі розташована зона банних процедур. Відмінний і незабутній час ваших гостей в цій розкішній лазні ми гарантуємо.
Як правило, люди із задоволенням повертаються до старовинних, перевірених традицій в приготуванні їжі і облаштуванні побуту, поряд з цим відновлюється і мода на баню. Адже давнє прислів’я «Пар кісток не ломить» несе в собі сакральний зміст. Наші предки добре знали, що лазневі процедури підвищують імунітет, виводять шлаки і токсини, запускають процеси регенерації і прискорюють метаболізм. А про моральну насолоді і очищення можна і не згадувати. Вийшовши після лазні, кожен відчує себе новонародженим. Ну, що, вам вже захотілося попаритися? Тоді саме час замовити нам споруду абсолютно нового, оригінального проекту лазні! А ми якісно і швидко його реалізуємо.















