Кампаніла
- Площа
- 20.3
- Ширина
- 4.5
- Довжина
- 4.5
- Храми і каплиці
- Церкви
(Що входить в ціну)
- комплект стін;
- комплект крокв;
- комплект балок перекриття;
- утеплювач міжвінцевий;
- антисептик (антисептування всього матеріалу);
- дубові нагеля;
- кріпильні материали (саморізи, усадкові болти, анкера, кріпильні пластини);
- гідроізоляція;
- вогнебіозахист (обробка деревини засобом І групи вогнезахисної ефективності)
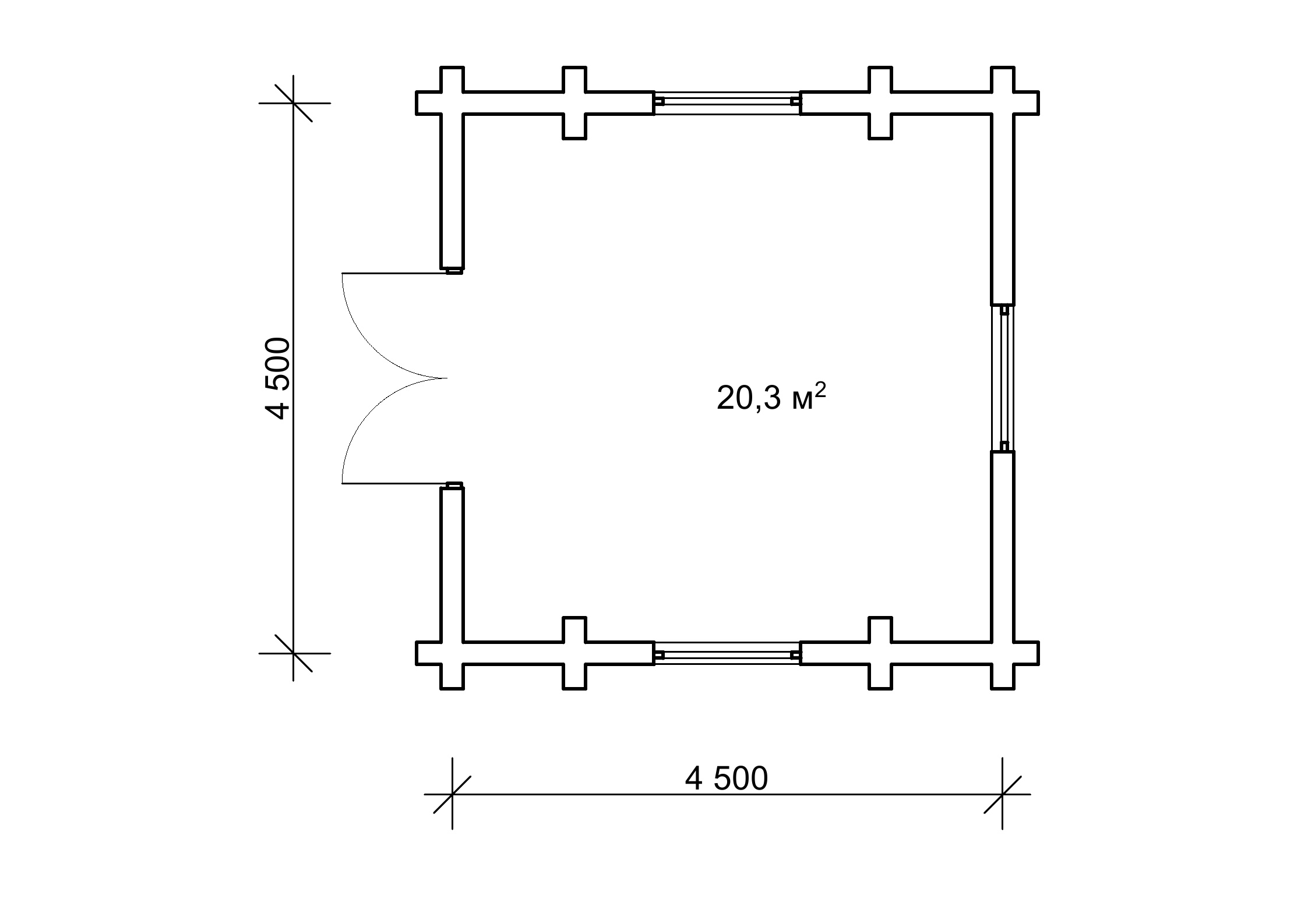
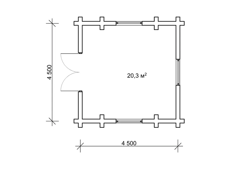
Проект дерев’яної дзвіниці 4,5 на 4,5 м для храму
Ми постійно наповнюємо категорію проектів сакральних споруд з дерева новими, цікавими проектами храмів, каплиць та інших будівель для монастирських комплексів. Дзвіниця «Кампаніла» являє собою просту, витончену споруду, що спеціально призначена для доповнення невеликого проекту храму, наприклад, Свято-Троїцької церкви. Будівля містить мінімум приміщень, необхідних для проведення церковних обрядів і таїнств і не може вмістити ще дзвін. Тому така церква може бути доповнена окремою спорудою дзвіниці «Кампаніла».
План дзвіниці «Кампаніла» з дерева
Проект дерев’яної дзвіниці «Кампаніла» розташовується в параметрах забудови 4,5 на 4,5 м. Загальна площа будівлі 20,3 м2. Над першим рівнем покрівлі розташована спеціальна арка під куполом, де передбачено місце для дзвону. Арочні отвори в зрубі дзвіниці «Кампаніла» красиво поєднуються з надбудовою для дзвону. Витончений дизайн будови підкреслить красу головного храму. Проект дзвіниці «Кампаніла» може використовуватися в населених пунктах як самостійна будівля для мелодійного і гучного оповіщення про важливі події або церковні свята.
Будівництво дзвіниці «Кампаніла» біля храму з дерева
Одне з головних переваг майстрів дерев’яного будівництва «Домінант» - це індивідуальний підхід до кожного замовлення. Всі церковні будови ми оснащуємо у відповідності із вподобаннями замовників. Ми також можемо внести будь-які зміни в проект дерев’яної будівлі, поки не отримаємо ідеальний для замовника варіант. Щоб замовити будівництво дзвіниці «Кампаніла», звертайтеся, будь ласка, за номерами +38 063 499-91-00; +38 097 012-38-52 (Viber; WhatsApp) або до консультанта на сайті. Ми з радістю реалізуємо проект дзвіниці для вас в найближчі терміни. Нехай гарна дзвіниця стане справжньою окрасою вашої території з мелодійним оповіщенням добрих подій!
- Площа
- 20.3
- Ширина
- 4.5
- Довжина
- 4.5
- Храми і каплиці
- Церкви
Базова комплектація:
(Що входить в ціну)
- комплект стін;
- комплект крокв;
- комплект балок перекриття;
- утеплювач міжвінцевий;
- антисептик (антисептування всього матеріалу);
- дубові нагеля;
- кріпильні материали (саморізи, усадкові болти, анкера, кріпильні пластини);
- гідроізоляція;
- вогнебіозахист (обробка деревини засобом І групи вогнезахисної ефективності)
128790 грн.
Дах (комплектність):
- Рейка 100*25мм (cосна)
- Контрейка 50*25мм (сосна)
- Металочерепиця МОНТЕРРЕЙ (Польща) 0,45мм
- Коник прямий
- Планка примикання
- Лобова (декоративна) планка
- Вітровая планка
- Яндола
- Капельник (Карнизна планка)
- Ущільнювач універсальный
- Саморізи ОС 4.8х35
- Фарба-спрей
- Гідробар'єр
- Монтаж
87700 грн.
Вікна (комплектність):
- Вікно VEKA 58, колір білий 10
- Імпости вертикальні: 1 x 102103
- Скління: СПО, 24мм, (Rсп=0.36)*
- Тип фурнітури: Activpilot поворотно-відкидна, колір білий
- Підбір спеціальний: Activ микровентиляція; Activ 2-функц. механ.
- Моск.сітка: МС 3
- Підвіконня: ВМ 110мм, колір білий
- Підвіконня: ПВ ПВХ 150, заглушки: 600мм, колір білий
- Монтаж
83600 грн.
Двері (комплектність):
- Полотно
- Коробка
- Лиштва
- Карниз
- Фарбування
- Скло
- Фурнітура
- Врізка фурнітуры
- Монтаж
111104 грн.
Фарбування (комплектність):
- Шліфування торців
- Тришарове покриття ефективним деревозахисним засобом на базі низькомолекулярної алкідної смоли методом розпилення.
Оциліндрований брус
Оциліндрований брус є найбільш оптимальним і поширеним матеріалом для будівництва дерев`яних будинків і бань, бесідок, альтанок, різноманітних садових меблів, дерев`яних конструкцій будь-яких видів. Дерев`яні будинки з оциліндрованого брусу відрізняються красою, всередині такого будинку завжди відчувається особлива затишна атмосфера.
Профільований брус
Найсучаснішим і високотехнологічним будівельним матеріалом в дерев`яному будівництві на сьогоднішній день є профільований брус. Для виробництва профільованого брусу, звичайному дерев`яному брусу на спеціальному деревообробному обладнанні надається певний профіль.
Подвійний брус з утепленням
Головна ідея застосування подвійного бруса полягала в досягненні енергоефективності житла. Над проектуванням енергозберігаючих будинків працюють провідні інженери та архітектори в різних країнах світу, запропонована фінами технологія подвійного бруса дає можливість звести до мінімуму тепловтрати будинку, а також об`єднує переваги будівництва дерев`яного будинку з економічністю споруди.
Клеєний брус
Клеєний брус принципово відрізняється від інших типів колод багатошаровістю. Така структура робить цей дерев’яний матеріал надміцним і витривалим.
Каркасні конструкції
Каркасні конструкції виготовляються на власних виробничих потужностях компанії «Домінант», з використанням сучасних деревообробних станків. Імпортне, високоточне обладнання дозволяє нам високоякісно виконувати свою роботу. Каркаси складаються зі струганих, ретельно висушених балок 150х50 мм (сосна першого сорту). Ці балки застосовуються для зовнішніх каркасів.










