Елінора
- Кількість поверхів
- 1
- Площа
- 33
- Ширина
- 6
- Довжина
- 5.5
- Садові та господарські споруди
- Бані
Бані з профільованого брусу
(Що входить в ціну)
- комплект стін;
- комплект крокв;
- комплект балок перекриття;
- утеплювач міжвінцевий;
- антисептик (антисептування всього матеріалу);
- дубові нагеля;
- кріпильні материали (саморізи, усадкові болти, анкера, кріпильні пластини);
- гідроізоляція;
- вогнебіозахист (обробка деревини засобом І групи вогнезахисної ефективності)
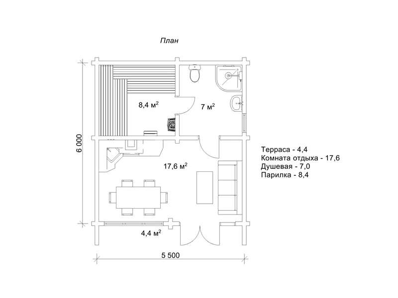
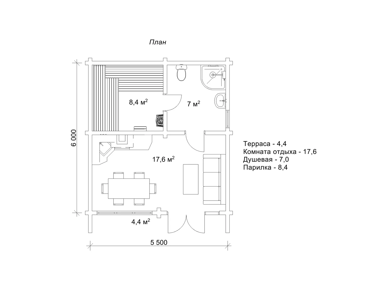
Проект лазні 6х5,5 м «Елінора» з сухого брусу
Сучасна і дуже стильна лазня «Елінора» під односхилим дахом зовсім не схожа на звичні зруби оциліндрованих лазень. Лаконічна, акуратна будова швидше нагадує офіс або магазин. Гладко відшліфовані стіни і сувора геометрія будівлі формує скандинавський мінімалізм екстер’єру. Це сучасне бунгало з великими вікнами стане вигідним придбанням для приватного використання або ефектним доповненням готельного комплексу.
Планування лазні «Елінора» з розміром парильні 8,4 м2
Баня «Елінора» спланована в параметрах 6 на 5,5 м і її площа становить 33 м2. Проект передбачає мінімум приміщень для банного відпочинку та дозвілля. Тут є кімната відпочинку, де можна поставити кухню і розташувати зручний, м’який куточок. З кімнати відпочинку можна пройти в душову площею 7 м2, звідки є вхід в парилку. Розмір парилки 8,4 м2 заслуговує на особливу увагу. Адже в ній можна розташувати близько десяти гостей, якщо поставити лежаки на двох рівнях. Така місткість парилки говорить про те, що проект «Елінора» буде затребуваний, в першу чергу, в якості комерційного об’єкта. Адже така місткість приміщення парної дозволить отримувати більше прибутку від дерев’яної лазні за рахунок великої кількості відвідувачів.
Замовлення будівництва лазні з сухого бруса за проектом «Елінора»
При замовленні будівництва лазні з сухого бруса за проектом «Елінора» наше виробництво виготовить дерев’яний комплект лазні за місяць і за два тижні встановить лазню на фундамент замовника. По завершенню будівництва проекту в базовій комплектації, господар лазні може самостійно доповнити дерев’яну конструкцію покрівлею, вікнами, парною та іншими комплектуючими на свій розсуд. Ми також можемо запропонувати замовнику доповнити дерев’яний зруб лазні матеріалами від наших постачальників і виконати фінішну обробку стін. Тобто у кожного клієнта є можливість вибирати додаткові матеріали на свій смак і бюджет. Таким чином, в результаті будівництва кожен господар споруди отримує саме такий дизайн і оздоблення дерев’яного зрубу як хотів. Для уточнення деталей на замовлення споруди і комплектації дерев’яного зрубу звертайтеся за номерами в наших контактах.
- Кількість поверхів
- 1
- Площа
- 33
- Ширина
- 6
- Довжина
- 5.5
- Садові та господарські споруди
- Бані
Бані з профільованого брусу
Базова комплектація:
(Що входить в ціну)
- комплект стін;
- комплект крокв;
- комплект балок перекриття;
- утеплювач міжвінцевий;
- антисептик (антисептування всього матеріалу);
- дубові нагеля;
- кріпильні материали (саморізи, усадкові болти, анкера, кріпильні пластини);
- гідроізоляція;
- вогнебіозахист (обробка деревини засобом І групи вогнезахисної ефективності)
109350 грн.
Дах (комплектність):
- Рейка 100*25мм (cосна)
- Контрейка 50*25мм (сосна)
- Металочерепиця МОНТЕРРЕЙ (Польща) 0,45мм
- Коник прямий
- Планка примикання
- Лобова (декоративна) планка
- Вітровая планка
- Яндола
- Капельник (Карнизна планка)
- Ущільнювач універсальный
- Саморізи ОС 4.8х35
- Фарба-спрей
- Гідробар'єр
- Монтаж
87700 грн.
Вікна (комплектність):
- Вікно VEKA 58, колір білий 10
- Імпости вертикальні: 1 x 102103
- Скління: СПО, 24мм, (Rсп=0.36)*
- Тип фурнітури: Activpilot поворотно-відкидна, колір білий
- Підбір спеціальний: Activ микровентиляція; Activ 2-функц. механ.
- Моск.сітка: МС 3
- Підвіконня: ВМ 110мм, колір білий
- Підвіконня: ПВ ПВХ 150, заглушки: 600мм, колір білий
- Монтаж
125400 грн.
Двері (комплектність):
- Полотно
- Коробка
- Лиштва
- Карниз
- Фарбування
- Скло
- Фурнітура
- Врізка фурнітуры
- Монтаж
62496 грн.
Фарбування (комплектність):
- Шліфування торців
- Тришарове покриття ефективним деревозахисним засобом на базі низькомолекулярної алкідної смоли методом розпилення.
Оциліндрований брус
Оциліндрований брус є найбільш оптимальним і поширеним матеріалом для будівництва дерев`яних будинків і бань, бесідок, альтанок, різноманітних садових меблів, дерев`яних конструкцій будь-яких видів. Дерев`яні будинки з оциліндрованого брусу відрізняються красою, всередині такого будинку завжди відчувається особлива затишна атмосфера.
Профільований брус
Найсучаснішим і високотехнологічним будівельним матеріалом в дерев`яному будівництві на сьогоднішній день є профільований брус. Для виробництва профільованого брусу, звичайному дерев`яному брусу на спеціальному деревообробному обладнанні надається певний профіль.
Подвійний брус з утепленням
Головна ідея застосування подвійного бруса полягала в досягненні енергоефективності житла. Над проектуванням енергозберігаючих будинків працюють провідні інженери та архітектори в різних країнах світу, запропонована фінами технологія подвійного бруса дає можливість звести до мінімуму тепловтрати будинку, а також об`єднує переваги будівництва дерев`яного будинку з економічністю споруди.
Клеєний брус
Клеєний брус принципово відрізняється від інших типів колод багатошаровістю. Така структура робить цей дерев’яний матеріал надміцним і витривалим.
Каркасні конструкції
Каркасні конструкції виготовляються на власних виробничих потужностях компанії «Домінант», з використанням сучасних деревообробних станків. Імпортне, високоточне обладнання дозволяє нам високоякісно виконувати свою роботу. Каркаси складаються зі струганих, ретельно висушених балок 150х50 мм (сосна першого сорту). Ці балки застосовуються для зовнішніх каркасів.















