Зателефонуйте мені
Майстерок №1
Майстерок №2
Майстерок №3
Майстерок №4
Майстерок №5
Майстерок №6
Майстерок №1
Майстерок №2
Майстерок №3
Майстерок №4
Майстерок №5
Майстерок №6
Майстерок №1
Майстерок №1 Майстерок №2 Майстерок №3 Майстерок №4 Майстерок №5 Майстерок №6

Майстерок

208 146,00 ₴
Зрубова лазня 4,5 на 4 м - «Майстерок»
Розмір брусу
  • Оциліндрований 160
  • Оциліндрований 180
  • Оциліндрований 200
  • Оциліндрований 220
  • Профільований 60
  • Профільований 150
  • Профільований 200
  • Подвійний 300
  • Клеєний 120
  • Клеєний 180
Кількість поверхів
1
Площа
18
Ширина
4.5
Довжина
4
Садові та господарські споруди
Бані
Бані з оциліндрованого брусу
 

(Що входить в ціну)

Що входить в базову комплектацію

  • комплект стін;
  • комплект крокв;
  • комплект балок перекриття;
  • утеплювач міжвінцевий;
  • антисептик (антисептування всього матеріалу);
  • дубові нагеля;
  • кріпильні материали (саморізи, усадкові болти, анкера, кріпильні пластини);
  • гідроізоляція;
  • вогнебіозахист (обробка деревини засобом І групи вогнезахисної ефективності)

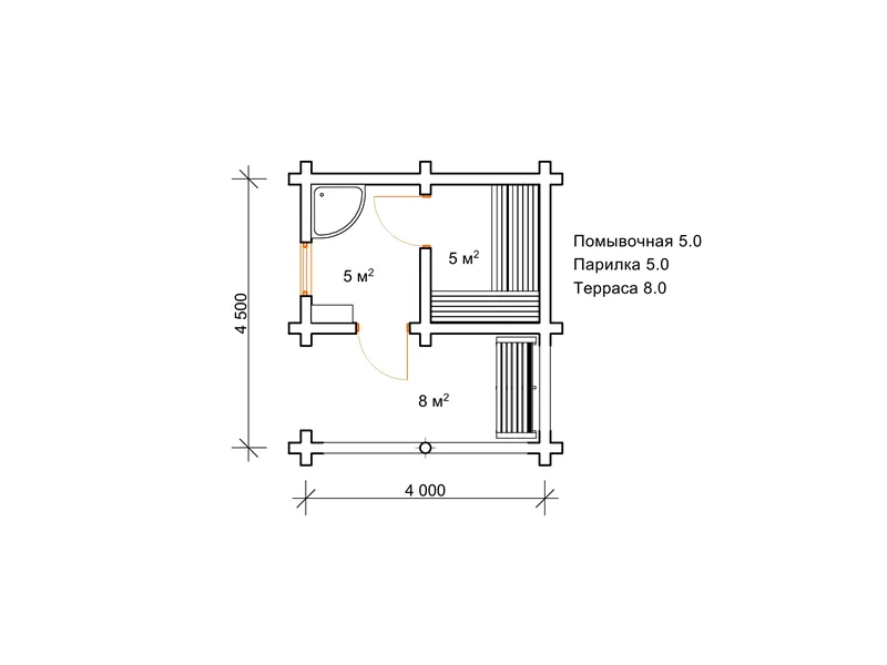
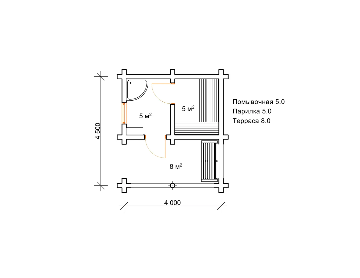
Проект зрубової лазні «Майстерок», площа 18 м2

Симпатичний будиночок з невеликою терасою «Майстерок» виглядає дуже цікаво і компактно, він здатний підкреслити красу будь-якої ділянки за рахунок свого оригінального зовнішнього вигляду. Така зрубова банька - це просто мрія для втомленого городянина, якому просто необхідно періодично відновлювати сили і здоров’я після напружених робочих буднів. Тому пропонуємо придивитися уважніше до цього чудового проекту і оцінити всі його переваги.

Планування лазні зі зрубу 4,5 на 4 м

Проект лазні зі зрубу «Майстерок» містить мінімум приміщень, необхідних для повноцінного банного відпочинку: парилка, мийна і тераса. Просторе приміщення парилки на 5 м2 дозволяє з комфортом попаритися компанії з чотирьох чоловік, а потім вийти на терасу, щоб подихати свіжим повітрям. Максимум простоти і мінімум оснащення дозволяють проекту баньки «Майстерок» стати оптимальним вибором для прибудинкової території для таких будиночків як Маленька дача 4,6 на 6,5 м — «Рубін» або Готовий двоповерховий будинок з дерева 7х6 м з ганком — «Вермут» . Проект лазні зі зрубу «Майстерок» також вдало доповнить територію бази відпочинку і підвищить престиж і популярність готельного комплексу.

Баня зі зрубу «Майстерок» під замовлення

Професіонали компанії «Домінант» з любов’ю і з душею виконують будівництво кожного дерев’яного будиночка. Тому ми в найкоротші терміни встановимо вам зрубову баньку «Майстерок» в базовій комплектації або під ключ відповідно до ваших побажань. Баня зі зрубу «Майстерок» під замовлення виконується з оциліндрованих колод нашого власного виробництва. Звернувшись до нас, ви отримаєте якісний, екологічний і красивий дерев’яний зруб лазні!

Кількість поверхів
1
Площа
18
Ширина
4.5
Довжина
4
Садові та господарські споруди
Бані
Бані з оциліндрованого брусу

Базова комплектація:
(Що входить в ціну)

Що входить в базову комплектацію

  • комплект стін;
  • комплект крокв;
  • комплект балок перекриття;
  • утеплювач міжвінцевий;
  • антисептик (антисептування всього матеріалу);
  • дубові нагеля;
  • кріпильні материали (саморізи, усадкові болти, анкера, кріпильні пластини);
  • гідроізоляція;
  • вогнебіозахист (обробка деревини засобом І групи вогнезахисної ефективності)

87480 грн.

Дах (комплектність):

  • Рейка 100*25мм (cосна)
  • Контрейка 50*25мм (сосна)
  • Металочерепиця МОНТЕРРЕЙ (Польща) 0,45мм
  • Коник прямий
  • Планка примикання
  • Лобова (декоративна) планка
  • Вітровая планка
  • Яндола
  • Капельник (Карнизна планка)
  • Ущільнювач універсальный
  • Саморізи ОС 4.8х35
  • Фарба-спрей
  • Гідробар'єр
  • Монтаж

17540 грн.

Вікна (комплектність):

  • Вікно VEKA 58, колір білий 10
  • Імпости вертикальні: 1 x 102103
  • Скління: СПО, 24мм, (Rсп=0.36)*
  • Тип фурнітури: Activpilot поворотно-відкидна, колір білий
  • Підбір спеціальний: Activ микровентиляція; Activ 2-функц. механ.
  • Моск.сітка: МС 3
  • Підвіконня: ВМ 110мм, колір білий
  • Підвіконня: ПВ ПВХ 150, заглушки: 600мм, колір білий
  • Монтаж

41800 грн.

Двері (комплектність):

  • Полотно
  • Коробка
  • Лиштва
  • Карниз
  • Фарбування
  • Скло
  • Фурнітура
  • Врізка фурнітуры
  • Монтаж

47740 грн.

Фарбування (комплектність):

  • Шліфування торців
  • Тришарове покриття ефективним деревозахисним засобом на базі низькомолекулярної алкідної смоли методом розпилення.

Параметри забудови

  • Кількість поверхів: 1
  • Площа: 18

Розмір забудови

  • Ширина: 4.5
  • Довжина: 4

Перший поверх

помивочна (м²)5,0
парилка (м²)5,0
тераса (м²)8,0

Оциліндрований брус

Оциліндрований брус є найбільш оптимальним і поширеним матеріалом для будівництва дерев`яних будинків і бань, бесідок, альтанок, різноманітних садових меблів, дерев`яних конструкцій будь-яких видів. Дерев`яні будинки з оциліндрованого брусу відрізняються красою, всередині такого будинку завжди відчувається особлива затишна атмосфера.

Читати далі...

Профільований брус

Найсучаснішим і високотехнологічним будівельним матеріалом в дерев`яному будівництві на сьогоднішній день є профільований брус. Для виробництва профільованого брусу, звичайному дерев`яному брусу на спеціальному деревообробному обладнанні надається певний профіль.

Читати далі...

Подвійний брус з утепленням

Головна ідея застосування подвійного бруса полягала в досягненні енергоефективності житла. Над проектуванням енергозберігаючих будинків працюють провідні інженери та архітектори в різних країнах світу, запропонована фінами технологія подвійного бруса дає можливість звести до мінімуму тепловтрати будинку, а також об`єднує переваги будівництва дерев`яного будинку з економічністю споруди.

Читати далі...

Клеєний брус

Клеєний брус принципово відрізняється від інших типів колод багатошаровістю. Така структура робить цей дерев’яний матеріал надміцним і витривалим.

Читати далі...

Каркасні конструкції

Каркасні конструкції виготовляються на власних виробничих потужностях компанії «Домінант», з використанням сучасних деревообробних станків. Імпортне, високоточне обладнання дозволяє нам високоякісно виконувати свою роботу. Каркаси складаються зі струганих, ретельно висушених балок 150х50 мм (сосна першого сорту). Ці балки застосовуються для зовнішніх каркасів.

Читати далі...

Немає відгуків

Переглянуті товари

16 інших товарів в цій категорії:

Товар додано для порівняння.