Зателефонуйте мені
Тейріті №1
Тейріті №2
Тейріті №3
Тейріті №4
Тейріті №5
Тейріті №6
Тейріті №1
Тейріті №2
Тейріті №3
Тейріті №4
Тейріті №5
Тейріті №6
Тейріті №1
Тейріті №1 Тейріті №2 Тейріті №3 Тейріті №4 Тейріті №5 Тейріті №6

Тейріті

1 540 250,00 ₴
Баня з трьома парними і басейном - «Тейріті»
Розмір брусу
  • Оциліндрований 160
  • Оциліндрований 180
  • Оциліндрований 200
  • Оциліндрований 220
  • Профільований 60
  • Профільований 150
  • Профільований 200
  • Подвійний 300
  • Клеєний 120
  • Клеєний 180
Кількість поверхів
1
Площа
165.5
Ширина
7.5
Довжина
25
Садові та господарські споруди
Бані
Бані з оциліндрованого брусу
 

(Що входить в ціну)

Що входить в базову комплектацію

  • комплект стін;
  • комплект крокв;
  • комплект балок перекриття;
  • утеплювач міжвінцевий;
  • антисептик (антисептування всього матеріалу);
  • дубові нагеля;
  • кріпильні материали (саморізи, усадкові болти, анкера, кріпильні пластини);
  • гідроізоляція;
  • вогнебіозахист (обробка деревини засобом І групи вогнезахисної ефективності)

Проект дерев’яної лазні «Тейріті» на 3 парилки

Нестандартний проект лазні «Тейріті» створювався під індивідуальне замовлення для СПА-комплексу. Цим пояснюється зовнішній дизайн будівлі з безліччю окремих входів і подовжена форма будівлі. Дивлячись на будівлю створюється враження, що вона складається з декількох окремих будиночків. Привабливий зовнішній вигляд проекту «Тейріті» буде одним з факторів його комерційного успіху. Крім того, тут пропонуються максимально комфортні умови для найкращого банного відпочинку та цікавого дозвілля.

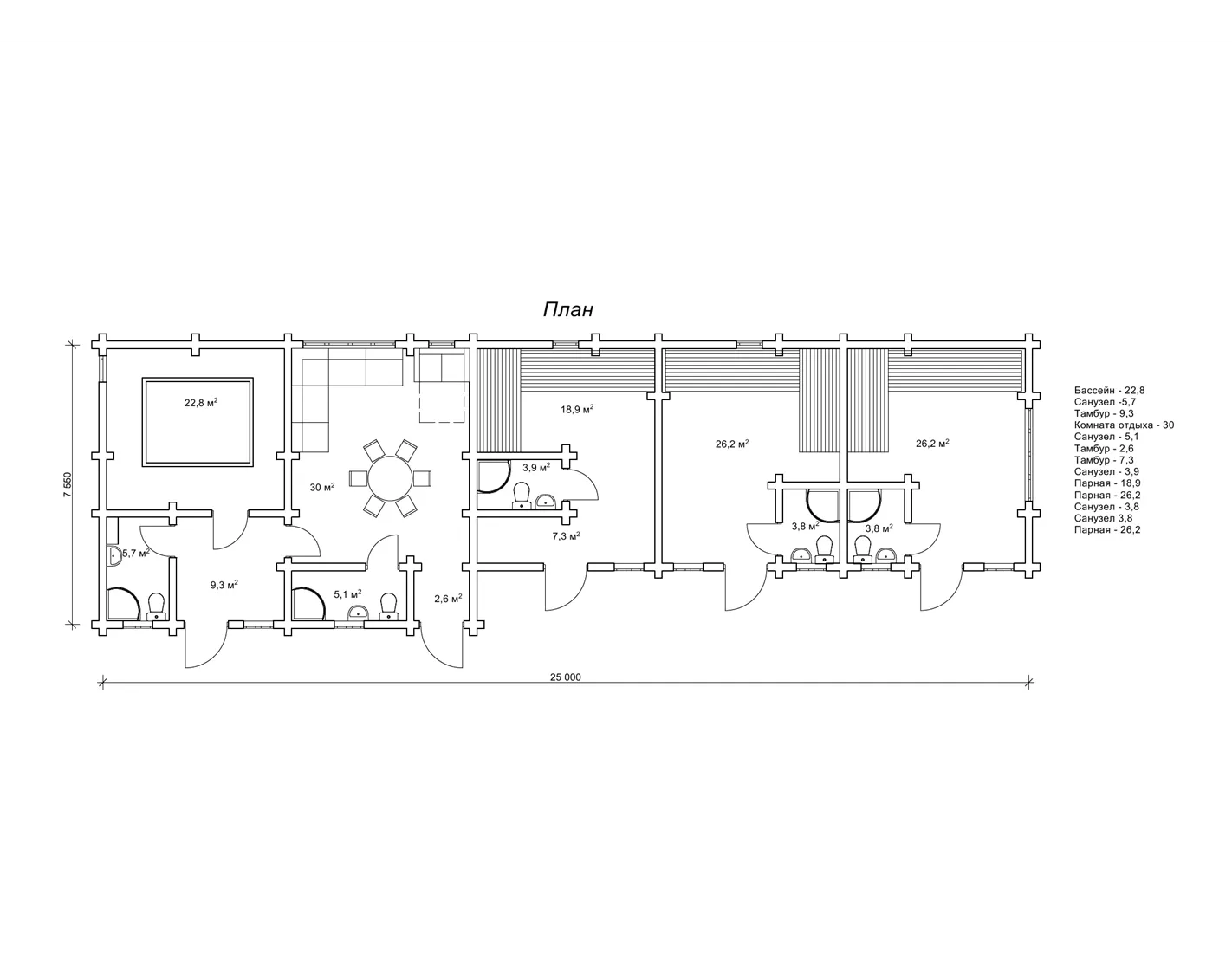
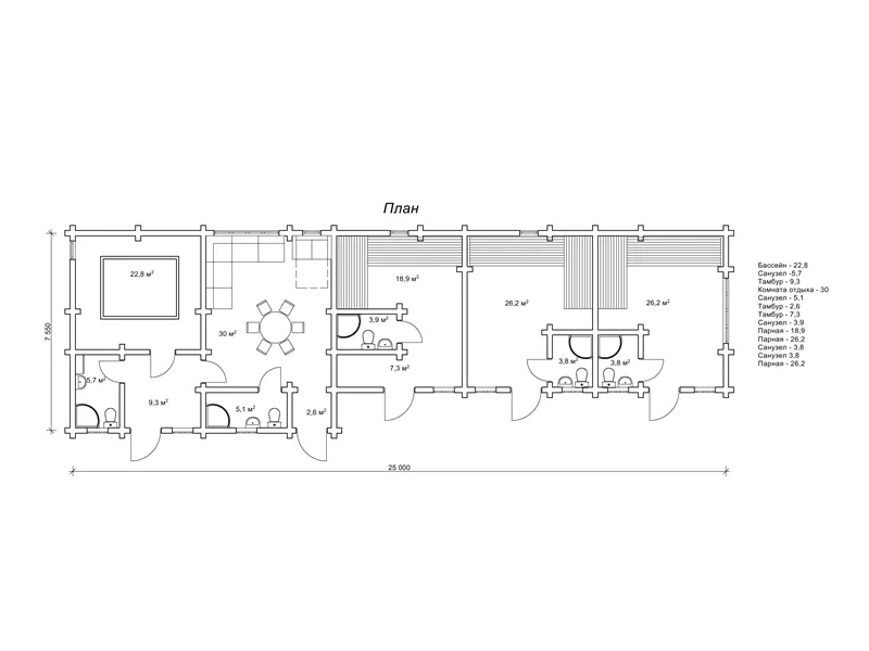
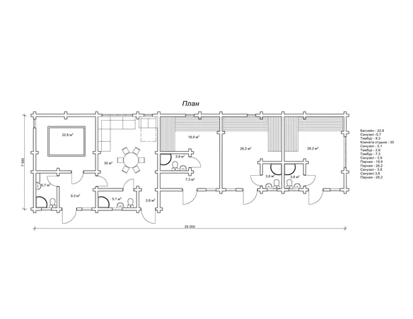
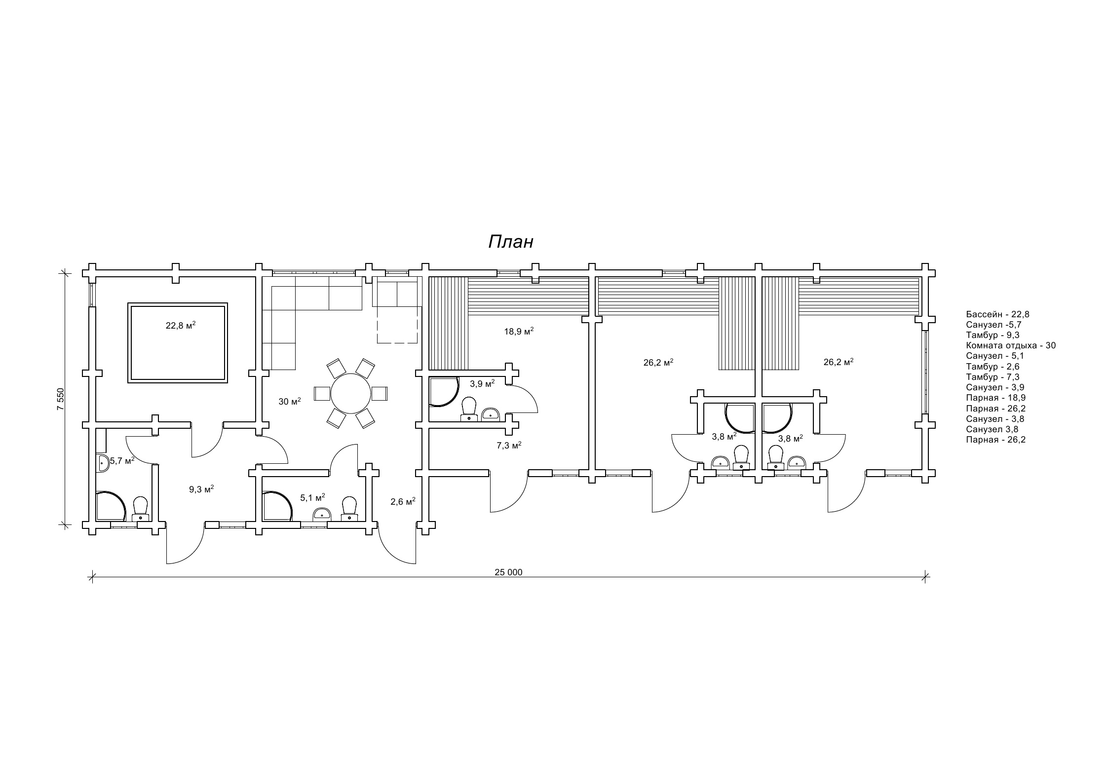
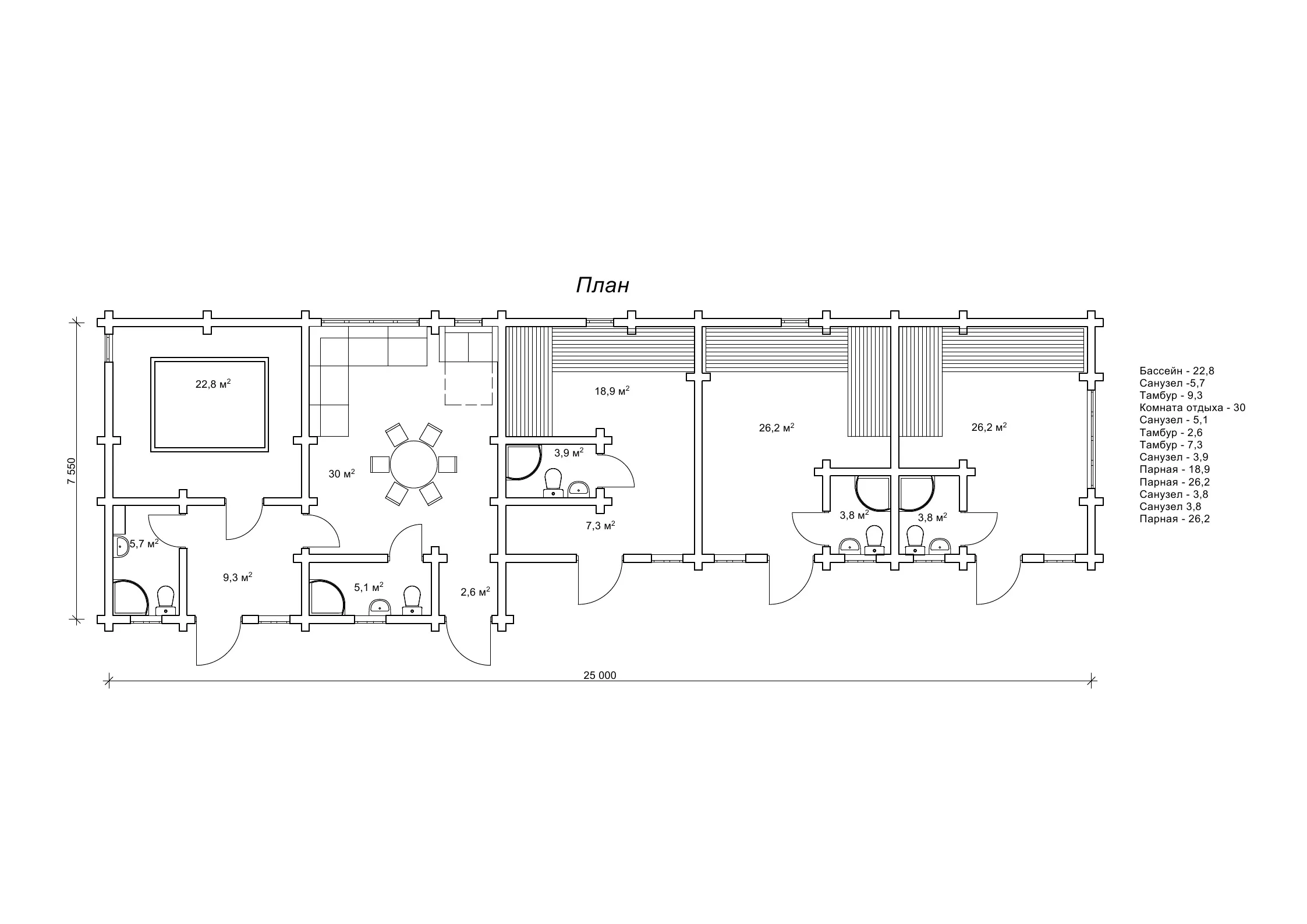
План лазні з басейном

Проект «Тейріті» площею 165,5 м2 містить один поверх. Ширина споруди 7,5 м і довжина - 25 м. Внутрішній плануванням передбачена велика кількість приміщень, які поділяються на три функціональні зони. Перша - це, безпосередньо приміщення парних. Три дуже просторі парилки площею 18,9 м2, 26,2 м2 і 26,2 м2 сплановані з окремими входами і санвузлами. Такий простір при продуманому розташуванні лавок дозволяє знаходиться в кожній парильні одночасно до 18 чоловік. Як підібрати оптимальний розмір лазні можна прочитати в корисній статті на нашому сайті. Окремим блоком в лазні «Тейріті» спроектована зона відпочинку площею 30 м2, де можна гарненько розслабитися після активного банного відпочинку і відвідування басейну, який розташований в сусідньому приміщенні. Параметри басейну 2,5 на 3 м дозволяють вдосталь похлюпатися в прохолодній воді після відвідування спекотної парної. Відзначимо, що в кожне приміщення лазні передбачений окремий вхід. Це дуже зручно для гостей, які зайняті різними процедурами і не будуть при цьому заважати один одному. Таким чином, лазня для відпочинку та оздоровлення «Тейріті» - це один з наших найцікавіших нових проектів, який створений щоб подарувати масу приємних відчуттів своїм гостям.

Споруда брусової лазні з басейном

Будівництво комерційної дерев’яної лазні стане вигідним вкладенням капіталу в бізнес-ідею, і подарує здоровий і приємний відпочинок туристам. Крім того, приваблива зовні будівля ушляхетнить будь-яку заміську ділянку. Замовляйте будівництво лазні з басейном по готовому проекту «Тейріті» і переконайтеся у всіх перевагах лазні з колод. Проект «Тейріті» відповідає найвищим вимогам сучасного замовника, в такій лазні відпочинок виходить дійсно незрівнянним!

Кількість поверхів
1
Площа
165.5
Ширина
7.5
Довжина
25
Садові та господарські споруди
Бані
Бані з оциліндрованого брусу

Базова комплектація:
(Що входить в ціну)

Що входить в базову комплектацію

  • комплект стін;
  • комплект крокв;
  • комплект балок перекриття;
  • утеплювач міжвінцевий;
  • антисептик (антисептування всього матеріалу);
  • дубові нагеля;
  • кріпильні материали (саморізи, усадкові болти, анкера, кріпильні пластини);
  • гідроізоляція;
  • вогнебіозахист (обробка деревини засобом І групи вогнезахисної ефективності)

590490 грн.

Дах (комплектність):

  • Рейка 100*25мм (cосна)
  • Контрейка 50*25мм (сосна)
  • Металочерепиця МОНТЕРРЕЙ (Польща) 0,45мм
  • Коник прямий
  • Планка примикання
  • Лобова (декоративна) планка
  • Вітровая планка
  • Яндола
  • Капельник (Карнизна планка)
  • Ущільнювач універсальный
  • Саморізи ОС 4.8х35
  • Фарба-спрей
  • Гідробар'єр
  • Монтаж

350800 грн.

Вікна (комплектність):

  • Вікно VEKA 58, колір білий 10
  • Імпости вертикальні: 1 x 102103
  • Скління: СПО, 24мм, (Rсп=0.36)*
  • Тип фурнітури: Activpilot поворотно-відкидна, колір білий
  • Підбір спеціальний: Activ микровентиляція; Activ 2-функц. механ.
  • Моск.сітка: МС 3
  • Підвіконня: ВМ 110мм, колір білий
  • Підвіконня: ПВ ПВХ 150, заглушки: 600мм, колір білий
  • Монтаж

0 грн.

Двері (комплектність):

  • Полотно
  • Коробка
  • Лиштва
  • Карниз
  • Фарбування
  • Скло
  • Фурнітура
  • Врізка фурнітуры
  • Монтаж

301196 грн.

Фарбування (комплектність):

  • Шліфування торців
  • Тришарове покриття ефективним деревозахисним засобом на базі низькомолекулярної алкідної смоли методом розпилення.

Параметри забудови

  • Кількість поверхів: 1
  • Площа: 165.5

Розмір забудови

  • Ширина: 7.5
  • Довжина: 25

Перший поверх

басейн (м²)22,8
санвузол (м²)5,7
тамбур (м²)9,3
кімната відпочинку (м²)30
санвузол (м²)5,1
тамбур (м²)2,6
тамбур (м²)7,3
санвузол (м²)3,9
парная (м²)18,9
парна (м²)26,2
санвузол (м²)3,8
санвузол (м²)3,8
парна (м²)26,2

Оциліндрований брус

Оциліндрований брус є найбільш оптимальним і поширеним матеріалом для будівництва дерев`яних будинків і бань, бесідок, альтанок, різноманітних садових меблів, дерев`яних конструкцій будь-яких видів. Дерев`яні будинки з оциліндрованого брусу відрізняються красою, всередині такого будинку завжди відчувається особлива затишна атмосфера.

Читати далі...

Профільований брус

Найсучаснішим і високотехнологічним будівельним матеріалом в дерев`яному будівництві на сьогоднішній день є профільований брус. Для виробництва профільованого брусу, звичайному дерев`яному брусу на спеціальному деревообробному обладнанні надається певний профіль.

Читати далі...

Подвійний брус з утепленням

Головна ідея застосування подвійного бруса полягала в досягненні енергоефективності житла. Над проектуванням енергозберігаючих будинків працюють провідні інженери та архітектори в різних країнах світу, запропонована фінами технологія подвійного бруса дає можливість звести до мінімуму тепловтрати будинку, а також об`єднує переваги будівництва дерев`яного будинку з економічністю споруди.

Читати далі...

Клеєний брус

Клеєний брус принципово відрізняється від інших типів колод багатошаровістю. Така структура робить цей дерев’яний матеріал надміцним і витривалим.

Читати далі...

Каркасні конструкції

Каркасні конструкції виготовляються на власних виробничих потужностях компанії «Домінант», з використанням сучасних деревообробних станків. Імпортне, високоточне обладнання дозволяє нам високоякісно виконувати свою роботу. Каркаси складаються зі струганих, ретельно висушених балок 150х50 мм (сосна першого сорту). Ці балки застосовуються для зовнішніх каркасів.

Читати далі...

Немає відгуків

Переглянуті товари

16 інших товарів в цій категорії:

Товар додано для порівняння.