Веселка
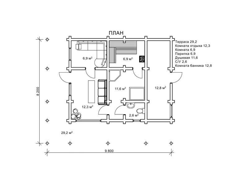
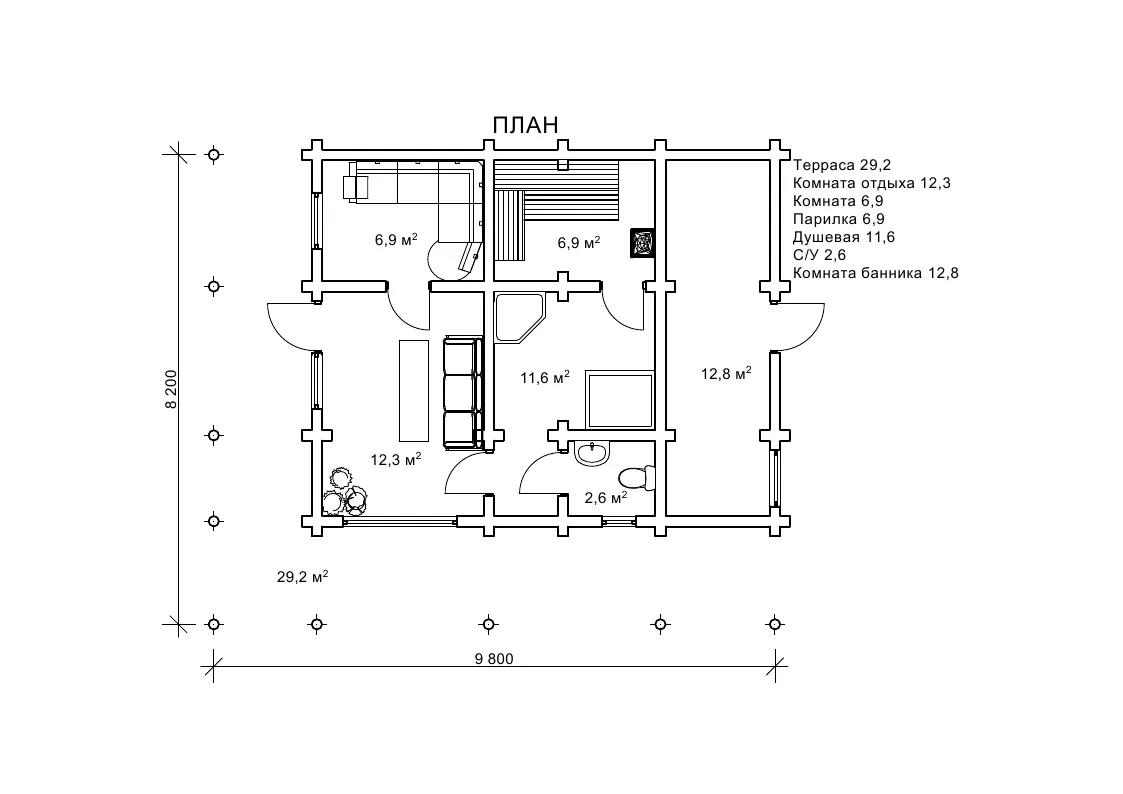
- Кількість поверхів
- 1
- Площа
- 82.3
- Ширина
- 8.2
- Довжина
- 9.8
- Садові та господарські споруди
- Бані
Бані з оциліндрованого брусу
(Що входить в ціну)
- комплект стін;
- комплект крокв;
- комплект балок перекриття;
- утеплювач міжвінцевий;
- антисептик (антисептування всього матеріалу);
- дубові нагеля;
- кріпильні материали (саморізи, усадкові болти, анкера, кріпильні пластини);
- гідроізоляція;
- вогнебіозахист (обробка деревини засобом І групи вогнезахисної ефективності)
Пропонуємо цікавий проект лазні Веселка в оточенні тінистих навісів. За проектом в лазні є дві кімнати, парилка, душова, санвузол і окрема кімната для банщика. У такій теплій дерев’яній лазні з бруса повністю можна забути про буденну метушню і на мить відволіктись від проблем сучасного ділового світу.
Баня Веселка завжди забезпечить своїм господарям і їх гостям повноцінний відпочинок і гарний настрій. Простий дизайн цієї лазні нагадує чимось тихоокеанське бунгало. Класичний, майже рівний, дах, з невеликим двостороннім скатом, дуже стильно підкреслює контури самої будівлі. В архітектурі дачної ділянки виглядає природно і затишно. Впишеться в будь-який його куточок, додаючи одні плюси. Невелика тераса по краях будівлі створить атмосферу затишку, особливо якщо ви поставите на ній пару плетених крісел і маленький столик, на якому буде диміти чай з польових трав. Ви після доброї лазні сядете на крісло, вкрившись ковдрою, під ароматний чай і будете насолоджуватися заходом сонця або річноїю тишею.
У зимовий же час навіс допоможе вам приготувати шашличок без шкоди від погодних умов і наповнить повітря ароматом диму від багаття. Компанія «Домінант» dominant-wood.com.ua/ впорається з будь-яким поставленим вами завданням і укомплектує, або замінить по вашим вимогам всі необхідні деталі проекту.
Баня «Веселка» - одна з моделей лазень, зроблених для того, щоб задовольнити найвибагливішого клієнта і зробити його життя кращим. Відчуйте атмосферу, яку дарує вам цей проект, уявіть себе всередині нього і зробіть правильний вибір!
- Кількість поверхів
- 1
- Площа
- 82.3
- Ширина
- 8.2
- Довжина
- 9.8
- Садові та господарські споруди
- Бані
Бані з оциліндрованого брусу
Базова комплектація:
(Що входить в ціну)
- комплект стін;
- комплект крокв;
- комплект балок перекриття;
- утеплювач міжвінцевий;
- антисептик (антисептування всього матеріалу);
- дубові нагеля;
- кріпильні материали (саморізи, усадкові болти, анкера, кріпильні пластини);
- гідроізоляція;
- вогнебіозахист (обробка деревини засобом І групи вогнезахисної ефективності)
267300 грн.
Дах (комплектність):
- Рейка 100*25мм (cосна)
- Контрейка 50*25мм (сосна)
- Металочерепиця МОНТЕРРЕЙ (Польща) 0,45мм
- Коник прямий
- Планка примикання
- Лобова (декоративна) планка
- Вітровая планка
- Яндола
- Капельник (Карнизна планка)
- Ущільнювач універсальный
- Саморізи ОС 4.8х35
- Фарба-спрей
- Гідробар'єр
- Монтаж
140320 грн.
Вікна (комплектність):
- Вікно VEKA 58, колір білий 10
- Імпости вертикальні: 1 x 102103
- Скління: СПО, 24мм, (Rсп=0.36)*
- Тип фурнітури: Activpilot поворотно-відкидна, колір білий
- Підбір спеціальний: Activ микровентиляція; Activ 2-функц. механ.
- Моск.сітка: МС 3
- Підвіконня: ВМ 110мм, колір білий
- Підвіконня: ПВ ПВХ 150, заглушки: 600мм, колір білий
- Монтаж
0 грн.
Двері (комплектність):
- Полотно
- Коробка
- Лиштва
- Карниз
- Фарбування
- Скло
- Фурнітура
- Врізка фурнітуры
- Монтаж
85064 грн.
Фарбування (комплектність):
- Шліфування торців
- Тришарове покриття ефективним деревозахисним засобом на базі низькомолекулярної алкідної смоли методом розпилення.
Оциліндрований брус
Оциліндрований брус є найбільш оптимальним і поширеним матеріалом для будівництва дерев`яних будинків і бань, бесідок, альтанок, різноманітних садових меблів, дерев`яних конструкцій будь-яких видів. Дерев`яні будинки з оциліндрованого брусу відрізняються красою, всередині такого будинку завжди відчувається особлива затишна атмосфера.
Профільований брус
Найсучаснішим і високотехнологічним будівельним матеріалом в дерев`яному будівництві на сьогоднішній день є профільований брус. Для виробництва профільованого брусу, звичайному дерев`яному брусу на спеціальному деревообробному обладнанні надається певний профіль.
Подвійний брус з утепленням
Головна ідея застосування подвійного бруса полягала в досягненні енергоефективності житла. Над проектуванням енергозберігаючих будинків працюють провідні інженери та архітектори в різних країнах світу, запропонована фінами технологія подвійного бруса дає можливість звести до мінімуму тепловтрати будинку, а також об`єднує переваги будівництва дерев`яного будинку з економічністю споруди.
Клеєний брус
Клеєний брус принципово відрізняється від інших типів колод багатошаровістю. Така структура робить цей дерев’яний матеріал надміцним і витривалим.
Каркасні конструкції
Каркасні конструкції виготовляються на власних виробничих потужностях компанії «Домінант», з використанням сучасних деревообробних станків. Імпортне, високоточне обладнання дозволяє нам високоякісно виконувати свою роботу. Каркаси складаються зі струганих, ретельно висушених балок 150х50 мм (сосна першого сорту). Ці балки застосовуються для зовнішніх каркасів.










