Тандіс
- Кількість поверхів
- 1
- Площа
- 67.3
- Ширина
- 8
- Довжина
- 10
- Садові та господарські споруди
- Бані
Бані з профільованого брусу
(Що входить в ціну)
- комплект стін;
- комплект крокв;
- комплект балок перекриття;
- утеплювач міжвінцевий;
- антисептик (антисептування всього матеріалу);
- дубові нагеля;
- кріпильні материали (саморізи, усадкові болти, анкера, кріпильні пластини);
- гідроізоляція;
- вогнебіозахист (обробка деревини засобом І групи вогнезахисної ефективності)
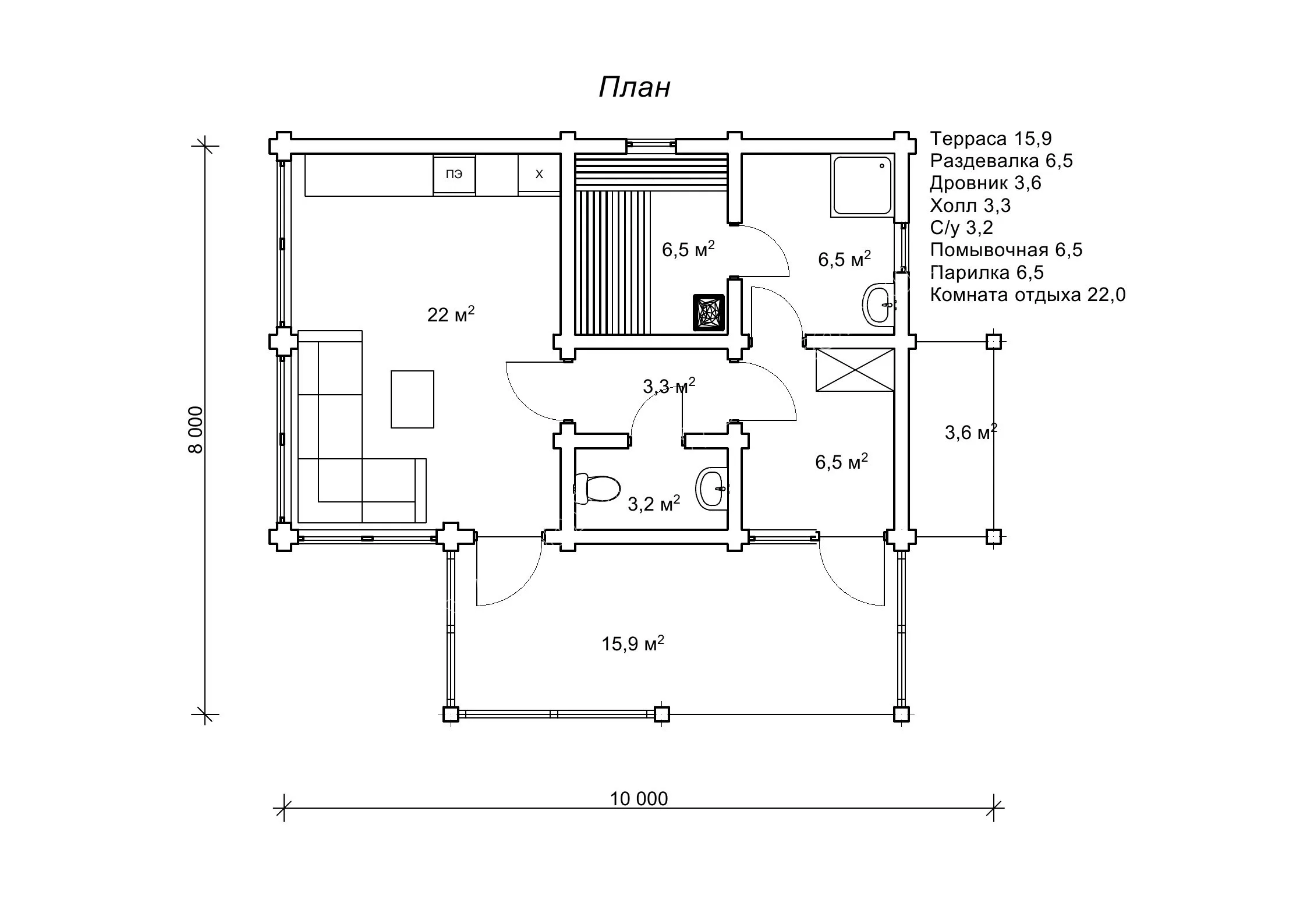
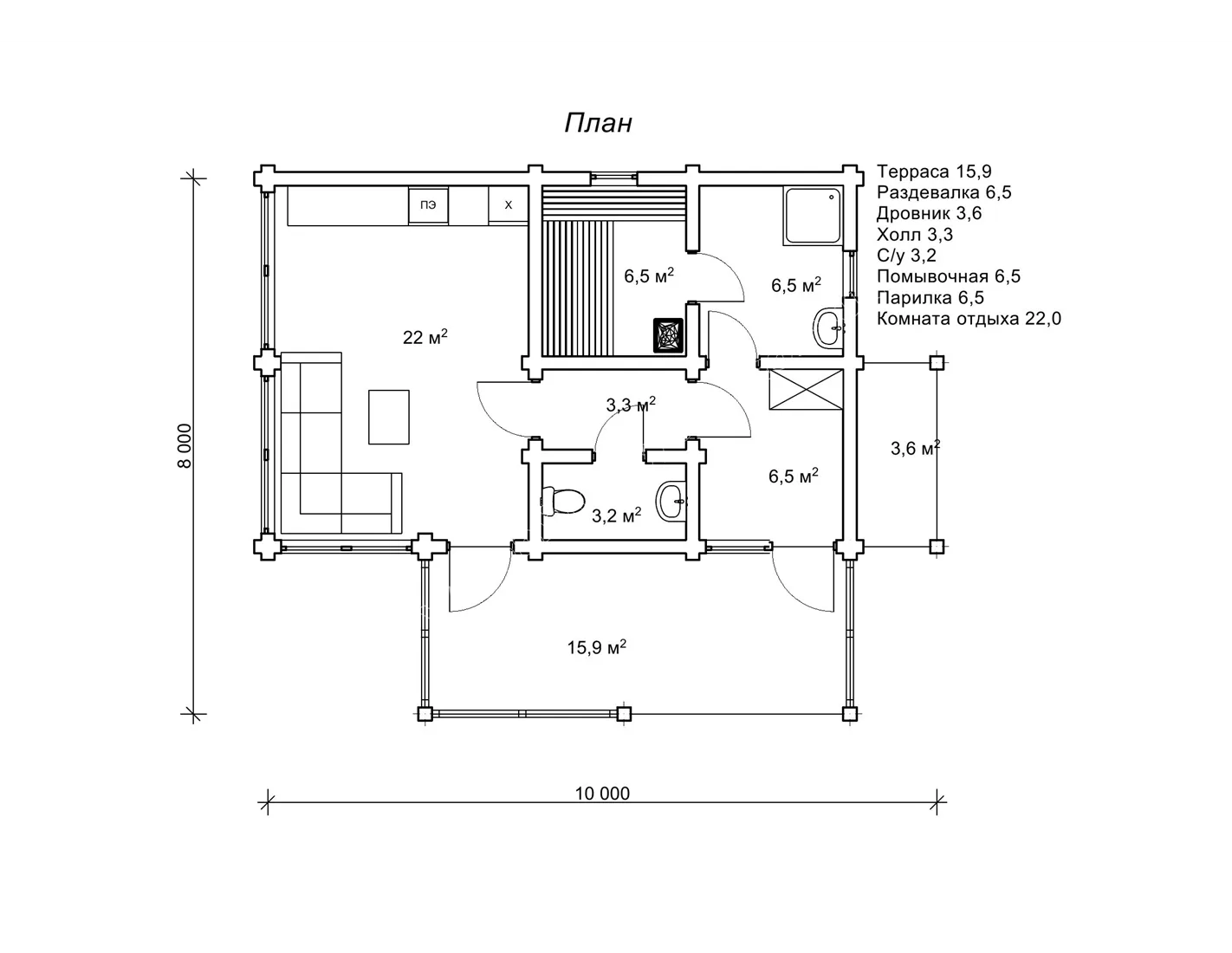
Стильна і модна лазня з цільного сухого профільованого бруса Тандіс мало чим нагадує дерев’яну хатинку, з якою асоціюється класична дерев’яна лазня. Це швидше сучасне бунгало в стилі хай-тек з величезними вікнами, розкішною літньою терасою, парною і просторою кімнатою відпочинку.
Баня Тандіс dominant-wood.com.ua/uk/proekty/901-tandis створювалася як проект, що викликає гордість і підкреслює високий статус свого господаря. У такій знатної, красивій лазні навіть оздоровчі парні процедури будуть приносити більше задоволення. Проект лазні Тандіс відрізняється зручними габаритними розмірами 8 на 10 м. Як показує практика, такі оптимальні габарити дають можливість раціонально організувати корисну площу і конструктивно розмістити приміщення в будові. Таким чином, внутрішнє наповнення дерев’яної лазні Тандіс вміщує всі необхідні для справжнього банного відпочинку приміщення: парилку, приміщення помивочної з душем, передбанник-роздягальню, санвузол, кімнату відпочинку.
Проект також традиційно передбачає наявність дровніка. А літня тераса додасть банному відпочинку родзинку у вигляді можливості вийти на вулицю і подихати свіжим повітрям прямо під час банних процедур.
Баня з профільованого бруса Тандіс має низку переваг, про які ви можете докладніше прочитати на нашому сайті: dominant-wood.com.ua/uk/42-bani-z-profilovanogo-brusu. Ця акуратна, солідна лазня не тільки модно і привабливо виглядає. Тандіс екологічна, швидко натоплюється і чудово зберігає тепло, забезпечуючи найкомфортніший внутрішній мікроклімат для самопочуття і здоров’я своїх відвідувачів.
- Кількість поверхів
- 1
- Площа
- 67.3
- Ширина
- 8
- Довжина
- 10
- Садові та господарські споруди
- Бані
Бані з профільованого брусу
Базова комплектація:
(Що входить в ціну)
- комплект стін;
- комплект крокв;
- комплект балок перекриття;
- утеплювач міжвінцевий;
- антисептик (антисептування всього матеріалу);
- дубові нагеля;
- кріпильні материали (саморізи, усадкові болти, анкера, кріпильні пластини);
- гідроізоляція;
- вогнебіозахист (обробка деревини засобом І групи вогнезахисної ефективності)
252720 грн.
Дах (комплектність):
- Рейка 100*25мм (cосна)
- Контрейка 50*25мм (сосна)
- Металочерепиця МОНТЕРРЕЙ (Польща) 0,45мм
- Коник прямий
- Планка примикання
- Лобова (декоративна) планка
- Вітровая планка
- Яндола
- Капельник (Карнизна планка)
- Ущільнювач універсальный
- Саморізи ОС 4.8х35
- Фарба-спрей
- Гідробар'єр
- Монтаж
263100 грн.
Вікна (комплектність):
- Вікно VEKA 58, колір білий 10
- Імпости вертикальні: 1 x 102103
- Скління: СПО, 24мм, (Rсп=0.36)*
- Тип фурнітури: Activpilot поворотно-відкидна, колір білий
- Підбір спеціальний: Activ микровентиляція; Activ 2-функц. механ.
- Моск.сітка: МС 3
- Підвіконня: ВМ 110мм, колір білий
- Підвіконня: ПВ ПВХ 150, заглушки: 600мм, колір білий
- Монтаж
0 грн.
Двері (комплектність):
- Полотно
- Коробка
- Лиштва
- Карниз
- Фарбування
- Скло
- Фурнітура
- Врізка фурнітуры
- Монтаж
60760 грн.
Фарбування (комплектність):
- Шліфування торців
- Тришарове покриття ефективним деревозахисним засобом на базі низькомолекулярної алкідної смоли методом розпилення.
Оциліндрований брус
Оциліндрований брус є найбільш оптимальним і поширеним матеріалом для будівництва дерев`яних будинків і бань, бесідок, альтанок, різноманітних садових меблів, дерев`яних конструкцій будь-яких видів. Дерев`яні будинки з оциліндрованого брусу відрізняються красою, всередині такого будинку завжди відчувається особлива затишна атмосфера.
Профільований брус
Найсучаснішим і високотехнологічним будівельним матеріалом в дерев`яному будівництві на сьогоднішній день є профільований брус. Для виробництва профільованого брусу, звичайному дерев`яному брусу на спеціальному деревообробному обладнанні надається певний профіль.
Подвійний брус з утепленням
Головна ідея застосування подвійного бруса полягала в досягненні енергоефективності житла. Над проектуванням енергозберігаючих будинків працюють провідні інженери та архітектори в різних країнах світу, запропонована фінами технологія подвійного бруса дає можливість звести до мінімуму тепловтрати будинку, а також об`єднує переваги будівництва дерев`яного будинку з економічністю споруди.
Клеєний брус
Клеєний брус принципово відрізняється від інших типів колод багатошаровістю. Така структура робить цей дерев’яний матеріал надміцним і витривалим.
Каркасні конструкції
Каркасні конструкції виготовляються на власних виробничих потужностях компанії «Домінант», з використанням сучасних деревообробних станків. Імпортне, високоточне обладнання дозволяє нам високоякісно виконувати свою роботу. Каркаси складаються зі струганих, ретельно висушених балок 150х50 мм (сосна першого сорту). Ці балки застосовуються для зовнішніх каркасів.










