Рагвал
- Кількість поверхів
- 1
- Площа
- 55.3
- Ширина
- 6.3
- Довжина
- 5.9
- Будинки і житлові будови
- Будиночки
Дачі
Котеджі - Кількість кімнат
- Однокімнатні будинки
- Особливості будинків
- Будинки з мансардою
Будинки з ґанком - Кількість поверхів споруди
- Двоповерхові будинки
- Будинки з брусу
- Будинки з оциліндрованого брусу
- Комерційні будівлі
- Бази відпочинку
(Що входить в ціну)
- комплект стін;
- комплект крокв;
- комплект балок перекриття;
- утеплювач міжвінцевий;
- антисептик (антисептування всього матеріалу);
- дубові нагеля;
- кріпильні материали (саморізи, усадкові болти, анкера, кріпильні пластини);
- гідроізоляція;
- вогнебіозахист (обробка деревини засобом І групи вогнезахисної ефективності)
Будівництво будиночка з дерева «Рагвал» з антресольним поверхом
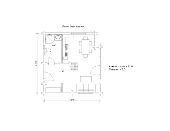
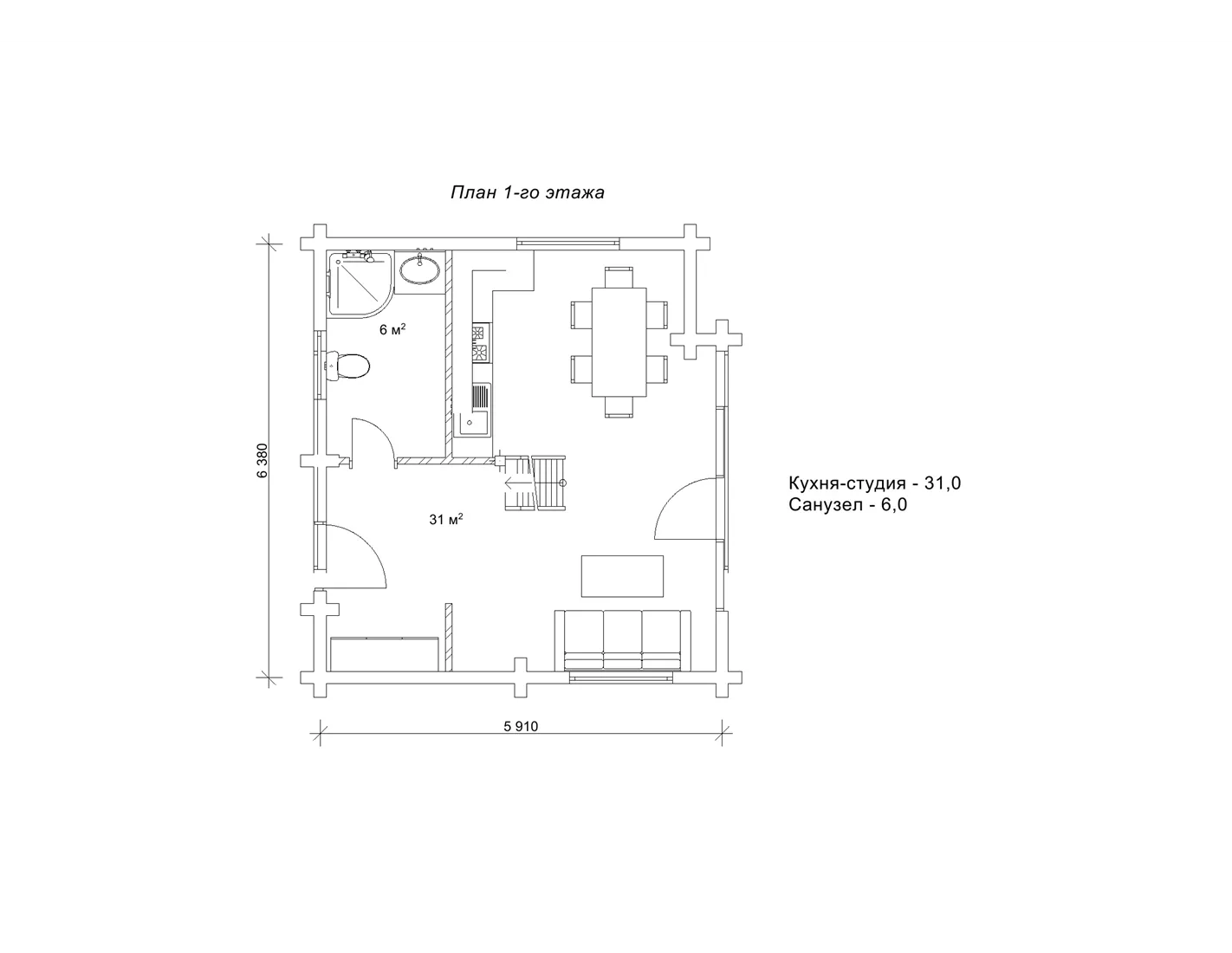
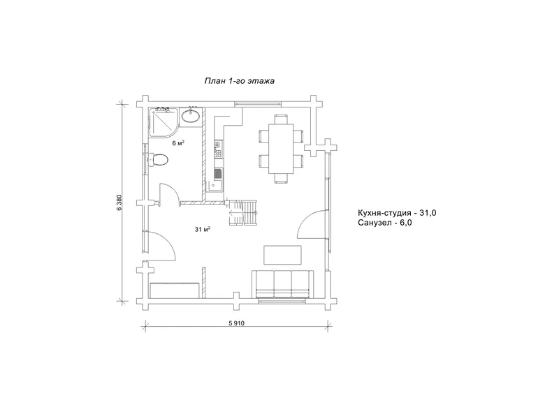
Запропонований проект є компактним, економним і практичним дачним котеджем. Ефектно виглядають широкі скляні двері з трьох секцій, які займають більшу частину головного фасаду будиночка. Над дверима розташоване трикутне вікно, що повторює кут нахилу скатів покрівлі. З першого погляду складається враження, що це одноповерховий котедж, але внутрішнє планування передбачає наявність антресольного поверху. План першого поверху включає кухню-студію та санвузол, відгороджений каркасними перегородками. На антресоль площею 16,3 м2 ведуть приставні сходи. Тут можна зручно помістити спальне місце. У проекті «Рагвал» створені всі зручності для комфортного проведення часу та можливості проявити фантазію у створенні оригінального інтер’єру.
Будиночок з дерева з антресольним поверхом, площа 55,3 м2
Габарити будиночка «Рагвал» становлять 6,3 на 5,9 м, загальна площа дорівнює 55,3 м2. Така невелика, зроблена з колод споруда, дуже швидко монтується і коштує недорого, як можна переконатися, вивчивши вартість під картинкою проекту. За прийнятну вартість ви отримуєте дерев’яний зруб, універсальний у використанні. Його легко встановити як гостьовий котедж біля основного житлового будинку. На окрему увагу заслуговує комерційний спосіб застосування проекту «Рагвал» під здачу в оренду. Дерев’яний зруб з оциліндрованих колод максимально наближає відпочиваючих до витоків природи, тим самим залучаючи більше втомлених городян, які бажають здобути умиротворення та сповнитися силами завдяки потужній енергетиці соснового дерева. Рекомендуємо вам зупинити свій вибір на будиночку з дерева «Рагвал» з антресольним поверхом, якщо ви бажаєте за мінімум вкладень отримати максимум комфорту та вигоди!
- Кількість поверхів
- 1
- Площа
- 55.3
- Ширина
- 6.3
- Довжина
- 5.9
- Будинки і житлові будови
- Будиночки
Дачі
Котеджі - Кількість кімнат
- Однокімнатні будинки
- Особливості будинків
- Будинки з мансардою
Будинки з ґанком - Кількість поверхів споруди
- Двоповерхові будинки
- Будинки з брусу
- Будинки з оциліндрованого брусу
- Комерційні будівлі
- Бази відпочинку
Базова комплектація:
(Що входить в ціну)
- комплект стін;
- комплект крокв;
- комплект балок перекриття;
- утеплювач міжвінцевий;
- антисептик (антисептування всього матеріалу);
- дубові нагеля;
- кріпильні материали (саморізи, усадкові болти, анкера, кріпильні пластини);
- гідроізоляція;
- вогнебіозахист (обробка деревини засобом І групи вогнезахисної ефективності)
155520 грн.
Дах (комплектність):
- Рейка 100*25мм (cосна)
- Контрейка 50*25мм (сосна)
- Металочерепиця МОНТЕРРЕЙ (Польща) 0,45мм
- Коник прямий
- Планка примикання
- Лобова (декоративна) планка
- Вітровая планка
- Яндола
- Капельник (Карнизна планка)
- Ущільнювач універсальный
- Саморізи ОС 4.8х35
- Фарба-спрей
- Гідробар'єр
- Монтаж
140320 грн.
Вікна (комплектність):
- Вікно VEKA 58, колір білий 10
- Імпости вертикальні: 1 x 102103
- Скління: СПО, 24мм, (Rсп=0.36)*
- Тип фурнітури: Activpilot поворотно-відкидна, колір білий
- Підбір спеціальний: Activ микровентиляція; Activ 2-функц. механ.
- Моск.сітка: МС 3
- Підвіконня: ВМ 110мм, колір білий
- Підвіконня: ПВ ПВХ 150, заглушки: 600мм, колір білий
- Монтаж
146300 грн.
Двері (комплектність):
- Полотно
- Коробка
- Лиштва
- Карниз
- Фарбування
- Скло
- Фурнітура
- Врізка фурнітуры
- Монтаж
72912 грн.
Фарбування (комплектність):
- Шліфування торців
- Тришарове покриття ефективним деревозахисним засобом на базі низькомолекулярної алкідної смоли методом розпилення.
Оциліндрований брус
Оциліндрований брус є найбільш оптимальним і поширеним матеріалом для будівництва дерев`яних будинків і бань, бесідок, альтанок, різноманітних садових меблів, дерев`яних конструкцій будь-яких видів. Дерев`яні будинки з оциліндрованого брусу відрізняються красою, всередині такого будинку завжди відчувається особлива затишна атмосфера.
Профільований брус
Найсучаснішим і високотехнологічним будівельним матеріалом в дерев`яному будівництві на сьогоднішній день є профільований брус. Для виробництва профільованого брусу, звичайному дерев`яному брусу на спеціальному деревообробному обладнанні надається певний профіль.
Подвійний брус з утепленням
Головна ідея застосування подвійного бруса полягала в досягненні енергоефективності житла. Над проектуванням енергозберігаючих будинків працюють провідні інженери та архітектори в різних країнах світу, запропонована фінами технологія подвійного бруса дає можливість звести до мінімуму тепловтрати будинку, а також об`єднує переваги будівництва дерев`яного будинку з економічністю споруди.
Клеєний брус
Клеєний брус принципово відрізняється від інших типів колод багатошаровістю. Така структура робить цей дерев’яний матеріал надміцним і витривалим.
Каркасні конструкції
Каркасні конструкції виготовляються на власних виробничих потужностях компанії «Домінант», з використанням сучасних деревообробних станків. Імпортне, високоточне обладнання дозволяє нам високоякісно виконувати свою роботу. Каркаси складаються зі струганих, ретельно висушених балок 150х50 мм (сосна першого сорту). Ці балки застосовуються для зовнішніх каркасів.



















