Карута
- Кількість поверхів
- 1
- Площа
- 90
- Ширина
- 6
- Довжина
- 15
- Будинки і житлові будови
- Будиночки
Вілли
Дачі
Котеджі - Кількість кімнат
- Трикімнатні будинки
- Особливості будинків
- Будинки з терасою
- Кількість поверхів споруди
- Одноповерхові будинки
- Будинки з брусу
- Будинки з клеєного брусу
Будинки з профільованого брусу - Комерційні будівлі
- Готелі
(Що входить в ціну)
- комплект стін;
- комплект крокв;
- комплект балок перекриття;
- утеплювач міжвінцевий;
- антисептик (антисептування всього матеріалу);
- дубові нагеля;
- кріпильні материали (саморізи, усадкові болти, анкера, кріпильні пластини);
- гідроізоляція;
- вогнебіозахист (обробка деревини засобом І групи вогнезахисної ефективності)
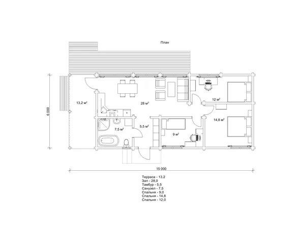
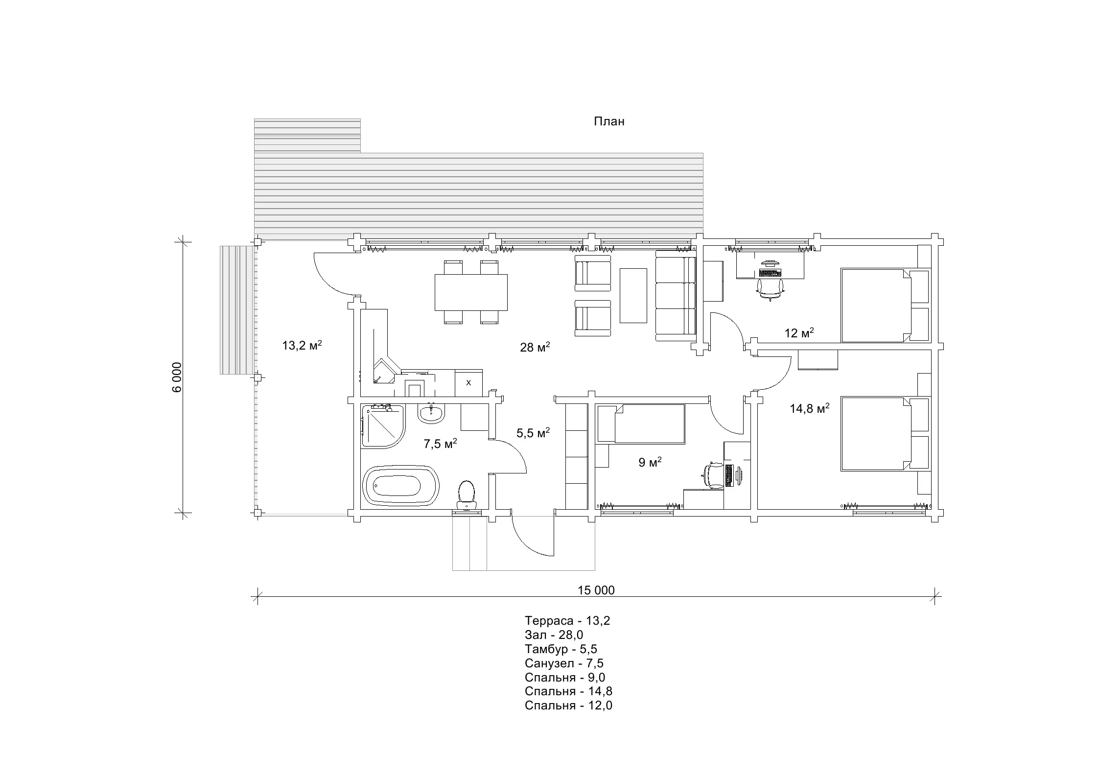
План трикімнатного котеджу 6х15 м, ціна виробника
Дуже стильна будова з великими вікнами вздовж фасадів, яка може прикрасити будь-який ландшафт, це, безперечно, вілла «Карута». Приємно дивитися на натуральну красу соснового бруса, з якого виконується проект. Гладко відшліфовані, майже монолітні стіни котеджу вдало гармонують з блискучою поверхнею великих вікон від підлоги до стелі. Відразу привертає увагу видовжена, прямокутна форма будівлі. Така форма побудови підійде для вузької земельної ділянки. Проста та елегантна конфігурація будівлі відображається у її вартості. Як правило, такі котеджі, що не містять складних архітектурних форм та конструкцій, коштують відносно недорого. Ціна трикімнатного котеджу 6х15 м «Карута» включає в себе базову комплектацію побудови. Детальний список усіх базових комплектуючих ми надаємо на кожній сторінці з проектом для зручності всіх, хто вибирає будиночки у нашому каталозі.
Трикімнатний котедж «Карута» площа 90 м²
У котеджі «Карута» всі приміщення розташовуються на одному поверсі, всередині будівлі багато простору, і є де розвернутися, тому тут передбачено три житлові кімнати розміром 12 м2, 14,8 м2 та 9 м2. Характерною особливістю дерев’яної вілли є великий розмір всіх приміщень, наприклад ванна кімната спланована на 7,5 м2. Тому тут можна жити та відпочивати, насолоджуючись комфортом та красивими краєвидами крізь панорамні вікна. Це практично універсальний варіант для відпочинкових комплексів, котеджних містечок та інших місць, де є мальовничі пейзажі, і хочеться залишатися довше. Крім того, в котеджі «Карута» максимально комфортно організовано простір та є всі необхідні зручності, що створюють неймовірний затишок. Більше трикімнатних будиночків з брусу вибирайте у відповідній категорії проектів сайту «Домінант».
- Кількість поверхів
- 1
- Площа
- 90
- Ширина
- 6
- Довжина
- 15
- Будинки і житлові будови
- Будиночки
Вілли
Дачі
Котеджі - Кількість кімнат
- Трикімнатні будинки
- Особливості будинків
- Будинки з терасою
- Кількість поверхів споруди
- Одноповерхові будинки
- Будинки з брусу
- Будинки з клеєного брусу
Будинки з профільованого брусу - Комерційні будівлі
- Готелі
Базова комплектація:
(Що входить в ціну)
- комплект стін;
- комплект крокв;
- комплект балок перекриття;
- утеплювач міжвінцевий;
- антисептик (антисептування всього матеріалу);
- дубові нагеля;
- кріпильні материали (саморізи, усадкові болти, анкера, кріпильні пластини);
- гідроізоляція;
- вогнебіозахист (обробка деревини засобом І групи вогнезахисної ефективності)
296460 грн.
Дах (комплектність):
- Рейка 100*25мм (cосна)
- Контрейка 50*25мм (сосна)
- Металочерепиця МОНТЕРРЕЙ (Польща) 0,45мм
- Коник прямий
- Планка примикання
- Лобова (декоративна) планка
- Вітровая планка
- Яндола
- Капельник (Карнизна планка)
- Ущільнювач універсальный
- Саморізи ОС 4.8х35
- Фарба-спрей
- Гідробар'єр
- Монтаж
403420 грн.
Вікна (комплектність):
- Вікно VEKA 58, колір білий 10
- Імпости вертикальні: 1 x 102103
- Скління: СПО, 24мм, (Rсп=0.36)*
- Тип фурнітури: Activpilot поворотно-відкидна, колір білий
- Підбір спеціальний: Activ микровентиляція; Activ 2-функц. механ.
- Моск.сітка: МС 3
- Підвіконня: ВМ 110мм, колір білий
- Підвіконня: ПВ ПВХ 150, заглушки: 600мм, колір білий
- Монтаж
83600 грн.
Двері (комплектність):
- Полотно
- Коробка
- Лиштва
- Карниз
- Фарбування
- Скло
- Фурнітура
- Врізка фурнітуры
- Монтаж
122388 грн.
Фарбування (комплектність):
- Шліфування торців
- Тришарове покриття ефективним деревозахисним засобом на базі низькомолекулярної алкідної смоли методом розпилення.
Оциліндрований брус
Оциліндрований брус є найбільш оптимальним і поширеним матеріалом для будівництва дерев`яних будинків і бань, бесідок, альтанок, різноманітних садових меблів, дерев`яних конструкцій будь-яких видів. Дерев`яні будинки з оциліндрованого брусу відрізняються красою, всередині такого будинку завжди відчувається особлива затишна атмосфера.
Профільований брус
Найсучаснішим і високотехнологічним будівельним матеріалом в дерев`яному будівництві на сьогоднішній день є профільований брус. Для виробництва профільованого брусу, звичайному дерев`яному брусу на спеціальному деревообробному обладнанні надається певний профіль.
Подвійний брус з утепленням
Головна ідея застосування подвійного бруса полягала в досягненні енергоефективності житла. Над проектуванням енергозберігаючих будинків працюють провідні інженери та архітектори в різних країнах світу, запропонована фінами технологія подвійного бруса дає можливість звести до мінімуму тепловтрати будинку, а також об`єднує переваги будівництва дерев`яного будинку з економічністю споруди.
Клеєний брус
Клеєний брус принципово відрізняється від інших типів колод багатошаровістю. Така структура робить цей дерев’яний матеріал надміцним і витривалим.
Каркасні конструкції
Каркасні конструкції виготовляються на власних виробничих потужностях компанії «Домінант», з використанням сучасних деревообробних станків. Імпортне, високоточне обладнання дозволяє нам високоякісно виконувати свою роботу. Каркаси складаються зі струганих, ретельно висушених балок 150х50 мм (сосна першого сорту). Ці балки застосовуються для зовнішніх каркасів.














