Оранжа
- Кількість поверхів
- 2
- Площа
- 158
- Ширина
- 7.5
- Довжина
- 14.4
- Комерційні будівлі
- Бази відпочинку
Готелі
(Що входить в ціну)
- комплект стін;
- комплект крокв;
- комплект балок перекриття;
- утеплювач міжвінцевий;
- антисептик (антисептування всього матеріалу);
- дубові нагеля;
- кріпильні материали (саморізи, усадкові болти, анкера, кріпильні пластини);
- гідроізоляція;
- вогнебіозахист (обробка деревини засобом І групи вогнезахисної ефективності)
Проект дерев’яного зрубу готелю «Оранжа»
Дерев’яні зруби з оциліндрованих колод відомі своєю екологічною чистотою і зовнішньою привабливістю, тому зараз так популярно відпочивати саме в дерев’яних котеджах або готелях з дерева. Адже споруди з соснового бруса наповнюють силами і здоров’ям втомлених городян, які не бачать природи в своїх бетонних джунглях. Проект дерев’яного зрубу готелю «Оранжа» створений для здорового і повноцінного відпочинку в горах або на морському узбережжі. Привабливий дизайн з безліччю балкончиков і терас готелю «Оранжа» радує погляд і налаштовує на приємне проведення часу під час відпустки. А що сплановано усередині готелю? Давайте дізнаємося!
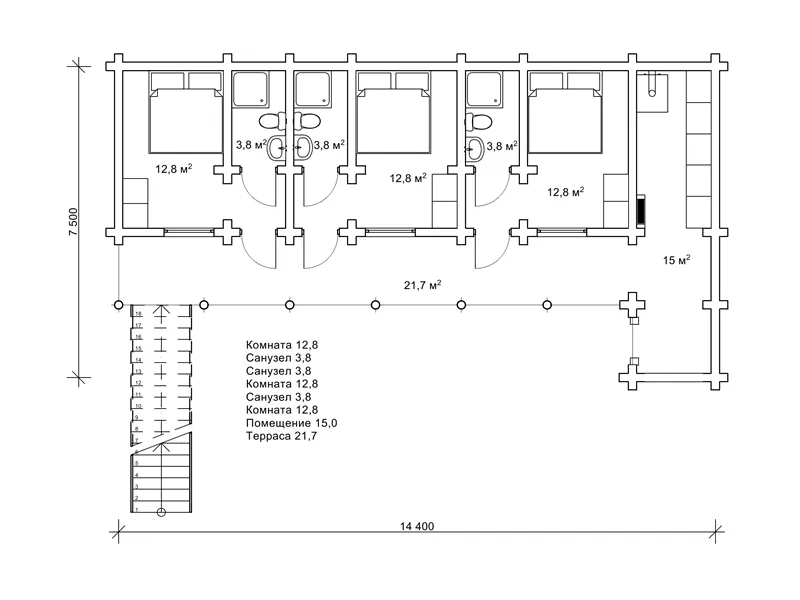
Планування готелю «Оранжа» на 6 номерів, площа 158 м2
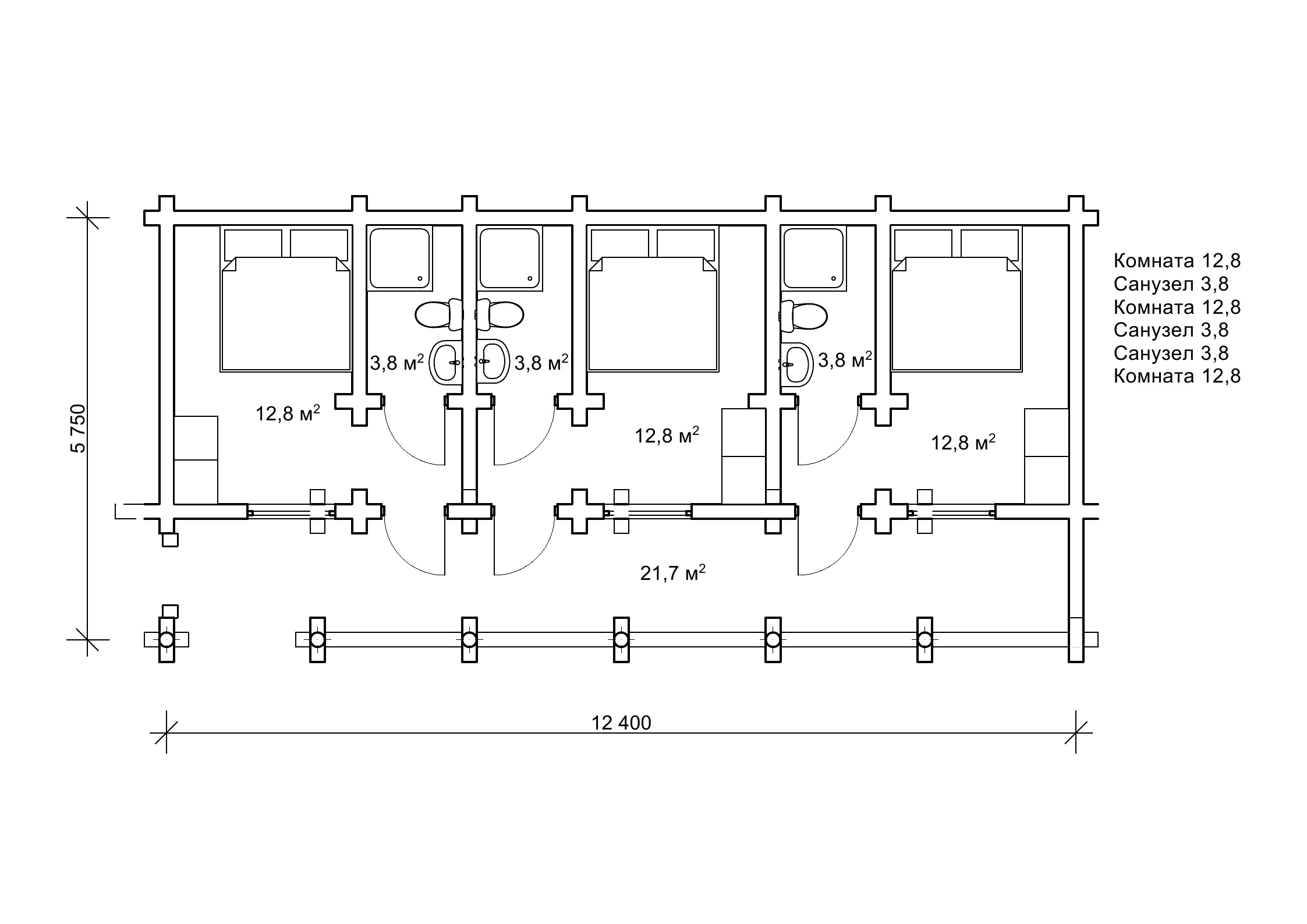
Готель «Оранжа» спланований на два поверхи в параметрах забудови 7,5 на 14,4 м. На першому поверсі є три номери по 12,8 м2, кожен з персональним санвузлом площею 3,8 м2. З номерів виходи ведуть на відкриту терасу площею 21,7 м2, яка йде уздовж номерів першого поверху до господарського приміщення, де можна зберігати інвентар, необхідний обслуговуючому персоналу. На другий поверх ведуть сходи прямо з вулиці, там також розташовано три номери точнісінько, як на першому поверсі. До речі, рішення обладнати сходи на вулиці - це поширений архітектурний прийом економії внутрішнього простору, який дуже популярний для курортних котеджів. Наприклад, сходи зовні можна побачити в таких проектах як «Майлана» і «Променад». Дерев’яний зруб готелю «Оранжа» являє собою максимально відкриту будову, створену для насолоди природою і свіжим повітрям.
Споруда дерев’яного зрубу готелю на 6 номерів
Так як дерево є поновлюваним і доступним матеріалом, що володіє цілющими властивостями, то відвідувачі бази відпочинку із задоволенням виберуть готель «Оранжа» і залишаться задоволені. А для власника готельного бізнесу вкладення коштів в будівництво дерев’яного зрубу швидко і вигідно окупиться. Що ще приємно для загального бюджету будівництва готелю з бруса, так це те, що дерево - саме по собі гарний і теплий матеріал. Ні масштабних оздоблювальних робіт, ні утеплення дерево не потребує. Всі деталі замовлення споруди дерев’яного зрубу готелю на 6 номерів по готовому проекту «Оранжа» можна обговорити по телефону, звернувшись в офіс «Домінант»: +38 063 499-91-00; +38 097 012-38-52 (Viber; WhatsApp)
- Кількість поверхів
- 2
- Площа
- 158
- Ширина
- 7.5
- Довжина
- 14.4
- Комерційні будівлі
- Бази відпочинку
Готелі
Базова комплектація:
(Що входить в ціну)
- комплект стін;
- комплект крокв;
- комплект балок перекриття;
- утеплювач міжвінцевий;
- антисептик (антисептування всього матеріалу);
- дубові нагеля;
- кріпильні материали (саморізи, усадкові болти, анкера, кріпильні пластини);
- гідроізоляція;
- вогнебіозахист (обробка деревини засобом І групи вогнезахисної ефективності)
315900 грн.
Дах (комплектність):
- Рейка 100*25мм (cосна)
- Контрейка 50*25мм (сосна)
- Металочерепиця МОНТЕРРЕЙ (Польща) 0,45мм
- Коник прямий
- Планка примикання
- Лобова (декоративна) планка
- Вітровая планка
- Яндола
- Капельник (Карнизна планка)
- Ущільнювач універсальный
- Саморізи ОС 4.8х35
- Фарба-спрей
- Гідробар'єр
- Монтаж
157860 грн.
Вікна (комплектність):
- Вікно VEKA 58, колір білий 10
- Імпости вертикальні: 1 x 102103
- Скління: СПО, 24мм, (Rсп=0.36)*
- Тип фурнітури: Activpilot поворотно-відкидна, колір білий
- Підбір спеціальний: Activ микровентиляція; Activ 2-функц. механ.
- Моск.сітка: МС 3
- Підвіконня: ВМ 110мм, колір білий
- Підвіконня: ПВ ПВХ 150, заглушки: 600мм, колір білий
- Монтаж
250800 грн.
Двері (комплектність):
- Полотно
- Коробка
- Лиштва
- Карниз
- Фарбування
- Скло
- Фурнітура
- Врізка фурнітуры
- Монтаж
182280 грн.
Фарбування (комплектність):
- Шліфування торців
- Тришарове покриття ефективним деревозахисним засобом на базі низькомолекулярної алкідної смоли методом розпилення.
Оциліндрований брус
Оциліндрований брус є найбільш оптимальним і поширеним матеріалом для будівництва дерев`яних будинків і бань, бесідок, альтанок, різноманітних садових меблів, дерев`яних конструкцій будь-яких видів. Дерев`яні будинки з оциліндрованого брусу відрізняються красою, всередині такого будинку завжди відчувається особлива затишна атмосфера.
Профільований брус
Найсучаснішим і високотехнологічним будівельним матеріалом в дерев`яному будівництві на сьогоднішній день є профільований брус. Для виробництва профільованого брусу, звичайному дерев`яному брусу на спеціальному деревообробному обладнанні надається певний профіль.
Подвійний брус з утепленням
Головна ідея застосування подвійного бруса полягала в досягненні енергоефективності житла. Над проектуванням енергозберігаючих будинків працюють провідні інженери та архітектори в різних країнах світу, запропонована фінами технологія подвійного бруса дає можливість звести до мінімуму тепловтрати будинку, а також об`єднує переваги будівництва дерев`яного будинку з економічністю споруди.
Клеєний брус
Клеєний брус принципово відрізняється від інших типів колод багатошаровістю. Така структура робить цей дерев’яний матеріал надміцним і витривалим.
Каркасні конструкції
Каркасні конструкції виготовляються на власних виробничих потужностях компанії «Домінант», з використанням сучасних деревообробних станків. Імпортне, високоточне обладнання дозволяє нам високоякісно виконувати свою роботу. Каркаси складаються зі струганих, ретельно висушених балок 150х50 мм (сосна першого сорту). Ці балки застосовуються для зовнішніх каркасів.












