Зателефонуйте мені
Султана №1
Султана №2
Султана №3
Султана №4
Султана №5
Султана №6
Султана №7
Султана №1
Султана №2
Султана №3
Султана №4
Султана №5
Султана №6
Султана №7
Султана №1
Султана №1 Султана №2 Султана №3 Султана №4 Султана №5 Султана №6 Султана №7

Султана

2 532 353,00 ₴
Будівництво готелю з бруса 10х13 м - «Султана»
Розмір брусу
  • Оциліндрований 160
  • Оциліндрований 180
  • Оциліндрований 200
  • Оциліндрований 220
  • Профільований 60
  • Профільований 150
  • Профільований 200
  • Подвійний 300
  • Клеєний 120
  • Клеєний 180
Кількість поверхів
2
Площа
260
Ширина
13
Довжина
10
Комерційні будівлі
Готелі
 

(Що входить в ціну)

Що входить в базову комплектацію

  • комплект стін;
  • комплект крокв;
  • комплект балок перекриття;
  • утеплювач міжвінцевий;
  • антисептик (антисептування всього матеріалу);
  • дубові нагеля;
  • кріпильні материали (саморізи, усадкові болти, анкера, кріпильні пластини);
  • гідроізоляція;
  • вогнебіозахист (обробка деревини засобом І групи вогнезахисної ефективності)

Проект готелю з сухого профільованого бруса Султана dominant-wood.com.ua/uk/proekty/820-sultana привертає увагу миловидним, немов ажурним фасадом в обрамленні балкона і просторої літньої тераси. Готель побудований із бруса двох розмірів: 150Х150 для основних стін і 60х150 для перестінків. Таким чином, при зведенні готелю Султана економиться бюджет будівництва, адже вартість будинку з бруса залежить і від розміру матеріалу.

Дерев’яні готелі користуються особливою популярністю серед курортників. Адже тільки в дерев’яному приміщенні дихається особливо легко і відчувається неймовірний приплив сил за рахунок унікальних якісних характеристик, які властиві тільки дереву. Проект Султана володіє всім необхідним для повноцінного відпочинку: номери з санвузлами, кухня, літня тераса, просторий балкон на другому поверсі. Невелика кількість номерів і затишна, практично домашня, внутрішня обстановка дає підстави називати такий готель бутик-готелем, саме такі комплекси відпочинку зараз дуже популярні у відпочиваючих. Унікальне, не стандартне оформлення кожного номера в готелі Султана приверне ще більше клієнтів і стане запорукою успіху даного проекту.

Будівництво готелю з бруса за готовим проектом Султана від компанії «Домінант» dominant-wood.com.ua є найефективнішим і найбюджетнішим варіантом для реалізації готельного бізнесу. Дерев’яний екстер’єр будівлі буде залучати туристів своєю природною, самобутньою красою натурального дерева, а відпочинок в готелі вийде комфортним і оздоровчим.

Кількість поверхів
2
Площа
260
Ширина
13
Довжина
10
Комерційні будівлі
Готелі

Базова комплектація:
(Що входить в ціну)

Що входить в базову комплектацію

  • комплект стін;
  • комплект крокв;
  • комплект балок перекриття;
  • утеплювач міжвінцевий;
  • антисептик (антисептування всього матеріалу);
  • дубові нагеля;
  • кріпильні материали (саморізи, усадкові болти, анкера, кріпильні пластини);
  • гідроізоляція;
  • вогнебіозахист (обробка деревини засобом І групи вогнезахисної ефективності)

444690 грн.

Дах (комплектність):

  • Рейка 100*25мм (cосна)
  • Контрейка 50*25мм (сосна)
  • Металочерепиця МОНТЕРРЕЙ (Польща) 0,45мм
  • Коник прямий
  • Планка примикання
  • Лобова (декоративна) планка
  • Вітровая планка
  • Яндола
  • Капельник (Карнизна планка)
  • Ущільнювач універсальный
  • Саморізи ОС 4.8х35
  • Фарба-спрей
  • Гідробар'єр
  • Монтаж

561280 грн.

Вікна (комплектність):

  • Вікно VEKA 58, колір білий 10
  • Імпости вертикальні: 1 x 102103
  • Скління: СПО, 24мм, (Rсп=0.36)*
  • Тип фурнітури: Activpilot поворотно-відкидна, колір білий
  • Підбір спеціальний: Activ микровентиляція; Activ 2-функц. механ.
  • Моск.сітка: МС 3
  • Підвіконня: ВМ 110мм, колір білий
  • Підвіконня: ПВ ПВХ 150, заглушки: 600мм, колір білий
  • Монтаж

0 грн.

Двері (комплектність):

  • Полотно
  • Коробка
  • Лиштва
  • Карниз
  • Фарбування
  • Скло
  • Фурнітура
  • Врізка фурнітуры
  • Монтаж

159712 грн.

Фарбування (комплектність):

  • Шліфування торців
  • Тришарове покриття ефективним деревозахисним засобом на базі низькомолекулярної алкідної смоли методом розпилення.

Параметри забудови

  • Кількість поверхів: 2
  • Площа: 260

Розмір забудови

  • Ширина: 13
  • Довжина: 10

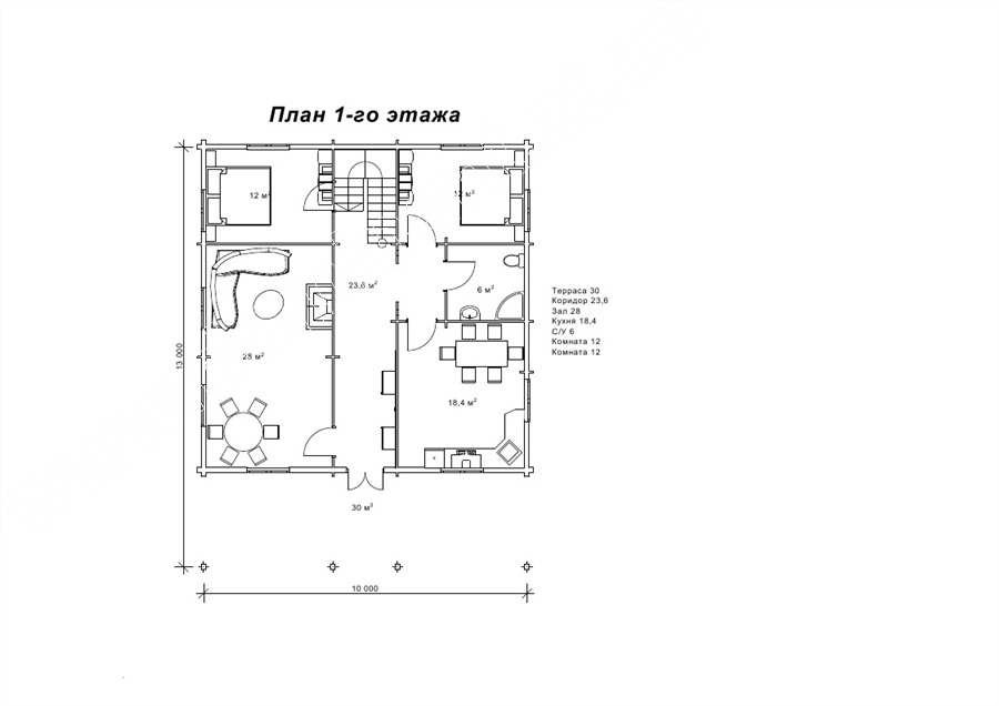
Перший поверх

зал (м²)28
кімната (м²)12
кімната (м²)12
коридор (м²)23,5
кухня (м²)18,4
с/в (м²)6
тераса (м²)30

Другий поверх

балкон (м²)30
кімната (м²)17
кімната (м²)17
кімната (м²)17
кімната (м²)17
коридор (м²)20
с/в (м²)3
с/в (м²)3
с/в (м²)3
с/в (м²)3

Оциліндрований брус

Оциліндрований брус є найбільш оптимальним і поширеним матеріалом для будівництва дерев`яних будинків і бань, бесідок, альтанок, різноманітних садових меблів, дерев`яних конструкцій будь-яких видів. Дерев`яні будинки з оциліндрованого брусу відрізняються красою, всередині такого будинку завжди відчувається особлива затишна атмосфера.

Читати далі...

Профільований брус

Найсучаснішим і високотехнологічним будівельним матеріалом в дерев`яному будівництві на сьогоднішній день є профільований брус. Для виробництва профільованого брусу, звичайному дерев`яному брусу на спеціальному деревообробному обладнанні надається певний профіль.

Читати далі...

Подвійний брус з утепленням

Головна ідея застосування подвійного бруса полягала в досягненні енергоефективності житла. Над проектуванням енергозберігаючих будинків працюють провідні інженери та архітектори в різних країнах світу, запропонована фінами технологія подвійного бруса дає можливість звести до мінімуму тепловтрати будинку, а також об`єднує переваги будівництва дерев`яного будинку з економічністю споруди.

Читати далі...

Клеєний брус

Клеєний брус принципово відрізняється від інших типів колод багатошаровістю. Така структура робить цей дерев’яний матеріал надміцним і витривалим.

Читати далі...

Каркасні конструкції

Каркасні конструкції виготовляються на власних виробничих потужностях компанії «Домінант», з використанням сучасних деревообробних станків. Імпортне, високоточне обладнання дозволяє нам високоякісно виконувати свою роботу. Каркаси складаються зі струганих, ретельно висушених балок 150х50 мм (сосна першого сорту). Ці балки застосовуються для зовнішніх каркасів.

Читати далі...

Немає відгуків

Переглянуті товари

16 інших товарів в цій категорії:

Товар додано для порівняння.