Бікар
- Кількість поверхів
- 2
- Площа
- 224.7
- Ширина
- 13.7
- Довжина
- 12
- Будинки і житлові будови
- Маєтки
Садиби - Кількість кімнат
- Шестикімнатні будинки
- Особливості будинків
- Будинки з балконом
Будинки з мансардою
Будинки з терасою
Будинки зі сходами
Будинки з ґанком - Кількість поверхів споруди
- Двоповерхові будинки
- Будинки з брусу
- Будинки з оциліндрованого брусу
(Що входить в ціну)
- комплект стін;
- комплект крокв;
- комплект балок перекриття;
- утеплювач міжвінцевий;
- антисептик (антисептування всього матеріалу);
- дубові нагеля;
- кріпильні материали (саморізи, усадкові болти, анкера, кріпильні пластини);
- гідроізоляція;
- вогнебіозахист (обробка деревини засобом І групи вогнезахисної ефективності)
З першого погляду видно, що запропонований проект Бікар зовні володіє стількома ж перевагами, як і всередині. Чудовий і неабиякий особняк безпосередньо позитивно впливає на здоров’я своїх мешканців. Будинки зі зрубу утримують вологу, насичують киснем і ефективно розподіляють тепло, утворюючи зручні умови для його мешканців. Безпосередньо з цієї причини в такій будівлі в зимовий час комфортно і тепло, а в літній сезон царює безумовна свіжість. Будь-кому, хто хоч один раз спав в дерев’яному приміщенні, відомо почуття бадьорої легкості при пробудженні. У такому будинку вам не буде потрібно придбання зволожувачів і очищувачів повітря, адже замість них ці функції виконує ваш будинок.
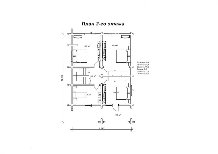
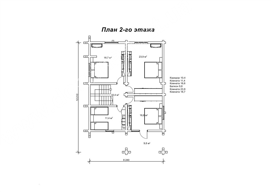
Говорячи про комфортне проведення часу в особняку Бікар, хочеться зробити акцент на наявність двох віталень на першому поверсі. Ви можете перетворити їх в кінозал для всієї родини, або облаштувати там їдальню. Так само перший поверх має кухню, санвузел і тамбур, а також сходову зону, для переходу на другий поверх. На другому поверсі в основному знаходяться приміщення для відпочинку, при цьому ви можете переобладнати одну з чотирьох спалень в кабінет або зал для тренувань. Тераса - відмінне місце для проведення часу на свіжому повітрі, з одного боку згідно з проектом обладнаний навіс, де можна поставити власний автомобіль. Таким чином виключається необхідність додатково добудовувати гараж.
Стилізувати і обставляти меблями такий будинок суцільне задоволення, однак для повної картини і натхнення ви можете подивитися варіанти на сайті компанії «Домінант» в фотогалереї dominant-wood.com.ua/uk/content/17-inter-eri. Такі будинки з бруса з навісом для автомобіля дуже часто в пріоритеті при виборі заміського житла.
- Кількість поверхів
- 2
- Площа
- 224.7
- Ширина
- 13.7
- Довжина
- 12
- Будинки і житлові будови
- Маєтки
Садиби - Кількість кімнат
- Шестикімнатні будинки
- Особливості будинків
- Будинки з балконом
Будинки з мансардою
Будинки з терасою
Будинки зі сходами
Будинки з ґанком - Кількість поверхів споруди
- Двоповерхові будинки
- Будинки з брусу
- Будинки з оциліндрованого брусу
Базова комплектація:
(Що входить в ціну)
- комплект стін;
- комплект крокв;
- комплект балок перекриття;
- утеплювач міжвінцевий;
- антисептик (антисептування всього матеріалу);
- дубові нагеля;
- кріпильні материали (саморізи, усадкові болти, анкера, кріпильні пластини);
- гідроізоляція;
- вогнебіозахист (обробка деревини засобом І групи вогнезахисної ефективності)
524880 грн.
Дах (комплектність):
- Рейка 100*25мм (cосна)
- Контрейка 50*25мм (сосна)
- Металочерепиця МОНТЕРРЕЙ (Польща) 0,45мм
- Коник прямий
- Планка примикання
- Лобова (декоративна) планка
- Вітровая планка
- Яндола
- Капельник (Карнизна планка)
- Ущільнювач універсальный
- Саморізи ОС 4.8х35
- Фарба-спрей
- Гідробар'єр
- Монтаж
333260 грн.
Вікна (комплектність):
- Вікно VEKA 58, колір білий 10
- Імпости вертикальні: 1 x 102103
- Скління: СПО, 24мм, (Rсп=0.36)*
- Тип фурнітури: Activpilot поворотно-відкидна, колір білий
- Підбір спеціальний: Activ микровентиляція; Activ 2-функц. механ.
- Моск.сітка: МС 3
- Підвіконня: ВМ 110мм, колір білий
- Підвіконня: ПВ ПВХ 150, заглушки: 600мм, колір білий
- Монтаж
0 грн.
Двері (комплектність):
- Полотно
- Коробка
- Лиштва
- Карниз
- Фарбування
- Скло
- Фурнітура
- Врізка фурнітуры
- Монтаж
204848 грн.
Фарбування (комплектність):
- Шліфування торців
- Тришарове покриття ефективним деревозахисним засобом на базі низькомолекулярної алкідної смоли методом розпилення.
Параметри забудови
- Кількість поверхів: 2
- Площа: 224.7
Розмір забудови
- Ширина: 13.7
- Довжина: 12
Перший поверх
| зал (м²) | 18,7 |
| зал (м²) | 22,7 |
| ганок (м²) | 6,1 |
| кухня (м²) | 21,8 |
| с/в (м²) | 11,4 |
| тамбур (м²) | 6,3 |
| тераса (м²) | 9,8 |
| навес (м²) | 37 |
Другий поверх
| балкон (м²) | 9,8 |
| кімната (м²) | 11,4 |
| кімната (м²) | 16,6 |
| кімната (м²) | 23,9 |
| кімната (м²) | 18,7 |
| коридор (м²) | 10,4 |
Оциліндрований брус
Оциліндрований брус є найбільш оптимальним і поширеним матеріалом для будівництва дерев`яних будинків і бань, бесідок, альтанок, різноманітних садових меблів, дерев`яних конструкцій будь-яких видів. Дерев`яні будинки з оциліндрованого брусу відрізняються красою, всередині такого будинку завжди відчувається особлива затишна атмосфера.
Профільований брус
Найсучаснішим і високотехнологічним будівельним матеріалом в дерев`яному будівництві на сьогоднішній день є профільований брус. Для виробництва профільованого брусу, звичайному дерев`яному брусу на спеціальному деревообробному обладнанні надається певний профіль.
Подвійний брус з утепленням
Головна ідея застосування подвійного бруса полягала в досягненні енергоефективності житла. Над проектуванням енергозберігаючих будинків працюють провідні інженери та архітектори в різних країнах світу, запропонована фінами технологія подвійного бруса дає можливість звести до мінімуму тепловтрати будинку, а також об`єднує переваги будівництва дерев`яного будинку з економічністю споруди.
Клеєний брус
Клеєний брус принципово відрізняється від інших типів колод багатошаровістю. Така структура робить цей дерев’яний матеріал надміцним і витривалим.
Каркасні конструкції
Каркасні конструкції виготовляються на власних виробничих потужностях компанії «Домінант», з використанням сучасних деревообробних станків. Імпортне, високоточне обладнання дозволяє нам високоякісно виконувати свою роботу. Каркаси складаються зі струганих, ретельно висушених балок 150х50 мм (сосна першого сорту). Ці балки застосовуються для зовнішніх каркасів.












