Морська Зірка
- Кількість поверхів
- 3
- Площа
- 468.2
- Ширина
- 13
- Довжина
- 16.9
- Комерційні будівлі
- Готелі
(Що входить в ціну)
- комплект стін;
- комплект крокв;
- комплект балок перекриття;
- утеплювач міжвінцевий;
- антисептик (антисептування всього матеріалу);
- дубові нагеля;
- кріпильні материали (саморізи, усадкові болти, анкера, кріпильні пластини);
- гідроізоляція;
- вогнебіозахист (обробка деревини засобом І групи вогнезахисної ефективності)
Готель «Морська Зірка» виглядає монументально і велично. Дуже оригінально в ньому спроектований багатощипцевий дах, від чого складається враження, що споруда складається з трьох окремих будівель. Безліч ажурних терас і балкончиков, витончена округлість оциліндрованих колод додають принади і легкості цій грандіозній будові. Готель з брусу «Морська Зірка» виглядає набагато привабливіше і затишніше цегляних або бетонних аналогів. І ще будівництво дерев’яного готелю є набагато вигіднішим в економічному плані. Всі вкладені фінанси в будівництво дерев’яного готелю з брусу особливо швидко виправдають себе і почнуть приносити постійний дохід, якщо вибрати для нього красиву місцевість в курортній зоні на море або в горах. Триповерховий готель 13 на 17 м з терасою і балконами відрізняється спеціально розробленим для комфортного розміщення та відпочинку всіх постояльців плануванням.
Проект «Морська Зірка» передбачено як будівлю з окремими номерами для курортного відпочинку. Готель має три поверхи, 20 кімнат з санвузлами і балкончиками. В даному комплексі відпочинку може комфортно розміститися до 30 осіб, що дозволить власникові добре заробити, а відвідувачам комфортно відпочити в екологічно чистому будинку з брусу. Будова з дерев’яного бруса відрізняється теплом і затишком, екологічною чистотою і практичністю в експлуатації, крім того дерев’яний домокомплект зводиться в найкоротші терміни, як конструктор, що вигідно відрізняє дерев’яний брус dominant-wood.com.ua/ru/blog/statti/iz-chego-stroit-dom від інших будівельних матеріалів.
Ефектний дерев’яний готель створено, щоб прикрашати собою мальовничий куточок природи десь в горах або на узбережжі біля моря. Будівля, виконана з натурального природного матеріалу, сама по собі є частинкою природи, тому відпочинок в такому готелі буде сприяти оздоровленню і поліпшенню самопочуття гостей.
- Кількість поверхів
- 3
- Площа
- 468.2
- Ширина
- 13
- Довжина
- 16.9
- Комерційні будівлі
- Готелі
Базова комплектація:
(Що входить в ціну)
- комплект стін;
- комплект крокв;
- комплект балок перекриття;
- утеплювач міжвінцевий;
- антисептик (антисептування всього матеріалу);
- дубові нагеля;
- кріпильні материали (саморізи, усадкові болти, анкера, кріпильні пластини);
- гідроізоляція;
- вогнебіозахист (обробка деревини засобом І групи вогнезахисної ефективності)
675540 грн.
Дах (комплектність):
- Рейка 100*25мм (cосна)
- Контрейка 50*25мм (сосна)
- Металочерепиця МОНТЕРРЕЙ (Польща) 0,45мм
- Коник прямий
- Планка примикання
- Лобова (декоративна) планка
- Вітровая планка
- Яндола
- Капельник (Карнизна планка)
- Ущільнювач універсальный
- Саморізи ОС 4.8х35
- Фарба-спрей
- Гідробар'єр
- Монтаж
754220 грн.
Вікна (комплектність):
- Вікно VEKA 58, колір білий 10
- Імпости вертикальні: 1 x 102103
- Скління: СПО, 24мм, (Rсп=0.36)*
- Тип фурнітури: Activpilot поворотно-відкидна, колір білий
- Підбір спеціальний: Activ микровентиляція; Activ 2-функц. механ.
- Моск.сітка: МС 3
- Підвіконня: ВМ 110мм, колір білий
- Підвіконня: ПВ ПВХ 150, заглушки: 600мм, колір білий
- Монтаж
0 грн.
Двері (комплектність):
- Полотно
- Коробка
- Лиштва
- Карниз
- Фарбування
- Скло
- Фурнітура
- Врізка фурнітуры
- Монтаж
420112 грн.
Фарбування (комплектність):
- Шліфування торців
- Тришарове покриття ефективним деревозахисним засобом на базі низькомолекулярної алкідної смоли методом розпилення.
Параметри забудови
- Кількість поверхів: 3
- Площа: 468.2
Розмір забудови
- Ширина: 13
- Довжина: 16.9
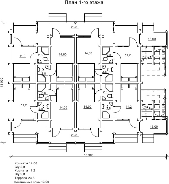
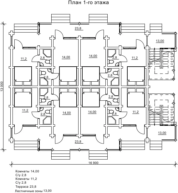
Перший поверх
| кімната (м²) | 14 |
| кімната (м²) | 11,2 |
| кімната (м²) | 14 |
| кімната (м²) | 14 |
| кімната (м²) | 14 |
| кімната (м²) | 11,2 |
| кімната (м²) | 11,2 |
| кімната (м²) | 11,2 |
| сходова зона (м²) | 13 |
| с/в (м²) | 2,8 |
| с/в (м²) | 2,8 |
| с/в (м²) | 2,8 |
| с/в (м²) | 2,8 |
| с/в (м²) | 2,8 |
| с/в (м²) | 2,8 |
| с/в (м²) | 2,8 |
| с/в (м²) | 2,8 |
| тераса (м²) | 23,8 |
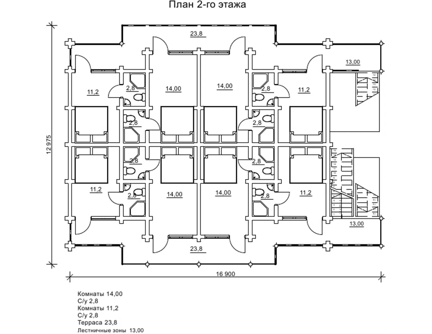
Другий поверх
| кімната (м²) | 14 |
| кімната (м²) | 11,2 |
| кімната (м²) | 14 |
| кімната (м²) | 14 |
| кімната (м²) | 14 |
| кімната (м²) | 11,2 |
| кімната (м²) | 11,2 |
| кімната (м²) | 11,2 |
| сходова зона (м²) | 13 |
| с/в (м²) | 2,8 |
| с/в (м²) | 2,8 |
| с/в (м²) | 2,8 |
| с/в (м²) | 2,8 |
| с/в (м²) | 2,8 |
| с/в (м²) | 2,8 |
| с/в (м²) | 2,8 |
| с/в (м²) | 2,8 |
| тераса (м²) | 23,8 |
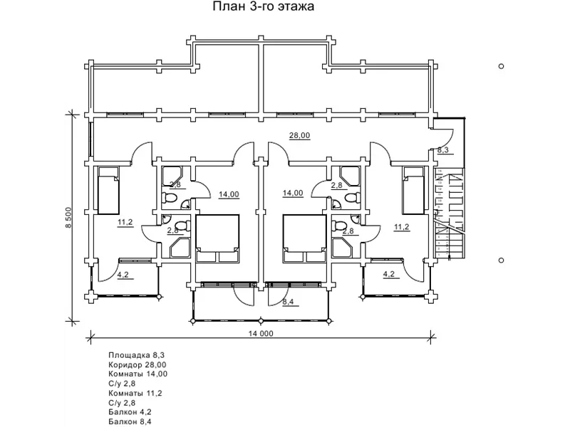
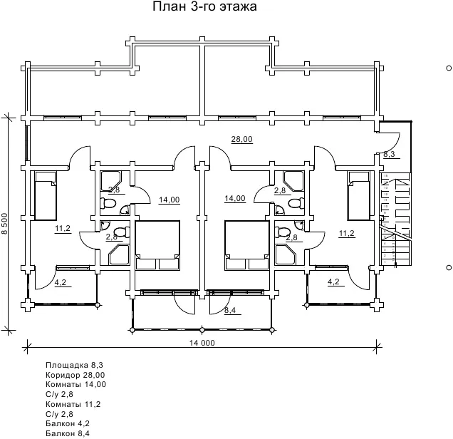
Третій поверх
| балкон (м²) | 4,2 |
| балкон (м²) | 8,4 |
| кімната (м²) | 8,3 |
| кімната (м²) | 14 |
| кімната (м²) | 14 |
| кімната (м²) | 11,2 |
| кімната (м²) | 11,2 |
| коридор (м²) | 28 |
| с/в (м²) | 2,8 |
| с/в (м²) | 2,8 |
Оциліндрований брус
Оциліндрований брус є найбільш оптимальним і поширеним матеріалом для будівництва дерев`яних будинків і бань, бесідок, альтанок, різноманітних садових меблів, дерев`яних конструкцій будь-яких видів. Дерев`яні будинки з оциліндрованого брусу відрізняються красою, всередині такого будинку завжди відчувається особлива затишна атмосфера.
Профільований брус
Найсучаснішим і високотехнологічним будівельним матеріалом в дерев`яному будівництві на сьогоднішній день є профільований брус. Для виробництва профільованого брусу, звичайному дерев`яному брусу на спеціальному деревообробному обладнанні надається певний профіль.
Подвійний брус з утепленням
Головна ідея застосування подвійного бруса полягала в досягненні енергоефективності житла. Над проектуванням енергозберігаючих будинків працюють провідні інженери та архітектори в різних країнах світу, запропонована фінами технологія подвійного бруса дає можливість звести до мінімуму тепловтрати будинку, а також об`єднує переваги будівництва дерев`яного будинку з економічністю споруди.
Клеєний брус
Клеєний брус принципово відрізняється від інших типів колод багатошаровістю. Така структура робить цей дерев’яний матеріал надміцним і витривалим.
Каркасні конструкції
Каркасні конструкції виготовляються на власних виробничих потужностях компанії «Домінант», з використанням сучасних деревообробних станків. Імпортне, високоточне обладнання дозволяє нам високоякісно виконувати свою роботу. Каркаси складаються зі струганих, ретельно висушених балок 150х50 мм (сосна першого сорту). Ці балки застосовуються для зовнішніх каркасів.

















