Лігво Ельфів
- Кількість поверхів
- 2
- Площа
- 943.1
- Ширина
- 12.85
- Довжина
- 58.6
- Комерційні будівлі
- Бази відпочинку
Готелі
(Що входить в ціну)
- комплект стін;
- комплект крокв;
- комплект балок перекриття;
- утеплювач міжвінцевий;
- антисептик (антисептування всього матеріалу);
- дубові нагеля;
- кріпильні материали (саморізи, усадкові болти, анкера, кріпильні пластини);
- гідроізоляція;
- вогнебіозахист (обробка деревини засобом І групи вогнезахисної ефективності)
Комфортний і презентабельний готель Лігво Ельфів дбайливо створений нами, щоб дарувати людям просто казковий відпочинок. З першого погляду на будову, складається враження, що вона, немов конструктор, складається з декількох дивовижних дерев’яних будиночків, що зійшли до нас зі сторінок чарівної, скандинавської казки. За словами всім відомого Ганса Християна Андерсена: «Із дійсності і виростають пречудові казки.»
Ця оригінальна двоповерхова база відпочинку виконана з високоякісної соснової деревини, завдяки чому в ній сформований унікальний сприятливий мікроклімат: в літню спеку - прохолодно, в зимову холоднечу - тепло. Тому, де б не розташувався готель Лігво Ельфів dominant-wood.com.ua/uk/proekty/812-ligvo-elfiv, будь то спекотний берег моря, або сніговий гірськолижний курорт - в будь-яку погоду всі гості будуть почувати себе в цьому дерев’яному готелі чудово. Ось чому в таких будівлях рекомендується влаштовувати санаторій або СПА Центр. Цілющі властивості хвойної деревини тільки посприяють посиленню ефекту від всіх оздоровчих процедур.
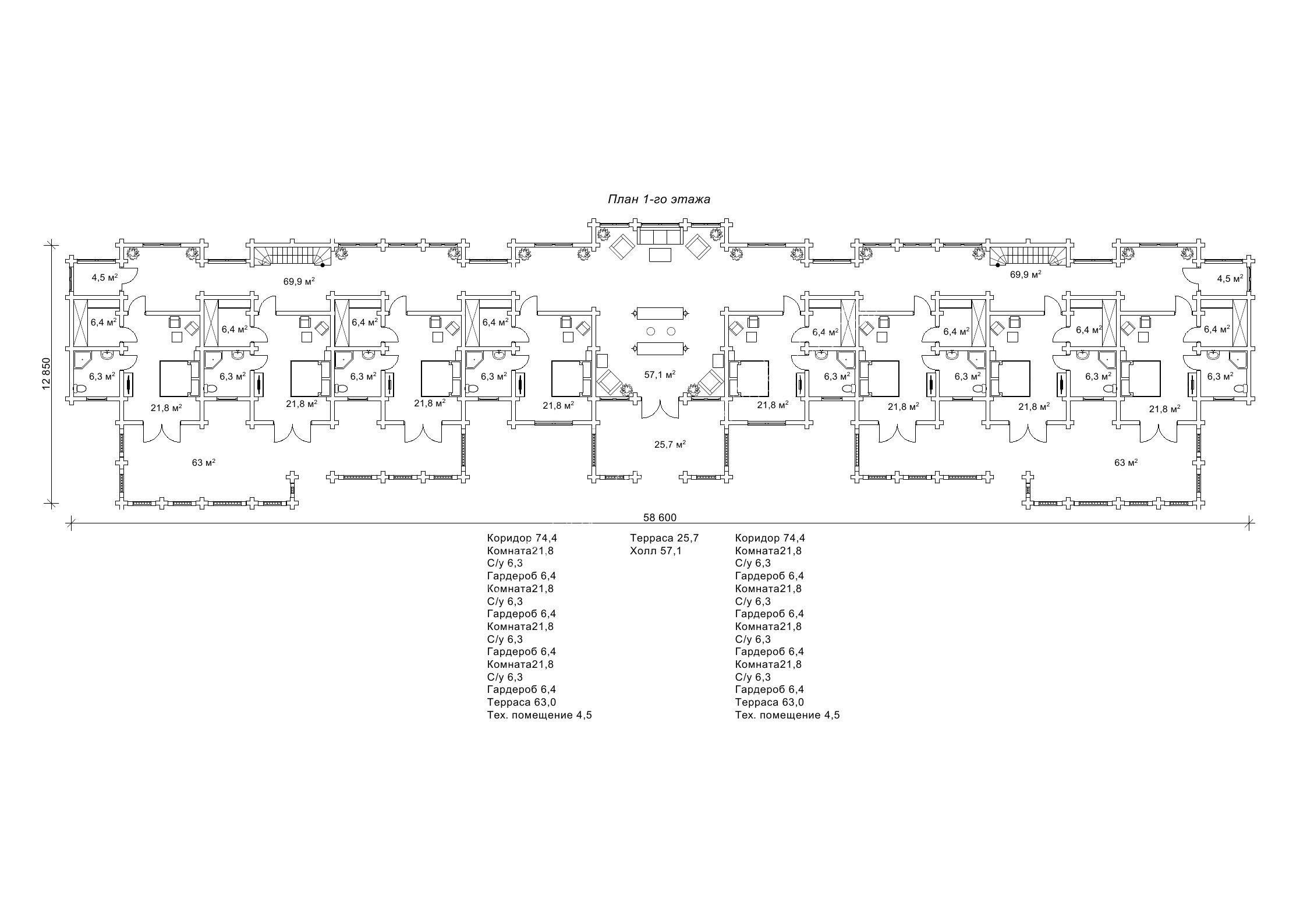
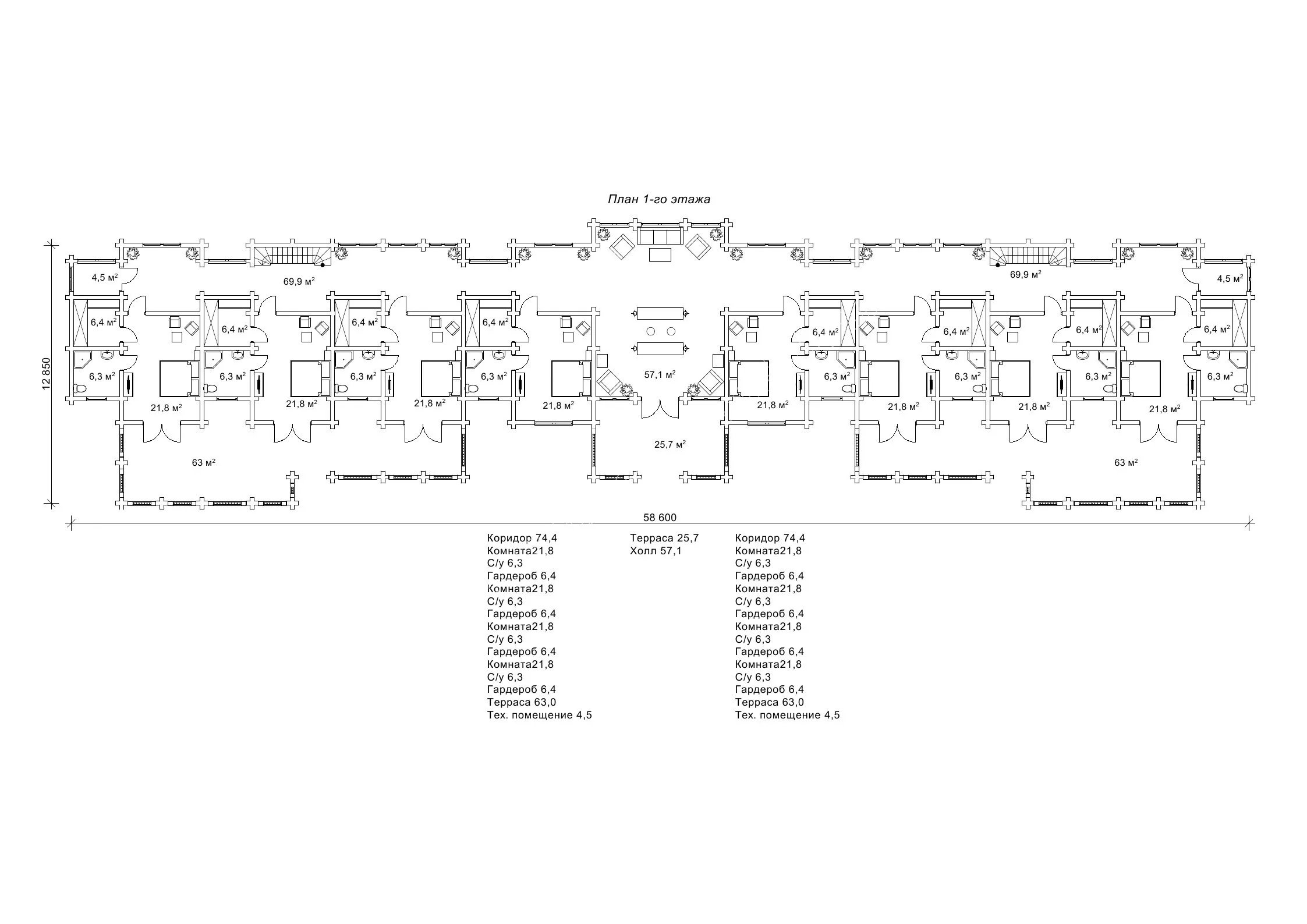
Розкішний будинок готелю займає площу 943,1 м² і має характерну подовжену форму, щоб із зручністю розміститися десь в мальовничому куточку природи, і всі гості змогли милуватися красою пейзажу з вікон своїх номерів. Проект готелю включає вісім номерів класу «люкс» і шість номерів класу «напівлюкс», в яких завбачливо зберігається повноцінна висота стель. Всі номери оснащені додатковими приміщеннями - санвузлами і гардеробними кімнатами для створення найбільш комфортних умов відпочинку. Ці ж приміщення і служать буферною зоною між номерами, щоб гостям готелю можна було проводити час в своє задоволення, і при цьому не заважати сусідам.
Респектабельні, заможні люди, які цінують свій час і дбайливо ставляться до свого здоров’я, безсумнівно, виберуть відпочинок в такому комфортабельному готелі як Лігво Ельфів, та ще й побудованому з екологічного матеріалу. Будівництво готелю з бруса dominant-wood.com.ua/uk/26-goteli буде розумним капіталовкладенням - дерев’яний зруб з оциліндрованих колод зводиться швидко і недорого, не вимагає дорогих оздоблювальних робіт і після встановлення будівлі відразу придатний до експлуатації. Фінішні оздоблювальні роботи по закінченню будівництва покращують якісні характеристики готелю і позбавляють від необхідності проводити профілактичні і ремонтні роботи як мінімум п’ять перших років експлуатації.
Шановний замовник, перегляньте, скільки коштує оренда номерів такого рівня в вашому регіоні, зіставте з вартістю пропонованого проекту, і цифри вам покажуть, наскільки вигідна інвестиція в цей казковий проект! Розсудливі інвестори і власники готельного бізнесу побачать в нашому проекті дерев’яного готелю Лігво Ельфів очевидну вигоду.
Замовляйте будівництво готелю з бруса високої якості в виробничо-будівельної компанії «Домінант» dominant-wood.com.ua/uk/content/24-kontakty. Ми постійно вдосконалюємо свою майстерність, розробляючи і здійснюючи кожен раз нові, цікаві ідеї будівництва готелів і баз відпочинку з дерева.
- Кількість поверхів
- 2
- Площа
- 943.1
- Ширина
- 12.85
- Довжина
- 58.6
- Комерційні будівлі
- Бази відпочинку
Готелі
Базова комплектація:
(Що входить в ціну)
- комплект стін;
- комплект крокв;
- комплект балок перекриття;
- утеплювач міжвінцевий;
- антисептик (антисептування всього матеріалу);
- дубові нагеля;
- кріпильні материали (саморізи, усадкові болти, анкера, кріпильні пластини);
- гідроізоляція;
- вогнебіозахист (обробка деревини засобом І групи вогнезахисної ефективності)
1800630 грн.
Дах (комплектність):
- Рейка 100*25мм (cосна)
- Контрейка 50*25мм (сосна)
- Металочерепиця МОНТЕРРЕЙ (Польща) 0,45мм
- Коник прямий
- Планка примикання
- Лобова (декоративна) планка
- Вітровая планка
- Яндола
- Капельник (Карнизна планка)
- Ущільнювач універсальный
- Саморізи ОС 4.8х35
- Фарба-спрей
- Гідробар'єр
- Монтаж
1964480 грн.
Вікна (комплектність):
- Вікно VEKA 58, колір білий 10
- Імпости вертикальні: 1 x 102103
- Скління: СПО, 24мм, (Rсп=0.36)*
- Тип фурнітури: Activpilot поворотно-відкидна, колір білий
- Підбір спеціальний: Activ микровентиляція; Activ 2-функц. механ.
- Моск.сітка: МС 3
- Підвіконня: ВМ 110мм, колір білий
- Підвіконня: ПВ ПВХ 150, заглушки: 600мм, колір білий
- Монтаж
0 грн.
Двері (комплектність):
- Полотно
- Коробка
- Лиштва
- Карниз
- Фарбування
- Скло
- Фурнітура
- Врізка фурнітуры
- Монтаж
728252 грн.
Фарбування (комплектність):
- Шліфування торців
- Тришарове покриття ефективним деревозахисним засобом на базі низькомолекулярної алкідної смоли методом розпилення.
Параметри забудови
- Кількість поверхів: 2
- Площа: 943.1
Розмір забудови
- Ширина: 12.85
- Довжина: 58.6
Перший поверх
| коридор х2 (м²) | 74,4 |
| кімната х8 (м²) | 21,8 |
| с/в х8 (м²) | 6,3 |
| гардероб х8 (м²) | 6,4 |
| тераса х2 (м²) | 63 |
| тех. приміщення х2 (м²) | 4,5 |
Другий поверх
| коридор х2 (м²) | 51,8 |
| кімната х6 (м²) | 21,8 |
| с/в х 6 (м²) | 6,3 |
| тех. приміщення х2 (м²) | 6,4 |
Оциліндрований брус
Оциліндрований брус є найбільш оптимальним і поширеним матеріалом для будівництва дерев`яних будинків і бань, бесідок, альтанок, різноманітних садових меблів, дерев`яних конструкцій будь-яких видів. Дерев`яні будинки з оциліндрованого брусу відрізняються красою, всередині такого будинку завжди відчувається особлива затишна атмосфера.
Профільований брус
Найсучаснішим і високотехнологічним будівельним матеріалом в дерев`яному будівництві на сьогоднішній день є профільований брус. Для виробництва профільованого брусу, звичайному дерев`яному брусу на спеціальному деревообробному обладнанні надається певний профіль.
Подвійний брус з утепленням
Головна ідея застосування подвійного бруса полягала в досягненні енергоефективності житла. Над проектуванням енергозберігаючих будинків працюють провідні інженери та архітектори в різних країнах світу, запропонована фінами технологія подвійного бруса дає можливість звести до мінімуму тепловтрати будинку, а також об`єднує переваги будівництва дерев`яного будинку з економічністю споруди.
Клеєний брус
Клеєний брус принципово відрізняється від інших типів колод багатошаровістю. Така структура робить цей дерев’яний матеріал надміцним і витривалим.
Каркасні конструкції
Каркасні конструкції виготовляються на власних виробничих потужностях компанії «Домінант», з використанням сучасних деревообробних станків. Імпортне, високоточне обладнання дозволяє нам високоякісно виконувати свою роботу. Каркаси складаються зі струганих, ретельно висушених балок 150х50 мм (сосна першого сорту). Ці балки застосовуються для зовнішніх каркасів.












